KEMBAR78
Tr60 Data Sheet | PDF | Concrete | Building Technology
100% found this document useful (1 vote)
2K views2 pages

Tr60 Data Sheet

TR60+ is a structural metal decking system engineered for composite concrete floors with several key features: 1) It allows for unpropped spans over 3.5m, reducing required concrete volume. 2) Its embossed design promotes optimum interaction between the decking and poured concrete. 3) It has fire resistance ratings up to 4 hours. 4) Load tables provide maximum permissible spans under different conditions including slab depth, steel grade, and fire rating.

Uploaded by

thejashk4211
Copyright
© Attribution Non-Commercial (BY-NC)
We take content rights seriously. If you suspect this is your content, claim it here.
Available Formats
Download as PDF, TXT or read online on Scribd
100% found this document useful (1 vote)
2K views2 pages

Tr60 Data Sheet

TR60+ is a structural metal decking system engineered for composite concrete floors with several key features: 1) It allows for unpropped spans over 3.5m, reducing required concrete volume. 2) Its embossed design promotes optimum interaction between the decking and poured concrete. 3) It has fire resistance ratings up to 4 hours. 4) Load tables provide maximum permissible spans under different conditions including slab depth, steel grade, and fire rating.

Uploaded by

thejashk4211
Copyright
© Attribution Non-Commercial (BY-NC)
We take content rights seriously. If you suspect this is your content, claim it here.
Available Formats
Download as PDF, TXT or read online on Scribd
You are on page 1/ 2

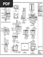
structural metal decking ltd

Engineers in Steel Decking Systems

TR60+ Data Sheet


TR60+

666 Cover width

158

175

200

133

38 (max)

60

12

333

Un-propped spans in excess of 3.5m


Reduced concrete volume
Engineered embossment design for optimum composite action between decking and concrete
Fire Rating up to 4.0hrs
Soffit Wedge Nut fixings available with load capacity of up to 1kN
Acoustic Robust Solution Refer Robust Standard Details

TR60+ Section Properties


Nominal
Thickness

Design Thickness
Available Grades Depth of Profile
(Bare Steel)

Weight of Profile

Height of
neutral axis

Area of Steel

Moment of
Inertia

mm

mm

N/mm2

mm

kg/m

kN/m

mm

mm/m

cm4/m

0.9

0.86

S350 or S450

60 / 72*

10.06

0.099

33.6

1225

93.5

1.0

0.96

S350 or S450

60 / 72*

11.15

0.110

33.6

1363

102.1

1.2

1.16

S350 or S450

60 / 72*

13.36

0.131

33.7

1645

119.8

Note: Figures against depth of profile indicate the nominal depth, with overall depth (including height of re-entrant) marked *.

Concrete Volume and Weight


Slab Depth

Volume of
Concrete

Weight of Concrete
(Normal Weight)

Weight of Concrete
(Lightweight)

mm

m/m

Wet (kN/m)

Dry (kN/m)

Wet (kN/m)

Dry (kN/m)

120

0.086

2.03

1.99

1.61

1.52

130

0.096

2.26

2.22

1.79

1.70

140

0.106

2.50

2.45

1.98

1.88

150

0.116

2.74

2.68

2.17

2.05

175

0.141

3.33

3.26

2.63

2.49

200

0.166

3.92

3.83

3.10

2.94

225

0.191

4.51

4.41

3.57

3.38

250

0.216

5.10

4.99

4.03

3.82

Deflection
This table is based on concrete poured to a constant thickness and does not take account for deflection of the decking or supporting beams. (as a guide, to account for the deflection
of the decking a concrete volume of span/250 should be added to the figures indicated in the table)
Concrete Weight
These tables indicate concrete weight only and do not include the weight of decking or reinforcement.
Concrete weights are based on the concrete densities specified in BS5950 Part 4 clause 3.3.3
as follows:
Normal Weight Concrete - 2400kg/m (wet) and 2350 kg/m (dry).
Lightweight Concrete - 1900kg/m (wet) and 1800 kg/m (dry).

TR60+ Load Span Tables (Normal Weight Concrete) Steel Grade S350
Maximum spans (m) using Normal Weight Concrete (wet density 2400 kg/m3) for S350 grade steel.
Maximum Permissible Span (m)
0.9mm Gauge
Span Type

Fire Rating
(hours)

Single Span
Double Span

1.2mm Gauge

Mesh
3.5

5.0

7.5

10.0

3.5

5.0

7.5

10.0

3.5

5.0

7.5

10.0

130

A142

3.15

3.15

3.15

2.74

3.40

3.40

3.28

2.81

3.71

3.71

3.43

2.93

150
200

A193
A393

2.99
2.71

2.99
2.71

2.99
2.71

2.99
2.71

3.24
2.90

3.24
2.90

3.24
2.90

3.24
2.90

3.53
3.20

3.53
3.20

3.53
3.20

3.53
3.20

1.5

140
150
200

A193
A193
A393

3.06
2.99
2.71

3.06
2.99
2.71

3.06
2.99
2.71

2.76
2.88
2.71

3.28
3.24
2.90

3.28
3.24
2.90

3.28
3.24
2.90

2.79
2.91
2.90

3.62
3.53
3.20

3.62
3.53
3.20

3.35
3.53
3.20

2.87
2.99
3.20

2.0

150
175
200

A193
A252
A393

2.99
2.89
2.71

2.99
2.89
2.71

2.91
2.89
2.71

2.55
2.89
2.71

3.24
3.06
2.90

3.24
3.06
2.90

2.92
3.06
2.90

2.56
3.06
2.90

3.53
3.35
3.20

3.53
3.35
3.20

2.95
3.35
3.20

2.60
3.25
3.20

1.0

130
150
200

A142
A193
A393

3.59
3.38
2.97

3.53
3.38
2.97

3.00
3.38
2.97

2.66
3.09
2.97

3.83
3.70
3.18

3.61
3.70
3.18

3.07
3.57
3.18

2.73
3.15
3.18

4.34
4.12
3.76

3.77
4.12
3.76

3.21
3.71
3.76

2.85
3.28
3.76

1.5

140
150
200

A193
A193
A393

3.48
3.38
2.97

3.48
3.38
2.97

2.99
3.10
2.97

2.66
2.75
2.97

3.80
3.70
3.18

3.56
3.69
3.18

3.03
3.14
3.18

2.70
2.79
3.18

4.22
4.12
3.76

3.66
3.78
3.76

3.12
3.23
3.76

2.77
2.87
3.76

2.0

150
175
200

A193
A252
A393

3.38
3.16
2.97

3.23
3.16
2.97

2.77
3.16
2.97

2.47
2.94
2.97

3.69
3.44
3.18

3.25
3.44
3.18

2.79
3.33
3.18

2.49
2.96
3.12

3.73
3.91
3.76

3.29
3.91
3.76

2.83
3.37
3.55

2.53
2.99
3.16

1.0

130
150
200

A393
A393
2 x A393

4.78
5.04
4.42

4.37
4.56
4.42

3.80
4.00
4.42

3.24
3.60
4.42

4.84
5.12
4.88

4.43
4.63
4.88

3.85
4.06
4.88

3.34
3.66
4.56

4.96
5.26
5.70

4.54
4.76
5.70

3.95
4.17
5.31

3.53
3.76
4.79

1.5

140
150
200

A393
A393
2 x A393

4.54
4.65
4.42

4.09
4.20
4.42

3.57
3.68
4.42

3.21
3.32
4.21

4.59
4.70
4.88

4.13
4.25
4.88

3.61
3.72
4.65

3.25
3.35
4.24

4.67
4.79
5.70

4.21
4.33
5.29

3.68
3.79
4.72

3.31
3.42
4.30

150
175

A393
2 x A252

4.31
4.78

3.89
4.49

3.41
3.97

3.07
3.59

4.33
4.95

3.92
4.52

3.43
3.99

3.09
3.62

4.38
5.00

3.96
4.56

3.47
4.03

3.13
3.65

200

2 x A393

4.42

4.42

4.15

3.78

4.88

4.68

4.17

3.80

5.14

4.72

4.20

3.83

1.0

Double Span (Propped)

1.0mm Gauge

Slab Depth
(mm)

2.0

Total Unfactored Applied Load ( kN/m2 )

Design Table Limits Criteria


Typically, spans are governed by the maximum un-propped condition at Construction Stage, except where values are for propped spans and/or are indicated as follows:
Spans shown in red indicate where spans are limited by the fire condition, greater spans may be achievable by either increasing mesh size or addition of bottom reinforcement
refer JSWSMD Deck Design Software or contact JSWSMD Technical Department.
Spans shown in blue indicate where spans are limited by the composite/normal stage conditions, greater spans may be achievable where shear studs are provided.
Refer JSWSMD Deck Design Software or Contact JSWSMD Technical Department.

TR60+ Fire Insulation Thickness

Minimum Insulation Thickness (x) of Concrete (mm)


Fire Rating

1 hr

1.5 hr

2 hr

3 hr

4 hr

NWC

70

80

90

115

130

LWC

60

70

80

100

115

The image and table above details the minimum insulation thickness required to suit fire design criteria in accordance with BS5950 Part 8.

Head Office: JSW Structural Metal Decking Ltd.


Unit 3, 4 & 5 Ground Floor, Gold Coin Apartments, Opp. Vakola Church, Nehru Road, Vakola, Santacruz (East), Mumbai 400 055
Tel: +91 (0) 22 6123 2000 Fax: +91 (0) 22 2666 0666 Email: contactus@jswsmd.in Web: www.jswsmd.in

You might also like