KEMBAR78
Data Sheet | PDF | Elevator | Credit Card
0% found this document useful (0 votes)
171 views3 pages

Data Sheet

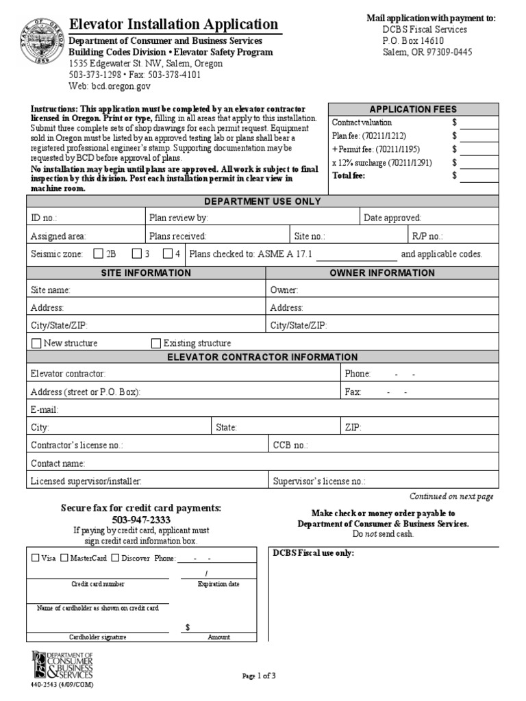
This 3 page document is an application for an elevator installation permit from the Oregon Department of Consumer and Business Services Elevator Safety Program. The first page provides instructions for completing the application and includes spaces for the applicant and site information. The second page requests detailed technical specifications about the elevator equipment, controls, safety devices, and installation. The third page is for department use only, including the permit approval and fee schedule. The applicant must be a licensed Oregon elevator contractor and no work can begin until plans are approved and a permit is issued.

Uploaded by

Mostafa Mohmmed
Copyright
© © All Rights Reserved
We take content rights seriously. If you suspect this is your content, claim it here.
Available Formats
Download as PDF, TXT or read online on Scribd
0% found this document useful (0 votes)
171 views3 pages

Data Sheet

This 3 page document is an application for an elevator installation permit from the Oregon Department of Consumer and Business Services Elevator Safety Program. The first page provides instructions for completing the application and includes spaces for the applicant and site information. The second page requests detailed technical specifications about the elevator equipment, controls, safety devices, and installation. The third page is for department use only, including the permit approval and fee schedule. The applicant must be a licensed Oregon elevator contractor and no work can begin until plans are approved and a permit is issued.

Uploaded by

Mostafa Mohmmed
Copyright
© © All Rights Reserved
We take content rights seriously. If you suspect this is your content, claim it here.
Available Formats
Download as PDF, TXT or read online on Scribd
You are on page 1/ 3

Page 1 of 3

440-2543 (4/09/COM)

Elevator Installation Application
Department of Consumer and Business Services
Building Codes Division Elevator Safety Program
1535 Edgewater St. NW, Salem, Oregon
503-373-1298 Fax: 503-378-4101
Web: bcd.oregon.gov
Mail application with payment to:
DCBS Fiscal Services
P.O. Box 14610
Salem, OR 97309-0445

APPLICATION FEES
Contract valuation $


Plan fee: (70211/1212) $


+ Permit fee: (70211/1195) $


x 12% surcharge (70211/1291) $


Total fee: $


Instructions: This application must be completed by an elevator contractor
licensed in Oregon. Print or type, filling in all areas that apply to this installation.
Submit three complete sets of shop drawings for each permit request. Equipment
sold in Oregon must be listed by an approved testing lab or plans shall bear a
registered professional engineers stamp. Supporting documentation may be
requested by BCD before approval of plans.
No installation may begin until plans are approved. All work is subject to final
inspection by this division. Post each installation permit in clear view in
machine room.

DEPARTMENT USE ONLY
ID no.:

Plan review by:

Date approved:


Assigned area:

Plans received:

Site no.:

R/P no.:


Seismic zone: 2B 3 4 Plans checked to: ASME A 17.1

and applicable codes.

SITE INFORMATION OWNER INFORMATION
Site name:

Owner:


Address:

Address:


City/State/ZIP:

City/State/ZIP:


New structure Existing structure
ELEVATOR CONTRACTOR INFORMATION
Elevator contractor:

Phone:

-

-


Address (street or P.O. Box):

Fax:

-

-


E-mail:


City:

State:

ZIP:


Contractors license no.:

CCB no.:


Contact name:


Licensed supervisor/installer:

Supervisors license no.:


Continued on next page
Secure fax for credit card payments:
503-947-2333
If paying by credit card, applicant must
sign credit card information box.

Make check or money order payable to
Department of Consumer & Business Services.
Do not send cash.
Visa MasterCard Discover Phone:

-

-





/


Credit card number Expiration date


Name of cardholder as shown on credit card

$


Cardholder signature Amount
DCBS Fiscal use only:
440-2543 (4/09/COM) Page 2 of 3 Elevator Installation Application
EQUIPMENT DATA/TYPE/USE
Controller certification:


Equipment
manuf.:


Controller
model no.:

Lab file or control no. (UL/CSA/ETL/MET):


COMMERCIAL INSTALLATION PRIVATE RESIDENCE
Passenger (2, 3, & 8.4)
Residential (5.3-5.4)
Auto transfer device (7.7)
Inclined elevator (5.1)
Rooftop elevator (5.6)
Freight (Parts 2, 3, & 8.4)
Residential inclined (5.4)
Personnel elevator (5.7)
Screw column (4.2)
Limited use/limited access (5.2)
Shipboard (5.8)
Sidewalk elevator (5.5)
Dumbwaiter (7.1, 7.2, 7.3)
Rack & pinion (4.1)
VRL (OESC)
Type A mat. lift
Type b mat. lift
DRIVE TYPE MACHINE LOCATION RATED SPEED/RISE ADDITIONAL PARAMETERS
Traction Roped sprocket Overhead MRL DN:

fpm No. of floors:


Direct plunger Screw drive Basement Remote UP:

fpm Front openings:


Winding drum Rack & pinion Adjacent Machine below Total FLR to FLR:

Rear openings:


Chain sprocket Roped hydraulic Total travel:

Angle of incline:


Lever hydraulic Other:

Clear overhead:

ft. Capacity:

lbs.

CONTROL SYSTEM
Variable voltage Static drive Hydraulic Variable AC/freq. 1 & 2 speed AC Direct drive
Attendant operation Keyed operation Security system Other:


Other special controls:



Simplex Collective Fire service phase I & II Seismic operation Safety valve
Duplex Selective/collective Emergency power Seismic switch Tank fastenings
Group Single auto P/B Emergency light & bell Derailment SW Pipe supports
No. of group cars:

Constant pressure P/B 24 hr. communications Rope retainer guards Other:


Call/send Intercom CTW rail bracket spacing

ft.

Hoistway entrance test lab listing numbers:



DOOR TYPE CAR DOOR OR GATE HOISTWAY DOOR INTERLOCK
Single speed Side slide Single speed Side slide Model:


Two speed C/O Two speed C/O Mfg.:


Three speed Bi-parting Three speed Bi-parting Shaft wall ENTRANCE CONSTRUCTION
Vertical Swing Vertical Collapsible Sheetrock on floors:


Power Manual Power Manual Masonry/concrete on floors:



Engineering: (2.13.4.2.1) Total combined weight of door panels, hangers linkage, etc.

kg. KE=1/2 (m/32.2)v
2
Max. allowable closing speed

m/s

BUFFERS CLEARANCES PLATFORM
Top Bottom
Stroke:

in. Mfg.:

Refuge:

in. Refuge:

in. Net inside dimensions (2.16.1):

x


Spring

Oil (spring rtn.) Max. runby:

in. Max. runby:

in. Sill running clearance:

in.
Solid bumpers

Oil (gas rtn.) Min. runby:

in. Min. runby:

in. Car to CWT clearance:

in.

SAFETIES HOIST ROPES CAR & CWT WEIGHT
Car CWT Qty. Size Type
Type A Type A Hoist:





Car: dead weight:

kg.
Type B Type B Governor:






Type C Type C Comp. ropes:





CWT: dead weight:

kg.
Slack chain/rope device: Yes No Comp. chains:






Safeties not required Wire rope Aircraft cable Hoist chain no.:

Max. shaft load:

kg.

HYDRAULIC DATA POWER DATA PASSENGER CAB INTERIOR: (2.14.2)
Holeless 1 3 Metal shell Other material, tested to:
Piston(s)
diameter:

in. Line voltage:

VAC Laminated glass ASTM E 84
Expected empty car pressure:

PSI HP:

UL 723
Expected working pressure:

PSI LIMITED SWITCHES: Directional: Yes No NFPA 252
Expected relief pressure:

PSI @ Max-150% Final: Yes No Floor covering (ASTM E 648)

PIPING INFORMATION HYDRAULIC JACK ASSEMBLY HYDRAULIC CONTROL VALVE
Schedule 40 Schedule 80 Plunger wall thickness:

in. Maxton EECO Blaine
Threaded Other


Grooved OD:

in.
Other

Model:


Flexible H/P hose Plunger wall thickness:

in. Listing/Certification no.:


Other*


*Submit calculations (8.2.8.4) OD:

in. UL CSA ETL MET

440-2543 (4/09/COM) Page 3 of 3 Elevator Installation Application

DEPARTMENT USE ONLY
Conveyance meets minimum safety standards; OK to permit. Date:

Inspection month:



Application must be signed by an elevator contractor representative. Unsigned applications will be returned.
Request for waivers, pursuant to ORS 460.035, on this unit must be submitted separately in writing.
Contractor representative: Title:


Signature
Print name:

Date:

Phone:

-

-


Comments:





General contractors name:


Address:


City:

State:

ZIP:



ORS 460.045(3): No installation shall begin until plans are approved by the division.
ORS 460.045(6): Units shall not be placed in service until inspected by the division.
ORS 460.048: Plans and application must be submitted in triplicate.
Before a permit is issued for the construction, alteration, relocation, or installation of a conveyance subject to the
provisions of this act, application for such permit shall be made to the Elevator Safety Program accompanied by a fee as
computed below. No work shall be done until the permit has been approved and issued by the Elevator Safety Program.
No permit or fees shall be required for ordering repairs and replacement of damaged, broken, or worn parts necessary for
normal maintenance.
ELEVATOR INSTALLATION FEE SCHEDULE
Plan review fee.........................................................................................................................................................$ 78.00
$1,000 or under .........................................................................................................................................................$ 98.00
Over $1,000 but under $15,000
First $1,000 ...............................................................................................................................................................$
Each additional $1,000 or fraction............................................................................................................................$
98.00
13.00
$15,000 or over but under $50,000
First $15,000 .............................................................................................................................................................$
Each additional $1,000 or fraction............................................................................................................................$
280.00
8.00
$50,000 or over
First $50,000 .............................................................................................................................................................$
Each additional $1,000 or fraction............................................................................................................................$
553.00
3.00
Example:
Plan review fee..........................................................................................................................................................$ 78.00
Wheelchair installation/alteration contract valuation $26,748
For the first $15,000 .........................................................................................................................$
Balance of $11,748 round up to $12,000
Multiply $8 per $1,000 or $8 x 12.................................................................................................$
280.00

96.00
Subtotal ....................................................................................................................................................................$ 454.00
x 12% surcharge (ORS 455.210)...................................................................................................... $ 54.48
Total fee.................................................................................................................................................................... $ 508.48
This information is being submitted as assurance the installation/alteration will conform to the minimum standards of the
Elevator Safety Code ANSI/ASME A17/1 and related documents.
Mail application with payment to: DCBS Fiscal Services
P.O. Box 14610
Salem, OR 97309-0445
Make check or money order payable to
Department of Consumer & Business Services.
Do not send cash.

You might also like