KEMBAR78
Chartek 8 Product Data Sheet | PDF | Epoxy | Paint
0% found this document useful (1 vote)
1K views4 pages

Chartek 8 Product Data Sheet

product Data Sheet for Chartek 7

Uploaded by

Jomer J Simpson
Copyright
© © All Rights Reserved
We take content rights seriously. If you suspect this is your content, claim it here.
Available Formats
Download as PDF, TXT or read online on Scribd
0% found this document useful (1 vote)
1K views4 pages

Chartek 8 Product Data Sheet

product Data Sheet for Chartek 7

Uploaded by

Jomer J Simpson
Copyright
© © All Rights Reserved
We take content rights seriously. If you suspect this is your content, claim it here.
Available Formats
Download as PDF, TXT or read online on Scribd
You are on page 1/ 4

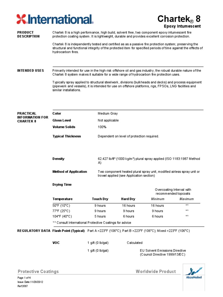
Chartek 8

Epoxy Intumescent
PRODUCT
DESCRIPTION

Chartek 8 is a high performance, high build, solvent free, two component epoxy intumescent fire
protection coating system. It is lightweight, durable and provides excellent corrosion protection.
Chartek 8 is independently tested and certified as as a passive fire protection system; preserving the
structural and functional integrity of the protected item for specified periods of time against the effects of
hydrocarbon fires.

INTENDED USES

Primarily intended for use in the high risk offshore oil and gas industry, the robust durable nature of the
Chartek 8 system makes it suitable for a wide range of hydrocarbon fire protection uses.
Typically spray applied to structural steelwork, divisions (bulkheads and decks) and process equipment
(pipework and vessels), it is intended for use on offshore platforms, rigs, FPSOs, LNG facilities and
similar installations.

PRACTICAL
INFORMATION FOR
CHARTEK 8

Color

Medium Gray

Gloss Level

Not applicable

Volume Solids

100%

Typical Thickness

Dependent on level of protection required.

Density

62.427 lb/ft (1000 kg/m) plural spray applied (ISO 1183:1987 Method
A)

Method of Application

Two component heated plural spray unit, modified airless spray unit or
trowel applied (see Application section)

Drying Time
Overcoating Interval with
recommended topcoats
Temperature

Touch Dry

Hard Dry

Minimum

Maximum

50F (10C)

9 hours

16 hours

16 hours

77F (25C)

9 hours

9 hours

9 hours

104F (40C)

5 hours

6 hours

6 hours

* Consult International Protective Coatings for advice


REGULATORY DATA Flash Point (Typical) Part A >223F (106C); Part B >223F (106C); Mixed >223F (106C)

VOC

1 g/lt (0 lb/gal)
1 g/lt (0 lb/gal)

Protective Coatings
Page 1 of 4
Issue Date:11/28/2012
Ref:3567

Calculated
EU Solvent Emissions Directive
(Council Directive 1999/13/EC)

Worldwide Product

Chartek 8
Epoxy Intumescent
See Product Characteristics section for further details

Page 2 of 4

Chartek 8
Epoxy Intumescent
SURFACE
PREPARATION

All surfaces to be coated should be clean, dry and free from contamination. Prior to application, all
surfaces should be assessed and treated in accordance with ISO 8504:2000.

Abrasive Blast Cleaning


This product must only be applied to surfaces prepared by abrasive blast cleaning to Sa2.5 (ISO 85011:2007) or SSPC-SP10.

Primers
Selected primers or priming systems must have completed the primer qualification procedure from
International Protective Coatings, feature on the International Protective Coatings published qualified
primers list and be applicable to the appropriate certification. The preferred primer shall be an epoxy
polyamide (e.g. Intergard 251) at a thickness not exceeding 3 mils (75 microns). Alternatively, a two
coat primer system, such as epoxy zinc (e.g. Interzinc 52) and tie coat (e.g. Intergard 269) may be
used, and should not exceed 4.5 mils (110 microns) combined dry film thickness.

APPLICATION

Mixing

If applying Chartek 8 by modified single feed airless spray pump or trowel, it will first be
necessary to thoroughly power mix a kit of Chartek 8. Individual components must have
been stored for 24 hours at 77 - 86F (25 - 30C) and fully power agitated before mixing.

Mix Ratio

Always mix full kits. (For trowel application refer to the Chartek Application Guidelines).

Working Pot Life

59F (15C)
120 minutes

77F (25C)
90 minutes

86F (30C)
45 minutes

The above figures are for trowel application. Working pot life is not applicable for
plural airless spray application as the product is only mixed at the spray gun, at the
point of application.
For pre-mix airless spray, working pot life will be reduced in relation to the above
figures. Refer to the Chartek Application Manual.

Plural component
airless spray

Recommended and
preferred

Heated plural equipment approved by International Paint. No


thinners required

Airless Spray

Recommended

Recommended use minimum 68:1 modified airless spray


unit, as qualified by International Protective Coatings.

Trowel

Suitable - Small areas only

Thinner

International GTA123

Cleaner

International GTA007

Work Stoppages

Do not allow material to remain in hoses, gun or spray equipment. Thoroughly flush all
equipment with International GTA123. Once units of paint have been mixed they should
not be resealed and it is advised that after prolonged stoppages work recommences with
freshly mixed units.

Clean Up

Clean all equipment immediately after use with International GTA007. It is good working
practice to periodically flush out spray equipment during the course of the working day.
Frequency of cleaning will depend upon amount sprayed, temperature and elapsed time,
including any delays.

Only for pre-mix and trowel application - consult Application


Guidelines

All surplus materials and empty containers should be disposed of in accordance with
appropriate regional regulations/legislation.

Page 3 of 4

Chartek 8
Epoxy Intumescent
PRODUCT
CHARACTERISTICS

The following conditions shall apply (or be generated) throughout the application:Minimum Air Temperature
Maximum Humidity
Surface Temperature
General

50F (10C)
85%
A minimum of 5F (3C) above dew point of surrounding air.
Clean and dry at all times.

Application
Chartek 8 should be spray applied to ensure total wetting of the substrate is achieved. Where this is not
possible by spray alone, then the first coat should be thoroughly trowelled and rolled to achieve this.
The best time to overcoat Chartek 8 with itself is wet on wet or within 12 hours of application and before the
coating has had any chance to become contaminated.
Mesh Application
If mesh reinforcement is required, International Paint's HK-1 carbon composite mesh should be installed in
accordance with specific fire design and as detailed in the Chartek Application Manual. For mesh
requirements seek specific advice from International Protective Coatings.
After Mesh Application (if applicable)
Continue to spray apply Chartek 8 - bring up to the required film thickness

Applicator Qualification
Only companies in receipt of Qualified Applicator status from International Protective Coatings shall be used
for Chartek 8 application. Companies shall document that they comply with this requirement prior to work
commencement.
The Chartek 8 application shall be conducted by the Applicator Company using employees trained in the
proper application procedures. As a minimum, Supervisory and QA/QC personnel on site shall be in receipt of
individual qualifications, having attended an International Protective Coatings Chartek Applicator Training
School. This is a minimum requirement and shall be documented prior to work commencement.
Inspection & QA
This is the responsibility of the Applicator but as a minimum must conform to the procedures laid down in
International Protective Coatings Chartek QC Manual
Technical Service
This is available from International Protective Coatings and should be co-ordinated to ensure attendance at
job start up. The Applicator Company is responsible for ensuring International Protective Coatings is notified
of start up date.
Alternative Surface Preparation
Under certain project specific circumstances, International Protective Coatings has developed procedures for
wet blasting, ultra high pressure water blasting (hydroblasting) and power tool cleaning. Consult International
Protective Coatings for further details.
Maximum Surface Operating Temperature
At service temperatures greater than >248F (120C) a suitable thermal barrier should be used between the
substrate and Chartek 8.
Note: VOC values are typical and are provided for guidance purpose only. These may be subject to variation
depending on factors such as differences in color and normal manufacturing tolerances.

SYSTEMS
COMPATIBILITY

Page 4 of 4

Minimum recommended; two component polyurethane topcoat, International Protective Coatings'


Interthane 990, applied at a dry film thickness of 2 mils (50 microns). For alternatives, contact
International Protective Coatings.

You might also like