KEMBAR78
Ramp | PDF | Computers | Technology & Engineering
0% found this document useful (0 votes)
51 views8 pages

Ramp

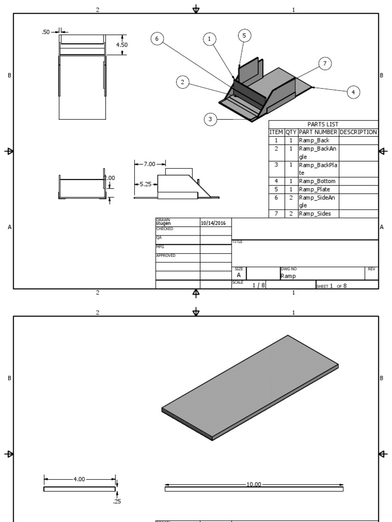
The document contains engineering drawings and specifications for building a ramp. It includes a parts list with 7 items needed to construct the ramp along with their quantities. The drawings provide dimensions and views of the individual ramp parts and assembled ramp.

Uploaded by

api-330375236
Copyright
© © All Rights Reserved
We take content rights seriously. If you suspect this is your content, claim it here.
Available Formats
Download as PDF, TXT or read online on Scribd
0% found this document useful (0 votes)
51 views8 pages

Ramp

The document contains engineering drawings and specifications for building a ramp. It includes a parts list with 7 items needed to construct the ramp along with their quantities. The drawings provide dimensions and views of the individual ramp parts and assembled ramp.

Uploaded by

api-330375236
Copyright
© © All Rights Reserved
We take content rights seriously. If you suspect this is your content, claim it here.
Available Formats
Download as PDF, TXT or read online on Scribd
You are on page 1/ 8

2

.50
6

4.50
7
B

B
2
4

PARTS LIST
ITEM QTY PART NUMBER DESCRIPTION
1
1 Ramp_Back
1 Ramp_BackAn
2
gle
3
1 Ramp_BackPla
te
4
1 Ramp_Bottom
5
1 Ramp_Plate
6
2 Ramp_SideAn
gle
7
2 Ramp_Sides

7.00
2.00
5.25

DRAWN

stugen

10/14/2016

CHECKED
QA
TITLE
MFG
APPROVED
SIZE

DWG NO

Ramp

SCALE

1/8

REV

SHEET

OF

4.00

10.00
.25

DRAWN

stugen

10/14/2016

CHECKED
QA
TITLE
MFG
APPROVED
SIZE

DWG NO

Ramp

SCALE

1/2

REV

SHEET

OF

10.00
.06
1.50

.06
1.50

DRAWN

stugen

10/14/2016

CHECKED
QA
TITLE
MFG
APPROVED
SIZE

DWG NO

Ramp

SCALE

1/2

REV

SHEET

OF

2.00

9.50
.13

DRAWN

stugen

10/14/2016

CHECKED
QA
TITLE
MFG
APPROVED
SIZE

DWG NO

Ramp

SCALE

1/2

REV

SHEET

OF

19.00

10.50

.25

DRAWN

stugen

10/14/2016

CHECKED
QA
TITLE
MFG
APPROVED
SIZE

DWG NO

Ramp

SCALE

0.16 : 1

REV

SHEET

OF

6.00

4.50

.25

DRAWN

stugen

10/14/2016

CHECKED
QA
TITLE
MFG
APPROVED
SIZE

DWG NO

Ramp

SCALE

1/2

REV

SHEET

OF

9.00
.06
1.50

.06
1.50

DRAWN

stugen

10/14/2016

CHECKED
QA
TITLE
MFG
APPROVED
SIZE

DWG NO

Ramp

SCALE

1/2

REV

SHEET

OF

5.00
45
.25
12.00
DRAWN

stugen

10/14/2016

CHECKED
QA
TITLE
MFG
APPROVED
SIZE

DWG NO

Ramp

SCALE

1/4

REV

SHEET

OF

You might also like