KEMBAR78
DIAGRAMS ARE GUIDELINES ONLY: Parts Indicated May Not Be Included With Your Pole | PDF | Metals | Industries
0% found this document useful (0 votes)
74 views1 page

DIAGRAMS ARE GUIDELINES ONLY: Parts Indicated May Not Be Included With Your Pole

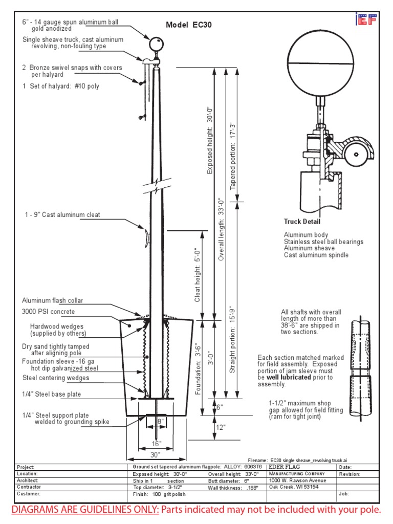
This document provides specifications for a 30-foot tall spun aluminum flagpole with a gold anodized finish. It includes details on the single-sheave revolving truck, halyard and cleat, concrete foundation, and flash collar. The pole tapers from a 6-inch diameter base to a 3.5-inch top diameter.

Uploaded by

Samuel Mora
Copyright
© © All Rights Reserved
We take content rights seriously. If you suspect this is your content, claim it here.
Available Formats
Download as PDF, TXT or read online on Scribd
0% found this document useful (0 votes)
74 views1 page

DIAGRAMS ARE GUIDELINES ONLY: Parts Indicated May Not Be Included With Your Pole

This document provides specifications for a 30-foot tall spun aluminum flagpole with a gold anodized finish. It includes details on the single-sheave revolving truck, halyard and cleat, concrete foundation, and flash collar. The pole tapers from a 6-inch diameter base to a 3.5-inch top diameter.

Uploaded by

Samuel Mora
Copyright
© © All Rights Reserved
We take content rights seriously. If you suspect this is your content, claim it here.
Available Formats
Download as PDF, TXT or read online on Scribd
You are on page 1/ 1

6" - 14 gauge spun aluminum ball Model EC30

gold anodized
Single sheave truck, cast aluminum
revolving, non-fouling type

2 Bronze swivel snaps with covers


per halyard
1 Set of halyard: #10 poly

Exposed height: 30'-0"

Tapered portion: 17'-3"


Overall length: 33'-0"
1 - 9" Cast aluminum cleat
Truck Detail

Aluminum body
Stainless steel ball bearings
Aluminum sheave
Cleat height: 5'-0"

Cast aluminum spindle

Aluminum flash collar


Straight portion: 15'-9"

3000 PSI concrete All shafts with overall


length of more than
Hardwood wedges 38'-6" are shipped in
(supplied by others) two sections.

Dry sand tightly tamped


Foundation: 3'-6"

after aligning pole


3'-0"

Each section matched marked


Foundation sleeve -16 ga for field assembly. Exposed
hot dip galvanized steel portion of jam sleeve must
Steel centering wedges be well lubricated prior to
assembly.
1/4" Steel base plate
1-1/2" maximum shop
6" gap allowed for field fitting
1/4" Steel support plate (ram for tight joint)
welded to grounding spike 8"
12"

16"
30"
Filename: EC30 single sheave_revolving truck.ai
Project: Ground set tapered aluminum flagpole: ALLOY: 6063T6 EDER FLAG Date:
Location: Exposed height: 30'-0" Overall height: 33'-0" MANUFACTURING COMPANY Revision:
Architect: Ship in 1 section Butt diameter: 6" 1000 W. Rawson Avenue
Contractor Top diameter: 3-1/2" Wall thickness: .188" Oak Creek, WI 53154
Customer: Finish: 100 grit polish Job:

DIAGRAMS ARE GUIDELINES ONLY: Parts indicated may not be included with your pole.

You might also like