KEMBAR78
Ridge Esign Anual: 3rd Edition, First Release, November 2011 | PDF | Building Engineering | Structural Engineering
0% found this document useful (0 votes)
94 views43 pages

Ridge Esign Anual: 3rd Edition, First Release, November 2011

This document is the 3rd edition of the PCI Bridge Design Manual. It provides information on standard precast concrete bridge products that meet AASHTO and PCI specifications. These include solid and voided slab beams, box beams, I-beams, bulb-tees, deck bulb-tees, and double tee beams. For each type, the document gives dimensional details, geometric properties, and standard weights. It also includes information on standard segments for span-by-span and balanced cantilever bridge construction.

Uploaded by

Sahil Chaudhary
Copyright
© © All Rights Reserved
We take content rights seriously. If you suspect this is your content, claim it here.
Available Formats
Download as PDF, TXT or read online on Scribd
0% found this document useful (0 votes)
94 views43 pages

Ridge Esign Anual: 3rd Edition, First Release, November 2011

This document is the 3rd edition of the PCI Bridge Design Manual. It provides information on standard precast concrete bridge products that meet AASHTO and PCI specifications. These include solid and voided slab beams, box beams, I-beams, bulb-tees, deck bulb-tees, and double tee beams. For each type, the document gives dimensional details, geometric properties, and standard weights. It also includes information on standard segments for span-by-span and balanced cantilever bridge construction.

Uploaded by

Sahil Chaudhary
Copyright
© © All Rights Reserved
We take content rights seriously. If you suspect this is your content, claim it here.
Available Formats
Download as PDF, TXT or read online on Scribd
You are on page 1/ 43

BRIDGE DESIGN MANUAL

3rd Edition, First Release, November 2011


Version Compressed for ePub

MNL-133-11
1st Edition, First Printing, 1997
2nd Edition, First Printing, 2003
PCI BRIDGE DESIGN MANUAL_____________________________________________________________________________ APPENDIX B
AASHTO/PCI STANDARD PRODUCTS

AASHTO Solid and Voided Slab Beams ........................................................................................................................................................... 3


AASHTO Box Beams ................................................................................................................................................................................................ 5
AASHTO I-Beams ...................................................................................................................................................................................................... 7
AASHTO-PCI Bulb-Tees ......................................................................................................................................................................................... 9
Deck Bulb-Tees ....................................................................................................................................................................................................... 11
Double Tee Beams ................................................................................................................................................................................................ 13
AASHTO-PCI-ASBI Standard Segment For Span-By-Span Construction....................................................................................... 15
AASHTO-PCI-ASBI Standard Segment For Balanced Cantilever Construction .......................................................................... 17

Appendix B - 1 (Nov 11)


PCI BRIDGE DESIGN MANUAL_____________________________________________________________________________ APPENDIX B
AASHTO/PCI STANDARD PRODUCTS

This page intentionally left blank

Appendix B - 2 (Nov 11)


PCI BRIDGE DESIGN MANUAL_____________________________________________________________________________ APPENDIX B
AASHTO/PCI STANDARD PRODUCTS

AASHTO Solid and Voided Slab Beams

Dimension (inches)
Type L H L1 L2 No. of Voids D1 D2
SI-36 36 12 - - 0 - -
SII-36 36 15 10.5 7.5 2 8 -
SIII-36 36 18 10.5 7.5 2 10 -
SIV-36 36 21 10 8 2 12 -
SI-48 48 12 - - 0 - -
SII-48 48 15 10 14 3 8 8
SIII-48 48 18 9.5 14.5 3 10 10
SIV-48 48 21 10 14 3 12 10

Properties

Type Area ybottom Inertia Weight


in.2 in. in.4 kip/ft
SI-36 432 6 5,184 0.45
SII-36 439 7.5 9,725 0.457
SIII-36 491 9 16,514 0.511
SIV-36 530 10.5 25,747 0.552
SI-48 576 6 6,912 0.6
SII-48 569 7.5 12,897 0.593
SIII-48 628 9 21,855 0.654
SIV-48 703 10.5 34,517 0.732

Appendix B - 3 (Nov 11)


PCI BRIDGE DESIGN MANUAL_____________________________________________________________________________ APPENDIX B
AASHTO/PCI STANDARD PRODUCTS

AASHTO Solid and Voided Slab Beams

Appendix B - 4 (Nov 11)


PCI BRIDGE DESIGN MANUAL_____________________________________________________________________________ APPENDIX B
AASHTO/PCI STANDARD PRODUCTS

AASHTO Box Beams

Dimensions:
Type W H
BI-36 36 27
BI-48 48 27
BII-36 36 33
BII-48 48 33
BIII-36 36 39
BIII-48 48 39
BIV-36 36 42
BIV-48 48 42

Properties:
Area ybottom Inertia Weight
Type in.2 in. in.4 kip/ft
BI-36 560.5 13.35 50,334 0.584
BI-48 692.5 13.37 65,941 0.721
BII-36 620.5 16.29 85,153 0.646
BII-48 752.5 16.33 110,499 0.784
BIII-36 680.5 19.25 131,145 0.709
BIII-48 812.5 19.29 168,367 0.846
BIV-36 710.5 20.73 158,644 0.74
BIV-48 842.5 20.78 203,088 0.878

Appendix B - 5 (Nov 11)


PCI BRIDGE DESIGN MANUAL_____________________________________________________________________________ APPENDIX B
AASHTO/PCI STANDARD PRODUCTS

AASHTO Box Beams

Appendix B - 6 (Nov 11)


PCI BRIDGE DESIGN MANUAL_____________________________________________________________________________ APPENDIX B
AASHTO/PCI STANDARD PRODUCTS

AASHTO I-Beams

Dimensions (inches)
Type D1 D2 D3 D4 D5 D6 B1 B2 B3 B4 B5 B6
I 28 4 0 3 5 5 12 16 6 3 0 5
II 36 6 0 3 6 6 12 18 6 3 0 6
III 45 7 0 4.5 7.5 7 16 22 7 4.5 0 7.5
IV 54 8 0 6 9 8 20 26 8 6 0 9
V 63 5 3 4 10 8 42 28 8 4 13 10
VI 72 5 3 4 10 8 42 28 8 4 13 10

Properties:
Area ybottom Inertia Weight
Type in.2 in. in.4 kip/ft
I 276 12.59 22,750 0.287
II 369 15.83 50,980 0.384
III 560 20.27 125,390 0.583
IV 789 24.73 260,730 0.822
V 1,013 31.96 521,180 1.055
VI 1,085 36.38 733,320 1.13

Appendix B - 7 (Nov 11)


PCI BRIDGE DESIGN MANUAL_____________________________________________________________________________ APPENDIX B
AASHTO/PCI STANDARD PRODUCTS

AASHTO I-Beams

Appendix B - 8 (Nov 11)


PCI BRIDGE DESIGN MANUAL_____________________________________________________________________________ APPENDIX B
AASHTO/PCI STANDARD PRODUCTS

AASHTO-PCI Bulb-Tees

Properties
H Hw Area Inertia ybottom Weight
Type in. in. in.2 in.4 in. kip/ft
BT-54 54 36 659 268,077 27.63 0.686
BT-63 63 45 713 392,638 32.12 0.743
BT-72 72 54 767 545,894 36.6 0.799

Appendix B - 9 (Nov 11)


PCI BRIDGE DESIGN MANUAL_____________________________________________________________________________ APPENDIX B
AASHTO/PCI STANDARD PRODUCTS

AASHTO-PCI Bulb-Tees

Appendix B - 10 (Nov 11)


PCI BRIDGE DESIGN MANUAL_____________________________________________________________________________ APPENDIX B
AASHTO/PCI STANDARD PRODUCTS

Deck Bulb-Tees

Dimensions and Properties


H Hw W Area Inertia ybottom Weight
in. in. in. in.2 in.4 in. kip/ft
48 677 101,540 21.12 0.75
35 15 72 823 116,071 23.04 0.91
96 967 126,353 24.37 1.07
48 785 294,350 31.71 0.87
53 33 72 931 335,679 34.56 1.03
96 1,075 365,827 36.63 1.19
48 857 490,755 38.55 0.95
65 45 72 1,003 559,367 41.95 1.11
96 1,147 610,435 44.46 1.27

Appendix B - 11 (Nov 11)


PCI BRIDGE DESIGN MANUAL_____________________________________________________________________________ APPENDIX B
AASHTO/PCI STANDARD PRODUCTS

Deck Bulb-Tees

Appendix B - 12 (Nov 11)


PCI BRIDGE DESIGN MANUAL_____________________________________________________________________________ APPENDIX B
AASHTO/PCI STANDARD PRODUCTS

Double Tee Beams

Light Sections
W H T A C E Area Inertia ybottom Weight
ft in. in. in. n. in. in.2 in.4 in. kip/ft
5 27 5 4.5 8 36 575 33,740 18.6 0.599
6 23 5 4.5 6.5 36 558 21,366 16.61 0.582
6 27 5 4.5 8 36 635 35,758 19.15 0.662
8 27 5 3.75 5.75 48 689 32,888 20.64 0.718
8 35 5 3.75 6.5 48 787 72,421 26.2 0.82

Heavy Sections
W H T A C E Area Inertia ybottom Weight
ft in. in. in. in. in. in.2 in.4 in. kip/ft
5 36 6 6 8 30 780 90,286 23.69 0.812
6 35 5 6 9.75 48 840 90,164 23.3 0.876
7 35 5 6 9.75 48 900 95,028 23.91 0.938
8 35 5 6 9.75 48 960 99,299 24.45 1.001
6 27 5 7 9.75 48 731 45,084 18.09 0.761
7 27 5 7 9.75 48 791 47,486 18.58 0.824
8 27 5 7 9.75 48 851 49,566 19 0.886
6 21 5 7.75 9.75 48 644 22,720 14.11 0.671
7 21 5 7.75 9.75 48 704 23,903 14.48 0.733
8 21 5 7.75 9.75 48 764 24,920 14.8 0.796
.

Appendix B - 13 (Nov 11)


PCI BRIDGE DESIGN MANUAL_____________________________________________________________________________ APPENDIX B
AASHTO/PCI STANDARD PRODUCTS

Double Tee Beams

Light Sections

Heavy Sections

Appendix B - 14 (Nov 11)


AASHTO-PCI-ASBI Standard Segment For Span-By-Span Construction

Appendix B - 15
Deck Width ‘A’ Area Wt/3,000 mm Ix Yt
mm mm mm2 kN m4 mm

8,400 0 4,916,000 360 2.967 799


8,700 150 4,984,000 365 2.999 790
9,000 300 5,051,000 370 3.030 781
9,300 450 5,119,000 375 3.060 772
9.600 600 5,186,000 380 3.089 763
9,900 750 5,254,000 385 3.118 755
10,200 900 5,321,000 390 3.145 747
10,500 1,050 5,389,000 394 3.172 739
10,800 1,200 5,456,000 399 3.199 731
11,000 1,350 5,524,000 404 3.225 723
11,400 1,500 5,591,000 409 3.250 716
PCI BRIDGE DESIGN MANUAL_____________________________________________________________________________ APPENDIX B
AASHTO/PCI STANDARD PRODUCTS

(Nov 11)
AASHTO-PCI-ASBI Standard Segment For Span-By-Span Construction

Appendix B - 16
Deck Width ‘A’ Area Wt/3,000 mm Ix Yt
mm mm mm2 kN m4 mm

11,800 0 6,050,000 443 3.685 776


11,100 150 6,117,000 448 3.715 769
11,400 300 6,185,000 453 3.744 762
11,700 450 6,252,000 458 3.772 755
12,000 600 6,320,000 463 3.800 748
12,300 750 6,387,000 468 3.827 741
12,600 900 6,455,000 472 3.854 734
12,900 1,050 6,522,000 477 3.880 728
13,200 1,200 6,590,000 482 3.906 722
13,500 1,350 6,657,000 487 3.931 715
PCI BRIDGE DESIGN MANUAL_____________________________________________________________________________ APPENDIX B
AASHTO/PCI STANDARD PRODUCTS

(Nov 11)
AASHTO-PCI-ASBI Standard Segment For Balanced Cantilever Construction

Appendix B - 17
Deck Width ‘A’ Area Wt/3,000 mm Ix Yt
mm mm mm2 kN m4 mm
8,400 0 5,177,000 379 4.064 908
8,700 150 5,245,000 384 4.107 898
9,000 300 5,312,000 389 4.148 888
9,300 450 5,380,000 394 4.188 878
9.600 600 5,447,000 399 4.228 869
9,900 750 5,515,000 404 4.266 859
10,200 900 5,582,000 409 4.304 850
10,500 1,050 5,650,000 404 4.340 841
10,800 1,200 5,717,000 419 4.376 833
11,000 1,350 5,785,000 423 4.411 824
11,400 1,500 5,852,000 428 4.445 816
PCI BRIDGE DESIGN MANUAL_____________________________________________________________________________ APPENDIX B
AASHTO/PCI STANDARD PRODUCTS

(Nov 11)
AASHTO-PCI-ASBI Standard Segment For Balanced Cantilever Construction

Appendix B - 18
Deck Width ‘A’ Area Wt/3,000 mm Ix Yt
mm mm mm2 kN m4 mm
10,800 0 6,327,000 463 5.045 882
11,100 150 6,395,000 468 5.085 874
11,400 300 6,462,000 473 5.124 866
11,700 450 6,530,000 478 5.162 858
12,000 600 6,597,000 483 5.199 851
12,300 750 6,665,000 488 5.236 843
12,600 900 6,732,000 493 5.272 836
12,900 1,050 6,800,000 498 5.307 829
13,200 1,200 6,867,000 503 5.342 821
13,500 1,350 6,935,000 508 5.376 815
PCI BRIDGE DESIGN MANUAL_____________________________________________________________________________ APPENDIX B
AASHTO/PCI STANDARD PRODUCTS

(Nov 11)
PCI BRIDGE DESIGN MANUAL_____________________________________________________________________________ APPENDIX C
PCI REGIONAL PRODUCTS
Table of Contents

NEXT D BEAMS .............................................................................................................................................................................. Appendix C - 3


NEXT F BEAMS .............................................................................................................................................................................. Appendix C - 4
PCI Zone 6 (SE Region) Spliced U-Girders ........................................................................................................................ Appendix C - 5

Appendix C - 1 (Nov 11)


PCI BRIDGE DESIGN MANUAL_____________________________________________________________________________ APPENDIX C
PCI REGIONAL PRODUCTS
Next D Beams

Appendix C - 2 (Nov 11)


PCI BRIDGE DESIGN MANUAL_____________________________________________________________________________ APPENDIX C
PCI REGIONAL PRODUCTS
Next D Beams

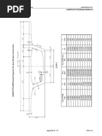
NEXT D BEAMS

DIMENSION A (MAXIMUM 10’-0”) FOR 10’-8” BEAM SPACING


DIMENSION A (MAXIMUM 8’-0”) FOR 8’-8” BEAM SPACING

A/2 A/2
DECK FINISH
1’-3” 1’-3”

8” Yt

C.G.
B R=4” (TYP)
Yb

12
5’-0”

0.375

C C ¾“ CHAMFER (TYP)

Base
Beam Beam
Beam Stem Area I Yb Yt St Sb Weight
Width Depth
Designation Width IN2 IN4 Inches Inches IN3 IN3 PLF
Inches Inches
Inches
A B C D E
Minimum Width Beams
Next 40 D 96.00 40.00 13.00 1666 238059 25.47 14.54 16378 9348 1735
Next 36 D 96.00 36.00 13.25 1562 176674 23.03 12.97 13624 7671 1627
Next 32 D 96.00 32.00 13.50 1455 126111 20.57 11.43 11033 6131 1516
Next 28 D 96.00 28.00 13.75 1346 85651 18.06 9.94 8620 4742 1402
Maximum Width Beams
Next 40 D 120.00 40.00 13.00 1858 258171 26.55 13.45 19201 9722 1935
Next 36 D 120.00 36.00 13.25 1754 191453 24.01 11.99 15973 7973 1827
Next 32 D 120.00 32.00 13.50 1647 136502 21.44 10.57 12920 6368 1716
Next 28 D 120.00 28.00 13.75 1538 92597 18.80 9.20 10069 4924 1602

Appendix C - 3 (Nov 11)


PCI BRIDGE DESIGN MANUAL_____________________________________________________________________________ APPENDIX C
AASHTO/PCI REGIONAL PRODUCTS
Next F Beams

NEXT F BEAMS

DIMENSION A (MAXIMUM 11’-11½”) FOR 12’-0” BEAM SPACING


DIMENSION A (MAXIMUM 7’-11½”)) FOR 8’-0” BEAM SPACING

A/2 A/2

1’-3” RAKE 1’-3”


FINISH
4”

Yt
C.G. ¼“ DRAFT ON EDGE
B R=4” (TYP)

Yb

12
5’-0”

0.375

C C ¾“ CHAMFER (TYP)

Base
Beam Beam
Beam Stem Area I Yb Yt St Sb Weight
Width Depth
Designation Width IN2 IN4 Inches Inches IN3 IN3 PLF
Inches Inches
Inches
A B C D E
Minimum Width Beams
Next 36 F 95.50 36.00 13.00 1287 160240 21.77 14.23 11261 7361 1341
Next 32 F 95.50 32.00 13.25 1182 115813 19.51 12.49 9272 5936 1231
Next 28 F 95.50 28.00 13.50 1075 79901 17.24 10.76 7426 4635 1120
Next 24 F 95.50 24.00 13.75 966 51823 14.95 9.05 5726 3466 1006
Maximum Width Beams
Next 36 F 143.50 36.00 13.00 1479 185525 23.36 12.64 14678 7942 1541
Next 32 F 143.50 32.00 13.25 1374 134258 20.98 11.02 12183 6399 1431
Next 28 F 143.50 28.00 13.50 1267 92661 18.57 9.43 9826 4990 1320
Next 24 F 143.50 24.00 13.75 1158 60045 16.12 7.88 7620 3725 1206

Appendix C - 4 (Nov 11)


PCI BRIDGE DESIGN MANUAL_____________________________________________________________________________ APPENDIX C
AASHTO/PCI REGIONAL PRODUCTS
PCI Zone 6 (SE Region) Spliced U-Girders

PCI Zone 6 (SE Region) Spliced U-Girders

Appendix C - 5 (Nov 11)


PCI BRIDGE DESIGN MANUAL_____________________________________________________________________________ APPENDIX C
AASHTO/PCI REGIONAL PRODUCTS
PCI Zone 6 (SE Region) Spliced U-Girders

PCI Zone 6 (SE Region) Spliced U-Girders

Appendix C - 6 (Nov 11)


PCI BRIDGE DESIGN MANUAL_____________________________________________________________________________ APPENDIX C
AASHTO/PCI REGIONAL PRODUCTS
PCI Zone 6 (SE Region) Spliced U-Girders

PCI Zone 6 (SE Region) Spliced U-Girders

Appendix C - 7 (Nov 11)


PCI BRIDGE DESIGN MANUAL_____________________________________________________________________________ APPENDIX C
AASHTO/PCI REGIONAL PRODUCTS
PCI Zone 6 (SE Region) Spliced U-Girders

PCI Zone 6 (SE Region) Spliced U-Girders

Appendix C - 8 (Nov 11)


PCI BRIDGE DESIGN MANUAL_____________________________________________________________________________ APPENDIX C
AASHTO/PCI REGIONAL PRODUCTS
PCI Zone 6 (SE Region) Spliced U-Girders

PCI Zone 6 (SE Region) Spliced U-Girders

Appendix C - 9 (Nov 11)


PCI BRIDGE DESIGN MANUAL_____________________________________________________________________________ APPENDIX C
AASHTO/PCI REGIONAL PRODUCTS
PCI Zone 6 (SE Region) Spliced U-Girders

PCI Zone 6 (SE Region) Spliced U-Girders

Appendix C - 10 (Nov 11)


PCI BRIDGE DESIGN MANUAL_____________________________________________________________________________ APPENDIX C
AASHTO/PCI REGIONAL PRODUCTS
PCI Zone 6 (SE Region) Spliced U-Girders

PCI Zone 6 (SE Region) Spliced U-Girders

Appendix C - 11 (Nov 11)


PCI BRIDGE DESIGN MANUAL_____________________________________________________________________________ APPENDIX C
AASHTO/PCI REGIONAL PRODUCTS
PCI Zone 6 (SE Region) Spliced U-Girders

PCI Zone 6 (SE Region) Spliced U-Girders

Appendix C - 12 (Nov 11)


PCI BRIDGE DESIGN MANUAL_____________________________________________________________________________ APPENDIX C
AASHTO/PCI REGIONAL PRODUCTS
PCI Zone 6 (SE Region) Spliced U-Girders

PCI Zone 6 (SE Region) Spliced U-Girders

Appendix C - 13 (Nov 11)


PCI BRIDGE DESIGN MANUAL_____________________________________________________________________________ APPENDIX C
AASHTO/PCI REGIONAL PRODUCTS
PCI Zone 6 (SE Region) Spliced U-Girders

PCI Zone 6 (SE Region) Spliced U-Girders

Appendix C - 14 (Nov 11)


PCI BRIDGE DESIGN MANUAL_____________________________________________________________________________ APPENDIX C
AASHTO/PCI REGIONAL PRODUCTS
PCI Zone 6 (SE Region) Spliced U-Girders

PCI Zone 6 (SE Region) Spliced U-Girders

Appendix C - 15 (Nov 11)


PCI BRIDGE DESIGN MANUAL_____________________________________________________________________________ APPENDIX C
AASHTO/PCI REGIONAL PRODUCTS
PCI Zone 6 (SE Region) Spliced U-Girders

PCI Zone 6 (SE Region) Spliced U-Girders

Appendix C - 16 (Nov 11)


PCI BRIDGE DESIGN MANUAL_____________________________________________________________________________ APPENDIX C
AASHTO/PCI REGIONAL PRODUCTS
PCI Zone 6 (SE Region) Spliced U-Girders

PCI Zone 6 (SE Region) Spliced U-Girders

Appendix C - 17 (Nov 11)


PCI BRIDGE DESIGN MANUAL_____________________________________________________________________________ APPENDIX C
AASHTO/PCI REGIONAL PRODUCTS
PCI Zone 6 (SE Region) Spliced U-Girders

PCI Zone 6 (SE Region) Spliced U-Girders

Appendix C - 18 (Nov 11)


PCI BRIDGE DESIGN MANUAL_____________________________________________________________________________ APPENDIX C
AASHTO/PCI REGIONAL PRODUCTS
PCI Zone 6 (SE Region) Spliced U-Girders

PCI Zone 6 (SE Region) Spliced U-Girders

Appendix C - 19 (Nov 11)


PCI BRIDGE DESIGN MANUAL_____________________________________________________________________________ APPENDIX C
AASHTO/PCI REGIONAL PRODUCTS
PCI Zone 6 (SE Region) Spliced U-Girders

PCI Zone 6 (SE Region) Spliced U-Girders

Appendix C - 20 (Nov 11)


PCI BRIDGE DESIGN MANUAL_____________________________________________________________________________ APPENDIX C
AASHTO/PCI REGIONAL PRODUCTS
PCI Zone 6 (SE Region) Spliced U-Girders

PCI Zone 6 (SE Region) Spliced U-Girders

Appendix C - 21 (Nov 11)


PCI BRIDGE DESIGN MANUAL_____________________________________________________________________________ APPENDIX C
AASHTO/PCI REGIONAL PRODUCTS
PCI Zone 6 (SE Region) Spliced U-Girders

PCI Zone 6 (SE Region) Spliced U-Girders

Appendix C - 22 (Nov 11)


PCI BRIDGE DESIGN MANUAL_____________________________________________________________________________ APPENDIX C
AASHTO/PCI REGIONAL PRODUCTS
PCI Zone 6 (SE Region) Spliced U-Girders

PCI Zone 6 (SE Region) Spliced U-Girders

Appendix C - 23 (Nov 11)


PCI BRIDGE DESIGN MANUAL_____________________________________________________________________________ APPENDIX C
AASHTO/PCI REGIONAL PRODUCTS
PCI Zone 6 (SE Region) Spliced U-Girders

PCI Zone 6 (SE Region) Spliced U-Girders

Appendix C - 24 (Nov 11)

You might also like