KEMBAR78
Section Check During Lifting 1) - Section at Tapered End: 1 Layers 0 No's 10 F Bars | PDF | Bending | Stress (Mechanics)
0% found this document useful (0 votes)
168 views22 pages

Section Check During Lifting 1) - Section at Tapered End: 1 Layers 0 No's 10 F Bars

This document summarizes the flexural design checks of three sections of a concrete beam: 1) At the tapered end, the section is under-reinforced with a factored moment of 25 kN-m and a moment capacity of 233 kN-m. 2) At 0.1L from the support, this section is also under-reinforced with the same factored and capacity moments as the first section. 3) At the taper start, with 12 bars in 3 layers of reinforcement, this section has a higher steel ratio of 0.65% and is also under-reinforced with the design moment being less than the capacity.

Uploaded by

Rahul Suman
Copyright
© © All Rights Reserved
We take content rights seriously. If you suspect this is your content, claim it here.
Available Formats
Download as XLSX, PDF, TXT or read online on Scribd
0% found this document useful (0 votes)
168 views22 pages

Section Check During Lifting 1) - Section at Tapered End: 1 Layers 0 No's 10 F Bars

This document summarizes the flexural design checks of three sections of a concrete beam: 1) At the tapered end, the section is under-reinforced with a factored moment of 25 kN-m and a moment capacity of 233 kN-m. 2) At 0.1L from the support, this section is also under-reinforced with the same factored and capacity moments as the first section. 3) At the taper start, with 12 bars in 3 layers of reinforcement, this section has a higher steel ratio of 0.65% and is also under-reinforced with the design moment being less than the capacity.

Uploaded by

Rahul Suman
Copyright
© © All Rights Reserved
We take content rights seriously. If you suspect this is your content, claim it here.
Available Formats
Download as XLSX, PDF, TXT or read online on Scribd
You are on page 1/ 22

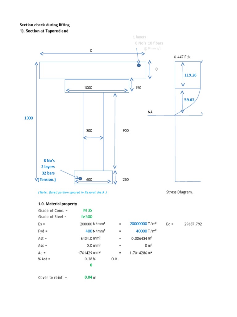
Section check during lifting

1). Section at Tapered end


1 layers
0 No's 10 f bars
0 @ 0 mm c/c

0.447 Fck

0
119.26

1000 150

59.63

NA
1300

300 900

8 No's
2 layers
32 bars
( Tension.) 600 250

( Note: flared portion ignored in flexural check ) Stress Diagram.

1.0. Material property


Grade of Conc. = M 35
Grade of Steel = fe 500
Es = 200000 N/mm2 = 20000000 T/m2 Ec = 29687.792
Fyd = 400 N/mm2 = 40000 T/m2
Ast = 6434.0 mm2 = 0.006434 m2
Asc = 0.0 mm2 = 0 m2
Ac = 1701429 mm2 = 1.7014286 m2
% Ast = 0.38 % O.K.
0

Cover to reinf. = 0.04 m


Tension Reinforcement placement
1st Bottom layer 5 No's 32 f @ 72 mm c/c @ 56 mm from bottom
2nd layer 3 No's 32 f @ ### c/c @ 120 mm from bottom
3rd layer 0 No's 32 f @ 0 mm c/c @ 184 mm from bottom
4th layer 0 No's 32 f @ 0 mm c/c @ 248 mm from bottom
5th layer 0 No's 32 f @ 0 mm c/c @ 312 mm from bottom
6th layer 0 No's 32 f @ 0 mm c/c @ 376 mm from bottom

Reinf. C.G. from Bottom 80 mm Max. Stress in Steel = 348


Max. Stress in Concrete = 8.2
2.0. Calculation of Neutral axis
Compression force= 0 + 2239026 + 0 + 0
Compression force= 2239026 N
Tension Force 2239026 N

X= 178.9 , Xumax = 805.0 => x < xumax, Under reinforced section

3.0. Bending capacity of section.


Factored moment = 25.00 T-m
Moment capacity = 233 T-m

2). Section at 0.1L from support


1 layers
0 No's 10 f bars
0 @ 0 mm c/c

0.447 Fck

0
119.26

1000 150

59.63

NA
1300

300 900

8 No's
2 layers
32 bars
( Tension.) 600 250

( Note: flared portion ignored in flexural check ) Stress Diagram.

1.0. Material property


Grade of Conc. = M 35
Grade of Steel = fe 500
Es = 200000 N/mm2 = 20000000 T/m2 Ec = 29687.792
Fyd = 400 N/mm 2
= 40000 T/m 2

Ast = 6434.0 mm2 = 0.006434 m2


Asc = 0.0 mm2 = 0 m2
Ac = 1589464 mm2 = 1.5894643 m2
% Ast = 0.40 % O.K.
0

Cover to reinf. = 0.04 m

Tension Reinforcement placement


1st Bottom layer 5 No's 32 f @ 72 mm c/c @ 56 mm from bottom
2nd layer 3 No's 32 f @ ### c/c @ 120 mm from bottom
3rd layer 0 No's 32 f @ 0 mm c/c @ 184 mm from bottom
4th layer 0 No's 32 f @ 0 mm c/c @ 248 mm from bottom
5th layer 0 No's 32 f @ 0 mm c/c @ 312 mm from bottom
6th layer 0 No's 32 f @ 0 mm c/c @ 376 mm from bottom

Reinf. C.G. from Bottom 80 mm Max. Stress in Steel = 348


Max. Stress in Concrete = 8.2
2.0. Calculation of Neutral axis
Compression force= 0 + 2239026 + 0 + 0
Compression force= 2239026 N
Tension Force 2239026 N

X= 178.9 , Xumax = 805.0 => x < xumax, Under reinforced section

3.0. Bending capacity of section.


Factored moment = 25.00 T-m
Moment capacity = 233 T-m

3). Section at Taper. Start


1 layers
0 No's 10 f bars
0 @ 0 mm c/c

0.447 Fck

0
304.64

1000 150

152.33

NA
1300

300 900

12 No's
3 layers
32 bars
( Tension.) 600 250

( Note: flared portion ignored in flexural check ) Stress Diagram.

1.0. Material property


Grade of Conc. = M 35
Grade of Steel = fe 500
Es = 200000 N/mm2 = 20000000 T/m2 Ec = 29687.792
Fyd = 400 N/mm 2
= 40000 T/m 2

Ast = 9651.0 mm2 = 0.009651 m2


Asc = 0.0 mm2 = 0 m2
Ac = 1477500 mm2 = 1.4775 m2
% Ast = 0.65 % O.K.
0

Cover to reinf. = 0.04 m

Tension Reinforcement placement


1st Bottom layer 5 No's 32 f @ 72 mm c/c @ 56 mm from bottom
2nd layer 5 No's 32 f @ 72 mm c/c @ 120 mm from bottom
3rd layer 2 No's 32 f @ 78 mm c/c @ 184 mm from bottom
4th layer 0 No's 32 f @ 0 mm c/c @ 248 mm from bottom
5th layer 0 No's 32 f @ 0 mm c/c @ 312 mm from bottom
6th layer 0 No's 32 f @ 0 mm c/c @ 376 mm from bottom

Reinf. C.G. from Bottom 104 mm Max. Stress in Steel = 348


Max. Stress in Concrete = 28.0
2.0. Calculation of Neutral axis
Compression force= 1011788 + 2346750 + 0 + 0
Compression force= 3358538 N
Tension Force 3358538 N

X= 457.0 , Xumax = 805.0 => x < xumax, Under reinforced section

3.0. Bending capacity of section.


Factored moment = 41.00 T-m
Moment capacity = 248 T-m

4). Section at 0.2 L


1 layers
0 No's 10 f bars
0 @ 0 mm c/c

0.447 Fck

0
304.64

1000 150

152.33

NA
1300

300 900

12 No's
3 layers
32 bars
( Tension.) 600 250
( Note: flared portion ignored in flexural check ) Stress Diagram.

1.0. Material property


Grade of Conc. = M 35
Grade of Steel = fe 500
Es = 200000 N/mm2 = 20000000 T/m2 Ec = 29687.792
Fyd = 400 N/mm 2
= 40000 T/m 2

Ast = 9651.0 mm2 = 0.009651 m2


Asc = 0.0 mm2 = 0 m2
Ac = 1477500 mm2 = 1.4775 m2
% Ast = 0.65 % O.K.
0

Cover to reinf. = 0.04 m

Tension Reinforcement placement


1st Bottom layer 5 No's 32 f @ 72 mm c/c @ 56 mm from bottom
2nd layer 5 No's 32 f @ 72 mm c/c @ 120 mm from bottom
3rd layer 2 No's 32 f @ 78 mm c/c @ 184 mm from bottom
4th layer 0 No's 32 f @ 0 mm c/c @ 248 mm from bottom
5th layer 0 No's 32 f @ 0 mm c/c @ 312 mm from bottom
6th layer 0 No's 32 f @ 0 mm c/c @ 376 mm from bottom

Reinf. C.G. from Bottom 104 mm Max. Stress in Steel = 348


Max. Stress in Concrete = 28.0
2.0. Calculation of Neutral axis
Compression force= 1011788 + 2346750 + 0 + 0
Compression force= 3358538 N
Tension Force 3358538 N

X= 457.0 , Xumax = 805.0 => x < xumax, Under reinforced section

3.0. Bending capacity of section.


Factored moment = 41.00 T-m
Moment capacity = 248 T-m

5). Section at 0.3 L


1 layers
0 No's 10 f bars
0 @ 0 mm c/c
0.447 Fck

0
354.34

1000 150

177.16

NA
1300

300 900

13 No's
3 layers
32 bars
( Tension.) 600 250

( Note: flared portion ignored in flexural check ) Stress Diagram.

1.0. Material property


Grade of Conc. = M 35
Grade of Steel = fe 500
Es = 200000 N/mm2 = 20000000 T/m2 Ec = 29687.792
Fyd = 400 N/mm 2
= 40000 T/m 2

2
Ast = 10455.2 mm = 0.0104552 m2
Asc = 0.0 mm2 = 0 m2
Ac = 1477500 mm2 = 1.4775 m2
% Ast = 0.71 % O.K.
0

Cover to reinf. = 0.04 m

Tension Reinforcement placement


1st Bottom layer 6 No's 32 f @ ### c/c @ 56 mm from bottom
2nd layer 5 No's 32 f @ 72 mm c/c @ 120 mm from bottom
3rd layer 2 No's 32 f @ 78 mm c/c @ 184 mm from bottom
4th layer 0 No's 32 f @ 0 mm c/c @ 248 mm from bottom
5th layer 0 No's 32 f @ 0 mm c/c @ 312 mm from bottom
6th layer 0 No's 32 f @ 0 mm c/c @ 376 mm from bottom

Reinf. C.G. from Bottom ### Max. Stress in Steel = 348


Max. Stress in Concrete = 35.7
2.0. Calculation of Neutral axis
Compression force= 1291667 + 2346750 + 0 + 0
Compression force= 3638417 N
Tension Force 3638417 N

X= 531.5 , Xumax = 805.0 => x < xumax, Under reinforced section

3.0. Bending capacity of section.


Factored moment = 53.00 T-m
Moment capacity = 243 T-m

6). Section at 0.4 L


1 layers
0 No's 10 f bars
0 @ 0 mm c/c

0.447 Fck

0
702.18

1000 150

351.1

NA
1300

300 900

20 No's
4 layers
32 bars
( Tension.) 600 250

( Note: flared portion ignored in flexural check ) Stress Diagram.


1.0. Material property
Grade of Conc. = M 35
Grade of Steel = fe 500
Es = 200000 N/mm2 = 20000000 T/m2 Ec = 29687.792
Fyd = 400 N/mm2 = 40000 T/m2
Ast = 16085.0 mm2 = 0.016085 m2
Asc = 0.0 mm2 = 0 m2
Ac = 1477500 mm2 = 1.4775 m2
% Ast = 1.09 % O.K.
0

Cover to reinf. = 0.04 m

Tension Reinforcement placement


1st Bottom layer 6 No's 32 f @ ### c/c @ 56 mm from bottom
2nd layer 6 No's 32 f @ ### c/c @ 120 mm from bottom
3rd layer 5 No's 32 f @ 12 mm c/c @ 184 mm from bottom
4th layer 3 No's 32 f @ ### c/c @ 248 mm from bottom
5th layer 0 No's 32 f @ 0 mm c/c @ 312 mm from bottom
6th layer 0 No's 32 f @ 0 mm c/c @ 376 mm from bottom

Reinf. C.G. from Bottom 136 mm Max. Stress in Steel = 348


Max. Stress in Concrete = 220.5
2.0. Calculation of Neutral axis
Compression force= 3250814 + 2346750 + 0 + 0
Compression force= 5597564 N
Tension Force 5597564 N

X= 1053.3 , Xumax = 805.0 => x > xumax Over reinforced section

3.0. Bending capacity of section.


Factored moment = 60.00 T-m
Moment capacity = 769 T-m

7). Section at L/2


1 layers
0 No's 10 f bars
0 @ 0 mm c/c

0.447 Fck

0
702.18

1000 150

351.1

NA
1300

300 900

20 No's
4 layers
32 bars
( Tension.) 600 250

( Note: flared portion ignored in flexural check ) Stress Diagram.

1.0. Material property


Grade of Conc. = M 35
Grade of Steel = fe 500
Es = 200000 N/mm2 = 20000000 T/m2 Ec = 29687.792
Fyd = 400 N/mm2 = 40000 T/m2
Ast = 16085.0 mm2 = 0.016085 m2
Asc = 0.0 mm2 = 0 m2
Ac = 1477500 mm2 = 1.4775 m2
% Ast = 1.09 % O.K.
0

Cover to reinf. = 0.04 m

Tension Reinforcement placement


1st Bottom layer 6 No's 32 f @ ### c/c @ 56 mm from bottom
2nd layer 6 No's 32 f @ ### c/c @ 120 mm from bottom
3rd layer 5 No's 32 f @ 12 mm c/c @ 184 mm from bottom
4th layer 3 No's 32 f @ ### c/c @ 248 mm from bottom
5th layer 0 No's 32 f @ 0 mm c/c @ 312 mm from bottom
6th layer 0 No's 32 f @ 0 mm c/c @ 376 mm from bottom
Reinf. C.G. from Bottom 136 mm Max. Stress in Steel = 348
Max. Stress in Concrete = 220.5
2.0. Calculation of Neutral axis
Compression force= 3250814 + 2346750 + 0 + 0
Compression force= 5597564 N
Tension Force 5597564 N

X= 1053.3 , Xumax = 805.0 => x > xumax Over reinforced section

3.0. Bending capacity of section.


Factored moment = 63.00 T-m
Moment capacity = 769 T-m
15.645 N/mm2
0.447 (Fck) 0.0035

Xumax
143.1145 805.0
### ( 0.8* x )
0

495.01

Equivalent rect. 0.002+ (0.87*Fy /Es )


Stress Diagram maximum Strain diagram

0.0003

N/mm2

###
1121.1
from bottom
from bottom
from bottom
from bottom
from bottom
from bottom

N/mm2 0.002
2
N/mm Actual Strain Diagram

O.K.

15.645 N/mm2
0.447 (Fck) 0.0035

Xumax
143.1145 805.0
### ( 0.8* x )
0

495.01
Equivalent rect. 0.002+ (0.87*Fy /Es )
Stress Diagram maximum Strain diagram

0.0003

N/mm2

###

1121.1
from bottom
from bottom
from bottom
from bottom
from bottom
from bottom

N/mm2 0.002
N/mm2 Actual Strain Diagram

O.K.
15.645 N/mm2
0.447 (Fck) 0.0035

Xumax
365.5723 805.0
### ( 0.8* x )
0

495.01

Equivalent rect. 0.002+ (0.87*Fy /Es )


Stress Diagram maximum Strain diagram

0.0009

N/mm2

###

843.0
from bottom
from bottom
from bottom
from bottom
from bottom
from bottom

N/mm2 0.002
N/mm2 Actual Strain Diagram

O.K.

15.645 N/mm2
0.447 (Fck) 0.0035

Xumax
365.5723 805.0
### ( 0.8* x )
0

495.01
Equivalent rect. 0.002+ (0.87*Fy /Es )
Stress Diagram maximum Strain diagram

0.0009

N/mm2

###

843.0
from bottom
from bottom
from bottom
from bottom
from bottom
from bottom

N/mm2 0.002
N/mm2 Actual Strain Diagram

O.K.

15.645 N/mm2
0.447 (Fck) 0.0035

Xumax
425.2033 805.0
### ( 0.8* x )
0

495.01

Equivalent rect. 0.002+ (0.87*Fy /Es )


Stress Diagram maximum Strain diagram

0.0012

N/mm2

###

768.5
from bottom
from bottom
from bottom
from bottom
from bottom
from bottom

N/mm2 0.002
N/mm2 Actual Strain Diagram

O.K.

15.645 N/mm2
0.447 (Fck) 0.0035

Xumax
842.6205 805.0
### ( 0.8* x )
0

495.01

Equivalent rect. 0.002+ (0.87*Fy /Es )


Stress Diagram maximum Strain diagram

0.0074

N/mm2

###

246.7
from bottom
from bottom
from bottom
from bottom
from bottom
from bottom

N/mm2 0.002
2
N/mm Actual Strain Diagram

O.K.

15.645 N/mm2
0.447 (Fck) 0.0035
Xumax
842.6205 805.0
### ( 0.8* x )
0

495.01

Equivalent rect. 0.002+ (0.87*Fy /Es )


Stress Diagram maximum Strain diagram

0.0074

N/mm2

###

246.7
from bottom
from bottom
from bottom
from bottom
from bottom
from bottom
N/mm2 0.002
2
N/mm Actual Strain Diagram

O.K.

You might also like