KEMBAR78
2F Framing Plan Foundation Plan Roof Framing Plan: B C D D C B | PDF | Business
0% found this document useful (0 votes)
213 views1 page

2F Framing Plan Foundation Plan Roof Framing Plan: B C D D C B

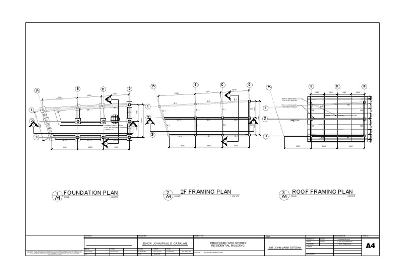
This document contains a diagram of a building structure with various beams, purlins, and rafters labeled with their dimensions. The structure has columns labeled A through D that are 3600mm or 5100mm tall. Beams labeled B and B' span between the columns, and are made of 50mm x 150mm or 50mm x 100mm materials. Purlins labeled B-1 that are 1mm thick run between the beams. Rafters also span the structure and are labeled RB.
Copyright
© © All Rights Reserved
We take content rights seriously. If you suspect this is your content, claim it here.
Available Formats
Download as PDF, TXT or read online on Scribd
0% found this document useful (0 votes)
213 views1 page

2F Framing Plan Foundation Plan Roof Framing Plan: B C D D C B

This document contains a diagram of a building structure with various beams, purlins, and rafters labeled with their dimensions. The structure has columns labeled A through D that are 3600mm or 5100mm tall. Beams labeled B and B' span between the columns, and are made of 50mm x 150mm or 50mm x 100mm materials. Purlins labeled B-1 that are 1mm thick run between the beams. Rafters also span the structure and are labeled RB.
Copyright
© © All Rights Reserved
We take content rights seriously. If you suspect this is your content, claim it here.
Available Formats
Download as PDF, TXT or read online on Scribd
You are on page 1/ 1

B C D B D

A A C
B C D
A 3600
4000
1940 1940 1940 1940
4000 5100

B'
3600

340 700
5100 50mm x 150mm (2"x6")

B'
B-1 1mm THK C PURLINS
B-1
B-1
RB

700
50mm x 100mm (2"x4")
1 1
1mm THK C PURLINS RB

2450
WF-1
B-1
1 WF-1 B-1 B-1

700
B-1 RB RB

2450
WF-1 WF-1

700
WF-1 RAFTER RAFTER RAFTER

4900
2 2

4900
B-1 B-1 B-1
2 A' A'

700
A' A'
4300

B-1 B-1

2450
100mm THK SLAB ON B-1 B-1 RB

700
RB
FILL WITH 10mm Ø BARSWF-1

2450
WF-1
0.60m O.C.

700
3 3

700 340
B-1 B-1
3 B-1
RB RB
WF-1 WF-1 WF-1

B'
B'

3800 3800 3800 3800 3800 3800


3800 3800 3800

1 FOUNDATION PLAN 2 2F FRAMING PLAN 3 ROOF FRAMING PLAN


A4 SCALE: 1:100 MTS A4 SCALE: 1:100 MTS
A4 SCALE: 1:100 MTS

ARCHITECT ENGINEER PROJECT TITLE OWNER SHEET CONTENTS SHEET NO.


DESIGNED BY jpcatalan 1. FOUNDATION PLAN
CADD BY jpcatalan 2. 2ND FLR FRAMING PLAN
ENGR. JOHN PAUL D. CATALAN PROPOSED TWO STOREY
A4
CHECKED BY 3. ROOF FRAMING PLAN
RESIDENTIAL BUILDING FILENAME
REG. NO. PTR NO. REG. NO. 0157767 PTR NO.
MR. JOHN MARK ESTEBAN
IMPORTANT: THESE DRAWINGS, AS INSTRUMENTS OF SERVICE, ARE THE PROPERTY AND DOCUMENTS OF THE
ARCHITECT. IT SHALL BE UNLAWFUL FOR ANY PERSON, WITHOUT THE WRITTEN CONSENT OF THE ARCHITECT DATE ISSUED PLACE ISSUED DATE ISSUED DEC. 13, 2017 PLACE ISSUED STA. MARIA, BUL.
OF THE ARCHITECT OR AUTHOR OF SAID DOCUMENTS, TO DUPLICATE OR COPY SAID DOCUMENTS. LOCATION: STA.CRUZ, STA. MARIA, BULACAN
[R.A. 545 SEC. 25 (4)] P.D. 40 TIN TIN 723-891-721 DATE PRINTED

You might also like