KEMBAR78
Calculate Size of Contactor, Fuse, C.B, O/L of DOL Starter | PDF | Electric Motor | Relay
0% found this document useful (0 votes)
1K views13 pages

Calculate Size of Contactor, Fuse, C.B, O/L of DOL Starter

This document provides calculations to determine the proper sizing of contactors, fuses, circuit breakers, and overload relays for a direct on line (DOL) starter for a 5HP, 415V, 3-phase induction motor. It includes calculations for motor torque, current draw at full load and locked rotor, as well as sizing charts and formulas to determine the maximum ratings for time delay fuses, instantaneous and inverse trip circuit breakers, and overload relay settings based on the motor's full load current. Contactor sizing is also addressed based on the application and full load current.

Uploaded by

Manish Kaushik
Copyright
© © All Rights Reserved
We take content rights seriously. If you suspect this is your content, claim it here.
Available Formats
Download as DOCX, PDF, TXT or read online on Scribd
0% found this document useful (0 votes)
1K views13 pages

Calculate Size of Contactor, Fuse, C.B, O/L of DOL Starter

This document provides calculations to determine the proper sizing of contactors, fuses, circuit breakers, and overload relays for a direct on line (DOL) starter for a 5HP, 415V, 3-phase induction motor. It includes calculations for motor torque, current draw at full load and locked rotor, as well as sizing charts and formulas to determine the maximum ratings for time delay fuses, instantaneous and inverse trip circuit breakers, and overload relay settings based on the motor's full load current. Contactor sizing is also addressed based on the application and full load current.

Uploaded by

Manish Kaushik
Copyright
© © All Rights Reserved
We take content rights seriously. If you suspect this is your content, claim it here.
Available Formats
Download as DOCX, PDF, TXT or read online on Scribd
You are on page 1/ 13

Calculate Size of Contactor, Fuse, C.

B, Over Load Relay of


DOL Starter
JUNE 2, 2013 60 COMMENTS

Calculate Size of Contactor, Fuse, C.B, O/L of DOL Starter


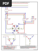
 Calculate Size of each Part of DOL starter for The System Voltage 415V ,5HP Three Phase House hold
Application Induction Motor ,Code A, Motor efficiency 80%,Motor RPM 750 ,Power Factor 0.8 , Overload Relay of
Starter is Put before Motor.
Basic Calculation of Motor Torque & Current:
 Motor Rated Torque (Full Load Torque) =5252xHP/RPM
 Motor Rated Torque (Full Load Torque) =5252×5/750=35 lb-ft.
 Motor Rated Torque (Full Load Torque) =9500xKW/RPM
 Motor Rated Torque (Full Load Torque) =9500x(5×0.746)/750 =47 Nm
 If Motor Capacity is less than 30 KW than Motor Starting Torque is 3xMotor Full Load Current or 2X Motor Full
Load Current.
 Motor Starting Torque=3xMotor Full Load Current.
 Motor Starting Torque==3×47=142Nm.
 Motor Lock Rotor Current =1000xHPx figure from below Chart/1.732×415

Locked Rotor Current


Code Min Max
A 1 3.14
B 3.15 3.54
C 3.55 3.99
D 4 4.49
E 4.5 4.99
F 5 2.59
G 2.6 6.29
H 6.3 7.09
I 7.1 7.99
K 8 8.99
L 9 9.99
M 10 11.19
N 11.2 12.49
P 12.5 13.99
R 14 15.99
S 16 17.99
T 18 19.99
U 20 22.39
V 22.4
 As per above chart Minimum Locked Rotor Current =1000x5x1/1.732×415=7 Amp
 Maximum Locked Rotor Current =1000x5x3.14/1.732×415=22 Amp.
 Motor Full Load Current (Line) =KWx1000/1.732×415
 Motor Full Load Current (Line) = (5×0.746)x1000/1.732×415=6 Amp.
 Motor Full Load Current (Phase)=Motor Full Load Current (Line)/1.732
 Motor Full Load Current (Phase)==6/1.732=4Amp
 Motor Starting Current =6 to 7xFull Load Current.
 Motor Starting Current (Line)=7×6=45 Amp
(1) Size of Fuse:

Fuse as per NEC 430-52


Type of Motor Time Delay Fuse Non-Time Delay Fuse
Single Phase 300% 175%
3 Phase 300% 175%
Synchronous 300% 175%
Wound Rotor 150% 150%
Direct Current 150% 150%
 Maximum Size of Time Delay Fuse =300% x Full Load Line Current.
 Maximum Size of Time Delay Fuse =300%x6= 19 Amp.
 Maximum Size of Non Time Delay Fuse =1.75% x Full Load Line Current.
 Maximum Size of Non Time Delay Fuse=1.75%6=11 Amp.
(2) Size of Circuit Breaker:

Circuit Breaker as per NEC 430-52


Type of Motor Instantaneous Trip Inverse Time
Single Phase 800% 250%
3 Phase 800% 250%
Synchronous 800% 250%
Wound Rotor 800% 150%
Direct Current 200% 150%
 Maximum Size of Instantaneous Trip Circuit Breaker =800% x Full Load Line Current.
 Maximum Size of Instantaneous Trip Circuit Breaker =800%x6= 52 Amp.
 Maximum Size of Inverse Trip Circuit Breaker =250% x Full Load Line Current.
 Maximum Size of Inverse Trip Circuit Breaker =250%x6= 16 Amp.
(3) Thermal over Load Relay:
 Thermal over Load Relay (Phase):
 Min Thermal Over Load Relay setting =70%xFull Load Current(Phase)
 Min Thermal Over Load Relay setting =70%x4= 3 Amp
 Max Thermal Over Load Relay setting =120%xFull Load Current(Phase)
 Max Thermal Over Load Relay setting =120%x4= 4 Amp
 Thermal over Load Relay (Phase):
 Thermal over Load Relay setting =100%xFull Load Current (Line).
 Thermal over Load Relay setting =100%x6= 6 Amp
(4) Size and Type of Contactor:

Application Contactor Making Cap


Non-Inductive or Slightly Inductive ,Resistive Load AC1 1.5
Slip Ring Motor AC2 4
Squirrel Cage Motor AC3 10
Rapid Start / Stop AC4 12
Switching of Electrical Discharge Lamp AC5a 3
Switching of Electrical Incandescent Lamp AC5b 1.5
Switching of Transformer AC6a 12
Switching of Capacitor Bank AC6b 12
Slightly Inductive Load in Household or same type load AC7a 1.5
Motor Load in Household Application AC7b 8
Hermetic refrigerant Compressor Motor with Manual
AC8a 6
O/L Reset
Hermetic refrigerant Compressor Motor with Auto O/L
AC8b 6
Reset
Control of Restive & Solid State Load with opto
AC12 6
coupler Isolation
Control of Restive Load and Solid State with T/C
AC13 10
Isolation
Control of Small Electro Magnetic Load ( <72VA) AC14 6
Control of Small Electro Magnetic Load ( >72VA) AC15 10
 As per above Chart
 Type of Contactor= AC7b
 Size of Main Contactor = 100%X Full Load Current (Line).
 Size of Main Contactor =100%x6 = 6 Amp.
 Making/Breaking Capacity of Contactor= Value above Chart x Full Load Current (Line).
 Making/Breaking Capacity of Contactor=8×6= 52 Amp.
Report this ad

Report this ad

Rate this:
18 Votes
Share this:

 Facebook
 Email
 Twitter
 LinkedIn

Loading...
FILED UNDER UNCATEGORIZED

About Jignesh.Parmar
Jignesh Parmar has completed M.Tech (Power System Control), B.E(Electrical). He is member of Institution of
Engineers (MIE) and CEng,India. Membership No:M-1473586.He has more than 16 years experience in
Transmission -Distribution-Electrical Energy theft detection-Electrical Maintenance-Electrical Projects (Planning-
Designing-Technical Review-coordination -Execution). He is Presently associate with one of the leading business
group as a Deputy Manager at Ahmedabad,India. He has published numbers of Technical Articles in “Electrical
Mirror”, “Electrical India”, “Lighting India”,”Smart Energy”, “Industrial Electrix”(Australian Power Publications)
Magazines. He is Freelancer Programmer of Advance Excel and design useful Excel base Electrical Programs as per
IS, NEC, IEC,IEEE codes. He is Technical Blogger and Familiar with English, Hindi, Gujarati, French languages. He
wants to Share his experience & Knowledge and help technical enthusiasts to find suitable solutions and updating
themselves on various Engineering Topics.

60 Responses to Calculate Size of Contactor, Fuse, C.B, Over Load Relay of


DOL Starter

1. asimali856 says:

June 2, 2013 at 3:09 pm

thanks……sir

� Thanks & regards �


Asam Ali
Al Mariah United Group Abu Dhai – U.A.E Cell No.: +971 567077962

________________________________
Reply

o J.Ravi says:

February 23, 2016 at 4:18 pm

very nice usefull message


Thank s sir

Over Load Relay & Contactor for Motor Starter:


Types of Over Load Relay:
1. Class 10: Would Trip after 10 seconds.
2. Class 20: Would Trip after 20 seconds.
3. Class 30: Would Trip after 30 seconds.
 Over Load Relay should be set 115% to 130% of Motor Full Load Current.
 Class 10 is faster than Class 20 and Class 30 over Load Relay.
Size of over Load Relay:
Size Amp Capacity
0.1 To 0.4
0.4 To 0.6
S00
1.6 To 6
3 To 12
3 To 12
S0
6 To 25
6 To 25
S2
13 To 50
13 To 50
S3
25 To 100
S6 50 To 200
55 To 250
S10 & S12 200 To 540
300 To 63

Contactor Coil:
Coil Voltage (40 To 50 Hz) Suffix

24V T

48V W

110V To 127V A

220V To 240V B

277V H

380V To 415V L

Type of Contactor for Starter:


Contactor Application

AC1 Non-Inductive or Slightly Inductive ,Resistive Load


AC2 Slip Ring Motor
AC3 Squirrel Cage Motor
AC4 Rapid Start / Stop
AC5a Switching of Electrical Discharge Lamp
AC5b Switching of Electrical Incandescent Lamp
AC6a Switching of Transformer
AC6b Switching of Capacitor Bank
AC7a Slightly Inductive Load in Household or same type load
AC7b Motor Load in Household Application
AC8a Hermetic refrigerant Compressor Motor with Manual O/L Reset
AC8b Hermetic refrigerant Compressor Motor with Auto O/L Reset
AC12 Control of Restive Load and Solid State Load with optocoupler Isolation
AC13 Control of Restive Load and Solid State with T/C Isolation
AC14 Control of Small Electro Magnetic Load ( <72VA)
AC15 Control of Small Electro Magnetic Load ( >72VA)

Making and Breaking Capacity of Contactor:


Contactor Making Capacity(Amp) Breaking Capacity (Amp)

AC1 1.5 X motor rated current 1.5 X motor rated current


AC2 4 X motor rated current 4 X motor rated current

AC3 10 X motor rated current 8 X motor rated current

AC4 12 X motor rated current 10 X motor rated current

AC5a 3 X motor rated current 3 X motor rated current

AC5b 1.5 X motor rated current 1.5 X motor rated current

AC6a 12 X motor rated current 10 X motor rated current

AC6b 12 X motor rated current 10 X motor rated current

AC7a 1.5 X motor rated current 1.5 X motor rated current

AC7b 8 X motor rated current 8 X motor rated current

AC8a 6 X motor rated current 6 X motor rated current

AC8b 6 X motor rated current 6 X motor rated current

AC12

AC13 10 X motor rated current 1.1 X motor rated current

AC14 6 X motor rated current 6 X motor rated current

AC15 10 X motor rated current 10 X motor rated current

Contactor Status:
Contactor Status Continuity Between Pins (N/C) Non Continuity Between Pins (N/O)

21 and 22
11 and 12
Power Not Applied 32 and 33
A1 and A2
B1 and B2
21 and 22
11 and 12
Power Applied 32 and 33
A1 and A2
B1 and B2
Main Circuit Voltage of O/L Relay & Contactor:
1. A.C= 240V,415V
2. D.C=230V,460V,600V
Contactor’s Coil Voltage:
1. A.C= 40V,220V,240V,415V
2. D.C=24V(For PLC),110V,230V,460V
Rated Current of Contactor: (Thermal and Intermediate Duty):
1. A.C= 6,10,16,25,63,100,160,200,315,400,630,800 Amp
2. D.C= 16,20,80,160,315,1250,8000 Amp.
Contactor / Relay Setting / Fuse / Cable for DOL STARTER

Contactor Relay setting Cable (mm2)


H.P KW FLC Fuse
Size (Amp) Min Max Cu Allu

0.5 0.37 1 – 0.8 1.17 4 1 1.5


0.75 0.55 1.3 9 1 1.5 4 1 1.5
1 0.74 1.9 9 1.6 2.3 6 1.5 2.5
1.5 1.11 2.6 9 2 3 6 1.5 2.5
2 1.49 3.7 9 2.5 3.7 10 1.5 2.5
3 2.2 4.8 9 4 5.9 16 1.5 2.5
5 3.73 7.8 9 6.3 9.4 20 1.5 2.5
7 5.22 11.2 12 8 11.7 25 2.5 4
10 7.46 16 16 12.5 18.7 25 4 6
12.5 9.32 19 32 16 23.4 32 4 6
15 11.19 20.8 32 16 23.4 50 6 10
20 14.92 28 32 20 30 50 6 10
25 18.65 34 38 32 37.4 63 10 16
30 22.38 40 45 32 47 80 16 25
40 29.84 53 63 50 59 100 25 35
50 37.3 65 70 57 65.5 125 25 50
60 44.76 78 85 70 88.9 125 25 50
75 55.95 96 110 85 98.2 160 50 70
100 74.6 131 140 115 168 200 70 95
125 93.25 156 170 115 168 250 120 150
150 111.9 189 205 160 234 315 150 240
180 134.28 227 250 160 234 355 185 300
215 160.39 271 300 200 299 400 – –
270 201.42 339 400 250 374 500 – –
335 249.91 338 475 320 468 500 – –

Relay Range & Back up Fuse for DOL Starter


Full Load Back Up Fuse
H.P KW Current Relay Rang(Amp)
(amp) Min Max

10 7.5 13.6 13 To 20 25 50
12.5 9.3 17 13 To 20 25 50
15 11.2 20 20 To 30 35 80
20 14.9 28 20 To 30 60 80
25 18.7 35 30 To 45 60 100
30 22.4 40 30 To 45 80 100
35 26.1 47 45 To 63 80 125

Relay Range & Back up Fuse for Star / Delta Starter


Full Load Back Up Fuse
H.P KW Current Relay Rang(Amp)
(amp) Min Max

20 14.9 28 13 To 20 60 60
25 18.7 35 20 To 30 60 100
30 22.4 40 20 To 30 60 100
35 26.1 47 20 To 30 80 100
40 29.8 55 30 To 35 80 125
50 37.3 66 30 To 35 100 125
60 44.8 80 45 To 63 100 160
75 55.95 95 45 To 63 125 160
Report this ad

Report this ad
Rate this:

You might also like