KEMBAR78
Lifting Calculation Pipe-Pipe Jn680 Turret Access Structure, Bluewater 110 Ton Weight | PDF | Stress (Mechanics) | Young's Modulus
0% found this document useful (0 votes)
227 views10 pages

Lifting Calculation Pipe-Pipe Jn680 Turret Access Structure, Bluewater 110 Ton Weight

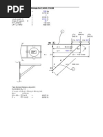
This document provides calculations for lifting a 110 ton pipe structure using 4 lifting points. It calculates the forces and bending moments at each point. Point 1-2 is determined to be safe, while point 3-4 fails the bending stress calculation in the z-z direction at 251.9% of the allowable stress. Point 3-4 also has safe stresses in the y-y and x-x directions. The document was prepared by an engineer at PT Profab Indonesia to analyze the lifting arrangement.

Uploaded by

rustamriyadi
Copyright
© © All Rights Reserved
We take content rights seriously. If you suspect this is your content, claim it here.
Available Formats
Download as XLS, PDF, TXT or read online on Scribd
0% found this document useful (0 votes)
227 views10 pages

Lifting Calculation Pipe-Pipe Jn680 Turret Access Structure, Bluewater 110 Ton Weight

This document provides calculations for lifting a 110 ton pipe structure using 4 lifting points. It calculates the forces and bending moments at each point. Point 1-2 is determined to be safe, while point 3-4 fails the bending stress calculation in the z-z direction at 251.9% of the allowable stress. Point 3-4 also has safe stresses in the y-y and x-x directions. The document was prepared by an engineer at PT Profab Indonesia to analyze the lifting arrangement.

Uploaded by

rustamriyadi
Copyright
© © All Rights Reserved
We take content rights seriously. If you suspect this is your content, claim it here.
Available Formats
Download as XLS, PDF, TXT or read online on Scribd
You are on page 1/ 10

PT PROFAB INDONESIA Page 1

LIFTING CALCULATION PIPE-PIPE


JN680 TURRET ACCESS STRUCTURE, BLUEWATER
110 TON WEIGHT

General Data

Total weight, W = 110 Tons = 242509 lbs


Safety factor, SF = 1.5
Calculated weight, WSF = W SF = 165 Tons = 363763 lbs
No of point for lifting, Np = 4
Mean weight in one point, Wp = WSF / Np = 41.25 Tons = 90941 lbs
Total length of lifting arrangement x-x, L x = 9600 mm = 377.952756 in
Total length of lifting arrangement y-y, L y = 4720 mm = 185.826772 in
Total height of lifting arrangement z-z, H = 20000 mm = 787.401575 in
Total act. length of lifting arrangement, L = 10698 mm = 421.164902 in
Length of pipe 1, L1 = 2400 mm = 94.488189 in
No of pipe 1, N1 = 3
Length of pipe 2, L2 = 2520 mm = 99.2125984 in
No of pipe 2, N2 = 3
Length of pipe 3, L3 = 4720 mm = 185.826772 in
No of pipe 3, N3 = 2
Length x-x of point 1-2 to CoG, Lcg = 5300 mm = 208.661417 in
Height of lug point to pipe conter, HLP = 412 mm = 16.2204724 in
Angle x-y of point 1-2, α1 = 26.2 deg = 0.45695875 rad
Angle x-z of point 1-2, α2 = 73.5 deg = 1.28365884 rad
Angle x-y of point 3-4, α3 = 63.8 deg = 0.58466747 rad
Angle x-z of point 3-4, α4 = 76.5 deg = 1.33564718 rad

Pipe Data ( 12” NB Sch XS )

Outside Diameter, OD = 323.85 mm = 12.750 in


Inside Diameter, ID = 298.45 mm = 11.750 in
Nominal Thickness, tnom = 12.70 mm = 0.500 in
Minimum Thickness, tmin = 11.11 mm = 0.438 in
Calculated Inside Diameter, CID = 301.63 mm = 11.875 in
Section Area, A = 10918.0 mm2 = 16.92 in2
Moment of Inertia x-x, Ix = 13365 cm4 = 321.09 in4
Section Modulus x-x, Sx = 825 cm3 = 50.37 in3
Radius of Gyration x-x, rx = 111 mm = 4.36 in

Material Data

Elastic modulus, E = 199947.95 MPa = 29000000 psi


Allowable yield stress, Sa = 344.74 MPa = 50000 psi
PT PROFAB INDONESIA Page 2
Allow. tensile stress, Sta = 0.6S = 206.84 MPa = 30000 psi
Allow. bending stress, Sba = 0.66Sa = 227.53 MPa = 33000 psi
Allow. shear stress, Ssa = 0.4Sa = 137.90 MPa = 20000 psi
Allow. bearing stress, Sbra = 0.9Sa = 310.26 MPa = 45000 psi

Calculation in point 1-2

Force & Moment Calculation


Force z-z, F1z = [ (L - Lcg) / L ] 2WP = 41.62630221 Tons = 91770 lbs
Force x-x, F1x = F1Z cos(α1) / tan(α2) = 11.03097009 Tons = 24319 lbs
Force y-y, F1y = F1Z sin(α1) / tan(α2) = 5.423560292 Tons = 11957 lbs
Force on sling, F1 = F1Z / sin(α2) = 43.40329875 Tons = 95688 lbs
Bending moment y-y, M1y = F1z L1 / 2 = 489857 N.m = 4335605 lbs.in

Allow. Comp. Stress

Effective Length Factor, K = 1.0


Ratio of Effective Profile Area, Qa = 1.0
Axial Stress Reduction Factor, Qs = 1.0

Slenderness Ratio, C ' c=


K L1

2 π2 E
Q s Qa S a = 106.999

= 21.692
rx
K L1 / r x
= 0.203
C'c
Coefficient of Compressive Stress, Ca = 0.506 from table 4 AISC Specification
Allow. Comp. Stress, Sc = Sa Qa Qs Ca = 174.44 MPa = 25300 psi

Stress Calculation

Bending stress z-z, Sb1z = M1y / (N1 Sx) = 197.83 MPa = 28694 psi
Comp. stress x-x, Sc1x = F1x / (N1 A) = 3.30 MPa = 479 psi
Tension stress y-y, St1y = F1y / (N2 A) = 1.62 MPa = 236 psi

Comparison of Available Stress

Bending stress z-z = SAFE Ratio = 87.0%


Comp. stress x-x = SAFE Ratio = 1.9%
Tension stress y-y = SAFE Ratio = 0.8%

Calculation in point 3-4

Force & Moment Calculation


PT PROFAB INDONESIA Page 3

Force z-z, F2z = ( Lcg / L ) 2WP = 40.87369779 Tons = 90111 lbs


Force x-x, F2x = F2Z cos(α3) / tan(α4) = 8.165988443 Tons = 18003 lbs
Force y-y, F2y = F2Z sin(α3) / tan(α4) = 5.404740427 Tons = 11915 lbs
Force on sling, F2 = F2Z / sin(α4) = 42.03039088 Tons = 92661 lbs
Bending moment y-y, M2y = F2z L3 = 945968 N.m = 8372527 lbs.in
Bending moment z-z, M2z = F2x L3 = 188991 N.m = 1672713 lbs.in

Allow. Comp. Stress

Effective Length Factor, K = 1.0


Ratio of Effective Profile Area, Qa = 1.0
Axial Stress Reduction Factor, Qs = 1.0


2
2π E
Slenderness Ratio, C ' c= = 106.999
Q s Qa S a
K L3
= 42.661
rx
K L3 /r x
= 0.399
C'c
Coefficient of Compressive Stress, Ca = 0.509 from table 4 AISC Specification
Allow. Comp. Stress, Sc = Sa Qa Qs Ca = 175.47 MPa = 25450 psi

Stress Calculation
Bending stress z-z, Sb2z = M2y / (N3 Sx) = 573.06 MPa = 83116 psi
Bending stress x-x, Sb2x = M2z / (N3 Sx) = 114.49 MPa = 16605 psi
Comp. stress y-y, Sc2y = F2y / (N3 A) = 2.43 MPa = 352 psi

Bending stress z-z = FAIL Ratio = 251.9%


Bending stress y-y = SAFE Ratio = 50.3%
Comp. stress x-x = SAFE Ratio = 1.4%

prepared by
ARIEF SUHARIYONO
DESIGN ENGINEER
PT PROFAB INDONESIA
PT PROFAB INDONESIA Page 4

LIFTING CALCULATION PIPE-LUG


JN680 TURRET ACCESS STRUCTURE, BLUEWATER
110 TON WEIGHT

General Data

Total weight, W = 110 Tons = 242509 lbs


Safety factor, SF = 1.5
Calculated weight, WSF = W SF = 165 Tons = 363763 lbs
No of point for lifting, Np = 4
Mean weight in one point, Wp = WSF / Np = 41.25 Tons = 90941 lbs
Total length of lifting arrangement x-x, L x = 9600 mm = 377.952756 in
Total length of lifting arrangement y-y, L y = 4720 mm = 185.826772 in
Total height of lifting arrangement z-z, H = 20000 mm = 787.401575 in
Total act. length of lifting arrangement, L = 10698 mm = 421.164902 in
Length of pipe 1, L1 = 2400 mm = 94.488189 in
No of pipe 1, N1 = 3
Length of pipe 2, L2 = 2520 mm = 99.2125984 in
No of pipe 2, N2 = 3
Length of pipe 3, L3 = 2360 mm = 92.9133858 in
No of pipe 3, N3 = 2
Length x-x of point 1-2 to CoG, Lcg = 5300 mm = 208.661417 in
Height of lug point to pipe conter, HLP = 412 mm = 16.2204724 in
Angle x-y of point 1-2, α1 = 26.2 deg = 0.45695875 rad
Angle x-z of point 1-2, α2 = 73.5 deg = 1.28365884 rad
Angle x-y of point 3-4, α3 = 63.8 deg = 0.58466747 rad
Angle x-z of point 3-4, α4 = 76.5 deg = 1.33564718 rad

Pipe Data ( 12” NB Sch XS )

Outside Diameter, OD = 323.85 mm = 12.750 in


Inside Diameter, ID = 298.45 mm = 11.750 in
Nominal Thickness, tnom = 12.70 mm = 0.500 in
Minimum Thickness, tmin = 11.11 mm = 0.438 in
Calculated Inside Diameter, CID = 301.63 mm = 11.875 in
Section Area, A = 10918.0 mm2 = 16.92 in2
Moment of Inertia x-x, Ix = 13365 cm4 = 321.09 in4
Section Modulus x-x, Sx = 825 cm3 = 50.37 in3
Radius of Gyration x-x, rx = 111 mm = 4.36 in

Material Data

Elastic modulus, E = 199947.95 MPa = 29000000 psi


Allowable yield stress, Sa = 344.74 MPa = 50000 psi
PT PROFAB INDONESIA Page 5
Allow. tensile stress, Sta = 0.6S = 206.84 MPa = 30000 psi
Allow. bending stress, Sba = 0.66Sa = 227.53 MPa = 33000 psi
Allow. shear stress, Ssa = 0.4Sa = 137.90 MPa = 20000 psi
Allow. bearing stress, Sbra = 0.9Sa = 310.26 MPa = 45000 psi

Calculation in point 1-2

Force & Moment Calculation


Force z-z, F1z = [ (L - Lcg) / L ] 2WP = 41.62630221 Tons = 91770 lbs
Force x-x, F1x = F1Z cos(α1) / tan(α2) = 11.03097009 Tons = 24319 lbs
Force y-y, F1y = F1Z sin(α1) / tan(α2) = 5.423560292 Tons = 11957 lbs
Force on sling, F1 = F1Z / sin(α2) = 43.40329875 Tons = 95688 lbs
Bending moment y-y, M1y = F1z L1 / 2 = 489857 N.m = 4335605 lbs.in

Allow. Comp. Stress

Effective Length Factor, K = 1.0


Ratio of Effective Profile Area, Qa = 1.0
Axial Stress Reduction Factor, Qs = 1.0


2
2π E
Slenderness Ratio, C ' c= = 106.999
Q s Qa S a
K L1 = 21.692
rx
K L1 / r x
= 0.203
C'c
Coefficient of Compressive Stress, Ca = 0.506 from table 4 AISC Specification
Allow. Comp. Stress, Sc = Sa Qa Qs Ca = 174.44 MPa = 25300 psi

Stress Calculation

Bending stress z-z, Sb1z = M1y / (N1 Sx) = 197.83 MPa = 28694 psi
Comp. stress x-x, Sc1x = F1x / (N1 A) = 3.30 MPa = 479 psi
Tension stress y-y, St1y = F1y / (N2 A) = 1.62 MPa = 236 psi

Comparison of Available Stress

Bending stress z-z = SAFE Ratio = 87.0%


Comp. stress x-x = SAFE Ratio = 1.9%
Tension stress y-y = SAFE Ratio = 0.8%

Calculation in point 3-4

Force & Moment Calculation


PT PROFAB INDONESIA Page 6

Force z-z, F2z = ( Lcg / L ) 2WP = 40.87369779 Tons = 90111 lbs


Force x-x, F2x = F2Z cos(α3) / tan(α4) = 8.165988443 Tons = 18003 lbs
Force y-y, F2y = F2Z sin(α3) / tan(α4) = 5.404740427 Tons = 11915 lbs
Force on sling, F2 = F2Z / sin(α4) = 42.03039088 Tons = 92661 lbs
Bending moment y-y, M2y = F2z L3 + F2y HLP = 494821 N.m = 4379537 lbs.in
Bending moment z-z, M2z = F2x L3 = 94496 N.m = 836356 lbs.in
Torsion y-y, T2y = F2x HLP = 32993 N.m = 292016 lbs.in

Allow. Comp. Stress

Effective Length Factor, K = 1.0


Ratio of Effective Profile Area, Qa = 1.0
Axial Stress Reduction Factor, Qs = 1.0


2
2π E
Slenderness Ratio, C ' c= = 106.999
Q s Qa S a
K L3 = 21.331
rx
K L3 /r x
= 0.199
C'c
Coefficient of Compressive Stress, Ca = 0.509 from table 4 AISC Specification
Allow. Comp. Stress, Sc = Sa Qa Qs Ca = 175.47 MPa = 25450 psi

Stress Calculation
Bending stress z-z, Sb2z = M2y / (N3 Sx) = 299.76 MPa = 43476 psi
Bending stress x-x, Sb2x = M2z / (N3 Sx) = 57.24 MPa = 8303 psi
Shear stress x-x, Ss2x = T2y OD / (16.Ix) = 5.00 MPa = 725 psi
Comp. stress y-y, Sc2y = F2y / (N3 A) = 2.43 MPa = 352 psi

Bending stress z-z = FAIL Ratio = 131.7%


Bending stress x-x = SAFE Ratio = 25.2%
Shear stress x-x = SAFE Ratio = 3.6%
Comp. stress y-y = SAFE Ratio = 1.4%

prepared by
ARIEF SUHARIYONO
DESIGN ENGINEER
PT PROFAB INDONESIA
PT PROFAB INDONESIA Page 7

WELD SIZE CALCULATION


ON PIPE FOR LIFTING ARRANGEMENT
JN680 TURRET ACCESS STRUCTURE, BLUEWATER

Weight of Load (W) = 41626.3022076269 kg


Safety Factor = 1.50
Total Weight of Load (Wt) = 62439.4533114403 kg

Loads on pipes :
Number of pipe = 2
Load on one pipe (F) = 31219.7266557202 kg = 68827.01 lbs

Weld length (assume only top and bottom side welded -conservative method)
Length of Weld around :
Aw = OD
= 323.85 mm = 12.75 in

Fillet Weld Dimension ( w ) :


(on drawing)
w = 0.47 in = 12 mm

Load on Fillet Weld per linear inch of weld :


Shear stress of Weld (S) = F / Aw
= 5398 lbs/in

Load on weld ( f ) :
Shear stress of Weld (f) = S/w
= 11426 lbs/in2

Allowable weld stress :


SSA = 9600 psi

Check shear stress = Over Stress


Ratio = 119.02%

Book Reference : Eugene F.Megyesy, "Pressure Vessel Handbook-Eleventh Edition", page : 459.
PT PROFAB INDONESIA Page 8

CALCULATION OF LIFTING LUG


JN680 TURRET ACCESS STRUCTURE, BLUEWATER
110 TON WEIGHT

Generals:
Load x-x, Fx = 8166 kgs = 18,003 lbs
Load y-y, Fy = 5405 kgs = 11,915 lbs
Load z-z, Fz = 40874 kgs = 90,110 lbs
Safety Factor, SF = 1.50

Lug Dimensions:
Height of hole centreline, H = 250 mm = 9.84 in
Width of Lug, WL = 750 mm = 29.53 in
Radius of Lug, R = 225 mm = 8.86 in
Diameter of Hole, DH = 85 mm = 3.35 in
Thickness of Lug, tL = 30 mm = 1.18 in

Allowable Stresses:
Lug Material EH36 Fy = 50,000 psi
Allowable Tension Stress, 0.6 Fy = 2,109 Kg/cm2 = 30,000 psi
Allowable Shear Stress, 0.4 Fy = 1,406 Kg/cm2 = 20,000 psi
DH/2R = 0.19
Stress-Concentration Factor (near hole), K = 2.5
(for flat plate with centrally located circular hole in tension based on D H/2R value)

Tension stresses z-z in the Lug:


Section modulus of lug, SL = 2,813 cm3 = 171.63 in3

Stress at Lug to Pipe Joint = 345 Kg/cm2 = 4,901 psi


St = Fy H / SL + Fz / (WL tL) Safe Ratio = 16.34%

Stress at near the hole = 700 Kg/cm2 = 9,955 psi


St = K Fz / [(2R - DH) 2 tL] Safe Ratio = 33.18%

Shear stresses x-x in the Lug:

Stress at Lug to Pipe Joint = 54 Kg/cm2 = 774 psi


Ssx = Fx / (tL WL) Safe Ratio = 3.87%

Stress at near the hole = 140 Kg/cm2 = 1,989 psi


Ssx = K Fx / [(2R - DH) 2 tL] Safe Ratio = 9.94%

Shear stresses y-y in the Lug:

Stress at Lug to Pipe Joint = 54 Kg/cm2 = 774 psi


Ssy = Fy / (tL WL) Safe Ratio = 3.87%
PT PROFAB INDONESIA Page 9

Stress at near the hole = 30 Kg/cm2 = 427 psi


Ssy = Fy / (4 R tL) Safe Ratio = 2.14%
PT PROFAB INDONESIA Page 10

WELD SIZE CALCULATION


ON PIPE FOR LIFTING ARRANGEMENT
JN680 TURRET ACCESS STRUCTURE, BLUEWATER

Tension force, Ft 40873.6977923731 kg = 90110.15 lbs


Shear force, Fs 8165.9884430263 kg = 18002.74 lbs
Safety factor, SF 1.50

Weld length (assume only top and bottom side welded -conservative method)
Length of Weld around :
Aw = 2 WL
= 1500 mm = 59.06 in

Fillet Weld Dimension ( w ) :


(on drawing)
w = 0.39 in = 10 mm

Load on Fillet Weld per linear inch of weld :


Tension stress of Weld (S) = Ft / Aw
= 1526 lbs/in
Shear stress of Weld (S) = Fs / Aw
= 305 lbs/in

Load on weld ( f ) :
Tension stress of Weld (f) = S/w
= 3876 lbs/in2
Shear stress of Weld (f) = S/w
= 774 lbs/in2

Allowable weld stress :


SSA = 9600 psi

Check tension stress = OK


Ratio = 40.37%
Check shear stress = OK
Ratio = 8.07%

Book Reference : Eugene F.Megyesy, "Pressure Vessel Handbook-Eleventh Edition", page : 459.

You might also like