KEMBAR78
Code 1-Ground 2-1st - Floor | PDF | Electrical Components | Electrical Wiring
0% found this document useful (0 votes)
90 views11 pages

Code 1-Ground 2-1st - Floor

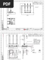
This document provides specifications for a miniature circuit breaker distribution board including: - Miniature circuit breakers rated for 10kA at 415V and 50°C. - Residual current circuit breakers for earth leakage protection rated for 3kA. - Contactors and digital timers rated for 240V 50Hz 16A resistive load. - The board will have 6 ways TP&N with space for 10 circuits that are currently unspecified.

Uploaded by

elsayed
Copyright
© © All Rights Reserved
We take content rights seriously. If you suspect this is your content, claim it here.
Available Formats
Download as XLS, PDF, TXT or read online on Scribd
0% found this document useful (0 votes)
90 views11 pages

Code 1-Ground 2-1st - Floor

This document provides specifications for a miniature circuit breaker distribution board including: - Miniature circuit breakers rated for 10kA at 415V and 50°C. - Residual current circuit breakers for earth leakage protection rated for 3kA. - Contactors and digital timers rated for 240V 50Hz 16A resistive load. - The board will have 6 ways TP&N with space for 10 circuits that are currently unspecified.

Uploaded by

elsayed
Copyright
© © All Rights Reserved
We take content rights seriously. If you suspect this is your content, claim it here.
Available Formats
Download as XLS, PDF, TXT or read online on Scribd
You are on page 1/ 11

code 1-ground 2-1st.

floor
NAME OF PROJECT : MINIATURE CIRCUIT BREAKERS (MCB) : BREAKING 10 KA AT 415V , 50ºC (BS 3871 PART1)
LOCATION: - RESIDUAL CURRENT CIRCUIT BREAKER (RCCB) :EARTH LEAKAG (30mA,20ms) , BREKING 3KA (BS 4293,3871 PART 1)
DB REF: CODE - - CONTACTORS AND DIGITALTIMERS( BS 775/IEC 158.1): CONTACTORS(240V,50HZ,1PH,16A),TIMER(240V,50HZ,16A RESISTIVE,2.5A INDU
FED FROM:
MOUNTING: SURFACE MOUNTED
NEUTRAL CONNECTION BAR : THE NUMBER OF CABLE TERMINATIONS = THE NUMBER OF INDIVIDUAL CIRCUITS (THE TERMINATIONS SHALL BE OF A SIZE
SUFFICIENT TO LARGEST SIZE CABLE IT IS USED ON AN OUTGOING CIRCUITS)
EARTH CONNECTION BAR : THE NUMBER OF CABLE TERMINATIONS = THE NUMBER OF INDIVIDUAL CIRCUITS (A CABLE CONNECTION BOARD SHALL BE
‫القاصي للستشارات الهندسيه‬
MADE FROM THE EARTH BAR TO THE CABLE GLAND OF THE INCOMING CABLE)
*HEIGHT NOT LESS THAN 1200mm FROM FINISHED FLOOR LEVEL TO BOTTOM OF THE D.B. AND MAIN ISOLATORE : 63 A TP & N ISOLATOR (BS 5420)
MAXIMUM HEIGHT OF THIS D.B. SHALL BE 2200 mm
6 WAYS TP & N INCOMING CABLE : - -
CKT CIRCUIT BREAKER CABLE LOADE LOAD IN WATTS
NO. CONTROL LOCATION
REF A ELCB TYPE SIZE mm2 TYPE LIGHTS W/P LIGHTS FAN R.M.S UNIT CHANDLER
UNIT
CHANDLER
E.W.H UNIT A/C/TONE A/C UNIT COOKER UNIT PUMP UNIT R Y
R - - - - - - - 0 0 0
1 Y - - - - - - - 0 0 0
B - - - - - - - 0 0
R - - - - - - - 0 0 0
2 Y - - - - - - - 0 0 0
B - - - - - - - 0 0
R - - - - - - - 0 0 0
3 Y - - - - - - - 0 0 0
B - - - - - - - 0 0
R - - - - - - - 0 0 0
4 Y - - - - - - - 0 0 0
B - - - - - - - 0 0
R - - - - - - - 0 0 0
5 Y - - - - - - - 0 0 0
B - - - - - - - 0 0
R - - - - - - - 0 0 0
6 Y - - - - - - - 0 0 0
B - - - - - - - 0 0
R - - - - - - - 0 0 0
7 Y - - - - - - - 0 0 0
B - - - - - - - 0 0
R - - - - - - - 0 0 0
8 Y - - - - - - - 0 0 0
B - - - - - - - 0 0
R - - - - - - - 0 0 0
9 Y - - - - - - - 0 0 0
B - - - - - - - 0 0
R - - - - - - - 0 0 0
10 Y - - - - - - - 0 0 0
B - - - - - - - 0 0
R - - - - - - - 0 0 0
11 Y - - - - - - - 0 0 0
B - - - - - - - 0 0
R - - - - - - - 0 0 0
12 Y - - - - - - - 0 0 0
B - - - - - - - 0 0
C - CONTROL ON/OFF FROM MAIN SWITCH IN CONTROL ROOM PHASE LOAD 0 0
PH - PHOTO CELL MODULE WITH MANUAL OVERRIDE SWITCH TOTAL CONNECTED LOAD 0
ABBREVIATIONS: D - 10A THYRISTOR FIRED DIMMING MODULE TOTAL NO. TOTAL TOTAL TOTA
E - EMERGENCY LIGHT LIGHTS W/P
NO. NO. NO. UNIT TOTAL CH. E.W.H TOTAL A/C COOKER PUMP TOTAL
LIGHTS FAN R.M.S
0 0 0 0 0 0 0 0 0 0 0
‫القاصي للس‬
LOAD IN WATTS

0
0
0

TOTAL
0
NAME OF PROJECT : MINIATURE CIRCUIT BREAKERS (MCB) : BREAKING 10 KA AT 415V , 50ºC (BS 3871 PART1)
LOCATION: - RESIDUAL CURRENT CIRCUIT BREAKER (RCCB) :EARTH LEAKAG (30mA,20ms) , BREKING 3KA (BS 4293,3871 PART 1)
DB REF: CODE - - CONTACTORS AND DIGITALTIMERS( BS 775/IEC 158.1): CONTACTORS(240V,50HZ,1PH,16A),TIMER(240V,50HZ,16A RESISTIVE,2.5A INDUCTIVE)
FED FROM:
MOUNTING: SURFACE MOUNTED
NEUTRAL CONNECTION BAR : THE NUMBER OF CABLE TERMINATIONS = THE NUMBER OF INDIVIDUAL CIRCUITS (THE TERMINATIONS SHALL BE OF A SIZE SUFFICIENT
TO LARGEST SIZE CABLE IT IS USED ON AN OUTGOING CIRCUITS)
EARTH CONNECTION BAR : THE NUMBER OF CABLE TERMINATIONS = THE NUMBER OF INDIVIDUAL CIRCUITS (A CABLE CONNECTION BOARD SHALL BE MADE FROM
‫القاصي للستشارات الهندسيه‬
THE EARTH BAR TO THE CABLE GLAND OF THE INCOMING CABLE)
*HEIGHT NOT LESS THAN 1200mm FROM FINISHED FLOOR LEVEL TO BOTTOM OF THE D.B. AND MAIN ISOLATORE : 63 A TP & N ISOLATOR (BS 5420)
MAXIMUM HEIGHT OF THIS D.B. SHALL BE 2200 mm
INCOMING CABLE : 0 -
CKT REF CIRCUIT BREAKER CABLE LOADE LOAD IN WATTS
CONTROL LOCATION UNIT
A ELCB TYPE SIZE mm2 TYPE LIGHTS W/P LIGHTS FAN R.M.S UNIT CHANDLER CHANDLER
E.W.H UNIT A/C/TONE A/C UNIT COOKER UNIT PUMP UNIT

1 - - - - - - - 0 0 0
2 - - - - - - - 0 0 0
3 - - - - - - - 0 0 0
4 - - - - - - - 0 0 0
5 - - - - - - - 0 0 0
6 - - - - - - - 0 0 0
7 - - - - - - - 0 0 0
8 - - - - - - - 0 0 0
9 - - - - - - - 0 0 0
10 - - - - - - - 0 0 0
11 - - - - - - - 0 0 0
12 - - - - - - - 0 0 0
C - CONTROL ON/OFF FROM MAIN SWITCH IN CONTROL ROOM PHASE LOAD
0
PH - PHOTO CELL MODULE WITH MANUAL OVERRIDE SWITCH TOTAL CONNECTED LOAD
ABBREVIATIONS: D - 10A THYRISTOR FIRED DIMMING MODULE TOTAL NO. TOTAL TOTAL TOTA

E - EMERGENCY LIGHT LIGHTS W/P


NO.
LIGHTS
NO.
FAN
NO.
R.M.S
UNIT TOTAL CH. E.W.H TOTAL A/C COOKER PUMP TOTAL
0 0 0 0 0 0 0 0 0 0 0
M.S.B REF LOCATION TYPE

1
2
3
4
5
6
7
8
9
1 10
11
12

LOCATION TYPE

TOTAL A/C TOTAL

TOTAL CONNECTE
MAXIMUM DEMAND
TOTAL CONNECT
MAXIMUM DEMA
%K
2C X 10mm2 + 1C X 10mm2
2C X 16mm2 + 1C X 16mm2
2C X 25mm2 + 1C X16mm2
4C X 16mm2 + 1C X 16mm2
4C X 25mm2 + 1C X 16mm2
4C X 35mm2 + 1C X 16mm2
4C X 50mm2 + 1C X 25mm2
4C X 70mm2 + 1C X 35mm2
4C X 95mm2 + 1C X 50mm2
4C X 120mm2 + 1C X 70mm2
4C X 150mm2 + 1C X 70mm2
4C X 185mm2 + 1C X 95mm2
4C X 240mm2 + 1C X 120mm2
4C X 300mm2 + 1C X 150mm2
4C X 400mm2 + 1C X 240mm2
ELECTRIC LOAD CURRENT LOAD
MCCB
REF CABLE
C.L C.L

ELECTRIC LOAD CURRENT LOAD


MCCB
REF CABLE
C.L M.L C.L M.L

0 0 0 0

TOTAL W/H GENRAL LOAD

L CONNECTED LOAD IN KW (C.L)


MUM DEMAND LOAD IN KW (M.L)
AL CONNECTED LOAD IN KVA
XIMUM DEMAND LOAD IN KVA
% KVA
2 + 1C X 10mm2
2 + 1C X 16mm2
2 + 1C X16mm2
2 + 1C X 16mm2 4C X 10mm2 + 1C X 10mm3
2 + 1C X 16mm2
2 + 1C X 16mm2
2 + 1C X 25mm2
2 + 1C X 35mm2
2 + 1C X 50mm2
2 + 1C X 70mm2
2 + 1C X 70mm2
2 + 1C X 95mm2
2 + 1C X 120mm2
2 + 1C X 150mm2
2 + 1C X 240mm2
BRANCH CABLE
CABLE TYPE LENGTH V.D

MAIN CABLE
CABLE TYPE LENGTH V.D

GENRAL LOAD TOTAL LOAD


0
0
0
0
0
0
V.D

V.D

You might also like