KEMBAR78
Feeder Layout | PDF | Manufactured Goods | Nature
0% found this document useful (0 votes)
115 views1 page

Feeder Layout

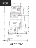
The document describes a floor plan layout for an MDP room. It includes labels for various areas like a kitchen, storage rooms, loading docks, and locker rooms. Arrows indicate foot traffic flow between different sections for processes like unloading, inspection, and dispatch of materials.
Copyright
© © All Rights Reserved
We take content rights seriously. If you suspect this is your content, claim it here.
Available Formats
Download as PDF, TXT or read online on Scribd
0% found this document useful (0 votes)
115 views1 page

Feeder Layout

The document describes a floor plan layout for an MDP room. It includes labels for various areas like a kitchen, storage rooms, loading docks, and locker rooms. Arrows indicate foot traffic flow between different sections for processes like unloading, inspection, and dispatch of materials.
Copyright
© © All Rights Reserved
We take content rights seriously. If you suspect this is your content, claim it here.
Available Formats
Download as PDF, TXT or read online on Scribd
You are on page 1/ 1

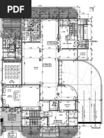
MDP ROOM

power source

MINI
CANTEEN
1 2

warm carcass dispatch

D 1 2 3
3 C

KITCHEN

B
SIDEWALK

D
3

W
4

HEAD STORAGE
DIRTY OFFAL CLEANED OFFAL HEAD W

ROOM
ISSUANCE 4
ISSUANCE ISSUANCE
UNLOADING W UNLOADING UNLOADING
W W W
ENTRY ENTRY 3 DOCK 3 DOCK 4 DOCK 6
D D D SW
4a 4a 4a 1a
W W
5 5 DIRTY OFFAL CLEAN OFFAL
D D D D
3 7 3 7
WC SHO WC

D D
6 SHO 6 NMIS OFFICE
W BOYS LOCKER 2
2

D
GIRL'S 3
LOCKER 2 D
D
3 3
D
3
FIXED GLASS
D D OFFAL INSPECTION HANDWASH
3 BOYS 3
LOCKER 3 OFFAL CONV
ENTRY

SPAREPARTS
STORAGE ROOM SHO

FINAL INSPECTION
D
6
W
W D 8
2t 2
SHO 6

WC D HEAD
MCC ROOM UR D 3 BUNG DROPPING EVISCERATION 35
2t 7 D CUTTING SPLITTING
3
SIDEWALK

D
7 WC

RAIL SCALE 1
SHO SHO
2t GIRLS
D D LOCKER 3
D 6 6
3

FINAL WASHING
ENTRY

CARCASS DRIPPING
D D
3 6 6 GIRLS W
LOCKER 4 8
WC SHO SHO
D 2ND WASHER SINGEING DRYING
7
D
3
D UR D
3 3
ENTRY

D PROPOSED HORIZONTAL BLEEDING CONVEYOR


SIDEWALK

SHO 6 blood trough extension

W
2
UP GAMBRELLING
D DETOEING
SHO 6
PROPOSED HORIZONTAL BLEEDING CONVEYOR

WC BOYS
LOCKER 4

1 2
BLOOD STORAGE
DEHAIRING AREA
HAIR STORAGE
SIDEWALK

1ST WASHING CONDEMNED


SCALDING AREA ROOM
RUD
1

45
ELECT'L
ROOM
BOILER ROOM

W W
TO NEAREST DRAINAGE LINE W W W
5 3 1a 1a 3
COMPRESSOR
OPEN CANAL WITH STEEL GRATING
(see details) STAIR UP ROOM
16 cu.m. CAPACITY
DIESEL STORAGE TANK

OIL AND WATER SEPARATOR


(see details)

DIESEL TANK STORAGE

PARAPET WALL
(see details)
LORRY RECEIVING AREA
DOWN (see details)
UP

DOWN
OIL SPILL RECOVERY PIPE

You might also like