KEMBAR78
PLTD Cpo 2X2,8Mw Belitung: Maintenance, Engineering & Contractor | PDF | Lighting | Electromagnetic Radiation
0% found this document useful (0 votes)
227 views6 pages

PLTD Cpo 2X2,8Mw Belitung: Maintenance, Engineering & Contractor

This document contains lighting layout and equipment details for a PLTD CPO 2x2,8MW power plant in Belitung, Indonesia. It includes lighting plans and equipment lists for the utility area, power house, panel room, control room, transformer area, road area, radiator area and outdoor areas. It provides specifications for over 150 light fixtures, including flood lights, low bays, fluorescent lamps, and road lamps. The document is issued by the Directorate General of Renewable Energy and Energy Conservation of the Ministry of Energy and Mineral Resources and contracted to PT Wijaya Karya for maintenance and engineering works.

Uploaded by

ano
Copyright
© © All Rights Reserved
We take content rights seriously. If you suspect this is your content, claim it here.
Available Formats
Download as PDF, TXT or read online on Scribd
0% found this document useful (0 votes)
227 views6 pages

PLTD Cpo 2X2,8Mw Belitung: Maintenance, Engineering & Contractor

This document contains lighting layout and equipment details for a PLTD CPO 2x2,8MW power plant in Belitung, Indonesia. It includes lighting plans and equipment lists for the utility area, power house, panel room, control room, transformer area, road area, radiator area and outdoor areas. It provides specifications for over 150 light fixtures, including flood lights, low bays, fluorescent lamps, and road lamps. The document is issued by the Directorate General of Renewable Energy and Energy Conservation of the Ministry of Energy and Mineral Resources and contracted to PT Wijaya Karya for maintenance and engineering works.

Uploaded by

ano
Copyright
© © All Rights Reserved
We take content rights seriously. If you suspect this is your content, claim it here.
Available Formats
Download as PDF, TXT or read online on Scribd
You are on page 1/ 6

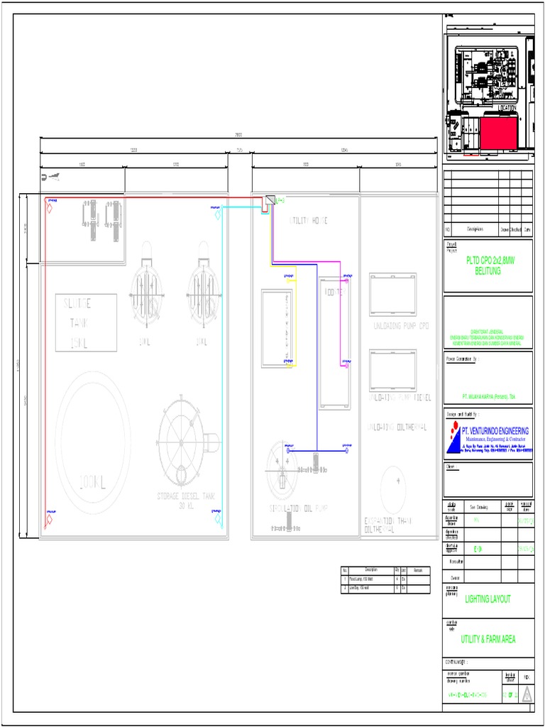
PLTD CPO 2x2,8MW

BELITUNG

DIREKTORAT JENDERAL
ENERGI BARU TERBARUKAN DAN KONSERVASI ENERGI
KEMENTRIAN ENERGI DAN SUMBER DAYA MINERAL

PT. WIJAYA KARYA (Persero). Tbk

Maintenance, Engineering & Contractor

No. Description Qty Unit Remark

1 Flood Lamp, 150 Watt 4 Ea

2 Low Bay, 150 watt 6 Ea

LIGHTING LAYOUT

UTILITY & FARM AREA


PLTD CPO 2x2,8MW
BELITUNG

DIREKTORAT JENDERAL
ENERGI BARU TERBARUKAN DAN KONSERVASI ENERGI
KEMENTRIAN ENERGI DAN SUMBER DAYA MINERAL

PT. WIJAYA KARYA (Persero). Tbk

Maintenance, Engineering & Contractor

LIGHTING LAYOUT

POWER HOUSE

No. Description Qty Unit Remark

1 Low bay 150 watt 9 Ea

2 Receptacle 250 VAC 6 Ea


PLTD CPO 2x2,8MW
BELITUNG

DIREKTORAT JENDERAL
ENERGI BARU TERBARUKAN DAN KONSERVASI ENERGI
KEMENTRIAN ENERGI DAN SUMBER DAYA MINERAL

PT. WIJAYA KARYA (Persero). Tbk

Maintenance, Engineering & Contractor

No. Description Qty Unit Remark

1 Fluorescent Lamp, 2x16 Watt 20 Ea


2 Receptacle 250 VAC 10 Ea
3 Receptacle 250 VAC, For 2PK Air Cond. 4 Ea LIGHTING LAYOUT
4 One Way Switch, 10A/250V 8 Ea

5 Exhaust Fan 1 Ea
6 Receptacle 250 VAC, For 1,5PK Air Cond. 1 Ea

SECOND FLOOR FIRST FLOOR PANEL ROOM & CONTROL ROOM


PLTD CPO 2x2,8MW
BELITUNG

DIREKTORAT JENDERAL
ENERGI BARU TERBARUKAN DAN KONSERVASI ENERGI
KEMENTRIAN ENERGI DAN SUMBER DAYA MINERAL

PT. WIJAYA KARYA (Persero). Tbk

Maintenance, Engineering & Contractor

LIGHTING LAYOUT

Detail Outdoor Lighting TRANSFORMER & ROAD AREA


No. Description Qty Unit Remark

1 Flood Lamp, 150 watt Waterproof 4 Ea Outdoor

2 Road Lamp, 150 watt, Waterproof 8 Ea Outdoor

4
PLTD CPO 2x2,8MW
BELITUNG

DIREKTORAT JENDERAL
ENERGI BARU TERBARUKAN DAN KONSERVASI ENERGI
KEMENTRIAN ENERGI DAN SUMBER DAYA MINERAL

PT. WIJAYA KARYA (Persero). Tbk

Maintenance, Engineering & Contractor

No. Description Qty Unit Remark

1 Flood Lamp HPS, 150 watt Waterproof 5 Ea Outdoor

2 Receptacle 250 VAC 3 Ea

LIGHTING LAYOUT

RADIATOR AREA
LEGEND

PLTD CPO 2x2,8MW


BELITUNG

DIREKTORAT JENDERAL
ENERGI BARU TERBARUKAN DAN KONSERVASI ENERGI
KEMENTRIAN ENERGI DAN SUMBER DAYA MINERAL

PT. WIJAYA KARYA (Persero). Tbk

Maintenance, Engineering & Contractor

LIGHTING LAYOUT

PLOT PLAN

You might also like