KEMBAR78
BSHED - GBFLOOR.05 - GB & Flooring | PDF | Solid Mechanics | Civil Engineering
0% found this document useful (0 votes)
95 views1 page

BSHED - GBFLOOR.05 - GB & Flooring

Ground beam layout & its design

Uploaded by

arif_rubin
Copyright
© © All Rights Reserved
We take content rights seriously. If you suspect this is your content, claim it here.
Available Formats
Download as PDF, TXT or read online on Scribd
0% found this document useful (0 votes)
95 views1 page

BSHED - GBFLOOR.05 - GB & Flooring

Ground beam layout & its design

Uploaded by

arif_rubin
Copyright
© © All Rights Reserved
We take content rights seriously. If you suspect this is your content, claim it here.
Available Formats
Download as PDF, TXT or read online on Scribd
You are on page 1/ 1

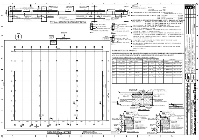
EXTRA TOP @ TOP STEEL EXTRA TOP @

NOTE :-
LHS SUPPORT (STRAIGHT) RHS SUPPORT
L1 = CENTRE TO CENTRE SPAN CONCRETE GRADE :- BEAM - M20
L1 / 3 Ld L1 / 3 L3 / 3 Ld L3 / 3 L4 / 3 BEAM TOP LVL. L4 / 3 COLUMN - M25
VDS TREMIX FLOOR - M25
STEEL GRADE IS HYSD DEFORMED BAR OF GRADE FE500
57d

57d
CONFORMING TO IS:1786.
L1/ 4 EXTRA @ L1 / 4 Ld EXTRA BOTTOM @ 16d 16d EXTRA BOTTOM @ L4 / 3 PROVIDE CLEAR COVER TO REINF : FOR COLUMNS ....................40 MM
BOTTOM 0.15 L3 BOTTOM STEEL RHS SUPPORT
L3 / 3 L4 / 3
LHS SUPPORT FOR BEAMS.........................25 MM
L2 / 3 (STIRRUPS) STIRRUPS L2 / 3 (STIRRUPS) EXTRA BOTTOM @
(STRAIGHT) RHS SUPPORT FOR VDS FLOOR SLAB..........40 MM
LHS SUPPORT MIDSPAN RHS SUPPORT
L2 = CLEAR SPAN L3 = CENTRE TO CENTRE SPAN L4 = CENTRE TO CENTRE SPAN

TYPICAL BEAM REINFORCEMENT DETAIL FOR BEAMS :-


B B
TOP BAR (STRAIGHT) TOP BAR (STRAIGHT)
FOR COLUMNS:-

A-01 FIRST EMISSION


EXTRA TOP @ LHS SUP STIRRUPS (MIDSPAN)
COLUMNS SHALL HAVE REGULAR SPACED RING/STIRRUPS INSIDE

D
STIRRUPS (LHS SUPP) EXTRA @ BOTTOM JUNCTION OF BEAM & COLUMN.
IN STRUCTURAL ELEMENTS NOT MORE THAN 50% REINFORCEMENT
BOTTOM BAR (STRAIGHT) BOTTOM BAR (STRAIGHT) SHALL BE LAPPED AT ONE LOCATION.
ENTRY SEC - 2 WHERE MORE THAN 50% REINFORCEMENT ARE SPLICED/LAPPED AT A
N B SECTION, LAP LENGTH MAY BE INCREASED BY 1.8 TIMES DEVELPMENT

(Er. Arif Memon, M.Tech Structure, Chartered Engineer, AMIE,MISTE)


W RD LVL TOP BAR (STRAIGHT) LENGTH (LD) & TIES IN COLUMN AND STIRRUPS IN BEAMS SHOULD
E 5500

STRUCTURAL DESIGNERS, ENGINEERS & INTERIOR DESIGNERS


-0.000 10000

YASHO INDUSTRIES LTD, VAPI (UNIT 3)


STIRRUPS (MIDSPAN) EXTRA TOP @ RHS SUP BE SPACED AT 100MM C/C.
S WIDE GATE GATE-1

D
STIRRUPS (RHS SUPP) 50MM THK PCC SHOULD BE PROVIDED BELOW GROUND BEAM.
SECURITY ALL DIMENSIONS ARE IN MM.
ROOM BOTTOM BAR (STRAIGHT)
NO ADDITION, ALTERATION SHALL BE MADE WITHOUT PERMISSION
SEC - 3
OF CONSULTANT.

MULTIBUILD CONSULTATNS,
K J I H G F E D C B A IN CASE OF DESCREPENCY IN THIS DWG, PLEASE STOP THE WORK

Plot No. 136/9/A, 2nd Phase, GIDC, VAPI. 396195 Mo. 09998881351
66000 AND CONSULT US.

REFERENCE DRAWING: -

(Ar. Hafiz Shahid, DCE, Interior Designer))


1 1

Phase IVth,GIDC VAPI.


SCHEDULE OF GROUND BEAM (CONCRETE GRADE M20) :-
Beam Beam Size(BxD) Main Steel @ BOTTOM) (Main Steel @ TOP) (Stirrups)
2 2 No. (mm x mm) Straight Extra Straight Extra @ LHS Extra @ RHS Support Midspan

GB1 300 x 530 2 #12 2 #12 2 #10 2 #16 2 #16 + 2L-#8@150 2L-#8@200
1 #12
GB2 300 x 530 2 #12 2 #12 2 #10 2 #16 + 2 #16 + 2L-#8@150 2L-#8@200
1 #12 1 #12

Plot No.
GB3 300 x 530 2 #12 2 #12 2 #10 2 #16 + 2 #16 2L-#8@150 2L-#8@200

CLIENT
3 3 1 #12
GB4 300 x 600 2 #12 2 #12 + 2 #10 2 #16 3 #16 + 2L-#8@150 2L-#8@200
1 #10 1 #12
GB5

GB5

GB5

GB5
GB5 300 x 600 2 #12 2 #12 + 2 #10 3 #16 + 3 #16 + 2L-#8@150 2L-#8@200
1 #10 1 #12 1 #12

ARIF

ARIF
ARIF
A2
4 4
MBC
66000

52500

FOR, YASHO INDUSTRIES LTD.


GB5

GB5

GB5

GB5

PROPOSED FINISHED GOODS GODOWN FOR UNIT 3


230mm THK. 150mm THK. VDS FLOORING
5 5 BB MASONARY PLINTH Lvl
(Reinf Mesh - 8# @ 200 Both Ways)

75mm THK. M10 PCC 75mm THK. M10 PCC


GB5

GB5

GB5

GB5
230 mm THK 230 mm THK
GSB Packing GSB Packing

1050
HARD MURRUM HARD MURRUM

GROUND BEAM & FLOORING DETAILS


6 6 FILLING WITH FILLING WITH
PROPER COMPACTION PROPER COMPACTION
C B ROAD LVL.
Ld

220
GB5

GB5

GB5

GB5
COMPACTED EARTH COMPACTED EARTH <1.3 Ld
Ld

50mm THK PCC GROUND FIGURE-A - STAGGERING OF LAP SPLICES


BEAM
BELOW BEAM
SECTION - C
7 7 230mm x 75 mm Thk 230mm x 75 mm Thk
RCC COPING RCC COPING
REINF - 2- 10# (1 Layer) REINF - 2- 10# (1 Layer)
STIRRUPS - 8# @ 150 c/c STIRRUPS - 8# @ 150 c/c
GB4

GB4

GB4

GB4

225 75

225 75
150 150
150mm THK. VDS FLOORING 150mm THK. VDS FLOORING
PLINTH Lvl (Reinf Mesh - 8# @ 200) PLINTH Lvl (Reinf Mesh - 8# @ 200)
A 230mm THK. (Both Ways) 230mm THK. (Both Ways)
BB MASONARY 75mm THK. M10 PCC BB MASONARY 75mm THK. M10 PCC
8 8
GB1 GB2 GB2 GB2 GB2 GB2 GB2 GB2 GB2 GB3 230 mm THK 230 mm THK
1050

1050
GSB Packing GSB Packing

K i1 h1 H f1 F e2 e1 E D C B A GROUND GROUND
HARD MURRUM HARD MURRUM
J I I BEAM FILLING WITH BEAM FILLING WITH
PROPER COMPACTION PROPER COMPACTION
Road Lvl COMPACTED EARTH
Road Lvl COMPACTED EARTH
77000
530

600
150

220
NOTATIONS: 50mm THK PCC SECTION - A 50mm THK PCC
SECTION - B
BELOW BEAM
GB DENOTES GROUND BEAM BELOW BEAM

You might also like