KEMBAR78
Sliding Window Specifications | PDF | Window | Door
100% found this document useful (4 votes)
16K views43 pages

Sliding Window Specifications

The document contains specifications for various window frames including their dimensions, member names, sizes, weights, lengths, and total weights. It includes details for Jindal sliding window series A and B with 2 and 3 tracks, as well as fixed windows without mullions. Dimensions, materials, and weights are provided for individual frame members and whole assemblies.

Uploaded by

rajeeshmp1
Copyright
© © All Rights Reserved
We take content rights seriously. If you suspect this is your content, claim it here.
Available Formats
Download as XLSX, PDF, TXT or read online on Scribd
100% found this document useful (4 votes)
16K views43 pages

Sliding Window Specifications

The document contains specifications for various window frames including their dimensions, member names, sizes, weights, lengths, and total weights. It includes details for Jindal sliding window series A and B with 2 and 3 tracks, as well as fixed windows without mullions. Dimensions, materials, and weights are provided for individual frame members and whole assemblies.

Uploaded by

rajeeshmp1
Copyright
© © All Rights Reserved
We take content rights seriously. If you suspect this is your content, claim it here.
Available Formats
Download as XLSX, PDF, TXT or read online on Scribd
You are on page 1/ 43

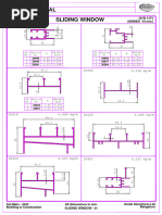
Jindal section Series A (15 mm ) Sliding Two track

1.5

Length

1.50

Hight

Length 1.50
Hight 1.50
Series A
Section Total
Member name Size Weight / m Length Nos lenth Weight

Frame bottom 20669 50.30x26x 1.20mm 0.548 1.50 1 1.50 0.82

Frame top 20670 50.30 x 26x 1.00mm 0.432 1.50 1 1.50 0.65

Frame Side 20670 50.30 x 26x 1.00mm 0.432 1.50 2 3.00 1.30

Shutter bottom & top 20809 37.50x 15x 1.08mm 0.329 0.68 4 2.74 0.90

Shutter interlock 20810 37.50x15.00x 1.07 mm 0.369 1.48 2 2.96 1.09

Shutter handle side 20668 37.50x15.00x 1.36 mm 0.377 1.48 2 2.96 1.12

5.87 kg
Glazing 2 0.68 1.405 1.92 m2
Jindal section Series B (18 mm ) Sliding Two track

1.66

Length

1.40

Hight

Length 1.66
Hight 1.40
Series B
Section Total
Member name Size Weight / m Length Nos lenth Weight

Frame bottom 20813 61.85x31.75x 0.85mm 0.547 1.66 1 1.66 0.91

Frame top 20812 61.85 x31.75x 0.81mm 0.441 1.66 1 1.66 0.73

Frame Side 20812 61.85 x31.75x 0.81mm 0.441 1.40 2 2.80 1.23

Shutter bottom & top 20545 40.00 x 18.00 x 0.79mm 0.288 0.76 4 3.04 0.88

Shutter interlock 20546 40.00 x 18.00x 0.80mm 0.346 1.38 2 2.76 0.95

Shutter handle side 20547 40.00x 18.00x 0.79mm 0.289 1.38 2 2.76 0.80

5.50 kg
Glazing 2 0.76 1.300 1.98 m2
Jindal section Series B (18 mm ) Sliding Two track

1.66

Length

1.40

Hight

Length 1.66
Hight 1.40
Series B
Section Total
Member name Size Weight / m Length Nos lenth Weight

Frame bottom 20956 61.85x31.75x 1.05mm 0.613 1.66 1 1.66 1.02

Frame top 20966 61.85 x31.75x 1.00mm 0.547 1.66 1 1.66 0.91

Frame Side 20966 61.85 x31.75x 1.00mm 0.547 1.40 2 2.80 1.53

Shutter bottom & top 20805 40.00 x 18.00 x 0.91mm 0.325 0.76 4 3.04 0.99

Shutter interlock 20806 40.00 x 18.00x 0.89mm 0.380 1.38 2 2.76 1.05

Shutter handle side 20807 40.00x 18.00x 0.91 mm 0.325 1.38 2 2.76 0.90

6.39 kg
Glazing 2 0.76 1.300 1.98 m2
Jindal section Series A (15 mm ) Sliding Three track

1.5

Length

1.50
Hight

Length 1.50
Hight 1.50
Series A
Section Total
Member name Size Weight / m Length Nos lenth Weight

Frame bottom 20671 75.00x26x 1mm 0.699 1.50 1 1.50 1.05

Frame top 20672 75.00 x26.00 x1.00mm 0.594 1.50 1 1.50 0.89

Frame Side 20672 75.00 x26.00 x1.00mm 0.594 1.50 2 3.00 1.78

Shutter bottom & top 20809 37.50x 15x 1.08mm 0.329 0.44 6 2.64 0.87

Shutter interlock 20810 37.50x15.00x 1.07 mm 0.369 1.48 4 5.92 2.18

Shutter handle side 20668 37.50x15.00x 1.36 mm 0.377 1.48 2 2.96 1.12

7.89 kg
Glazing 3 0.44 1.405 1.85 m2
Jindal section Series B (18 mm ) Sliding Three track

1.66

Length

1.40
Hight

Length 1.66
Hight 1.40
Series A
Section Total
Member name Size Weight / m Length Nos lenth Weight

Frame bottom 20815 92.00x31.75x 0.88mm 0.739 1.66 1 1.66 1.23

Frame top 20816 92.00 x31.75x 0.88mm 0.683 1.66 1 1.66 1.13

Frame Side 20816 92.00 x31.75x 0.88mm 0.683 1.40 2 2.80 1.91

Shutter bottom & top 20545 40.00 x 18.00 x 0.79mm 0.288 0.50 6 3.00 0.86

Shutter interlock 20546 40.00 x 18.00x 0.80mm 0.346 1.38 4 5.52 1.91

Shutter handle side 20547 40.00x 18.00x 0.79mm 0.289 1.38 2 2.76 0.80

7.84 kg
Glazing 3 0.50 1.305 1.96 m2
Jindal section Series B (18 mm ) Sliding Three track

1.66

Length

1.40
Hight

Length 1.66
Hight 1.40
Series A
Section Total
Member name Size Weight / m Length Nos lenth Weight

Frame bottom 20957 92.00x31.75x 1.10mm 0.911 1.66 1 1.66 1.51

Frame top 20958 92.00 x31.75x 1.10mm 0.759 1.66 1 1.66 1.26

Frame Side 20958 92.00 x31.75x 1.10mm 0.759 1.40 2 2.80 2.13

Shutter bottom & top 20805 40.00 x 18.00 x 0.91mm 0.325 0.50 6 3.00 0.98

Shutter interlock 20806 40.00 x 18.00x 0.89mm 0.380 1.38 4 5.52 2.10

Shutter handle side 20807 40.00x 18.00x 0.91 mm 0.325 1.38 2 2.76 0.90

8.87 kg
Glazing 3 0.50 1.305 1.96 m2
Fixed window without mullion

1.1

Length

1.20
Hight

Length 1.10
Hight 1.20
Section Total
Member name Size Weight / m Length Nos lenth Weight

Frame Horizontal 20049 50.80x 25.40x 0.73 mm 0.342 1.10 2 2.20 0.75

Frame Vertical 20049 50.80x 25.40x 0.73 mm 0.342 1.15 2 2.30 0.79

Glazing clip 19352 17.30 x19x 0.70mm 0.097 4.30 2 8.59 0.83

Total weight 2.37 kg

Glazing 1 1.05 1.150 1.21 m2


Fixed window without mullion

1.66

Length

1.40
Hight

Length 1.66
Hight 1.40
Section Total
Member name Size Weight / m Length Nos lenth Weight

Frame Horizontal 20043 50.80x 25.40x 0.91 mm 0.414 1.66 2 3.32 1.37

Frame Vertical 20043 50.80x 25.40x 0.91 mm 0.414 1.35 2 2.70 1.12

Glazing clip 19352 17.30 x19x 0.70mm 0.097 5.82 2 11.63 1.13

Total weight 3.62 kg

Glazing 1 1.61 1.350 2.17 m2


Fixed window with one mullion

1.00 1.00

Length

1.40
Hight

A B
Length 1.00 1.00
Hight 1.40
Section Total
Member name Size Weight / m Length Nos lenth Weight

Frame Horizontal 20049 50.80x 25.40x 0.73 mm 0.342 2.00 2 4.00 1.37

Frame Vertical ( outer ) 20049 50.80x 25.40x 0.73 mm 0.342 1.35 2 2.70 0.92
Mullion 20050 50.80x 25.40x 0.63mm 0.350 1.35 1 1.35 0.47

Glazing clip 19352 17.30 x19x 0.70mm 0.097 18.49 1 18.49 1.79

Total weight 4.56 kg

Glazing 1 0.96 1.35 1.30 m2


1 0.96 1.35 1.30 m2
2.59 m2
Fixed window with one mullion

1.00 1.00

Length

1.40
Hight

A B
Length 1.00 1.00
Hight 1.40
Section Total
Member name Size Weight / m Length Nos lenth Weight

Frame Horizontal 20043 50.80x 25.40x 0.91 mm 0.414 2.00 2 4.00 1.66

Frame Vertical ( outer ) 20043 50.80x 25.40x 0.91 mm 0.414 1.35 2 2.70 1.12
Mullion 20044 50.80x 25.40x 0.79mm 0.414 1.35 1 1.35 0.56

Glazing clip 19352 17.30 x19x 0.70mm 0.097 18.49 1 18.49 1.79

Total weight 5.13 kg

Glazing 1 0.96 1.35 1.30 m2


1 0.96 1.35 1.30 m2
2.59 m2
Door shutter
1.00

Length

1.00
1.00

Length 1.00
particle board Glaze
Hight 1.00 1.00 ( c/c distance )
Section Total
Member name Size Weight / m Length Nos lenth Weight

Shutter frame vertical 19543 47.62x 44.45x 0.80 mm 0.493 2.00 2 4.00 1.97

Shutter frame Bottom 19544 95.25x 44.45x 0.89 mm 0.719 0.912 1 0.91 0.66

Shutter frame top 19576 47.62x44.45x0.99 mm 0.537 0.912 1 0.91 0.49


Shutter frame intermedie 19575 49.91x44.45x1.60 0.882 0.95 1 0.95 0.84

Glazing clip 19352 17.30 x19x 0.70mm 0.097 14.53 1 14.53 1.41

Total weight 5.36 kg

Glazing 1 0.91 0.88 0.80 m2


Particle board 1 0.91 0.93 0.85 m2
1.65 m2
Door shutter
0.90

Length

1.00
0.90

Length 0.90
particle board Glaze
Hight 0.90 1.00 ( c/c distance )
Section Total
Member name Size Weight / m Length Nos lenth Weight

Shutter frame vertical 19538 47.62x 44.45x 1.18 mm 0.667 1.90 2 3.80 2.53

Shutter frame Bottom 19529 95.25x 44.45x 1.16 mm 0.911 0.812 1 0.81 0.74

Shutter frame top 19539 47.62X44.45x1.40 mm 0.719 0.812 1 0.81 0.58


Shutter frame intermedie 19575 49.91x44.45x1.60 0.882 0.85 1 0.85 0.75

Glazing clip 19352 17.30 x19x 0.70mm 0.097 13.33 1 13.33 1.29

Total weight 5.90 kg

Glazing 1 0.81 0.88 0.71 m2


Particle board 1 0.81 0.83 0.67 m2
1.39 m2
Jindal section Series A (15 mm ) Sliding Two track

1.68

Length

Hight
2.10

Length 1.68
Hight 2.10
Series A
Section Total
Member name Size Weight / m Length Nos lenth Weight
Frame Rectangular
Horizontal 14080 61.00x37.00x0.90mm 0.471 1.56 4 6.23 2.94
Frame Rectangular
Vertical 14080 61.00x37.00x0.90mm 0.471 2.10 2 4.20 1.98
Sliding Track Channel
Horizontal 15741 19.00x15.00x1.00mm 0.127 1.56 6 9.35 1.19
Sliding Track Channel
Vertical 15741 19.00x15.00x1.00mm 0.127 1.86 2 3.71 0.47

Shutter interlock 20810 37.50x15.00x 1.07 mm 0.369 1.86 2 3.71 1.37

Shutter Vertical 20668 37.50x15.00x 1.36 mm 0.377 1.86 2 3.71 1.40

Shutter Hoizontal 20668 37.50x15.00x 1.36 mm 0.377 1.60 6 9.57 3.61

9.34 kg
Glazing 1 1.48 1.631 2.42 m2
Jindal section Series A (15 mm ) Sliding Two track

3.28

Length

Hight
2.10
Length 3.28
Hight 2.10
Series A
Section Total
Member name Size Weight / m Length Nos lenth Weight
Frame Rectangular
Horizontal 14080 61.00x37.00x0.90mm 0.471 3.16 4 12.63 5.95
Frame Rectangular
Vertical 14080 61.00x37.00x0.90mm 0.471 2.10 2 4.20 1.98
Frame Rectangular
Vertical 14080 61.00x37.00x0.90mm 0.471 1.86 1 1.86 0.87
Sliding Track Channel
Horizontal 15741 19.00x15.00x1.00mm 0.127 3.10 6 18.58 2.36
Sliding Track Channel
Vertical 15741 19.00x15.00x1.00mm 0.127 1.86 4 7.42 0.94

Shutter interlock 20810 37.50x15.00x 1.07 mm 0.369 1.86 4 7.42 2.74

Shutter Vertical 20668 37.50x15.00x 1.36 mm 0.377 1.86 4 7.42 2.80

Shutter Hoizontal 20668 37.50x15.00x 1.36 mm 0.377 3.17 6 19.03 7.18


17.64 kg

Glazing 1 2.95 1.631 4.81 m2


Jindal section Series A (15 mm ) Sliding Two track

1.2

Hight
Length 1.20 0.50

Hight 0.50
Series A
Section Total
Member name Size Weight / m Length Nos length Weight
Frame Rectangular
Horizontal 14080 61.00x37.00x0.90mm 0.471 1.13 2 2.25 1.06
Frame Rectangular
Vertical 14080 61.00x37.00x0.90mm 0.471 0.50 2 1.00 0.47
Sliding Track Channel
Horizontal 15741 19.00x15.00x1.00mm 0.127 1.13 2 2.25 0.29
Sliding Track Channel
Vertical 15741 19.00x15.00x1.00mm 0.127 0.43 2 0.85 0.11

Shutter interlock 20810 37.50x15.00x 1.07 mm 0.369 0.43 2 0.85 0.31

Shutter Vertical 20668 37.50x15.00x 1.36 mm 0.377 0.42 2 0.84 0.32

Shutter Hoizontal 20668 37.50x15.00x 1.36 mm 0.377 1.16 2 2.32 0.87

2.56 kg

Glazing 1 1.05 0.351 0.37 m2


Partition wall
3.00

3.00
rec

Note: Door area excluded 1.00

Length 3.00
Hight 3.00
Particle board hight 1.00
Door Width 1.00 Door Hight 2.00
Section Total
Member name Size Weight / m Length Nos lenth Weight
Frame Horizontal
( outer )
@ top 20043 50.80x 25.40x 0.91 mm 0.414 3.00 1 3.00 1.24
@ bottom 20043 50.80x 25.40x 0.91 mm 0.414 2.00 1 2.00 0.83
Frame Vertical ( outer ) 20043 50.80x 25.40x 0.91 mm 0.414 3.00 2 6.00 2.48
@ door opening 20043 50.80x 25.40x 0.91 mm 0.414 2.00 1 2.00 0.83
Frame Horizontal
(intermediet ) 20044 50.80x 25.40x 0.79mm 0.414 2.90 1 2.90 1.20
(intermediet ) 20044 50.80x 25.40x 0.79mm 0.414 1.925 1 1.93 0.80
Frame Vertical
(intermediet ) 20044 50.80x 25.40x 0.79mm 0.414 2.95 1 2.95 1.22
(intermediet ) 20044 50.80x 25.40x 0.79mm 0.414 0.95 1 0.95 0.39

Glazing clip 19352 17.30 x19x 0.70mm 0.097 54.00 1 54.00 5.24

Total weight 14.23 kg

Glazing 4.58 m2
Particle board 1.93 m2
Partition wall
3.00

2.70
rec

Note: Door area excluded 2.00

Length 3.00
Hight 2.70
Door Width 1.00 Door Hight 2.00
Section Total
Member name Size Weight / m Length Nos lenth Weight
Frame Horizontal
( outer )
@ top 14137 50.00x40.00x1.60mm 0.750 3.00 1 3.00 2.25
@ bottom 14137 50.00x40.00x1.60mm 0.750 2.00 1 2.00 1.50
Frame Vertical ( outer ) 14137 50.00x40.00x1.60mm 0.750 2.70 4 10.80 8.10
Frame Horizontal
(intermediet ) 14137 50.00x40.00x1.60mm 0.750 2.84 1 2.84 2.13

Glazing clip (RHS) 19352 17.30 x19x 0.70mm 0.097 52.64 1 52.64 5.11

Total weight 19.09 kg

Glazing 2 0.77 1.92 2.96 m2

2 0.77 0.960 1.48 m2

1 1.00 0.960 0.96 m2


5.40 m2
Partition wall
3.00

rec

2.00
Note: Door area excluded

Length 3.00
Hight 2.04
Half wall height 1.20
Door Width 1.00 Door Hight 2.00
Section Total
Member name Size Weight / m Length Nos lenth Weight
Frame Horizontal ( outer )
@ top 14137 50.00x40.00x1.60mm 0.750 3.00 1 3.00 2.25
@ bottom 14137 50.00x40.00x1.60mm 0.750 2.00 1 2.00 1.50
Frame Vertical ( outer ) 14137 50.00x40.00x1.60mm 0.750 2.04 2 4.08 3.06

Frame Vertical(intermediet ) 14137 50.00x40.00x1.60mm 0.750 0.76 1 0.76 0.57

Glazing clip (RHS) 19352 17.30 x19x 0.70mm 0.097 13.44 1 13.44 1.30

Total weight 8.68 kg

Glazing 2 0.92 0.76 1.40 m2


1.40 m2
Partition wall
### 4.30

rec

Note: Door area excluded

Length 4.30
Hight 2.40
Particle board hight 1.00
Door Width 1.00 Door Hight 2.00
Section Total
Member name Size Weight / m Length Nos lenth Weight
Frame Horizontal
( outer )
@ top 20043 50.80x 25.40x 0.91 mm 0.414 4.30 1 4.30 1.78
@ bottom 20043 50.80x 25.40x 0.91 mm 0.414 3.30 1 3.30 1.37
Frame Vertical ( outer ) 20043 50.80x 25.40x 0.91 mm 0.414 2.40 2 4.80 1.99
@ door opening 20043 50.80x 25.40x 0.91 mm 0.414 2.00 2 4.00 1.66
Frame Horizontal
(intermediet ) 20044 50.80x 25.40x 0.79mm 0.414 3.20 2 6.40 2.65
(intermediet ) 20043 50.80x 25.40x 0.91 mm 0.414 1.000 1 1.00 0.41
Frame Vertical
(intermediet ) 20044 50.80x 25.40x 0.79mm 0.414 1.95 1 1.95 0.81
(intermediet ) 20044 50.80x 25.40x 0.79mm 0.414 0.35 3 1.05 0.43

Glazing clip 19352 17.30 x19x 0.70mm 0.097 71.40 1 71.40 6.93

Total weight 18.02 kg

Glazing 4.64 m2
Particle board 3.02 m2
Partition wall
3.15

2.10
rec

Note: Door area excluded 1.00

Length 3.15
Hight 2.10
Particle board hight 1.00
Door Width 1.00 Door Hight 2.10
Section Total
Member name Size Weight / m Length Nos length Weight
Frame Horizontal
( outer )
@ top 20043 50.80x 25.40x 0.91 mm 0.414 3.15 1 3.15 1.30
@ bottom 20043 50.80x 25.40x 0.91 mm 0.414 2.15 1 2.15 0.89
Frame Vertical ( outer ) 20043 50.80x 25.40x 0.91 mm 0.414 2.10 2 4.20 1.74
@ door opening 20043 50.80x 25.40x 0.91 mm 0.414 2.10 1 2.10 0.87
Frame Horizontal
(intermediet ) 20044 50.80x 25.40x 0.79mm 0.414 2.05 1 2.05 0.85

Frame Vertical
(intermediet ) 20044 50.80x 25.40x 0.79mm 0.414 2.05 1 2.05 0.85

Glazing clip 19352 17.30 x19x 0.70mm 0.097 32.80 1 32.80 3.18

Total weight 9.68 kg

Glazing 2.10 m2
Particle board 2.05 m2
Jindal section Series A (15 mm ) Sliding Two track

0.60

Hight
Length 0.60 0.45

Hight 0.45
Series A
Section Total
Member name Size Weight / m Length Nos length Weight
Frame Rectangular
Horizontal 14080 61.00x37.00x0.90mm 0.471 0.53 2 1.05 0.50
Frame Rectangular
Vertical 14080 61.00x37.00x0.90mm 0.471 0.45 3 1.35 0.64

Shutter Vertical 20668 37.50x15.00x 1.36 mm 0.377 0.26 8 2.04 0.77

Shutter Hoizontal 20668 37.50x15.00x 1.36 mm 0.377 0.24 4 0.96 0.36

2.26 kg

Glazing 4 0.24 0.255 0.24 m2


485
1.616667

0.193595
Jindal section Series A (15 mm ) Sliding Two track

0.6

Hight
Length 0.60 0.45

Hight 0.45
Series A
Section Total
Member name Size Weight / m Length Nos length Weight
Frame Rectangular
Horizontal 14080 61.00x37.00x0.90mm 0.471 0.53 2 1.05 0.50
Frame Rectangular
Vertical 14080 61.00x37.00x0.90mm 0.471 0.45 2 0.90 0.42

Shutter Vertical 20668 37.50x15.00x 1.36 mm 0.377 0.37 4 1.48 0.56

Shutter Hoizontal 20668 37.50x15.00x 1.36 mm 0.377 0.48 4 1.92 0.72

2.20 kg

Glazing 2 0.48 0.370 0.36 m2


Jindal section Series A (15 mm ) Two track

1500

Length

Hight

2000
co co
co co

Length 1.50
Hight 2.00

Member Section name Weight/Mtr Length Weight

Frame Outer 20654 0.364 7.12 2.59

mullion 20658 0.367 4.96 1.82

Shutter 20645 0.364 11.83 4.30

Glazing clip 19352 0.097 31.64 3.07

Glazing 2 0.776 1.98 3.06

14.85
section no size wight in kg/m Series
20671 75.00x26x 1mm 0.699 Series A
20815 92.00x31.75x 0.88mm 0.739 Series B
20957 92.00x31.75x 1.10mm 0.911 Series B
20672 75.00 x26.00 x1.00mm 0.594 Series A
20816 92.00 x31.75x 0.88mm 0.683 Series B
20958 92.00 x31.75x 1.10mm 0.759 Series B
20809 37.50x 15x 1.08mm 0.329 Series A
20545 40.00 x 18.00 x 0.79mm 0.288 Series B
20805 40.00 x 18.00 x 0.91mm 0.325 Series B
20810 37.50x15.00x 1.07 mm 0.369 Series A
20546 40.00 x 18.00x 0.80mm 0.346 Series B
20806 40.00 x 18.00x 0.89mm 0.38 Series B
20668 37.50x15.00x 1.36 mm 0.377 Series A
20547 40.00x 18.00x 0.79mm 0.289 Series B
20807 40.00x 18.00x 0.91 mm 0.325 Series B
20669 50.30x26x 1.20mm 0.548 Series A
20813 61.85x31.75x 0.85mm 0.547 Series B
20956 61.85x31.75x 1.05mm 0.613 Series B
20670 50.30 x 26x 1.00mm 0.432 Series A
20812 61.85 x31.75x 0.81mm 0.441 Series B
20966 61.85 x31.75x 1.00mm 0.547 Series B
20050 50.80x 25.40x 0.63mm 0.35 None
20044 50.80x 25.40x 0.79mm 0.414 None
20079 50.80x 25.40x 0.98mm 0.496 None
20049 50.80x 25.40x 0.73 mm 0.342 None
20043 50.80x 25.40x 0.91 mm 0.414 None
20080 50.80x 25.40x 1.09 mm 0.489 None
14027 50.80 x 25.40 x 0.95mm 0.381 None
14093 50.80 x 25.40 x 1.04 mm 0.414 None
14036 50.80 x 25.40 x 1.13 mm 0.451 None
19352 17.30 x19x 0.70mm 0.097 None
19370 17.30 x19x 0.80mm 0.109 None
19543 47.62x 44.45x 0.80 mm 0.493 None
19538 47.62x 44.45x 1.18 mm 0.667 None
19547 47.62x 44.45x 1.35 mm 0.759 None
19544 95.25x 44.45x 0.89 mm 0.719 None
19529 95.25x 44.45x 1.16 mm 0.911 None
19505 95.25x44.45x1.301 mm 1.301 None
19576 47.62x44.45x0.99 mm 0.537 None
19539 47.62X44.45x1.40 mm 0.719 None
19575 49.91x44.45x1.60 0.882 None
19352 17.30x 19x0.70 mm 0.097 None
19370 17.30x 19x0.80 mm 0.109 None
14080 61.00x37.00x0.90mm 0.471 None
15741 19.00x15.00x1.00mm 0.127 None
9769 25.40 x25.40x1.42 mm 0.368
8311 25.40 X25.40X 1.00 0.264
1787 25.40x 25.40X 1.10 m 0.148
1794 25.4 x25.40X 1.59 m 0.211
35005 50x25x2mm 0.767
14454 19.05x19.05x1.63mm 0.307
14137 50.00x40.00x1.60mm 0.75
2.6666666667
member
window frame (Bottom )
window frame (Bottom )
window frame (Bottom )
Window frame ( side and top)
Window frame ( side and top)
Window frame ( side and top)
Shutter frame - Top and bottom
Shutter frame - Top and bottom
Shutter frame - Top and bottom
Shutter frame - Interlock
Shutter frame - Interlock
Shutter frame - Interlock
Shutter side
Shutter side
Shutter side
window frame (Bottom )
window frame (Bottom )
window frame (Bottom )
Window frame ( side and top)
Window frame ( side and top)
Window frame ( side and top)
Partition frame Double groove
Partition frame Double groove
Partition frame Double groove
Partition frame Single groove
Partition frame Single groove
Partition frame Single groove
No Groove
No Groove
No Groove
Glazing clip
Glazing clip
Door Shutter vertical
Door Shutter vertical
Door Shutter vertical
Door Frame ( bottom)
Door Frame ( bottom)
Door Frame ( bottom)
Shutter frame top
Shutter frame top
Shuetter frame interlock
Glazing clip
Glazing clip
Rectangular holoow section.
Chanel section
Square Tube
Square Tube
Equal Leg Angle
Equal Leg Angle
Rectangular holoow section.
Square Tube
Rectangular holoow section.

13.85714

You might also like