KEMBAR78
Construction Blueprint Data | PDF
0% found this document useful (0 votes)
59 views1 page

Construction Blueprint Data

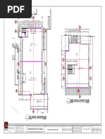
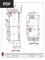
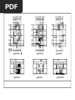
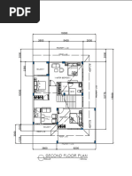
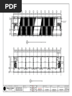
This document appears to be a schematic floor plan with 6 levels labeled 1 through 6. Each level contains various room labels and measurements in feet. The top level, labeled roof deck, is 120 feet wide and has a roof deck. Levels 2 through 6 each contain 4500 square feet of space.
Copyright
© © All Rights Reserved
We take content rights seriously. If you suspect this is your content, claim it here.
Available Formats
Download as PDF, TXT or read online on Scribd
0% found this document useful (0 votes)
59 views1 page

Construction Blueprint Data

This document appears to be a schematic floor plan with 6 levels labeled 1 through 6. Each level contains various room labels and measurements in feet. The top level, labeled roof deck, is 120 feet wide and has a roof deck. Levels 2 through 6 each contain 4500 square feet of space.
Copyright
© © All Rights Reserved
We take content rights seriously. If you suspect this is your content, claim it here.
Available Formats
Download as PDF, TXT or read online on Scribd
You are on page 1/ 1

A B C D

12000
4000 4000 4000

2000
300
1

4500

4500
2

4500

4500
R O O F D E C K
3
21500

21500
4500

4500

1800
4

1300
DN
4000

4000

STAIR WELL
5

1300
4000

4000
6

250
6537.1834

4000 4000 4000


12000

ROOF DECK

You might also like