KEMBAR78
Longitudinal Section of Longitudinal Girder 600: 2-32mmø 2-32mmø 2-32mmø | PDF | Civil Engineering | Structural Engineering
0% found this document useful (0 votes)
141 views1 page

Longitudinal Section of Longitudinal Girder 600: 2-32mmø 2-32mmø 2-32mmø

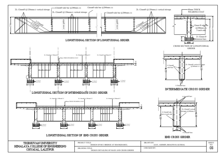
The document contains engineering drawings of bridge components including longitudinal girders and cross girders. The longitudinal girder details show side bars and vertical stirrups arranged at set centers, with dimensioned cross sections. Cross girder details likewise specify reinforcement bar sizes and placements, as well as wearing coat thicknesses for the bridge components.
Copyright
© © All Rights Reserved
We take content rights seriously. If you suspect this is your content, claim it here.
Available Formats
Download as PDF, TXT or read online on Scribd
0% found this document useful (0 votes)
141 views1 page

Longitudinal Section of Longitudinal Girder 600: 2-32mmø 2-32mmø 2-32mmø

The document contains engineering drawings of bridge components including longitudinal girders and cross girders. The longitudinal girder details show side bars and vertical stirrups arranged at set centers, with dimensioned cross sections. Cross girder details likewise specify reinforcement bar sizes and placements, as well as wearing coat thicknesses for the bridge components.
Copyright
© © All Rights Reserved
We take content rights seriously. If you suspect this is your content, claim it here.
Available Formats
Download as PDF, TXT or read online on Scribd
You are on page 1/ 1

12mmØ side bar @200mm c/c 12mmØ side bar @200mm c/c

2L-12mmØ @120mmc/c vertical stirrups 2L-12mmØ @120mmc/c vertical stirrups 80mm THICK
2L-12mmØ @120mmc/c vertical stirrups 12mmØ side bar @200mm c/c WEARING COAT

cross girder

cross girder
2-3 2-32 Ø
2 m
2-3 mm mØ mm mØ
1750

2 12mm Ø side bar


2m Ø 2-3 -32m mØ

1750
mØ 2 2m

1550
@200mm c/c
2-3 5 each side

21-32mm Ø

300
tension bars
LONGITUDINAL SECTION OF LONGITUDINAL GIRDER
600
CROSS SECTION OF LONGITUDINAL
GIRDER

2L-10mmØ @ 300mmC/C 2L-10mmØ @ 300mmC/C 2L-10mmØ @ 300mmC/C

80mm THICK WEARING COAT

150
2L-10mmØ vertical stirrupps
3-12mmØ

1350
@300mm c/c
side bars

1150
145°

21-32mm Ø 21-32mm Ø 21-32mm Ø 21-32mm Ø


tension bars tension bars tension bars tension bars

600 600 600 600 3-25mmØ bars

INTERMEDIATE CROSS GIRDER


LONGITUDINAL SECTION OF INTERMEDIATE CROSS GIRDER
3-20mmØ bars
2L-10mmØ @ 200mmC/C 2L-10mmØ @ 200mmC/C 2L-10mmØ @ 200mmC/C

80mm THICK WEARING COAT

150
2L-10mmØ vertical
stirrupps @200mm c/c
4-12mmØ side

1350
bars at each side

1150
21-32mm Ø 21-32mm Ø 21-32mm Ø 21-32mm Ø
tension bars tension bars tension bars tension bars

600 600 600 600


400
5-25mmØ bars
LONGITUDINAL SECTION OF END CROSS GIRDER
END CROSS GIRDER
PROJECT TITLE: DRAWN BY: SHEET
TRIBHUVAN UNIVERSITY DESIGN OF RCC BRIDGE AT SHANKHAMUL AJAY, ASHMIN, BHAGWAN, KUSHAL NO:
HIMALAYA COLLEGE OF ENGINEERING
CHYASAL, LALITPUR
DRAWING TITLE: CHECKED BY: 08
DESIGN DETAILING OF MAIN AND CROSS GIRDER

You might also like