KEMBAR78
Cross Section: Bedroom Master'S Bedroom | PDF
0% found this document useful (0 votes)
674 views1 page

Cross Section: Bedroom Master'S Bedroom

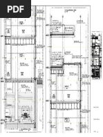
This architectural drawing shows the floor plans and cross section of a house. The floor plans depict a master bedroom measuring 2.80 by .30 meters, a living room measuring 3.00 by .20 meters, and a carport. The cross section further illustrates the layout and dimensions of the master bedroom, living room, and addition of a balcony and porch.

Uploaded by

Diana Chumacera
Copyright
© © All Rights Reserved
We take content rights seriously. If you suspect this is your content, claim it here.
Available Formats
Download as PDF, TXT or read online on Scribd
0% found this document useful (0 votes)
674 views1 page

Cross Section: Bedroom Master'S Bedroom

This architectural drawing shows the floor plans and cross section of a house. The floor plans depict a master bedroom measuring 2.80 by .30 meters, a living room measuring 3.00 by .20 meters, and a carport. The cross section further illustrates the layout and dimensions of the master bedroom, living room, and addition of a balcony and porch.

Uploaded by

Diana Chumacera
Copyright
© © All Rights Reserved
We take content rights seriously. If you suspect this is your content, claim it here.
Available Formats
Download as PDF, TXT or read online on Scribd
You are on page 1/ 1

2.

80
.30
BEDROOM MASTER'S
BEDROOM

3.00
.20
CARPORT LIVING ROOM

3.20
.60
CROSS SECTION
SCALE 1:100

2.80
.30
BALCONY BALCONY
3.00
.20

T&B
3.20

BAR LIVING ROOM PORCH


.60

LONGITUDINAL SECTION
SCALE 1:100

You might also like