KEMBAR78
A D B C: Floor Framing Plan - Story2 (EL. 26'-0'') | PDF
0% found this document useful (0 votes)
59 views1 page

A D B C: Floor Framing Plan - Story2 (EL. 26'-0'')

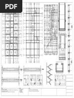
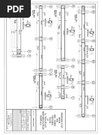
1. The document shows engineering drawings of beams with labels for dimensions, reinforcement bar sizes and spacing, and sections of beams FB-1 and FB-5 that are 12 inches by 15 inches. 2. Reinforcement includes straight bars of varying diameters spaced at either 4 inches or 7 inches center to center. 3. Sections A through D correspond to views of different segments of the beams.

Uploaded by

sefat
Copyright
© © All Rights Reserved
We take content rights seriously. If you suspect this is your content, claim it here.
Available Formats
Download as PDF, TXT or read online on Scribd
0% found this document useful (0 votes)
59 views1 page

A D B C: Floor Framing Plan - Story2 (EL. 26'-0'')

1. The document shows engineering drawings of beams with labels for dimensions, reinforcement bar sizes and spacing, and sections of beams FB-1 and FB-5 that are 12 inches by 15 inches. 2. Reinforcement includes straight bars of varying diameters spaced at either 4 inches or 7 inches center to center. 3. Sections A through D correspond to views of different segments of the beams.

Uploaded by

sefat
Copyright
© © All Rights Reserved
We take content rights seriously. If you suspect this is your content, claim it here.
Available Formats
Download as PDF, TXT or read online on Scribd
You are on page 1/ 1

A D B C

1-16mm Ø Ext.(T)
0 1 2 3 7

2 2A 2-16mm Ø Str. 2 2A 2-16mm Ø Str.

492.0000

12" 12" 12" 12" 12" 12" 12" 12"

162.0000 174.0000 156.0000

2-16 mm Ø Str. 3-16 mm Ø Str.


2 2A 2-16 mm Ø Str. 2 2A 3-16 mm Ø Str.
L/4 L/4 L/4 L/4 L/4 L/4 L/4 L/4
10mm Ø @4"c/c 10mm Ø @7"c/c 10mm Ø @4"c/c 10mm Ø @4"c/c 10mm Ø @7"c/c 10mm Ø @4"c/c 10mm Ø @4"c/c 10mm Ø @7"c/c 10mm Ø @4"c/c 10mm Ø @4"c/c 10mm Ø @7"c/c 10mm Ø @4"c/c

4CB1S1 4CB1S2 4CB1S3


7 LONG SECTION OF BEAM FB-1 (12"x15") LONG SECTION OF BEAM FB-5 (12"x15")

FB-2
1-16mm Ø Ext.(T)
2-16mm Ø str.
2-16mm Ø Str. 2-16mm Ø Str.
A D

10mm Ø @4"c/c 10mm Ø @7"c/c 2

15"

15"
2-16mm Ø Str.
4CB2S3

4CB4S4

4CB5S3

4CB5S3

3-16 mm Ø Str. 3-16 mm Ø Str.


12" 12"
12" 12"
159.0000

SECTION:2A-2A (FB-1) SECTION:2-2 (FB-1)

15"
2-16mm Ø Str.
2 3-16 mm Ø Str.
L/4 L/4 12"
10mm Ø @4"c/c 10mm Ø @7"c/c 10mm Ø @4"c/c
4CB3S1 4CB3S2 4CB3S3 SECTION:2A-2A (GB-3)
3
1-16mm Ø Ext.(T) 1-16mm Ø Ext.(T) 1-16mm Ø Ext.(T) 1-16mm Ø Ext.(T)

FB-2 A D B C

2 2A 2-16mm Ø Str. 2 3
FB-4
FB-3
FB-4

12" 12"
4CB2S2

4CB4S3

4CB5S2

4CB5S2

12" 12" 12" 12"


FB-1

171.9996

492.9996

3-16mm Ø Str. 3-16mm Ø Str.


2 2A 3-16 mm Ø Str. 2 3
L/4 L/4 L/4 L/4 L/4 L/4
10mm Ø @4"c/c 10mm Ø @7"c/c 10mm Ø @4"c/c 10mm Ø @7"c/c 10mm Ø @4"c/c 10mm Ø @4"c/c 10mm Ø @7"c/c
10mm Ø @4"c/c 10mm Ø @4"c/c

4CB3S1 4CB3S2 4CB3S3


2 LONG SECTION OF BEAM FB-2 (12"x15")

FB-2 1-16mm Ø Ext.(T)


2-16mm Ø Str. 2-16mm Ø Str.
4CB4S2

4CB5S1

4CB5S1

15"

15"

10mm Ø @4"c/c 10mm Ø @7"c/c


1-16mm Ø Ext.(T) 1-16mm Ø Ext.(T)
162.0000

0 2 3 7

3-16 mm Ø Str. 3-16 mm Ø Str. 2 2A 2-16mm Ø Str. 2


12" 12"

SECTION:2A-2A (FB-2) SECTION:2-2 (FB-2) 12" 12" 12" 12" 12" 12"
4CB2S1
24'-6"

4CB6S1 4CB6S2
1 3-16mm Ø Str.
2 3-16mm Ø Str.
2
L/4 L/4 L/4
2A 3-16 mm Ø Str.
L/4 L/4 L/4
1-16mm Ø Ext.(T) 1-16mm Ø Ext.(T) 1-16mm Ø Ext.(T) 1-16mm Ø Ext.(T) 10mm Ø @4"c/c 10mm Ø @7"c/c 10mm Ø @4"c/c 10mm Ø @7"c/c 10mm Ø @4"c/c 10mm Ø @4"c/c 10mm Ø @7"c/c
B 10mm Ø @4"c/c 10mm Ø @4"c/c

FB-3
D C
2 2A 2-16mm Ø Str.
4CB4S1

LONG SECTION OF BEAM FB-3 (12"x15")


12" 12" 12" 12"

1-16mm Ø Ext.(T)
2-16mm Ø Str. 2-16mm Ø Str.

4CB7S1 3-16mm Ø Str.


2 2A
0 L/4 L/4 L/4
3-16 mm Ø Str.
L/4

15"

15"
10mm Ø @4"c/c 10mm Ø @7"c/c
10mm Ø @4"c/c 10mm Ø @7"c/c 10mm Ø @4"c/c 10mm Ø @7"c/c 10mm Ø @4"c/c
10mm Ø @4"c/c

FB-5 13'-6"
LONG SECTION OF BEAM FB-3 (12"x15")
1-16mm Ø Ext.(T)
2-16mm Ø Str. 2-16mm Ø Str.
12"
3-16 mm Ø Str.
12"
3-16 mm Ø Str.

SECTION:2A-2A (FB-4) SECTION:2-2 (FB-4)


15"

15"

10mm Ø @4"c/c 10mm Ø @7"c/c

3-16 mm Ø Str. 3-16 mm Ø Str.


12" 12"

SECTION:2A-2A (FB-3) SECTION:2-2 (FB-3)


Floor Framing Plan - Story2 (EL. 26'-0'')
(Scale 1/8 = 1'-0")

1-16mm Ø Ext.(T) 1-16mm Ø Ext.(T)


0 2 3 7

2 2A 2-16mm Ø Str. 2 3

12" 12" 12" 12" 12" 12"

2-16mm Ø Str. 2-16mm Ø Str.


2 2A 2-16 mm Ø Str. 2 3
L/4 L/4 L/4 L/4 L/4 L/4
10mm Ø @4"c/c 10mm Ø @7"c/c 10mm Ø @4"c/c 10mm Ø @7"c/c 10mm Ø @4"c/c 10mm Ø @4"c/c 10mm Ø @7"c/c
10mm Ø @4"c/c 10mm Ø @4"c/c

LONG SECTION OF BEAM FB-4 (12"x15")

1-16mm Ø Ext.(T)
2-16mm Ø Str. 2-16mm Ø Str.
15"

15"

10mm Ø @4"c/c 10mm Ø @7"c/c

2-16 mm Ø Str. 2-16 mm Ø Str.


12" 12"

SECTION:2A-2A (FB-4) SECTION:2-2 (FB-4)

You might also like