KEMBAR78
Second Floor Framing Plan: A B D C F | PDF
0% found this document useful (0 votes)
931 views1 page

Second Floor Framing Plan: A B D C F

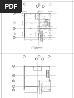
The document appears to be a framing plan showing the layout of columns, beams, and other structural elements on the second floor of a building. Element A connects to elements B and C. Beams labeled RCB-1 span in various directions between columns, and elements labeled S-1 and S-2 appear to be structural supports.

Uploaded by

John Remmel Roga
Copyright
© © All Rights Reserved
We take content rights seriously. If you suspect this is your content, claim it here.
Available Formats
Download as PDF, TXT or read online on Scribd
0% found this document useful (0 votes)
931 views1 page

Second Floor Framing Plan: A B D C F

The document appears to be a framing plan showing the layout of columns, beams, and other structural elements on the second floor of a building. Element A connects to elements B and C. Beams labeled RCB-1 span in various directions between columns, and elements labeled S-1 and S-2 appear to be structural supports.

Uploaded by

John Remmel Roga
Copyright
© © All Rights Reserved
We take content rights seriously. If you suspect this is your content, claim it here.
Available Formats
Download as PDF, TXT or read online on Scribd
You are on page 1/ 1

A B C F D

RCB-1 RCB-1 RCB-1 RCB-1

RCB-1

RCB-1

RCB-1
RCB-1
S-1 S-1 S-1

S-1 S-2

RCB-1
RCB-1 RCB-1

RCB-1

RCB-1
S-1
RCB-1

RCB-1

RCB-1
S-1 S-1 RCB-1 RCB-1

S-2
RCB-1 RCB-1

SECOND FLOOR FRAMING PLAN


SCALE: 1:100MTS.

You might also like