KEMBAR78
WT Sheet-Distribution | PDF | Mechanical Engineering | Nature
0% found this document useful (0 votes)
81 views6 pages

WT Sheet-Distribution

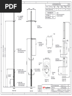
The document contains datasheets for multiple steel poles ranging from 9-12 meters in height and able to withstand loads between 200-1250 daN. Each datasheet provides specifications for the pole dimensions, number of sections, thickness, embedded length, bearing plate details, weight, required concrete volume, and standard design considerations for wind pressure, deflection criteria, and safety factor.

Uploaded by

Akash Boga
Copyright
© © All Rights Reserved
We take content rights seriously. If you suspect this is your content, claim it here.
Available Formats
Download as PDF, TXT or read online on Scribd
0% found this document useful (0 votes)
81 views6 pages

WT Sheet-Distribution

The document contains datasheets for multiple steel poles ranging from 9-12 meters in height and able to withstand loads between 200-1250 daN. Each datasheet provides specifications for the pole dimensions, number of sections, thickness, embedded length, bearing plate details, weight, required concrete volume, and standard design considerations for wind pressure, deflection criteria, and safety factor.

Uploaded by

Akash Boga
Copyright
© © All Rights Reserved
We take content rights seriously. If you suspect this is your content, claim it here.
Available Formats
Download as PDF, TXT or read online on Scribd
You are on page 1/ 6

DATASHEET - 9M-200 daN pole

Height of pole (M) 9

Pole Grade
Bottom dia (mm) 180

E355
Top dia (mm) 90
NO. OF SECTION 1
Thickness (mm) 4

(8_Sided)
Details
Pole
Embedded length (m) 1.4
Point of load application from
250
top (mm)

BEARING PLATE
Plate Size.(mm) 280
Thickness (mm) 6
Weight (kG) 4 (4_Sided)

Black Weight of pole +


127
Bearing Plate Kg

Volume of PCC m3 0.118


3
Excavated area m 0.118

CONSIDERATIONS:
1 Wind Pressure on Pole : 50 daN/m^2
2 Deflection criteria : 5%
3 Safety Factor : 1.8
DATASHEET - 9M-400 daN pole

Height of pole (M) 9

Pole Grade
Bottom dia (mm) 250

E355
Top dia (mm) 120
NO. OF SECTION 1
Thickness (mm) 4

(8_Sided)
Details
Pole
Embedded length (m) 1.5
Point of load application from
250
top (mm)

BEARING PLATE
Plate Size.(mm) 350
Thickness (mm) 6
Weight (kG) 6 (4_Sided)

Black Weight of pole +


176
Bearing Plate Kg

Volume of PCC m3 0.181


3
Excavated area m 0.181

CONSIDERATIONS:
1 Wind Pressure on Pole : 50 daN/m^2
2 Deflection criteria : 5%
3 Safety Factor : 1.8
DATASHEET - 9M-650 daN pole

Height of pole (M) 9

Pole Grade
Bottom dia (mm) 310

E355
Top dia (mm) 150
NO. OF SECTION 1
Thickness (mm) 4

(8_Sided)
Details
Pole
Embedded length (m) 1.4
Point of load application from
250
top (mm)

BEARING PLATE
Plate Size.(mm) 410
Thickness (mm) 6
Weight (kG) 8 (4_Sided)

Black Weight of pole +


220
Bearing Plate Kg

Volume of PCC m3 0.247


3
Excavated area m 0.247

CONSIDERATIONS:
1 Wind Pressure on Pole : 50 daN/m^2
2 Deflection criteria : 5%
3 Safety Factor : 1.8
DATASHEET - 12M-400 daN pole

Height of pole (M) 11.8

Pole Grade
Bottom dia (mm) 290

E355
Top dia (mm) 130
NO. OF SECTION 1
Thickness (mm) 4

(8_Sided)
Details
Pole
Embedded length (m) 1.7
Point of load application from
250
top (mm)

BEARING PLATE
Plate Size.(mm) 390
Thickness (mm) 6
Weight (kG) 8 (4_Sided)

Black Weight of pole +


261
Bearing Plate Kg

Volume of PCC m3 0.272


3
Excavated area m 0.272

CONSIDERATIONS:
1 Wind Pressure on Pole : 50 daN/m^2
2 Deflection criteria : 5%
3 Safety Factor : 1.8
DATASHEET - 12M-800 daN pole

Height of pole (M) 11.8

Pole Grade
Bottom dia (mm) 360

E355
Top dia (mm) 140
NO. OF SECTION 1
Thickness (mm) 5

(8_Sided)
Details
Pole
Embedded length (m) 1.7
Point of load application from
250
top (mm)

BEARING PLATE
Plate Size.(mm) 460
Thickness (mm) 6
Weight (kG) 10 (4_Sided)

Black Weight of pole +


387
Bearing Plate Kg

Volume of PCC m3 0.392


3
Excavated area m 0.392

CONSIDERATIONS:
1 Wind Pressure on Pole : 50 daN/m^2
2 Deflection criteria : 5%
3 Safety Factor : 1.8
DATASHEET - 12M-1250 daN pole

Height of pole (M) 11.8

Pole Grade
Bottom dia (mm) 440

E355
Top dia (mm) 180
NO. OF SECTION 1
Thickness (mm) 5

(8_Sided)
Details
Pole
Embedded length (m) 1.7
Point of load application from
250
top (mm)

BEARING PLATE
Base plate dia.(mm) 540
Thickness (mm) 6
Weight (kG) 14 (4_Sided)
Plate Size.(mm)
Black Weight of pole +
483
Bearing Plate Kg

Volume of PCC m3 0.514


3
Excavated area m 0.514

CONSIDERATIONS:
1 Wind Pressure on Pole : 50 daN/m^2
2 Deflection criteria : 5%
3 Safety Factor : 1.8

You might also like