KEMBAR78
Architectural, Structural & Mep Drawings FOR | PDF | Concrete | Structural Engineering
100% found this document useful (3 votes)
4K views35 pages

Architectural, Structural & Mep Drawings FOR

This document provides architectural, structural, and MEP drawings for a proposed 2-storey mixed-use residential building in Dawhenya-Ladoku, Ningo-Prampram Municipality, Greater Accra Region of Ghana. The drawings include site plans, floor plans, elevations, sections, schedules, and details. General notes provide requirements for dimensions, materials, construction methods, and specifications to comply with relevant building codes and standards.

Uploaded by

Nana Barima
Copyright
© © All Rights Reserved
We take content rights seriously. If you suspect this is your content, claim it here.
Available Formats
Download as PDF, TXT or read online on Scribd
100% found this document useful (3 votes)
4K views35 pages

Architectural, Structural & Mep Drawings FOR

This document provides architectural, structural, and MEP drawings for a proposed 2-storey mixed-use residential building in Dawhenya-Ladoku, Ningo-Prampram Municipality, Greater Accra Region of Ghana. The drawings include site plans, floor plans, elevations, sections, schedules, and details. General notes provide requirements for dimensions, materials, construction methods, and specifications to comply with relevant building codes and standards.

Uploaded by

Nana Barima
Copyright
© © All Rights Reserved
We take content rights seriously. If you suspect this is your content, claim it here.
Available Formats
Download as PDF, TXT or read online on Scribd
You are on page 1/ 35

ARCHITECTURAL,STRUCTURAL & MEP DRAWINGS

FOR

PROJECT: PROPOSED MIXED-USED 2 STOREY RESIDENTIAL BUILDING SITUATED AT


DAWHENYA-LADOKU,NINGO-PRAMPRAM MUNICIPALITY,
GREATER ACCRA REGION

CLIENT: HANNAH NAOMI ENU


DRAWN BY: E.A SIAW
DRAWING INDEX GENERAL NOTES
SHEET # SHEET NAME The work of any design professionals and or contractor which are or should be
A-001 BLOCK & SITE PLAN involved in this project shall follow good construction practices.
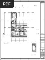
A-002 GROUND FLOOR PLAN
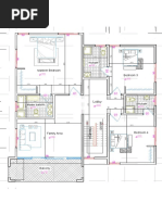
A-003 FIRST FLOOR PLAN The contractor is responsible to check the plans and is to notify the designer
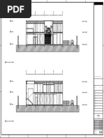
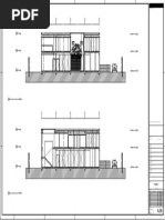
A-004 ELEVATIONS of any errors or omissions prior to start of construction.
A-005 SECTIONS
A-006 FINISHES LAYOUT ON GROUND FLOOR Written dimensions have precedence over scaled dimensions.

A-007 FINISHES LAYOUT ON FIRST FLOOR

A-008 DOOR & WINDOW SCHEDULES All manufactured materials, components, fasteners, assemblies, etc., shall be
handled and installed in accordance with manufacturer's instructions.
E-01 ELECTRICAL LAYOUT ON GROUND FLOOR(POWER & AC POINTS)
E-02 ELECTRICAL LAYOUT ON FIRST FLOOR(POWER & AC POINTS)
Contractor shall complete work in accordance with National Building Regulations. Finish
E-03 ELECTRICAL LAYOUT ON GROUND FLOOR(LIGHTING)
work is to be in a professional
E-04 ELECTRICAL LAYOUT ON FIRST FLOOR(LIGHTING)
E-05 FIRE ALARM SYSTEM LAYOUT ON GROUND FLOOR
Door openings are to be set 150mm from intersecting walls unless otherwise
E-06 FIRE ALARM SYSTEM LAYOUT ON FIRST FLOOR stated. Window openings are to be set 100mm from intersecting walls unless
PL-01 PLUMBING LAYOUT ON GROUND FLOOR(WASTE WATER DISPOSAL) otherwise stated.
PL-02 PLUMBING LAYOUT ON FIRST FLOOR(WASTEWATER DISPOSAL)
PL-03 PLUMBING LAYOUT ON GROUND FLOOR(COLD WATER DISTRIBUTION)
See structural engineering drawings for structural connection techniques,
PL-04 PLUMBING LAYOUT ON FIRST FLOOR(COLD WATER DISTRIBUTION)
STR-01 FENCEWALL & SEPTIC TANK DESIGNS instructions for construction and tie down details. Contact Mechanical, electrical
STR-02 ROOF PLAN
STR-03 FOUNDATION PLAN and plumbing engineering drawings for required services and installation

STR-04 GENERAL ARRANGEMENT ON GROUND FLOOR ABBREVIATIONS


specifications
STR-05 GENERAL ARRANGEMENT ON FIRST FLOOR GL Ground level
STR-06 GENERAL ARRANGEMENT ON ROOF PLAN FGL Finished ground level Showers shall be ceramic tile wall to 7 ft. above finished floor level and shall be
STR-07 COLUMN BASES TYPES DETAILS GFL Ground floor level provided with a water resistant backing. All
STR-08 COLUMN TYPES DETAILS FFL First floor level shower doors shall be tempered or laminated safety glass or shatter resistany plastic.
STR-09 FIRST FLOOR SLAB DETAILS SFL Second floor level
STR-10 STAIRCASE TYPES DETAILS TP Top of parapet wall
Specifications and drawings indicate finished structure. Builder shall be responsible
STR-11 BEAM TYPES DETAILS RL Roof level
for construction methods, procedures, and conditions (including safety) except as
STR-12 BEAM TYPES DETAILS c/c Centers
specfcally indicated in the contract documents.
M.Bath Master bath
w.c. Water closet
engr Engineer
Btu British thermal unit
GENERAL NOTES
1. All dimensions are in millimeter (mm)
1. Do not scale from the drawing

1. DRAWINGS SHOULD BE READ IN CONJUNCTION 13. ALL BACKFILL AND HARDCORE FILL SHALL BE FREE 21. MAXIMUM SIZE OF AGGREGATES SHALL BE 20mm
WITH ALL RELEVANT ARCHITECTURAL AND OTHER DRAINING, GRANULAR AND PLACED AND COMPACTED GRADED DOWN TO 10mm.
ENGINEERING DRAWINGS AT OPTIMUM MOISTURE CONTENT IN LAYERS NOT
22. FINE AGGREGATES SHALL BE FREE OF ORGANIC
EXCEEDING 150mm IN COMPACTED THICKNESS USING MATTER.
2. ALL DIMENSIONS AND LEVELS ARE GIVEN IN
MM UNLESS NOTED OTHERWISE. SUITABLE COMPACTION EQUIPMENT TO ACHIEVE
23. WATER USED FOR THE CONCRETE MUST BY POTABLE.
THE COMPACTION LEVELS AS NOMINATED.
3. USE FIGURED DIMENSION ONLY; DO NOT SCALE 24. CEMENT SHALL BE ORDINARY PORTLAND CEMENT
FROM DRAWINGS. 14. ALL REINFORCED CONCRETE SHALL HAVE A (OPC) TO BS 146.
CHARACTERISTIC COMPRESSIVE STRENGTH AT 28
4. ALL LEVELS AND DIMENSIONS ARE TO BE 25. MINIMUM CONCRETE PROTECTIVE NOMINAL
DAYS OF fc = 25N/mm² WITH RECOMMENDED W/C
CHECKED ON SITE. COVER TO ALL STEEL REINFORCEMENT,
RATIO OF 0.45.
INCLUDING LINKS, SHALL BE AS FOLLOWS UNO:
5. DIMENSIONS GIVEN FOR ALL OPENINGS AND
15. STEEL REINFORCEMENT SHALL BE DEFORMED HIGH FOOTINGS = 50mm
PENETRATIONS ARE NOMINAL
YIELD STEEL BARS (Y) COMPLYING WITH CURRENT COLUMNS = 30mm

EDITION OF BS4449 AND OF CHARACTERISTIC BEAMS & LINTELS = 30mm


6. ALL CONCRETE MATERIALS & WORKMANSHIP
STRENGTHS 460N/mm². SLABS & STAIRCASES = 25mm
SHALL BE IN ACCORDANCE WITH BS 8110-1:1997
WALLS = 30mm
7. ANY OVER EXCAVATION AT FOOTING LOCATIONS 16. ANY CONSIGNMENT OF REINFORCEMENT INTENDED 26. MECHANICAL (POKER) VIBRATORS SHALL BE
SHALL BE MADE GOOD WITH COMPACTED, SELECT, TO BE USED FOR THIS PROJECT SHALL BE ACCOM-
EMPLOYED IN ALL CONCRETING OPERATIONS.
GRANULAR FILL IN ACCORDANCE WITH NOTES 8 & 13 PANIED BY THE MANUFACTURER'S TEST CERTIFICATE
STIPULATING THAT THE ABOVE SPECIFICATIONS HAVE 27. CURING OF FRESHLY CAST CONCRETE SHALL BE
8. AREAS UNDER FOOTINGS SHALL BE UNIFORMLY BEEN COMPLIED WITH. DONE CONTINUOUSLY FOR A MINIMUM OF 7 DAYS
GRADED AND COMPACTED TO A MINIMUM 95% AFTER PLACING.
17. SPLICES IN REINFORCEMENT SHALL BE IN THOSE
MAXIMUM DRY DENSITY TO ACHIEVE AN ALLOWABLE POSITIONS SHOWN ON THE DRAWINGS. MINIMUM 28. CHASES AND HOLES SHALL NOT BE MADE IN
BEARING PRESSURE OF 400 kN/m² (MINIMUM) AT LAP/ANCHORAGE LENGTHS SHALL BE AS STATED ON CONCRETE WITHOUT THE PRIOR APPROVAL OF THE
THE DRAWINGS. ANY LAP/ANCHORAGE LENGTH NOT STRUCTURAL ENGINEER.
THE UNDERSIDE OF ALL FOOTINGS.
CALLED UP SHALL BE AS LISTED BELOW: 29. ALL BLOCKS SHALL BE GHANA STANDARD
9. ALL FOOTINGS SHALL HAVE A MIN. 50mm THICK BLOCKS CATEGORY C STRENGTH, GRADE 12
LAP LENGTH:
CONCRETE UNO
CONCRETE BLINDING LAYER WHICH SHALL BE TENSION = 45 x DIAMETER OF BAR
COMPRESSION = 45 x DIAMETER OF BAR 30. ALL BLOCKS USED ON THE SUSPENDED
PROVIDED IMMEDIATELY FOLLOWING APPROVAL OF
FLOOR SHALL BE 150 mm THICK (MAX.) HOLLOW
EXCAVATION BY THE STRUCTURAL ENGINEER. ANCHORAGE LENGTH (STRAIGHT): BLOCKS WITH 40% (MIN.) PERFORATIONS
TENSION = 45 x DIAMETER OF BAR
COMPRESSION = 35 x DIAMETER OF BAR 31. CONTRACTOR SHALL KEEP AND UPDATE A SITE
10. AREAS UNDER GRADE CONCRETE SHALL BE
ALBUM AT ALL TIMES DURING THE CONSTRUCTION
UNIFORMLY GRADED AND COMPACTED TO 95%
18. ALL HOOKS IN STIRRUPS AND LINKS SHOULD BE BENT PERIOD.
MINIMUM MODIFIED DRY DENSITY SUCH THAT THE INCLUDED ANGLE IS 135°.
32. CONTRACTOR SHALL PROVIDE A PROPPING PLAN TO
11. ALL SLABS ON GRADE SHALL BE CAST ON A 19. COARSE AGGREGATES SHALL CONSIST OF CRUSHED THE STRUCTURAL ENGINEER FOR APPROVAL PRIOR
0.3mm THICK POLYTHENE MEMBRANE TO CASTING ANY SUSPENDED FLOOR.
ROCK OF EITHER GRANITE, BASALT OR QUARTZITE.
33. INFORMATION PROVIDED ON THE SUBSEQUENT
12. GRADE CONCRETE SHALL BE NOMINALLY 20. FINE AGGREGATES SHALL CONSIST OF SAND OR SHEETS TAKE PRECEDENCE OVER INFORMATION
REINFORCED WITH BRC MESH A252 WITH 100mm CRUSHED ROCK OF ONE OR MORE OF THE TYPES WRITTEN IN THIS GENERAL NOTES SECTION.
COVER FROM THE TOP OF CONCRETE. GIVEN ABOVE OR CRUSHED GRAVEL AND SAND.
NOTES
1. Do not scale from drawings. Only figured dimensions
to be worked to. When in doubt consult the Architect.
2. All dimensions are in millimetres.

170
0
N

160
0

550
0
N W E
200
0

S
W E

D3
0
250
W3

S D2

D3
W2

W2

D2
W3

D1

D1
W1

D3
W3

D2
W2

D3
W2

0mm
835
D2
D1
W3

W3
D1

483

W3
5

250
0
SITE PLAN

rev. date of revision deatils initials


ravision

CONSULTANTS:

PROJECT:
PROPOSED MIXED-USED TWO(2) STOREY BUILDING PLAN
LOCATED AT DAWHENYA-LADOKU.

LOCATION:

DAWHENYA-LADOKU,NINGO PRAMPRAM MUNICIPALITY


GREATER ACCRA

client:

HANNAH NAOMI ENU

drawing title:

AS SHOWN

DESIGNED BY : scale:
3000

1:100
E.A SIAW
date: MAY. 2021

DRAWING FILE: Sheet no.


BLOCK PLAN 0012 - ARCH-2B-08 A-001
NOTES
1. Do not scale from drawings. Only figured dimensions
to be worked to. When in doubt consult the Architect.
2. All dimensions are in millimetres.

N
A B C E F F1 G J J1 K K1 M N
W E

S
26850

1500 1600 3250 1900 1900 2400 4200 2400 1900 1900 2400 1500

4329 850 2069 850 455 850 2069 850 383 895 2000 1153 375 850 2069 850 455 850 2069 850 379 1500

1 1
1174

1174
1250

1250
2 W3 W2 W2 W3 W3 W2 W2 W3 2
850 900
1250

1250
D2

D2

D2

D2
3 3
W3

W1
1250

1250
D1
1800

4 D1
4
1875

1875
11250

11250
8900
1800

5 5
1875

1875
1800

6 D1
6
1250

1250
900 850

7 D3 D3 D3 D3
7
W3
1250

1250
8 D1
8
1250

1250
1250

1250
rev. date of revision deatils initials
ravision
9 9 CONSULTANTS:

1500 2823 2860 1071 150 634 2861 652 424 792 3134 643 2860 642 150 634 2861 805 1492

PROJECT:
1500 1600 3250 1900 1900 2400 4200 2400 1903 1897 2400 1500
PROPOSED FOUR (4) BEDROOM SIMPLE STOREY BUILDING PLAN
LOCATED AT DAWHENYA-LADOKU.

26850
LOCATION:

DAWHENYA-LADOKU,NINGO PRAMPRAM MUNICIPALITY


GREATER ACCRA

A B C E F F1 G J J1 K K1 M N
client:

HANNAH NAOMI ENU

drawing title:

AS SHOWN

DESIGNED BY : scale:
1:100
E.A SIAW
GROUND FLOOR PLAN date: MAY. 2021

DRAWING FILE: Sheet no.


0012 - ARCH-2B-08 A-002
NOTES
1. Do not scale from drawings. Only figured dimensions
to be worked to. When in doubt consult the Architect.
2. All dimensions are in millimetres.

A B C D E F G H I J K L M N N

W E

26850
S

1500 1600 850 2150 2150 4300 1000 2000 1200 4300 2800 1500 1500

1880 850 2271 2000 2650 2000 1950 2000 2450 2000 2150 2000 2800

1 1
293 850 352 850 400 850 310575 850 762 792 617245850 400 850 400 850 306

W2 W1 W1 W1 W1 W1

918
1250

1250
W2

D2

2 2

2000
1250

1250
W1
W2

D2

3 3
1250

1250
W2

D2

1819
4 D2
4
1875

1875
D1
11250

11250
2000
5 5

W1
1875

1875
W3

6 6

2091
D2 D1 D1
1250

1250
D2

D1
W2

7 7
1250

1250
D1
D2
W2

2375
8 W1
8

W3
1250

1250
D2
W2

date of
rev. ravision revision deatils initials

200
9 W2 W3 W1 W1 W1 W1
9 CONSULTANTS:

1880 850 832 850 1135 2000 2104 2000 1054 895 2000 1154 1296 2000 1515 2000 1938 1201 300
PROJECT:
1500 1600 850 2150 2150 4300 1000 2000 1200 4300 2800 1500 1500 PROPOSED FOUR (4) BEDROOM SIMPLE STOREY BUILDING PLAN
LOCATED AT DAWHENYA-LADOKU.

26850
LOCATION:

DAWHENYA-LADOKU,NINGO PRAMPRAM MUNICIPALITY


GREATER ACCRA

A B C D E F G H I J K L M M client:

HANNAH NAOMI ENU

drawing title:

AS SHOWN

DESIGNED BY : scale:
1:100
E.A SIAW
date: MAY. 2021

FIRST FLOOR PLAN DRAWING FILE: Sheet no.


0012 - ARCH-2B-08 A-003
NOTES
1. Do not scale from drawings. Only figured dimensions
to be worked to. When in doubt consult the Architect.
2. All dimensions are in millimetres.

A B C E F F1 G J J1 K K1 M N 9 8 7 6 5 4 3 2 1

+8000 Roof Level +8000 Roof Level

+6300 Lintol Level +6300 Lintol Level

+3150 First Floor Level +3150 First Floor Level

+450 Ground Floor Level +450 Ground Floor Level

+/-000 GL +/-000 GL

NORTH ELEVATION EAST ELEVATION

N M K1 K J1 J G F1 F E C B A 1 2 3 4 5 6 7 8 9

+8000 Roof Level +8000 Roof Level


rev. date of revision deatils initials
ravision

+6300 Lintol Level +6300 Lintol Level


CONSULTANTS:

+3150 First Floor Level +3150 First Floor Level

PROJECT:
PROPOSED FOUR (4) BEDROOM SIMPLE STOREY BUILDING PLAN
LOCATED AT DAWHENYA-LADOKU.

LOCATION:

+450 Ground Floor Level +450 Ground Floor Level


DAWHENYA-LADOKU,NINGO PRAMPRAM MUNICIPALITY
+/-000 GL +/-000 GL
GREATER ACCRA

client:

HANNAH NAOMI ENU

drawing title:
SOUTH ELEVATION WEST ELEVATION

AS SHOWN

DESIGNED BY : scale:
1:100
E.A SIAW
ELEVATIONS DRAWING FILE:
date: MAY. 2021

Sheet no.
0012 - ARCH-2B-08 A-004
NOTES
1. Do not scale from drawings. Only figured dimensions
to be worked to. When in doubt consult the Architect.
2. All dimensions are in millimetres.

A B C E F F1 G J J1 K K1 M N

50 x 150mm jack and common 500 x 150 thick Rc. roof slab gutter
50x50 mm hardwood ceiling rafters @ 900 c/c with acquaseal water proofing finished on cement
50x75mm hardwood sand screed.
hangers @ 500mm c/c
purlins @ 900mm c/c
+8000 Roof Level

1765
+6300 Lintol Level

350
2700
Wc Store Servery Event Hall Stairwell Event Hall Balcony

+3150 +3150 +3150 +3150


+3150 First Floor Level

1650
Store Retail Shop Retail Shop Retail Shop Retail Shop

1500
+600 +600 +600 +600 +600
+600 Ground Floor Level +450 +450

+/-000 GL

SECTION A-A
SCALE: 1:100

1 2 3 4 5 6 7 8 9

50 x 150mm jack and common


50x50 mm hardwood ceiling rafters @ 900 c/c
50x75mm hardwood 500 x 150 thick Rc. roof slab gutter 250
date of
rev. ravision revision deatils initials
hangers @ 500mm c/c CONCRETE
purlins @ 900mm c/c with acquaseal water proofing finished on cement COPING
150
sand screed. 50 50 CONSULTANTS:
+8000 Roof Level

100
A BLOCKWORK

1700

1450
+6300 Lintol Level
1000

3 LAYER XYPEX WATERPROOF


MEMBRANE

150
1650

REINFORCED CONCRETE ROOF GUTTER WITH


SOFFIT
PROJECT:
UPSTAND BEAM RENDERED
Event Hall Event Hall Servery AND PAINTED PROPOSED MIXED-USED TWO(2) STOREY BUILDING PLAN
LOCATED AT DAWHENYA-LADOKU.
DETAIL ;A;
1050

+3150 +3150 +3150


+3150 First Floor Level 250 LOCATION:
450

150 CONCRETE
50 50 COPING
BLOCKWORK
DAWHENYA-LADOKU,NINGO PRAMPRAM MUNICIPALITY
1650

GREATER ACCRA
100

WC Retail Shop Corridor 3 LAYER XYPEX


WATERPROOF
MEMBRANE client:
1450
1050

+600 HANNAH NAOMI ENU


+450
150

+600 Ground Floor Level

+/-000 GL drawing title:


REINFORCED CONCRETE ROOF
GUTTER WITH UPSTAND
BEAM 50

150
200
AS SHOWN
DETAIL ;B ;
SECTION B-B scale:
SCALE: 1:100 DESIGNED BY :
1:100
E.A SIAW
date: MAY. 2021

SECTIONS DRAWING FILE: Sheet no.


0012 - ARCH-2B-08 A-005
LEGEND NOTES
1. F = FLOOR 1. Do not scale from drawings. Only figured dimensions
1. granite (450x900x19)mm polished in - situ to be worked to. When in doubt consult the Architect.
2. ceramic tile (600x600x12)mm matte finish 2. All dimensions are in millimetres.
ceramic tile (450x450x12)mm matte finish
3.
4. granolitic paving

5. in -situ Terazzo
6. pigmented floor paint on sand cement screed

7. Timber floor finish on decked floor placed in


vertical manner

2. S = SKIRTING
20X100mm chamfered edge timber "Emire" skirting
1.
2. 20X100mm granite skirting

3. 10X100mm ceramic tile matte finish

4. 8X100mm ceramic tile polished


5. 10X100mm ceramic tile polished

A B C E F F1 G J J1 K K1 M N 6. 20X100mm granolitic (polished)

7. 10X100mm guarry tiles

8. 8X100mm ceramic tile

3. W = WALL
emulsion paint on fair faced application
26850 1.
of gypsum to rendered surface

1500 1600 3250 1900 1900 2400 4200 2400 1900 1900 2400 1500
2. matte acrylic paint on fair faced application
of gypsum to rendered surface

3. emulsion paint on tyrolean

4. matte acrylic paint on tyrolean

5. glazed ceramic tile to ceilling (200x300x10mm)

6. glazed ceramic tile to door height with matt acrylic


paint above to ceilling.(tiles to flush with render)

1 1 7. designed timber board cladding


1250

1250
8. timber "Asamfona" T&G strip cladding

2 W3 W2 W2 W3 W3 W2 W2 W3 2 4. C = CEILING
1250

1250
F S WC
D2

D2

D2

D2
F S W C F S W C F S WC F S W C
2 3 1 7 1 3 5 6 1 3 5 6 1 3 5 6 1 3 5 6

3 3 1. mineral fibre board (1200x2400x12)mm/(600x600x12)


W3

W1
1250

1250
as corner battens

D1
2. gypsum board (1200x2400x12)mm on
4 D1
4 proprietary suspension system
1875

1875
3. gypsum board (600x600x12)mm on proprietary

F S WC 4. mineral fibre board (600x600x19)mm, Acoustic on


11250

11250
2 3 1 7
5 F S W C
2 3 1 7
F S W C
2 3 1 7
F S W C
2 3 6 7
F S WC
2 3 1 7
F S W C
2 3 1 7 5 proprietary suspension system

5. smooth emulsion paint on rendered conc. soffit


1875

1875
6. oil paint on rendered conc. soffit
7. textured paint on rendered conc. soffit
6 D1
6 8. lacquered " Emire T&G strips
1250

1250
F S W C
2 3 1 7
9. acrylic paint on 9mm ordinary plywood
7 D3 D3 D3 D3
7
W3

F S W C 10.emulsion paint on plaster board


1250

1250
2 3 1 7 F S W C
F S WC
F S WC
2 3 1 7 2 3 1 7
F S WC
2 3 1 7
2 3 1 7 11.perforated chipboard (600x600x12mm)-smooth finish
8 D1
8 12.Exterior quality gypsum board (600x600x12mm) on
1250

1250
proprietary suspension system

9 9 date of
rev. ravision revision deatils initials

CONSULTANTS:

1500 1600 3250 1900 1900 2400 4200 2400 1903 1897 2400 1500

26850 PROJECT:
PROPOSED MIXED-USED TWO(2) STOREY BUILDING PLAN
LOCATED AT DAWHENYA-LADOKU.

LOCATION:

A B C E F F1 G J J1 K K1 M N DAWHENYA-LADOKU,NINGO PRAMPRAM MUNICIPALITY


GREATER ACCRA

client:

HANNAH NAOMI ENU

drawing title:

AS SHOWN

DESIGNED BY : scale:
1:100
E.A SIAW
date: MAY. 2021

DRAWING FILE:
FINISHES LAYOUT ON GROUND FLOOR Sheet no.
0012 - ARCH-2B-08 A-006
NOTES
1. Do not scale from drawings. Only figured dimensions
to be worked to. When in doubt consult the Architect.
2. All dimensions are in millimetres.

LEGEND
1. F = FLOOR
granite (450x900x19)mm polished in - situ
1.
2. ceramic tile (600x600x12)mm matte finish

3. ceramic tile (450x450x12)mm matte finish

4. granolitic paving

A B C D E F G H I J K L M N 5. in -situ Terazzo
6. pigmented floor paint on sand cement screed

7. Timber floor finish on decked floor placed in


vertical manner

2. S = SKIRTING
26850
20X100mm chamfered edge timber "Emire" skirting
1.
1500 1600 850 2150 2150 4300 1000 2000 1200 4300 2800 1500 1500 2. 20X100mm granite skirting

3. 10X100mm ceramic tile matte finish

4. 8X100mm ceramic tile polished


5. 10X100mm ceramic tile polished

6. 20X100mm granolitic (polished)

7. 10X100mm guarry tiles

8. 8X100mm ceramic tile

3. W = WALL
1 W2 W1 W1 W1 W1 W1 1 emulsion paint on fair faced application
1.
1250

1250
W2

D2

F S WC
1 3 5 7 of gypsum to rendered surface
2 2 2. matte acrylic paint on fair faced application
1250

1250
W1
of gypsum to rendered surface
W2

D2

F S WC
1 3 5 7 F S WC
3 1 3 5 7
3 3. emulsion paint on tyrolean
1250

1250
4. matte acrylic paint on tyrolean
W2

D2

F S WC
1 3 5 7

4 D2
4 5. glazed ceramic tile to ceilling (200x300x10mm)

6. glazed ceramic tile to door height with matt acrylic


1875

1875
F S W C F S W C F S WC paint above to ceilling.(tiles to flush with render)
2 3 1 3 2 3 1 3 2 3 1 3
D1

F S W C
2 3 1 7 7. designed timber board cladding
11250

11250
5 5 8. timber "Asamfona" T&G strip cladding

W1
1875

1875
W3

4. C = CEILING
6 D2 D1 D1
6 1. mineral fibre board (1200x2400x12)mm/(600x600x12)
1250

1250
F S WC
1 3 5 7 F S WC as corner battens
D2

D1
W2

2 3 1 3 F S WC
2 3 1 3
2. gypsum board (1200x2400x12)mm on
7 F S WC
F S W C
2 3 1 3
7 proprietary suspension system
1250

1250
D1

1 3 5 7
D2
W2

F S WC
F S WC 2 3 1 3 3. gypsum board (600x600x12)mm on proprietary
8 1 3 5 7
W1
8

W3
F S WC
F S W C
4. mineral fibre board (600x600x19)mm, Acoustic on
1250

1250
2 3 1 3
1 3 5 7
D2
W2

proprietary suspension system

9 W2 W3 W1 W1 W1 W1
9 5. smooth emulsion paint on rendered conc. soffit
date of
6. oil paint on rendered conc. soffit rev. ravision revision deatils initials

7. textured paint on rendered conc. soffit CONSULTANTS:


8. lacquered " Emire T&G strips
9. acrylic paint on 9mm ordinary plywood
10. emulsion paint on plaster board
perforated chipboard (600x600x12mm)-smooth finish
11.
1500 1600 850 2150 2150 4300 1000 2000 1200 4300 2800 1500 1500 12.Exterior quality gypsum board (600x600x12mm) on
proprietary suspension system

26850 PROJECT:
PROPOSED MIXED-USED TWO(2) STOREY BUILDING PLAN
LOCATED AT DAWHENYA-LADOKU.

LOCATION:
A B C D E F G H I J K L M M
DAWHENYA-LADOKU,NINGO PRAMPRAM MUNICIPALITY
GREATER ACCRA

client:

HANNAH NAOMI ENU

drawing title:

AS SHOWN

DESIGNED BY : scale:
1:100
E.A SIAW
date: MAY. 2021

DRAWING FILE: Sheet no.


FINISHES LAYOUT ON FIRST FLOOR 0012 - ARCH-2B-08 A-007
NOTES
1. Do not scale from drawings. Only figured dimensions
to be worked to. When in doubt consult the Architect.
2. All dimensions are in millimetres.

2650mm

2650mm

2650mm
2650mm

2650mm

2650mm
2700mm

2700mm

2700mm
900mm 800mm
2860mm

2860
900mm 800mm

950mm 850mm 2910

450

450
700
1850

750
1850

850

1950
2000
1050

2000 850

2050 900

rev. date of
ravision revision deatils initials

CONSULTANTS:
450
1650

PROJECT:
1650

PROPOSED MIXED-USED TWO(2) STOREY BUILDING PLAN


LOCATED AT DAWHENYA-LADOKU.

850

LOCATION:
1050

DAWHENYA-LADOKU,NINGO PRAMPRAM MUNICIPALITY


GREATER ACCRA

1000
client:
1050 HANNAH NAOMI ENU

drawing title:

AS SHOWN

scale:
DOORS & WINDOWS SCHEDULE DESIGNED BY :
1:100
E.A SIAW
date: MAY. 2021

DRAWING FILE: Sheet no.


0012 - ARCH-2B-08 A-008
MECHANICAL,ELECTRICAL & PLUMBING (MEP) DRAWINGS
NOTES
LEGEND
1. Do not scale from drawings. Only figured dimensions
POWER to be worked to. When in doubt consult the Architect.

Symbol
2. All dimensions are in millimetres.
Description

13A Twin switched socket outlet

13A single switched socket outlet

15A single switched socket outlet


15A heater socket outlet
CCU
Cooker Control Unit

Water Heater switch

Shaving
A B C E F F1 G J J1 K K1 M N 13A 13A Twin switched socket
outlet mounted high

TV Television Co-Axial Socket outlet

AC Aircondition switch

FR Fan regulator
26850
USB
13A Twin switched socket
with USB ports
1500 1600 3250 1900 1900 2400 4200 2400 1900 1900 2400 1500 RJ45 telephone socket

RJ45 data socket

Main distribution board

Sub distribution board

Consumer unit

1 1 Earthing
1250

1250
Wall mounted AC (indoor unit)
2 W3 W2 W2 W3 W3 W2 W2 W3 2 AC

Electric Meter
1250

1250
M
GF-P3
D2

D2

D2

D2
s
wh w 20A dp control switch and
3 3
W3

W1 marked water heater


1250

1250
D1
GF-P3 GF-P3 GF-P3 GF-P3 GF-P3 GF-P3 GF-P3 GF-P3

4 D1

GF-AC1AC
GF-AC1AC GF-P3
GF-AC1AC GF-AC1AC 4
GF-AC1AC

AC
1875

1875
AC
AC
AC

AC

GF-P1 GF-P1
GF-P1
GF-P1
11250

11250
GF-P1

5 GF-T1
GF-P1
GF-T1
GF-T1
GF-P1
GF-T1
GF-P1
5

TV

TV
GF-P1
TV

TV
1875

1875
WM WM
GF-P3 GF-P3 GF-P3 GF-P3 GF-P3 GF-P3 GF-P3 GF-P3
CCU CCU

6 D1
6
1250

1250
GF-P3

C.UNIT

7 D3 D3 SDB-GF D3 D3
7
W3

M
1250

1250
GF-P3

8 D1
8
1250

1250
9 9 rev. date of
ravision revision deatils initials

CONSULTANTS:

1500 1600 3250 1900 1900 2400 4200 2400 1903 1897 2400 1500
PROJECT:

26850 PROPOSED MIXED-USED TWO(2) STOREY BUILDING PLAN


LOCATED AT DAWHENYA-LADOKU.

LOCATION:

DAWHENYA-LADOKU,NINGO PRAMPRAM MUNICIPALITY

A B C E F F1 G J J1 K K1 M N GREATER ACCRA

client:

HANNAH NAOMI ENU

drawing title:

AS SHOWN

DESIGNED BY : scale:
1:100
E.A SIAW
date: MAY. 2021

ELECTRICAL LAYOUT ON GROUND FLOOR(POWER & AC POINTS) DRAWING FILE: Sheet no.
0012 - ARCH-2B-08 E-001
NOTES
LEGEND 1. Do not scale from drawings. Only figured dimensions
POWER to be worked to. When in doubt consult the Architect.
2. All dimensions are in millimetres.
Symbol Description

13A Twin switched socket outlet

13A single switched socket outlet

15A single switched socket outlet


15A heater socket outlet
CCU
Cooker Control Unit

Water Heater switch

A B C D E F G H I J K L M N Shaving
13A 13A Twin switched socket
outlet mounted high

TV Television Co-Axial Socket outlet


26850
AC Aircondition switch

1500 1600 850 2150 2150 4300 1000 2000 1200 4300 2800 1500 1500 FR Fan regulator

USB
13A Twin switched socket
with USB ports

RJ45 telephone socket

RJ45 data socket

Main distribution board

Sub distribution board

1 W2 W1 W1 W1 W1 W1 1 Consumer unit
GF-AC1AC

GF-AC1AC

GF-AC1AC
AC AC AC
1250

1250
GF-P1

GF-P1

GF-P1
GF-P3

GF-P3

GF-P3

GF-P3
W2

D2

Earthing

2 2 AC Wall mounted AC (indoor unit)


1250

1250
W1
W2

D2

M Electric Meter

3 GF-P3 GF-P3
3 wh
s w 20A dp control switch and
1250

1250
GF-AC1AC marked water heater
W2

D2

AC

GF-P1

4 D2
GF-P1 4

AC
1875

1875
GF-AC1 AC
D1
11250

11250
5 5

W1
1875

1875
W3

GF-AC1AC

GF-P1
GF-P3

GF-P3
AC

6 D2 D1 D1
M
6
1250

1250
GF-P3

SDB-GF

C.UNIT
D2

D1
W2

GF-AC1AC

AC
7 GF-P3
GF-P3 GF-P3 GF-P1 7
1250

1250
D1
D2
W2

8 W1
8

W3
1250

1250
GF-P3
WM
GF-P3

GF-P3

GF-P3
D2
W2

CCU

9 W2 W3 W1 W1 W1 W1
9 date of
rev. ravision revision deatils initials

CONSULTANTS:

1500 1600 850 2150 2150 4300 1000 2000 1200 4300 2800 1500 1500
PROJECT:
26850 PROPOSED MIXED-USED TWO(2) STOREY BUILDING PLAN
LOCATED AT DAWHENYA-LADOKU.

LOCATION:

A B C D E F G H I J K L M M DAWHENYA-LADOKU,NINGO PRAMPRAM MUNICIPALITY


GREATER ACCRA

client:

HANNAH NAOMI ENU

drawing title:

AS SHOWN

DESIGNED BY : scale:
1:100
E.A SIAW
date: MAY. 2021

ELECTRICAL LAYOUT ON FIRST FLOOR(POWER & AC POINTS) DRAWING FILE: Sheet no.
0012 - ARCH-2B-08 E-002
NOTES
1. Do not scale from drawings. Only figured dimensions
to be worked to. When in doubt consult the Architect.

LEGEND 2. All dimensions are in millimetres.

LIGHT

Symbol Description

Deco Ceiling mounted light

Sports light
1x18w 1200 surface mounted
A B C E F F1 G J J1 K K1 M N fluorescent fitting
1x18w 600 surface mounted
fluorescent fitting
wall mounted lighter
under counter fluorescent tube
26850
down light

1500 1600 3250 1900 1900 2400 4200 2400 1900 1900 2400 1500
wall mounted globe lighter

6A 1gang 1way switch

6A 1gang 2way switch


2 6A 2gang 1way switch
1 1 DB
Distribution board
1250

1250
2 W3 W2 W2 W3 W3 W2 W2 W3 2 M
Metre
1250

1250
D2

D2

D2

D2
600 x 600 ceiling
3 3
W3

W1 mounted light
1250

1250
D1
AC Wall mounted AC (indoor unit)
4 D1
4
16w, wall mounted white polycarbonate
1875

1875
L2
square luminaire with opal diffuser and
lamp
11250

11250
5 L2 L2
L2 L2 5 1400mm crompton type ceiling mounted
fan complete with regulator
1875

1875
16w, white polycarbonate circular
6 D1
6 luminaire with opal diffuser and lamp
1250

1250
7 D3 D3 D3 D3
7
W3
1250

1250
8 D1
8
1250

1250
9 9 rev. date of revision deatils initials
ravision

CONSULTANTS:

1500 1600 3250 1900 1900 2400 4200 2400 1903 1897 2400 1500

PROJECT:
26850
PROPOSED MIXED-USED TWO(2) STOREY BUILDING PLAN
LOCATED AT DAWHENYA-LADOKU.

LOCATION:

A B C E F F1 G J J1 K K1 M N DAWHENYA-LADOKU,NINGO PRAMPRAM MUNICIPALITY


GREATER ACCRA

client:

HANNAH NAOMI ENU

drawing title:

AS SHOWN

DESIGNED BY : scale:
1:100
E.A SIAW
date: MAY. 2021
ELECTRICAL LAYOUT ON GROUND FLOOR(LIGHTING) DRAWING FILE: Sheet no.
0012 - ARCH-2B-08 E-003
NOTES
LEGEND
LIGHT 1. Do not scale from drawings. Only figured dimensions
to be worked to. When in doubt consult the Architect.

Symbol Description
2. All dimensions are in millimetres.

Deco Ceiling mounted light

Sports light
1x18w 1200 surface mounted
fluorescent fitting
1x18w 600 surface mounted
fluorescent fitting
wall mounted lighter
under counter fluorescent tube

A B C D E F G H I J K L M N down light

wall mounted globe lighter

26850 6A 1gang 1way switch

6A 1gang 2way switch


1500 1600 850 2150 2150 4300 1000 2000 1200 4300 2800 1500 1500
2 6A 2gang 1way switch
DB
Distribution board

M
Metre

600 x 600 ceiling


mounted light

AC Wall mounted AC (indoor unit)

1 W2 W1 W1 W1 W1 W1 1 16w, wall mounted white polycarbonate


1250

1250
L1
square luminaire with opal diffuser and
W2

D2

lamp
2 2 1400mm crompton type ceiling mounted
1250

1250
L1
L1

W1
L2 L2 L2 L2
W2

D2

L2 fan complete with regulator


3 3 16w, white polycarbonate circular
1250

1250
L1
luminaire with opal diffuser and lamp
W2

D2

4 D2
4
1875

1875
D1
11250

11250
5 5

W1
1875

1875
L2 L2 L2 L2
W3

L2

6 D2 D1 D1
6
1250

1250
L1
D2

D1
W2

7 7
1250

1250
L1 L1
D1
D2
W2

L2
L2

8 W1
8

W3
1250

1250
L1
D2
W2

rev. date of revision deatils initials


ravision
9 W2 W3 W1 W1 W1 W1
9 CONSULTANTS:

PROJECT:
1500 1600 850 2150 2150 4300 1000 2000 1200 4300 2800 1500 1500
PROPOSED MIXED-USED TWO(2) STOREY BUILDING PLAN
LOCATED AT DAWHENYA-LADOKU.
26850

LOCATION:

DAWHENYA-LADOKU,NINGO PRAMPRAM MUNICIPALITY


GREATER ACCRA

A B C D E F G H I J K L M M
client:

HANNAH NAOMI ENU

drawing title:

AS SHOWN

DESIGNED BY : scale:
1:100
E.A SIAW
date: MAY. 2021
ELECTRICAL LAYOUT ON FIRST FLOOR(LIGHTING) DRAWING FILE: Sheet no.
0012 - ARCH-2B-08 E-004
NOTES
1. Do not scale from drawings. Only figured dimensions
to be worked to. When in doubt consult the Architect.
2. All dimensions are in millimetres.

FIRE ALARM

Symbol Description

SD Optical smoke detector


A B C E F F1 G J J1 K K1 M N
HD Heat detector

B Manual call point


26850

1500 1600 3250 1900 1900 2400 4200 2400 1900 1900 2400 1500
Electrical sounder

Fire alarm conduit pipe

P.1.D. Passive Infra-Red Detector


1 1 DC
1250

1250
Door Contact
2 W3 W2 W2 W3 W3 W2 W2 W3 2
Microwave PIR Dual Tech
1250

1250
D2

D2

D2

D2
SD

3 3 Sensor 360
W3

W1
1250

1250
D1
4 D1
4 Panic Alarm Button
1875

1875
SD Dry Powder Fire Extinguisher
11250

11250
5 SD SD SD SD 5
1875

1875
6 D1
6
1250

1250
7 D3 D3 D3 D3
7
W3

FAP

FAP
SD
1250

1250
GF-ALB1 GF-ALB1

8 GF-BG GF-BG
8
B

B
D1
1250

1250
9 9
rev. date of revision deatils initials
ravision

CONSULTANTS:

1500 1600 3250 1900 1900 2400 4200 2400 1903 1897 2400 1500

26850 PROJECT:
PROPOSED MIXED-USED TWO(2) STOREY BUILDING PLAN
LOCATED AT DAWHENYA-LADOKU.

LOCATION:

A B C E F F1 G J J1 K K1 M N DAWHENYA-LADOKU,NINGO PRAMPRAM MUNICIPALITY


GREATER ACCRA

client:

HANNAH NAOMI ENU

drawing title:

AS SHOWN

DESIGNED BY : scale:
1:100
E.A SIAW
date: MAY. 2021
FIRE SAFETY SYSTEMS LAYOUT ON GROUND FLOOR DRAWING FILE: Sheet no.
0012 - ARCH-2B-08 E-005
NOTES
1. Do not scale from drawings. Only figured dimensions
FIRE ALARM to be worked to. When in doubt consult the Architect.
2. All dimensions are in millimetres.

Symbol Description

SD Optical smoke detector

HD Heat detector

B Manual call point

A B C D E F G H I J K L M N Electrical sounder

Fire alarm conduit pipe

26850
P.1.D. Passive Infra-Red Detector

1500 1600 850 2150 2150 4300 1000 2000 1200 4300 2800 1500 1500 DC
Door Contact

Microwave PIR Dual Tech


Sensor 360

Panic Alarm Button

Dry Powder Fire Extinguisher

1 W2 W1 W1 W1 W1 W1 1
1250

1250
W2

D2

2 2
1250

1250
W1
W2

SD SD SD
D2

3 3
1250

1250
W2

D2

4 D2
4
1875

1875
D1
11250

11250
5 5

W1
SD SD SD
1875

1875
W3

6 D2 D1 D1
6
1250

1250
D2

D1
W2

7 7
1250

1250
FAP
D1
D2
W2

SD
SD
SD GF-ALB1

8 W1
8

W3
GF-BG

B
1250

1250
D2
W2

rev. date of revision deatils initials


9 W2 W3 W1 W1 W1 W1
9 ravision

CONSULTANTS:

PROJECT:
1500 1600 850 2150 2150 4300 1000 2000 1200 4300 2800 1500 1500
PROPOSED MIXED-USED TWO(2) STOREY BUILDING PLAN
LOCATED AT DAWHENYA-LADOKU.
26850

LOCATION:

DAWHENYA-LADOKU,NINGO PRAMPRAM MUNICIPALITY


GREATER ACCRA

A B C D E F G H I J K L M M
client:

HANNAH NAOMI ENU

drawing title:

AS SHOWN

DESIGNED BY : scale:
1:100
E.A SIAW
date: MAY. 2021

FIRE SAFETY SYSTEMS LAYOUT ON FIRST FLOOR DRAWING FILE: Sheet no.
0012 - ARCH-2B-08 E-006
NOTES
1. Do not scale from drawings. Only figured dimensions
to be worked to. When in doubt consult the Architect.
2. All dimensions are in millimetres.

LEGEND

20mm Ø CWS SUPPLY

A B C E F F1 G J J1 K K1 M N 13mm Ø FLEXIBLE DISTRUBUTOR TO WC


15mm Ø CWS DISTRIBUTOR

100mm Ø WASTE WATER PIPE TO SOAK PIT

150mm Ø SOIL PIPE TO PUBLIC SEWER


26850
FD FLOOR DRAINS IN ALL BATHROOMS + KITCHEN

IC
0.4m x 0.4m inspection chamber
1500 1600 3250 1900 1900 2400 4200 2400 1900 1900 2400 1500
MH 0.5m x 0.5m manhole

150mm dia. soil/vent stack

100mm dia. waste stack


MH MH MH MH MH

IC IC IC IC IC IC

1 1

1250
2 W3 W2 W2 W3 W3 W2 W2 W3 2

1250
D2

D2

D2

D2
3 3
W3

W1

1250
D1
IC
MH
4 D1
4

1875

11250
5 5

1875
6 D1
6

1250
MH
7 D3 D3 D3 D3
7
W3

1250
rev. date of revision deatils initials
ravision
8 D1
8 CONSULTANTS:

1250
9 9

MH
PROJECT:
PROPOSED MIXED-USED TWO(2) STOREY BUILDING PLAN
LOCATED AT DAWHENYA-LADOKU.

1500 1600 3250 1900 1900 2400 4200 2400 1903 1897 2400 1500

LOCATION:
26850
DAWHENYA-LADOKU,NINGO PRAMPRAM MUNICIPALITY
GREATER ACCRA

client:

HANNAH NAOMI ENU

A B C E F F1 G J J1 K K1 M N
drawing title:

AS SHOWN

DESIGNED BY : scale:
1:100
E.A SIAW
date: MAY. 2021

PLUMBING LAYOUT ON GROUND FLOOR(WASTE WATER DISPOSAL) DRAWING FILE: Sheet no.
0012 - ARCH-2B-08 PL-001
NOTES
1. Do not scale from drawings. Only figured dimensions
to be worked to. When in doubt consult the Architect.
2. All dimensions are in millimetres.

LEGEND

20mm Ø CWS SUPPLY

A B C D E F G H I J K L M N 13mm Ø FLEXIBLE DISTRUBUTOR TO WC


15mm Ø CWS DISTRIBUTOR

100mm Ø WASTE WATER PIPE TO SOAK PIT

150mm Ø SOIL PIPE TO PUBLIC SEWER


26850
FD FLOOR DRAINS IN ALL BATHROOMS + KITCHEN

1500 1600 850 2150 2150 4300 1000 2000 1200 4300 2800 1500 1500 IC 0.4m x 0.4m inspection chamber

MH 0.5m x 0.5m manhole

150mm dia. soil/vent stack

100mm dia. waste stack

1 W2 W1 W1 W1 W1 W1 1
1250

1250
D2

2 2
1250

1250
W1
D2

3 3
1250

1250
D2

4 D2
4
1875

1875
D1
11250

11250
5 5

W1
1875

1875
W3

6 D2 D1 D1
6
1250

1250
D2

D1
7 7
1250

1250
D1
D2

8 W1
8

W3
date of
rev. ravision revision deatils initials
1250

1250
D2

CONSULTANTS:
9 W3 W1 W1 W1
9

PROJECT:
PROPOSED MIXED-USED TWO(2) STOREY BUILDING PLAN
LOCATED AT DAWHENYA-LADOKU.
1500 1600 850 2150 2150 4300 1000 2000 1200 4300 2800 1500 1500

26850 LOCATION:

DAWHENYA-LADOKU,NINGO PRAMPRAM MUNICIPALITY


GREATER ACCRA

client:

A B C D E F G H I J K L M M HANNAH NAOMI ENU

drawing title:

AS SHOWN

DESIGNED BY : scale:
1:100
E.A SIAW
date: MAY. 2021

PLUMBING LAYOUT ON FIRST FLOOR(WASTE WATER DISPOSAL) DRAWING FILE: Sheet no.
0012 - ARCH-2B-08 PL-002
NOTES
1. Do not scale from drawings. Only figured dimensions
to be worked to. When in doubt consult the Architect.
2. All dimensions are in millimetres.
EXPOSED CISTERN WATER CLOSET
SUITE. (P TRAP)

PEDESTAL WASH HAND BASIN


WITH COLD WATER

SHOWER TRAY

DOUBLE BOWL, KITCHEN SINK

3-50mm Inlet x 1-75mm


GT OUTLET FLOOR DRAIN
(GULLY TRAP-GT)

600 x 600mm ( I.C ) INSPECTION


CHAMBER, ( C.I.C ) COMBIND
INSPECTION CHAMBER

STOP VALVE

A B C E F F1 G J J1 K K1 M N
G W S C L METER

13mm Ø FLEXIBLE DISTRIBUTOR


TO WC, 15mm Ø CWS DISTRIBUTOR

50mm Ø WASTE WATER PIPE TO SOAK PIT

150 / 100mmØ SOIL PIPE TO PUBLIC SEWER

26850 FLOOR DRAINS IN ALL


KITCHEN, BASINS & BATHROOMS

20mm Ø CWS SUPPLY FROM MAINS


1500 1600 3250 1900 1900 2400 4200 2400 1900 1900 2400 1500

1 1

1250
2 W3 W2 W2 W3 W3 W2 W2 W3 2

1250
D2

D2

D2

D2
3 3
W3

W1

1250
D1
4 D1
4

1875

11250
5 5

1875
6 D1
6

1250
7 D3 D3 D3 D3
7
W3

rev. date of

1250
revision deatils initials
ravision

CONSULTANTS:
8 D1
8

1250
9 9

PROJECT:
PROPOSED MIXED-USED TWO(2) STOREY BUILDING PLAN
LOCATED AT DAWHENYA-LADOKU.

1500 1600 3250 1900 1900 2400 4200 2400 1903 1897 2400 1500
LOCATION:

26850 DAWHENYA-LADOKU,NINGO PRAMPRAM MUNICIPALITY


GREATER ACCRA

client:

HANNAH NAOMI ENU

A B C E F F1 G J J1 K K1 M N drawing title:

AS SHOWN

DESIGNED BY : scale:
1:100
E.A SIAW
date: MAY. 2021

DRAWING FILE:
PLUMBING LAYOUT ON GROUND FLOOR(COLD WATER DISTRIBUTION) Sheet no.
0012 - ARCH-2B-08 PL-003
NOTES
EXPOSED CISTERN WATER CLOSET 1. Do not scale from drawings. Only figured dimensions
SUITE. (P TRAP) to be worked to. When in doubt consult the Architect.
PEDESTAL WASH HAND BASIN 2. All dimensions are in millimetres.
WITH COLD WATER

SHOWER TRAY

DOUBLE BOWL, KITCHEN SINK

3-50mm Inlet x 1-75mm


GT OUTLET FLOOR DRAIN
(GULLY TRAP-GT)

600 x 600mm ( I.C ) INSPECTION


CHAMBER, ( C.I.C ) COMBIND

A B C D E F G H I J K L M N INSPECTION CHAMBER

STOP VALVE

G W S C L METER

26850
13mm Ø FLEXIBLE DISTRIBUTOR
TO WC, 15mm Ø CWS DISTRIBUTOR

1500 1600 850 2150 2150 4300 1000 2000 1200 4300 2800 1500 1500 50mm Ø WASTE WATER PIPE TO SOAK PIT

150 / 100mmØ SOIL PIPE TO PUBLIC SEWER

FLOOR DRAINS IN ALL


KITCHEN, BASINS & BATHROOMS

20mm Ø CWS SUPPLY FROM MAINS

1 W2 W1 W1 W1 W1 W1 1
1250

1250
D2

2 2
1250

1250
W1
D2

3 3
1250

1250
D2

4 D2
4
1875

1875
D1
11250

11250
5 5

W1
1875

1875
W3

6 D2 D1 D1
6
1250

1250
D2

D1
7 7
1250

1250
D1
D2

date of initials
8 W1
8 rev. ravision revision deatils

W3
1250

1250
CONSULTANTS:
D2

9 W2 W3 W1 W1 W1 W1
9

PROJECT:
PROPOSED MIXED-USED TWO(2) STOREY BUILDING PLAN
LOCATED AT DAWHENYA-LADOKU.

1500 1600 850 2150 2150 4300 1000 2000 1200 4300 2800 1500 1500
LOCATION:

26850 DAWHENYA-LADOKU,NINGO PRAMPRAM MUNICIPALITY


GREATER ACCRA

client:

HANNAH NAOMI ENU

A B C D E F G H I J K L M M drawing title:

AS SHOWN

DESIGNED BY : scale:
1:100
E.A SIAW
date: MAY. 2021

PLUMBING LAYOUT ON FIRST FLOOR(COLD WATER DISTRIBUTION) DRAWING FILE: Sheet no.
0012 - ARCH-2B-08 PL-004
STRUCTURAL DRAWINGS
NOTES
balloon cage to svp
termination above
roof level 1. Do not scale from drawings. Only figured dimensions
oil-painted 225x300mm cement- to be worked to. When in doubt consult the Architect.
sand rendered r.conc. column STONE FACING 2. All dimensions are in millimetres.

oil-painted 225x300mm cement-


sand rendered r.conc. column

soil and vent pipe

metal gate

flushing cistern

cistern overflow pipe

wc with 50
minimum seal
FRONT ELEVATION BLOCK WORK
50 dia. anti- syphonage pipe

SCALE = 1 : 50
inspection eye
floor fin.

hardcore filling

A concrete
benching

150
to septic tank
foundation concrete

225

mortar mix for joint 12' 2" grips should be made


300 1200 300 4500 300 600 1800 600 300 750 under joint. allow shanks of drains to rest on
rammed earth base (drain gradient 21-40)

1425 4700 3300 6" SOLID BLOCKWALL 6" SOLID BLOCKWALL


TOPPED WITH CONC COPING. TOPPED WITH CONC COPING.

200
A

200 100
FRONT FENCEWALL PLAN

600
2" DIA. ROUND PIPE
SCALE = 1 : 50

50 600
IN DWARF WALL

2400

2400
2200

2100
100
225

6" SOLID BLOCKWALL


848

TOPPED WITH CONC COPING.


848 530

1050
rev. date of revision deatils initials
ravision
3394

3844
3341
2635

CONSULTANTS:

600

600
193

150

150
225

225
150

225 2545 225


SECTION B - B
SECTION C-C SECTION A - A 6" SOLID BLOCKWALL
2970 TOPPED WITH CONC COPING.
PROJECT:
PROPOSED MIXED-USED 2 STOREY RESIDENTIAL
SECTION D-D BUILDING PLAN LOCATED AT NINGO PRAMPRAM.

D
LOCATION:

C DAWHENYA-LADOKU,NINGO-PRAMPRAM MUNICIPALITY
GREATER ACCRA
BACK & SIDE ELEVATIONS
C
client:
225 225
500 HANNAH NAOMI ENU

225 225
225 225 225 225 500
500 4000 500 1250 1500 drawing title:
225

D
500

5675
950
3182
2755

225

AS SHOWN
225

4"mm∅ SOIL PIPE


1273
PLAN 3300 3300
TYPICAL MANHOLE
DESIGNED BY : scale:
CHAMBER
OF SEPTIC TANK RECTANGULAR CROSS SECTION E.A SIAW
1:100
date: MAY. 2021
SCALE = 1 : 100
FENCE WALL PLAN DRAWING FILE: Sheet no.
0012 - ARCH-2B-08 STR-01
NOTES
1. Do not scale from drawings. Only figured dimensions
to be worked to. When in doubt consult the Architect.
2. All dimensions are in millimetres.

A B C E F F1 G J J1 K K1 M N

26850

1500 1600 3250 1900 1900 2400 4200 2400 1900 1900 2400 1500

50 x 75mm hardwood purlins @ 1000mm c/c


drainage pipe
0.50 mm thick Aluzinc roofing sheets to 8 degrees
slope fixed to purlins with screws and washers

1 1
1250

1250
2 2
1250

1250
3 3
1250

1250
4 4
1875

1875
slope slope slope
11250

11250
5 5
1875

1875
6 6
1250

1250
7 7
1250

1250
8 8 rev. date of revision deatils initials
1250

1250
ravision

CONSULTANTS:
9 9

150 x 250 concrete coping 50 x 100mm jack and common rafters @ 900 c/c
150 thick Rc. roof gutter with Xypex water
proofing finished on cement sand screed.
PROJECT:
PROPOSED MIXED-USED TWO(2) STOREY BUILDING PLAN
1500 1600 3250 1900 1900 2400 4200 2400 1903 1897 2400 1500 LOCATED AT DAWHENYA-LADOKU.

26850 LOCATION:

DAWHENYA-LADOKU,NINGO PRAMPRAM MUNICIPALITY


GREATER ACCRA

client:

A B C E F F1 G J J1 K K1 M N HANNAH NAOMI ENU

drawing title:

AS SHOWN

DESIGNED BY : scale:
1:100
E.A SIAW
ROOF PLAN date: MAY. 2021

DRAWING FILE: Sheet no.


0012 - ARCH-2B-08 STR-02
NOTES
1. Do not scale from drawings. Only figured dimensions
to be worked to. When in doubt consult the Architect.
2. All dimensions are in millimetres.

8 9
B
1250

75mm kicker 75mm kicker

150
75mm kicker
A B C E F F1 G J J1 K K1 M N

600
150

450
600
450

1800
900
1800

1200
900

1200

foundation bed

300
foundation bed
300

26850 450 450 column base


450 column base
1200 800
1100 1500 1600 3250 1900 1900 2400 4200 2400 1900 1900 2400 1500

SECTION 02 - 02
SECTION 01 - 01 scale = 1: 50
scale = 1: 50

800 800
1100 1300 1300 1300
1 1
1250

1250
C2 C2 C3 C3 C3 C3 C3
C1 C1

1200

1200

1200
2 2
1200
800

800
F1 F1
1250

1250
F2 F2 STRIP FOOTING F3 STRIP FOOTING F3 STRIP FOOTING F3 STRIP FOOTING F3 STRIP FOOTING F3
H.C.F
1300
H.C.F
3 +450
+600 H.C.F
+600
H.C.F
+600
H.C.F
+600
H.C.F
+600
H.C.F
+600
H.C.F
+450
3
1250

1250
C2 C2 C4 C4 C4 C4 C3
C1 C1

1200
4 F1 F1
4
STRIP FOOTING STRIP FOOTING STRIP FOOTING STRIP FOOTING STRIP FOOTING
F2 F2 F4 F4 F4 F4 F3
1875

1875
STRIP FOOTING

STRIP FOOTING

STRIP FOOTING

STRIP FOOTING

STRIP FOOTING

STRIP FOOTING

STRIP FOOTING

STRIP FOOTING
H.C.F H.C.F H.C.F H.C.F H.C.F H.C.F
11250

11250
H.C.F H.C.F

5 +450
+600 +600
1300
+600 +600 +600
1300
+600 +450
5
1875

1875
C2 C2 STRIP FOOTING C4 STRIP FOOTING C4 STRIP FOOTING C4 STRIP FOOTING C4 STRIP FOOTING C4
C1 C1
1200

1200
6 F1 F1
6
1250

1250
F2 F2 F4 F4 F4 F4 F4

H.C.F H.C.F H.C.F H.C.F H.C.F H.C.F


7 7
STRIP FOOTING

STRIP FOOTING
H.C.F +600 +600 +600 +600 +600 +600 H.C.F
1250

1250
+450 +450

C2 C2 STRIP FOOTING C3 STRIP FOOTING C4 STRIP FOOTING C4 STRIP FOOTING C3 STRIP FOOTING C3

8 8
1250

1250
H.C.F H.C.F F4 H.C.F F4 H.C.F H.C.F
F2 F2 +450
F3 +450 +450
F3 +450
F3
+450
C1 C1 C1 C1 C1 C1 C1 C1 rev. date of revision deatils initials
9 9 ravision
800

800
F1 F1 F1 F1 F1 F1 F1 F1
STRIP FOOTING STRIP FOOTING STRIP FOOTING STRIP FOOTING STRIP FOOTING CONSULTANTS:

800 800
K

1500 1600 3250 1900 1900 2400 4200 2400 1903 1897 2400 1500
75mm kicker PROJECT:
150

PROPOSED MIXED-USED TWO(2) STOREY BUILDING PLAN


26850
600

LOCATED AT DAWHENYA-LADOKU.
450

1800
900

LOCATION:
1200

foundation bed
300

DAWHENYA-LADOKU,NINGO PRAMPRAM MUNICIPALITY


GREATER ACCRA
450 column base A B C E F F1 G J J1 K K1 M N
1300 client:

HANNAH NAOMI ENU


SECTION 03 - 03
scale = 1: 50
drawing title:

AS SHOWN

DESIGNED BY : scale:
1:100
E.A SIAW
FOUNDATION PLAN date: MAY. 2021

DRAWING FILE: Sheet no.


0012 - ARCH-2B-08 STR-03
NOTES
1. Do not scale from drawings. Only figured dimensions
to be worked to. When in doubt consult the Architect.
2. All dimensions are in millimetres.

A B C E F F1 G J J1 K K1 M N

26850

1500 1600 3250 1900 1900 2400 4200 2400 1900 1900 2400 1500

1 1
1250

1250
C1 C2 C2 C3 C3 C3 C3 C3 C1
2 350 X 150 GROUND BEAM 350 X 150 GROUND BEAM 350 X 150 GROUND BEAM 350 X 150 GROUND BEAM 350 X 150 GROUND BEAM 2
1250

1250
Floor level

Floor level
+450

+450
Floor level Floor level Floor level Floor level Floor level
3 +600 +600 +600 +600 +600 3
1250

1250
C1 C2 C2 C4 C4 C4 C4 C3 C1
4 350 X 150 GROUND BEAM 350 X 150 GROUND BEAM 350 X 150 GROUND BEAM 350 X 150 GROUND BEAM 350 X 150 GROUND BEAM 4
1875

1875
350 X 150 GROUND BEAM

350 X 150 GROUND BEAM

350 X 150 GROUND BEAM

350 X 150 GROUND BEAM

350 X 150 GROUND BEAM

350 X 150 GROUND BEAM

350 X 150 GROUND BEAM

350 X 150 GROUND BEAM


Floor level

Floor level
Floor level
.
11250

11250
+450

+450
+600
om
5 Floor level
+600
Floor level
+600 to bott Floor level
+600
Floor level
+600
5
top
from
mm
1875

1875
id 150
2 la
sh A25
C1 C2 C2 C4
t me C4 C4 C4 C4 C1
6 350 X 150 GROUND BEAM
einf
orcem en
350 X 150 GROUND BEAM 350 X 150 GROUND BEAM 350 X 150 GROUND BEAM 350 X 150 GROUND BEAM 6
1250

1250
ith r
Floor level bw
d sla
350 X 150 GROUND BEAM

350 X 150 GROUND BEAM

350 X 150 GROUND BEAM

350 X 150 GROUND BEAM

350 X 150 GROUND BEAM

350 X 150 GROUND BEAM

350 X 150 GROUND BEAM

350 X 150 GROUND BEAM


+600
nde
7 on-S
uspe
Floor level Floor level Floor level
7
mN
1250

1250
m +600 +600 +600
150
Floor level

Floor level
C2 C2 C3 C4 C4 C3 C3
8 8
+450

+450
350 X 150 GROUND BEAM 350 X 150 GROUND BEAM 350 X 150 GROUND BEAM 350 X 150 GROUND BEAM 350 X 150 GROUND BEAM rev. date of
ravision revision deatils initials
1250

1250
Floor level Floor level Floor level Floor level Floor level
+450 +450 +450 +450 +450 CONSULTANTS:
C1 C1 C1 C1 C1 C1 C1 C1
9 9

PROJECT:
PROPOSED MIXED-USED TWO(2) STOREY BUILDING PLAN
LOCATED AT DAWHENYA-LADOKU.
1500 1600 3250 1900 1900 2400 4200 2400 1903 1897 2400 1500

LOCATION:
26850
DAWHENYA-LADOKU,NINGO PRAMPRAM MUNICIPALITY
GREATER ACCRA

client:

HANNAH NAOMI ENU

A B C E F F1 G J J1 K K1 M N drawing title:

AS SHOWN

DESIGNED BY : scale:
1:100
GENERAL ARRANGEMENT ON GROUND FLOOR E.A SIAW
date: MAY. 2021

DRAWING FILE: Sheet no.


0012 - ARCH-2B-08 STR-04
NOTES
1. Do not scale from drawings. Only figured dimensions
to be worked to. When in doubt consult the Architect.
2. All dimensions are in millimetres.

A B C E F F1 G J J1 K K1 M N

26850

1500 1600 3250 1900 1900 2400 4200 2400 1900 1900 2400 1500

C5 C5 C5 C5 C5 C5
1 C5
1
1250

1250
Floor level Floor level
+3150 Floor level Floor level Floor level Floor level
+3150 +3150 +3150 +3150 +3150
C2 C2
2 450 X 150 RC. BEAM 450 X 150 RC. BEAM 450 X 150 RC. BEAM 450 X 150 RC. BEAM 450 X 150 RC. BEAM 2
1250

1250
450 X 150 RC BEAM

450 X 150 RC BEAM

450 X 150 RC BEAM

450 X 150 RC BEAM

450 X 150 RC BEAM

450 X 150 RC BEAM


450 X 150 RC BEAM
450 X 150 RC BEAM
3 Floor level
+3150
Floor level
+3150
Floor level
+3150
Floor level
+3150
Floor level
+3150
Floor level
+3150
Floor level
+3150
3
1250

1250
C5 C2 C2 C4 C4 C4 C4 C5
4 450 X 150 RC. BEAM 450 X 150 RC. BEAM 450 X 150 RC. BEAM 450 X 150 RC. BEAM 450 X 150 RC. BEAM 4
1875

1875
ott om.
450 X 150 RC BEAM

450 X 150 RC BEAM

450 X 150 RC BEAM

450 X 150 RC BEAM

450 X 150 RC BEAM

450 X 150 RC BEAM

450 X 150 RC BEAM

450 X 150 RC BEAM


to b
top
11250

11250
om
m fr
Floor level

5 Floor level
5
+3000

m
+3150
150level
Floor level
+3150
Floor level
+3150 2 laidFloor
+3150
Floor level
+3150
Floor level
+3150
A25
1875

1875
h
t mes
emen
C5 C2 C2 C4 ein forc C4 C4 C4 C4 C5
ith r
450 X 150 RC. BEAM 450 X 150 RC. BEAM 450 X 150 RC. BEAM 450 X 150 RC. BEAM 450 X 150 RC. BEAM

6 slab
w 6
nded
1250

1250
450 X 150 RC BEAM
uspe
450 X 150 RC BEAM

450 X 150 RC BEAM

450 X 150 RC BEAM

450 X 150 RC BEAM

450 X 150 RC BEAM

450 X 150 RC BEAM


mmS
150
7 Floor level Floor level
+3150
Floor level
+3150
Floor level
+3150
Floor level
+3150
Floor level
+3150
7
450 X 150 RC BEAM

+3150

Floor level
1250

1250
+3000
C2 C2 450 X 150 RC. BEAM
C3 450 X 150 RC. BEAM C4 450 X 150 RC. BEAM C4 450 X 150 RC. BEAM 450 X 150 RC. BEAM

8 Floor level
8
1250

1250
+3150 Floor level Floor level
+3150 +3150 Floor level Floor level rev. date of revision deatils initials
+3150 +3150 ravision
C5 C5 450 X 150 RC. BEAM C5 450 X 150 RC. BEAM C5 C5 450 X 150 RC. BEAM C5 450 X 150 RC. BEAM C5 C5
9 9 CONSULTANTS:

PROJECT:
1500 1600 3250 1900 1900 2400 4200 2400 1903 1897 2400 1500 PROPOSED MIXED-USED TWO(2) STOREY BUILDING PLAN
LOCATED AT DAWHENYA-LADOKU.

26850
LOCATION:

DAWHENYA-LADOKU,NINGO PRAMPRAM MUNICIPALITY


GREATER ACCRA

client:
A B C E F F1 G J J1 K K1 M N
HANNAH NAOMI ENU

drawing title:

AS SHOWN

DESIGNED BY : scale:
GENERAL ARRANGEMENT ON FIRST FLOOR E.A SIAW
1:100
date: MAY. 2021

DRAWING FILE: Sheet no.


0012 - ARCH-2B-08 STR-05
NOTES
1. Do not scale from drawings. Only figured dimensions
to be worked to. When in doubt consult the Architect.
2. All dimensions are in millimetres.

A B C E F F1 G J J1 K K1 M N

26850

1500 1600 3250 1900 1900 2400 4200 2400 1900 1900 2400 1500

1 350 X 150 ROOF BEAM 350 X 150 ROOF BEAM 350 X 150 ROOF BEAM 350 X 150 ROOF BEAM 350 X 150 ROOF BEAM 350 X 150 ROOF BEAM 1
1250

1250
2 350 X 150 ROOF BEAM VOID 350 X 150 ROOF BEAM 350 X 150 ROOF BEAM VOID 350 X 150 ROOF BEAM 350 X 150 ROOF BEAM 350 X 150 ROOF BEAM 2
1250

1250
350 X 150 ROOF BEAM

350 X 150 ROOF BEAM

350 X 150 ROOF BEAM

350 X 150 ROOF BEAM

350 X 150 ROOF BEAM

350 X 150 ROOF BEAM


VOID VOID

3 3
1250

1250
4 350 X 150 ROOF BEAM 350 X 150 ROOF BEAM 350 X 150 ROOF BEAM 350 X 150 ROOF BEAM 350 X 150 ROOF BEAM 4
1875

1875
350 X 150 ROOF BEAM

350 X 150 ROOF BEAM

350 X 150 ROOF BEAM

350 X 150 ROOF BEAM

350 X 150 ROOF BEAM

350 X 150 ROOF BEAM


11250

11250
5 5
1875

1875
VOID

VOID VOID VOID


VOID
6 350 X 150 ROOF BEAM 350 X 150 ROOF BEAM 350 X 150 ROOF BEAM 350 X 150 ROOF BEAM 350 X 150 ROOF BEAM 6
1250

1250
7 7
350 X 150 ROOF BEAM

350 X 150 ROOF BEAM

350 X 150 ROOF BEAM

350 X 150 ROOF BEAM

350 X 150 ROOF BEAM

350 X 150 ROOF BEAM


1250

1250
8 350 X 150 ROOF BEAM 350 X 150 ROOF BEAM 350 X 150 ROOF BEAM 350 X 150 ROOF BEAM 350 X 150 ROOF BEAM 8
1250

1250
350 X 150 ROOF BEAM 350 X 150 ROOF BEAM 350 X 150 ROOF BEAM 350 X 150 ROOF BEAM 350 X 150 ROOF BEAM

9 9 rev. date of
ravision revision deatils initials

CONSULTANTS:

1500 1600 3250 1900 1900 2400 4200 2400 1903 1897 2400 1500
PROJECT:
PROPOSED MIXED-USED TWO(2) STOREY BUILDING PLAN
26850 LOCATED AT DAWHENYA-LADOKU.

LOCATION:

DAWHENYA-LADOKU,NINGO PRAMPRAM MUNICIPALITY


GREATER ACCRA

A B C E F F1 G J J1 K K1 M N client:

HANNAH NAOMI ENU

drawing title:

AS SHOWN

DESIGNED BY : scale:
1:100
E.A SIAW
date: MAY. 2021

GENERAL ARRANGEMENT OF ROOF BEAMS DRAWING FILE: Sheet no.


0012 - ARCH-2B-08 STR-06
NOTES
FOOTING TYPES BENDING SCHEDULES
1. Do not scale from drawings. Only figured dimensions
BAR
DIA. QTY. LENGTH SHAPE
to be worked to. When in doubt consult the Architect.
MARK
1200 50
2. All dimensions are in millimetres.
R1001 10mm 196 250 50

525 525 150 50


450 150 900 50 250 50
R1002 10mm 96 350 50

T1406 100

FOOTING DETAIL TYPE 3


50

75 KICKER
T1406

525
R1003 10mm 108 450 50
T1406

03
150 150
T1406

9 No. THUS.
T1411 T1411 50
SECTION 03-03

T1406

1300
R1004 10mm 132 550 50

250
T1406
3

200
250

T1411
00

T1411 12 - 1003@150c/cs
R1

6 - T1411
T1406
T1411 T1411
T1406 T1401 14mm 112 1100 200 700 200
50 mm cover

525
03
T1406

13- T1406@100/cs
12 - T1405@100/cs
T1406
T1402 14mm 112 1100 200 700 200
T1406 300

T1405

T1412

T1412

T1412

T1412
T1403 14mm 88 1500 200 1100 200

1800
T1404 14mm 96 1400 200 1000 200
R1
004

150
50 mm cover
T1405 14mm 108 1600 200 1200 200

T1412

T1412

T1412

T1412
T1406 14mm 117 1500 200 1100 200

SECTION 04-04 T1407 14mm 132 1600 200 1200 200

T1408 14mm 143 1500 200 1100 200

T1409 14mm 56 2100 200 1900

T1410 14mm 48 2100 200 1900

75 KICKER
1100 T1411 14mm 54 2100 200 1900

450 150
475 475 150
450 150 900 50 250 T1412 14mm 88 2100 200 1900

12 - 1004@150c/cs
T1404

FOOTING DETAIL TYPE 2


T1404
75 KICKER

500
T1404
02

1800
150
T1404 04 04

900
8 No. THUS.
T1410 T1410
SECTION 02-02

T1404

1200
200
T1404
8 - T1412
2
200

00

T1410 T1410 12 - 1002@150c/cs


6 - T1410
R1

T1404
T1410 T1410 T1404
50 mm cover

500
02

T1404

50 250
12- T1404@100/cs
T1404
11 - T1403@100/cs

T1407
T1404
T1403

T1408
T1408
T1408
T1408
T1408
T1408
T1408
T1408
T1408
T1408
T1408
1800

rev. date of revision deatils initials


ravision

CONSULTANTS:

525
12 - T1407@100/cs

1200
PROJECT:

150
800
PROPOSED MIXED-USED TWO(2) STOREY BUILDING PLAN
LOCATED AT DAWHENYA-LADOKU.
325 325 150

525
450 150 900 50 250
13- T1408@100/cs
T1402 LOCATION:
FOOTING DETAIL TYPE 1
75 KICKER

T1402
325

T1402 DAWHENYA-LADOKU,NINGO PRAMPRAM MUNICIPALITY


01

150 GREATER ACCRA


14 No. THUS.

T1402
525 300 525
SECTION 01-01

T1409 T1409 T1402


800
150

client:
01

T1402
1300
150

12 - 1001@150c/cs
0

4 - T1409
R1

T1402
T1409 T1409 HANNAH NAOMI ENU
T1402
50 mm cover

325
01

T1402
FOOTING DETAIL TYPE 4
T1402 drawing title:
8- T1402@100/cs
8 - T1401@100/cs

T1402 11 No. THUS.


T1401

1800 AS SHOWN

DESIGNED BY : scale:
1:100
E.A SIAW
date: MAY. 2021
COLUMN BASES TYPES DETAILS DRAWING FILE: Sheet no.
0012 - ARCH-2B-08 STR-07
NOTES
COLUMN TYPES BENDING SCHEDULE
1. Do not scale from drawings. Only figured dimensions

NS
to be worked to. When in doubt consult the Architect.

o.

TH
H

LN
TIO

AC

NG
MARK DIA
BENDING SKETCH
2.

TA
All dimensions are in millimetres.

CA
200 300

.E

LE
TO
No
LO
R1401

R1401

R1401

R1404

R1404

R1404

R1404
R1 R1
COLUMN TYPE 'C1' (TERMINATED AT +450 FL
25 mm cover 00 25 mm cover

150

150
1 00 (14 No.THUS)
4
R1401

R1401

R1401

R1404

R1404

R1404

R1404
T1401 14 6 48 3200 2700 350 150
SECTION 01-01 SECTION 04-04

COLUMN TYPE 'C2'


150
14 6 48 3200 2700 350
T1402

(8 No.THUS)
200
R1402

R1402

R1402

300
50

R1405

R1405

R1405
R1405
R1001 10 14 32 550 100
150
R1 50
25 mm cover 00
150

2 R1002 10 14 32 550 100


R1
25 mm cover

150
00 150
5

COLUMN TYPE 'C3'


R1402

R1402

R1402

T1403 14 6 54 3200 2700 350 150

R1405

R1405

R1405
R1405

(9 No.THUS)
SECTION 02-02 50
R1003 10 14 126 650 100
SECTION 05-05
200

T1404 14 8 88 3200 2700 350 150

COLUMN TYPE 'C4'


150
8 88 3200 2700 350

(11 No.THUS)
T1405 14

50
R1004 10 14 154 750 100
250

50
R1005 10 14 154 750 100
350

350
250

COLUMN TYPE 'C5'


T1406 14 4 80 3200 2700 350 150

(20 No.THUS)
50
R1006 10 14 56 450 100
100
14 - 1002@200c/cs

14 - 1005@200c/cs
6 - R1402 8 - R1405
3100

3100
250 150

02 02 05 05
R1403

R1403
R1403

R1406

R1406
2700

2700
R1 R1
25 mm cover 00 25 mm cover 00
150

150
3 6
75 KICKER

75 KICKER

R1406

R1406
R1403

R1403
R1403

SECTION 03-03 SECTION 06-06


150

150

150

150
300

300

300

300
rev. date of
ravision revision deatils initials

CONSULTANTS:
14- 1001@200c/cs

14- 1003@200c/cs

14- 1004@200c/cs

14- 1006@200c/cs
6 - R1401 6 - R1403 8 - R1404 4 - R1406
3150

3150

3150

3150
01 01 03 03 04 04 06 06
2700

2700

2700

2700
PROJECT:
PROPOSED MIXED-USED TWO(2) STOREY BUILDING PLAN
LOCATED AT DAWHENYA-LADOKU.
75 KICKER

75 KICKER

75 KICKER

75 KICKER
LOCATION:

DAWHENYA-LADOKU,NINGO PRAMPRAM MUNICIPALITY


GREATER ACCRA

client:
200 150

200 150

200 150

200 150
350

350

350

350
HANNAH NAOMI ENU

drawing title:

COLUMN TYPE 2 COLUMN TYPE 3 COLUMN TYPE 4 COLUMN TYPE 5 AS SHOWN


8 No. THUS 9 No. THUS 11 No. THUS 20 No. THUS

DESIGNED BY : scale:
1:100
E.A SIAW
date: MAY. 2021

DRAWING FILE:
COLUMN TYPES DETAILS Sheet no.
0012 - ARCH-2B-08 STR-08
NOTES
1. Do not scale from drawings. Only figured dimensions
BENDING SCHEDULE to be worked to. When in doubt consult the Architect.
2. All dimensions are in millimetres.

NS

H
No
TIO

GT
AC
MARK DIA

AL
BENDING SKETCH

CA

N
.E

LE
T
LO

TO
No
900
R1201 12 137 137 6000 100 5000

R1202 12 137 137 5000 5000

900
R1203 12 137 137 6000 100 5000

A B C E F F1 G J J1 K K1 M N R1204 12 49 49 5000 100


900
4000

900

FIRST FLOOR SLAB DETAILS


R1205 12 49 49 5000 100 4000

49

(1 No.ONLY)
R1206 12 49 4000 4000

900
R1207 12 49 49 5000 100 4000

26850 R1208 12 49 49 5000 100


900
4000

R1209 12 49 49 4000 4000

1500 1600 3250 1900 1900 2400 4200 2400 1900 1900 2400 1500

49-R1205@ 200c/c B1 49-R1204@ 200c/c B1 49-R1207@ 200c/c B1 49-R1208@ 200c/c B1

R1206
SECTION B-B

1 1
137-R1201@ 200c/c B1
1

R1206
1250

1250

1250
R1205

6
R1206

6
2 2
2

R1205 R1206
1250

1250
R1201

R1205 R1206
2500

3 3

13

13

13

13
R1205 R1206
1250

1250
16 26 22 21 22 22 8

4 4
4

R1206
1875

1875
R1205 R1206
137-R1202@ 200c/c T2

R1205 R1206
11250

11250
3750

12

12

12

12
R1205 R1206 5 5
R1206
R1202

1875

1875
R1205
R1205 R1206

6 6
R1206
6

1250

1250
R1205 R1206
12

12

12

12
2500

7 7
R1205 R1206
137-R1203@ 200c/c B1
1250

1250
R1205 R1206
R1206 16 26 22 21 22 22 8
8 8
8

6
1250

1250

1250
R1205 R1206
R1206
9 9
9

49-R1209@ 200c/c T2/B2


49-R1206@ 200c/c T1

1500 1600 3250 1900 1900 2400 4200 2400 1903 1897 2400 1500 rev. date of
ravision revision deatils initials

CONSULTANTS:
26850

A B C E F F1 G J J1 K K1 M N
PROJECT:
PROPOSED MIXED-USED TWO(2) STOREY BUILDING PLAN
LOCATED AT DAWHENYA-LADOKU.

LOCATION:

A B C F G J K M N DAWHENYA-LADOKU,NINGO PRAMPRAM MUNICIPALITY


GREATER ACCRA

1500 1600 5150 4300 4200 4300 4300 1500


client:
R1206 R1201 HANNAH NAOMI ENU
R1202
R1202
R1202
R1202
R1202
R1202

R1202
R1202
R1202
R1202
R1202
R1202
R1202
R1202

R1202
R1202
R1202
R1202
R1202
R1202
R1202
R1202

R1202
R1202

R1202
R1202
R1202
R1202
drawing title:
R1203

R1203

R1203

R1203
R1203
R1203
R1203
R1203

R1203
R1203
R1203

R1203

R1203
R1203
R1203
R1203
R1203

R1203
R1203
R1203
R1203

R1203
R1203
R1203
R1203

R1203

R1203
AS SHOWN

SECTION A-A
DESIGNED BY : scale:
1:100
E.A SIAW
date: MAY. 2021

FLOOR SLAB DETAILS DRAWING FILE: Sheet no.


0012 - ARCH-2B-08 STR-09
NOTES
Staircase bending schedule
BAR
12- TREADS - 250= 3000 1050 150 MARK DIA. QTY. LENGTH SHAPE

R1403
R1001 10mm 84 1100 100
R1401 400
R1
40 6 8
1
09
4
R1401 14mm 42 1050
300 75
0
R1

9
R1
40
2500

09
00
R1402 14mm 6 2350 10

4
400 550
R1

9
400

40
3 - R1413
9

R1
40

600 10
R1403 14mm 42 1600 00
150
R1

R1407
09
6
R1

300
9

R1413
40

09
R1404 14mm 6 2950 00
24
R1

4
09

R1
250

300 150
9
4

40

11 No RISERS @ 150c/c LENGTH = 1700


R1

300
9
24

R1
40

09
R1405 14mm 42 3000 00

150
300
R1

4
09

R1

9
4

40
R1001
R1

R1605 9 300

R1
R1406 14mm 42 1050 0
40
75
2 - R1413
R1

09

450
4
10

R1410

R1410

R1410

R1410

300
12 - R1001 LINKS @ 200 c/c
R1
00

9
300
R1413 R1407 14mm 42 2375
40
100
975
R1

SECTION B-B R1408 14mm 42 2375


10
00 975
300
100

SECTION 01-01 150X450 LANDING BEAMS R1409 14mm 259 1175

2 NO. R1410 14mm 28 3300 100


400
2300
400
100

R1411 14mm 36 1600 600 00


10

300
10 No RISERS @ 150c/c LENGTH = 1400

R1412 14mm 36 3000 00


24
300

R1413 14mm 6 2700 200 2300 200

J
12 - TREADS - 250 = 3000 1200

12 - TREADS - 250 = 3000 1050 150


6
150

R1408 rev. date of revision deatils initials


ravision
R1606

1100 300 1100


B B
CONSULTANTS:
R1

6
40
40

R1
450
R1

300
R1410

R1410

R1410

R1410
40

18 - 1409@225c/cs

2500
R1

9
4

R1
09

4 - 1410@225c/cs
R1

40
40

R1

9
9

40

R1402
A A
R1

PROJECT:
40

PROPOSED MIXED-USED 2 STOREY RESIDENTIAL


R1

9
R1

40

BUILDING PLAN LOCATED AT NINGO PRAMPRAM.


40

R1

25 - 1409@225c/cs
R1

40
40

R1

9
R1

LOCATION:
9

40

8
40

R1

R1604
R1

40
150

DAWHENYA-LADOKU,NINGO-PRAMPRAM MUNICIPALITY
40

R1

GREATER ACCRA
R1

4
09
40
9

client:

6 - 1402@200c/cs

6 - 1403@200c/cs

6 - 1404@200c/cs

6 - 1405@200c/cs

6 - 1406@200c/cs
6 - 1407@200c/cs

6 - 1408@200c/cs
450

6 - 1401@200c/cs
300

R1409 R1409 HANNAH NAOMI ENU

R1409 R1409 drawing title:


R1401

SECTION A-A
450 AS SHOWN

DESIGNED BY : scale:
1:100
E.A SIAW
STAIRCASE TYPE DETAILS GROUND FLOOR TO FIRST FLOOR
date: MAY. 2021

DRAWING FILE: Sheet no.


1 No. ONLY 0012 - ARCH-2B-08 STR-10
NOTES
2 4 6 9 2 4 6 8 9 1 2 4 6 9
1. Do not scale from drawings. Only figured dimensions
2500 3750 3750 2500 3750 2500 1250 1250 2500 3750 3750 to be worked to. When in doubt consult the Architect.
2. All dimensions are in millimetres.
(3-R1201) (3-R1202) (3-R1211) (3-R1212) (3-T1407) (3-T1408)
1 3 492 5
392 365

13+2(19)-R1001 @ 200 c/c 13+19+13+6-R1003 @ 200 c/c


7+13+2(19)-R1005@ 200 c/c

1 3 437 5
438
446
(4-R1203) (4-R1204) (4-R1213) (4-R1214) (4-T1409) (4-T1410)

GROUND BEAM ON GRIDLINE 2-9/M-M FIRST FLOOR BEAM ON GRIDLINE 1-9/N-N


GROUND BEAM ON GRIDLINE 2-9/N-N 6 No. THUS 2 No. THUS
2 No. THUS

A B C F G J K M N A C F G

3100 5150 4300


1500 1600 5150 4300 4200 4300 4300 1500
(3-T1411) (3-T1412)
(3-R1205) (3-R1206) 592 (3-R1207) 6
443 2 499

21+34+29-R1006@ 150 c/c


8+8+26+22+21+22+22+8-R1002 @ 200 c/c

641 6
854 2
716
(4-T1413) (4-T1414)
(4-R1208) (4-R1209) (4-R1210)

GROUND BEAM ON GRIDLINE 2-2/A-N FIRST FLOOR BEAM ON GRIDLINE 9-9/A-G


3 No. THUS 1 No. ONLY

rev. date of revision deatils initials


ravision
A B C F G J K M N A C F G J K M N CONSULTANTS:

1500 1600 5150 4300 4200 4300 4300 1500 3100 5150 4300 4200 4300 4300 1500
(3-T1401) (3-T1402) 592 (3-T1403) (3-T1415) (3-T1416) 592 (3-T1417)
443 4 443 7

PROJECT:
PROPOSED MIXED-USED TWO(2) STOREY BUILDING PLAN
8+8+26+22+21+22+22+8-R1004@ 200 c/c 21+34+29+28+29+29+8-R1007@ 150 c/c LOCATED AT DAWHENYA-LADOKU.

LOCATION:
854 4 854 7
716 716
DAWHENYA-LADOKU,NINGO PRAMPRAM MUNICIPALITY
(4-T1404) (4-T1405) (4-T1406) (4-T1418) (4-T1419) (4-T1420) GREATER ACCRA

client:
FIRST FLOOR BEAM ON GRIDLINE 4-4/A-N FIRST FLOOR BEAM ON GRIDLINE 1-1/A-N HANNAH NAOMI ENU
2 No. THUS 1 No. ONLY

drawing title:

AS SHOWN

BEAM TYPES DETAILS DESIGNED BY : scale:


1:100
E.A SIAW
date: MAY. 2021

DRAWING FILE: Sheet no.


0012 - ARCH-2B-08 STR-11
BEAMS TYPES BENDING SCHEDULE 5175
T1407 14 mm 3 6 5275 100
NOTES

FIRST FLOOR BEAM ON GRID N-N/1-9


.
No
NS

TH
AC
IO
14 mm 3 6

L
T1408 5880 5780 100

NG
TA
MARK DIA

.E
T
BENDING SKETCH

CA
1.

TO

LE
No
Do not scale from drawings. Only figured dimensions

LO
A C F G J K M N to be worked to. When in doubt consult the Architect.

2 No. THUS
T1409 14 mm 4 8 4925 100 4825
4117
R1201 12 mm 3 6 4217 100
2. All dimensions are in millimetres.
3100 5150 4300 4200 4300 4300 1500
T1410 14 mm 4 8 6220 6120 100

GROUND BEAM ON GRID N-N/2-9


R1202 12 mm 3 6 5730 5630 100
(3-T1421) (3-T1422) 592 (3-T1423)
443 8 50
R1005 10 mm 58 116 1050 100 100

2 No. THUS
R1203 12 mm 4 8 5195 100 5095 400

4595 100 T1411 14 mm 3 3 6110 100 6010


R1204 12 mm 4 8 4695

FIRST FLOOR BEAM ON GRID A-G/9-9


50
R1001 10 mm 51 102 850 100 100 T1412 14 mm 3 3 6280 6180 100
21+34+29+28+29+29+8-R1008@ 150 c/c
300

1 No. ONLY
T1413 14 mm 4 4 5100 100 5000
R1205 12 mm 3 9 9934 100 9834

854 8 T1414 14 mm 4 4 7225 7125 100

GROUND BEAM ON GRID A-N/2-2


716 R1206 12 mm 3 9 9055 9055

(3-T1424) (3-T1425) (3-T1426) 50


R1006 10 mm 84 84 1050 100 100

3 No. THUS
R1207 12 mm 3 9 7614 7514 100 400

T1415 14 mm 3 3 9930 100 9830


R1208 12 mm 4 12 6809 100 6709
ROOF BEAM ON GRIDLINE 1-1/A-N
1 No. ONLY
R1209 12 mm 4 12 7524 7524 T1416 14 mm 3 3 6010 6010

FIRST FLOOR BEAM ON GRID A-N/1-1


R1210 12 mm 4 12 11765 11665 100 T1417 14 mm 3 3 7610 7510 100

1 No. ONLY
50
A C F G R1002 10 mm 138 414 850 100 100 T1418 14 mm 4 4 6800 100 6700
300

3100 5150 4300


T1419 14 mm 4 4 7520 7520
R1211 12 mm 3 18 4550 100 4450
(3-T1427) (3-T1428)
9 4 4 11660 100

GROUND BEAM ON GRID M-M/2-9


T1420 14 mm 11760
499 R1212 12 mm 3 18 5364 5264 100
50
R1007 10 mm 178 178 1050 100 100

6 No. THUS
R1213 12 mm 4 24 3726 100 3626 400

5995 100 T1421 14 mm 3 3 6110 100 6010


R1214 12 mm 4 24 6095
21+34+29-R1009@ 150 c/c

ROOF BEAM ON GRID A-G/9-9


50
R1003 10 mm 51 306 850 100 100 T1422 14 mm 3 3 6280 6180 100
300

1 No. ONLY
641 9 9834 T1423 14 mm 4 4 5100 100 5000
T1401 14 mm 3 6 9934 100

FIRST FLOOR BEAM ON GRID A-N/4-4


(3-T1429) (3-T1430) T1424 14 mm 4 4 7225 7125 100
T1402 14 mm 3 6 9055 9055
50
R1008 10 mm 84 84 850 100 100

2 No. THUS
T1403 14 mm 3 6 7614 7514 100 300

ROOF BEAM ON GRIDLINE 9-9/A-G T1425 14 mm 3 3 9930 100 9830


1 No. ONLY T1404 14 mm 4 8 100 6709
6809

T1405 14 mm 4 8 7524 7524 T1426 14 mm 3 3 6010 6010

T1406 14 mm 4 8 11665 100 T1427 14 mm 3 3 7610 7510


11765 100

ROOF BEAM ON GRID A-N/1-1


1 No. ONLY
50
R1004 10 mm 138 276 1050 100 100 T1428 14 mm 4 4 100 6700
6800
R1202
R1202
R1202

T1403
T1403
T1403

T1412
T1412
T1412

400

T1429 14 mm 4 4 7520 7520


rev. date of
ravision revision deatils initials
150

150

150
(R1

(R1

(R1
450

450
350

00

00

00

T1430 14 mm 4 4 11760 11660 100 CONSULTANTS:


1)

4)

7)
200

300

300

50
R1204
R1204

T1406
T1406

T1414
T1414

R1009 10 mm 178 178 850 100 100


300

150 150 150

SECTION 1-1 SECTION 4-4 SECTION 7-7

PROJECT:
R1207
R1207
R1207

T1408
T1408
T1408

T1423
T1423
T1423

PROPOSED MIXED-USED TWO(2) STOREY BUILDING PLAN


LOCATED AT DAWHENYA-LADOKU.
150

150
(R1

(R1

(R1
450
350

350
00

00

00
2)

5)

8)
200

300

LOCATION:
R1210
R1210

T1410
T1410

T1426
T1426
T1426

DAWHENYA-LADOKU,NINGO PRAMPRAM MUNICIPALITY


GREATER ACCRA
150 150 150

SECTION 2-2 SECTION 5-5 SECTION 8-8 client:

HANNAH NAOMI ENU


R1212
R1212
R1212

T1412
T1412
T1412

T1428
T1428
T1428

drawing title:
150

150
(R1

(R1

(R1
350

450

350
00

00

00
3)

6)

9)

AS SHOWN
200

300
R1214
R1214

T1414
T1414

T1430
T1430
T1430

150 150 150 DESIGNED BY : scale:


1:100
BEAM TYPES DETAILS E.A SIAW
SECTION 3-3 SECTION 6-6 SECTION 9-9 date: MAY. 2021

DRAWING FILE: Sheet no.


0012 - ARCH-2B-08 STR-12

You might also like