KEMBAR78
HOOD Calculation | PDF | Ventilation (Architecture) | Equipment
0% found this document useful (0 votes)
2K views3 pages

HOOD Calculation

This report summarizes ventilation calculations for the kitchen hood at Oishi Sushi restaurant in Vendome Mall. The main kitchen hood is 4.3 meters long, requiring an extraction flow rate of 4230 CFM or 2000 L/s. The makeup air required is 1800 L/s. The dish wash hood is 0.9 meters long needing 590 CFM or 280 L/s extraction. Fresh air requirements for the kitchen and preparation areas total 400 L/s. The total exhaust is 2480 L/s while total fresh air is 2000 L/s, resulting in a deficiency of 480 L/s or 19.3%. Ventilation for the dining area is balanced with 100 L/s exhaust and 288

Uploaded by

himajcp
Copyright
© © All Rights Reserved
We take content rights seriously. If you suspect this is your content, claim it here.
Available Formats
Download as PDF, TXT or read online on Scribd
0% found this document useful (0 votes)
2K views3 pages

HOOD Calculation

This report summarizes ventilation calculations for the kitchen hood at Oishi Sushi restaurant in Vendome Mall. The main kitchen hood is 4.3 meters long, requiring an extraction flow rate of 4230 CFM or 2000 L/s. The makeup air required is 1800 L/s. The dish wash hood is 0.9 meters long needing 590 CFM or 280 L/s extraction. Fresh air requirements for the kitchen and preparation areas total 400 L/s. The total exhaust is 2480 L/s while total fresh air is 2000 L/s, resulting in a deficiency of 480 L/s or 19.3%. Ventilation for the dining area is balanced with 100 L/s exhaust and 288

Uploaded by

himajcp
Copyright
© © All Rights Reserved
We take content rights seriously. If you suspect this is your content, claim it here.
Available Formats
Download as PDF, TXT or read online on Scribd
You are on page 1/ 3

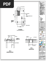
KITCHEN HOOD

Report

Project: Oishi Sushi@Vendom Mall

Aug, 2022
Ventilation Calculations -Restaurant
AT PLACE VENDOME MALL
1) Hood Ventilation Calculations (A 09) :

This main kitchen is already air conditioned and this calculation is for hood fans calculations as follows:
- Hood fans calculations are based on :
- Hood length 4.3 m = 14.1 ft.
- Minimum exhaust flow rate per linear foot of hood = 300 CFM
- (REF. ASHRAE 2019 /APPLICATIONS/ CH.34/KITCHEN VENTILATION/ TABLE 5).
- The extraction flow rate = 14.1 ft. x 300 cfm =4230 CFM = 2000 L/s Approx.
- The Makeup flow rate = 2000 x 0.9 = 1800 L/s Approx.

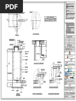
2) DISH WASH Hood Ventilation Calculations :

This main kitchen is already air conditioned and this calculation is for hood fans calculations as follows:
- Hood fans calculations are based on :
- Hood length 0.9 m = 2.95 ft.
- Minimum exhaust flow rate per linear foot of hood = 200 CFM
- (REF. ASHRAE 2019 /APPLICATIONS/ CH.34/KITCHEN VENTILATION/ TABLE 5).
- The extraction flow rate = 2.95 ft. x 200 cfm =590 CFM = 280 L/s Approx.

1) PREPARATION AREA:
The extraction flow rate = 100 L/s

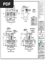
AIR BALANC CALCULATION
FOR HOOD AREA
AIR FLOW TOTAL EAHAUST AIR TOTAL FRESH AIR
SN. NAME
(L/S) (L/S) (L/S)

1 TOTAL EXHAUST AIR-EXTRACT HOOD 2000 2000

1800
2 FRESH AIR T FOR MAKE-UP HOOD 1800

200
3 FRESH AIR T Treated in kitchen area 200

280
3 EXHAUST AIR-EXTRACT DISH WASH Hood 280

EXHAUST AIR-EXTRACT CHILLER ROOM 200


200
COMPRESSOR
2000
TOTAL AIR (L/S) 2480

Status -Ne. (480 L/S) (19.3%)


FOR DINING AREA

AIR FLOW TOTAL EAHAUST AIR TOTAL FRESH AIR


SN. NAME
(L/S) (L/S) (L/S)

EXHAUST AIR-EXTRACT PREPARATION 100


4 100 288
AREA

288
5 FRESH AIR T treated for Shop

288
TOTAL AIR (L/S) 100

Status +Ve. (188 L/S)

You might also like