KEMBAR78
Price Analysis Sample Form | PDF | Prices | Request For Proposal
0% found this document useful (0 votes)
247 views2 pages

Price Analysis Sample Form

1. The price analysis process involves comparing offered prices to an independent cost estimate and determining if the prices are consistent. 2. If prices are not consistent with the estimate, additional analysis is required using accepted techniques like comparing to catalog prices, previous purchases, or market prices. 3. For certain procurements, negotiations with vendors may also be part of determining a fair price. The document provides steps to document the analysis and negotiation processes.
Copyright
© © All Rights Reserved
We take content rights seriously. If you suspect this is your content, claim it here.
Available Formats
Download as PDF, TXT or read online on Scribd
0% found this document useful (0 votes)
247 views2 pages

Price Analysis Sample Form

1. The price analysis process involves comparing offered prices to an independent cost estimate and determining if the prices are consistent. 2. If prices are not consistent with the estimate, additional analysis is required using accepted techniques like comparing to catalog prices, previous purchases, or market prices. 3. For certain procurements, negotiations with vendors may also be part of determining a fair price. The document provides steps to document the analysis and negotiation processes.
Copyright
© © All Rights Reserved
We take content rights seriously. If you suspect this is your content, claim it here.
Available Formats
Download as PDF, TXT or read online on Scribd
You are on page 1/ 2

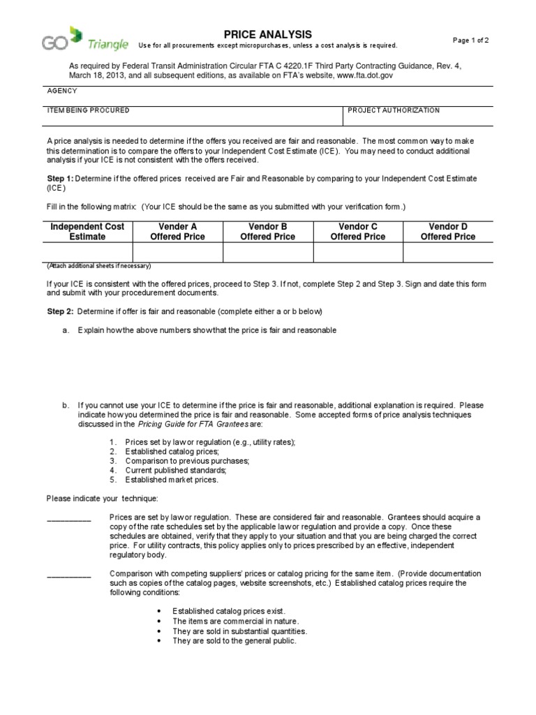
PRICE ANALYSIS Page 1 of 2

Use for all procurements except micropurchases, unless a cost analysis is required.

As required by Federal Transit Administration Circular FTA C 4220.1F Third Party Contracting Guidance, Rev. 4,
March 18, 2013, and all subsequent editions, as available on FTA’s website, www.fta.dot.gov
AGENCY

ITEM BEING PROCURED PROJECT AUTHORIZATION

A price analysis is needed to determine if the offers you received are fair and reasonable. The most common way to make
this determination is to compare the offers to your Independent Cost Estimate (ICE). You may need to conduct additional
analysis if your ICE is not consistent with the offers received.

Step 1: Determine if the offered prices received are Fair and Reasonable by comparing to your Independent Cost Estimate
(ICE)

Fill in the following matrix: (Your ICE should be the same as you submitted with your verification form.)

Independent Cost Vender A Vendor B Vendor C Vendor D


Estimate Offered Price Offered Price Offered Price Offered Price

(Attach additional sheets if necessary)

If your ICE is consistent with the offered prices, proceed to Step 3. If not, complete Step 2 and Step 3. Sign and date this form
and submit with your procedurement documents.

Step 2: Determine if offer is fair and reasonable (complete either a or b below)

a. Explain how the above numbers show that the price is fair and reasonable

b. If you cannot use your ICE to determine if the price is fair and reasonable, additional explanation is required. Please
indicate how you determined the price is fair and reasonable. Some accepted forms of price analysis techniques
discussed in the Pricing Guide for FTA Grantees are:

1. Prices set by law or regulation (e.g., utility rates);


2. Established catalog prices;
3. Comparison to previous purchases;
4. Current published standards;
5. Established market prices.

Please indicate your technique:

__________ Prices are set by law or regulation. These are considered fair and reasonable. Grantees should acquire a
copy of the rate schedules set by the applicable law or regulation and provide a copy. Once these
schedules are obtained, verify that they apply to your situation and that you are being charged the correct
price. For utility contracts, this policy applies only to prices prescribed by an effective, independent
regulatory body.

__________ Comparison with competing suppliers’ prices or catalog pricing for the same item. (Provide documentation
such as copies of the catalog pages, website screenshots, etc.) Established catalog prices require the
following conditions:

• Established catalog prices exist.


• The items are commercial in nature.
• They are sold in substantial quantities.
• They are sold to the general public.
MDOT 3145 (10/14) Page 2 of 2

__________ Comparison of proposed pricing with historical pricing from previous purchases of the same item. Changes
in quantity, quality, delivery schedules, the economy, and inclusion of non-recurring costs such as design,
capital equipment, etc. can cause price variations. Each differing situation must be analyzed. Also ensure
that the previous price was fair and reasonable. (Provide a copy of the previous purchase invoices or quotes.)

__________ Analysis of price components against current published standards, such as labor rates, dollars per pound,
etc. to justify the price reasonableness of the whole. (Attach analysis to support conclusions drawn.)

__________ Established market prices are based on the same principle as catalog prices except there is no catalog. A
market price is a current price established in the usual or ordinary course of business between buyers and
sellers free to bargain. These prices must be verified by buyers and sellers who are independent of the
offeror. If you cannot determine other commercial buyers and sellers, you may obtain this information from
the offeror. (Provide documentation such as advertisements, catalog pages or invoices from other buyers
and sellers.)

__________ Other (provide explanation):

Step 3: Negotiation – Required for A & E procurements and may be appropriate for other RFP procurements

For RFP procurements – were negotiations conducted with the selected vendor?

Yes No, If No, why not?

For all A & E and other RFP procurements that conducted negotiations, describe the negotiations that occurred.

NAME

SIGNATURE TITLE DATE

Clear Form

You might also like