KEMBAR78
Architectural Layout for J House | PDF
0% found this document useful (0 votes)
206 views1 page

Architectural Layout for J House

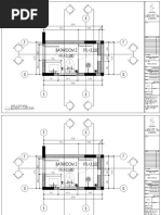
The document appears to be an architectural site plan with floor level information including: 1. Floor levels and areas are provided for multiple buildings/structures across the site. 2. Building labels A through D are shown along with floor level (FFL) and finished concrete level (FCL) data. 3. Over 40 separate areas are delineated with floor levels and space areas labeled.

Uploaded by

Human Moon
Copyright
© © All Rights Reserved
We take content rights seriously. If you suspect this is your content, claim it here.
Available Formats
Download as PDF, TXT or read online on Scribd
0% found this document useful (0 votes)
206 views1 page

Architectural Layout for J House

The document appears to be an architectural site plan with floor level information including: 1. Floor levels and areas are provided for multiple buildings/structures across the site. 2. Building labels A through D are shown along with floor level (FFL) and finished concrete level (FCL) data. 3. Over 40 separate areas are delineated with floor levels and space areas labeled.

Uploaded by

Human Moon
Copyright
© © All Rights Reserved
We take content rights seriously. If you suspect this is your content, claim it here.
Available Formats
Download as PDF, TXT or read online on Scribd
You are on page 1/ 1

C

A
VIEW
B

FFL -0.100
1
AREA 18M2

FFL -0.300
FFL ±0.000
FCL +3.000
FFL -0.100 AREA 5M2
AREA 15M2

2
FFL ±0.000
FCL +3.000 FFL ±0.000
AREA 18M2 FCL +3.000
AREA 7M2

FFL -0.600

C
FCL +6.600
AREA 16M2

FFL -0.300
AREA 30M2

3
Access Road

FFL ±0.000
FCL +3.000
AREA 38M2

A
VIEW
B
VIEW

TWL -0.100
AREA 40M2

FFL -0.050
4
FCL +3.000
AREA 16M2
500

BEDSIDE
TABLE
FFL +0.100

600
AREA 10M2

FFL -0.100
AREA 41M2

2000
FFL ±0.000
FCL +3.000
AREA 31M2 PROJECT TITLE
J HOUSE
2300
OWNER

BEDSIDE
TABLE
600
787
FFL ±0.000
FCL +3.000 MR. JIRI HRSTKA
AREA 14M2

191
500

LOCATION

KEROBOKAN - BALI
NOTE

DRAWING NAME SCALE

PROJECT TEAM
ARCHITECT : PUTRA SASTRAWAN, S.ARS
STRUCTURE : YUDA ARDIANTARA, S.T
DRAFTER : KADEK DWIKI PURNAMA. S.A., S.ARS
A D
VIEW B C D E DRAWING NO NO. TOTAL

You might also like