KEMBAR78
Lightning Protection Report | PDF | Lightning | Building Engineering
100% found this document useful (2 votes)
6K views7 pages

Lightning Protection Report

The document provides information on lightning protection systems, including their components, standards, and design options. It discusses air terminations, down conductors, earth terminations, relevant standards like IS 2309 and IEC 62305, and material recommendations. It also evaluates the early streamer emission technique and recommends against it as it does not comply with accepted standards. Finally, it proposes three design options for the horizontal air termination network of the system.

Uploaded by

kapil
Copyright
© Attribution Non-Commercial (BY-NC)
We take content rights seriously. If you suspect this is your content, claim it here.
Available Formats
Download as PDF, TXT or read online on Scribd
100% found this document useful (2 votes)
6K views7 pages

Lightning Protection Report

The document provides information on lightning protection systems, including their components, standards, and design options. It discusses air terminations, down conductors, earth terminations, relevant standards like IS 2309 and IEC 62305, and material recommendations. It also evaluates the early streamer emission technique and recommends against it as it does not comply with accepted standards. Finally, it proposes three design options for the horizontal air termination network of the system.

Uploaded by

kapil
Copyright
© Attribution Non-Commercial (BY-NC)
We take content rights seriously. If you suspect this is your content, claim it here.
Available Formats
Download as PDF, TXT or read online on Scribd
You are on page 1/ 7

JP TECHNOSOFT AHMEDABAD

PROJECT: DOCUMENT: A REPORT ON LIGHTNING PROTECTION

1. PREAMBLE a) About Lightning and its Protection: Lightning is the visible discharge of static electricity within a cloud, between clouds, or between tile earth and a cloud. A lightning protection system is a system designed to protect a structure from damage due to lightning strikes by intercepting such strikes and safely passing their extremely high voltage currents to ground. Most lightning protection systems include a network of lightning rods, metal conductors, and ground electrodes designed to provide a low resistance path to ground for potential strikes.

b)

Requirement of Lightning Protection: Lightning can strike anywhere on earth. If struck, structures in these areas will generally sustain more damage when there is no lightning protection system present. To prevent homes and other properties against damage or complete destroy and subsequent fire hazard. Most important is to save life of human being and other living objects in proximity of striking of lightning. To prevent damage of electronics equipments in close proximity of striking of lightning due to induced voltage.

c) Role of Lightning Protection System A lightning protection system does not prevent lightning from striking; it provides a means for controlling it and preventing damage by providing a path for the discharge of lightning energy. A lightning protection system provides a means by which discharge of lightning may enter or leave earth without passing through and damaging non-conducting parts of a structure.

d) Relevant Standards: For installations in INDIA, lightning protection systems can be designed in accordance with a) Indian Standard: IS: 2309(2005): Protection of Buildings and Allied Structures against Lightning Code of Practice. b) International Electro-technical Commission: IEC: 62305 Part III (2005): Protection against lightning Physical damage to structures and life hazard. c) British Standard: BS: CP-326

REPORT ON LIGHTNING PROTECTION

www.jptechnosoft.com

Page 1 of 7

JP TECHNOSOFT AHMEDABAD
2 COMPONENTS OF EXTERNAL LIGHTNING PROTECTION SYSTEM The principal components of a lightning protective system are

a) Air Terminations b) Down conductors c) Earth termination

Fig.1 General Arrangement Lightning Protection System 2.1 Air Termination Air termination systems can be composed of any combination of the following elements a) Rods (Vertical Air Terminals) Rolling sphere method (used for tall buildings with narrow base) b) Meshed conductors / Catenary wires (Horizontal Air Terminals) For flat roofs If building height is less than 30 meters, 45 degree cone of protection can be used. For building height more than 30 Meters, 30 degree cone of protection shall be considered. 2.2 Down Conductor Its a vertical conductor which provides connection between air termination and ground and which shall have following features in order to reduce the probability of damage. a) Several parallel paths b) Minimum length of the current paths c) Equipotential bonding to conducting parts of the structure if required. 2.3 Earth Termination When dealing with the dispersion of the lightning current into the ground, to minimize any potentially dangerous over voltages, the shape and dimensions of the earth termination system are the important criteria. There are two basic types of earth electrode arrangements available. 2.3.1 Type-A arrangement (Non-mesh Arrangement)

REPORT ON LIGHTNING PROTECTION

www.jptechnosoft.com

Page 2 of 7

JP TECHNOSOFT AHMEDABAD
This type of arrangement comprises horizontal or vertical earth electrodes installed outside the structure and connected to down conductors. 2.3.2 Type-B arrangement (Mesh Arrangement)

This type of arrangement comprises a ring conductor external to the structure to be installed either in contact with the soil for atleast 80% of its total length, or a foundation earth electrode. Such earth electrodes may also be meshed. 2.4 Material and size Recommendations Indian standard recommended values are shown below: Component Min. Dimensions required in mm 20 3 10.0 dia Min. Area Required in mm2 60.00 78.54

Air terminations Aluminium, copper and galvanized steel strip Aluminium, aluminium alloy or, phosphor bronze and galvanized steel rods Vertical Down conductors Aluminium, copper or galvanized steel strip Aluminium, aluminium alloy galvanized steel rods Earthing terminations Hard-drawn copper rods for direct laying into soft ground Hard-drawn or annealed copper rods for indirect laying underground Phosphor bronze for hard ground Copper-clad or galvanized steel rods

20 3 10.0 dia 12.0 dia 10.0 dia 12.0 dia 10.0 dia

60.00 78.54 113.00 78.54 113.00 78.54

Fixed connection(s) in aluminium, aluminium alloy, copper, galvanized steel External Strip 20 3 60.00 Rods 10.0 dia 78.54 Internal Strip 20 1.5 30.00 Rods 6.5 dia 33.00 Stranded flexible connection (bonds) External, aluminium 560/0.5 70.00 External, annealed copper 990/0.3 70.00 Internal, aluminium 276/0.4 35.00 Internal, annealed copper 1 107/0.2 35.00 The values given in above table are minimum required parameters. However, due to installation parameters like humidity, soil resistivity, ambient temperature, ground temperature, corrosion allowances, safety factor shall be considered to have longer life with prolonged functioning.

REPORT ON LIGHTNING PROTECTION

www.jptechnosoft.com

Page 3 of 7

JP TECHNOSOFT AHMEDABAD
3. EARLY STREAMER EMISSION (ESE): 3.1 There are several manufacturers provide installations claiming following consequences: The Early Streamer Emission air terminal uses the naturally occurring electrical field to complete the timely release of an upward streamer. As a thunder storm gathers overhead the ambient electrical field surrounding the ESE begins to rise in voltage, which initiates triggering of an upward streamer fro ESE terminal. With release of upward streamer from the final tip earlier than other competing structural points, the rod captures lightning discharge. Upon the approach of a down leader towards the protected area there is a rapid increase in the electric field. The energy is conveyed to ground via down conductors. When the energy enters the dedicated lightning earth, it is safely dissipated without risk to personnel and equipment. The concept allows for a larger or enhanced area of protection to be provided by the ESE in comparison to a conventional system. Such Installations uses following devices: a) 2 dia. GI Pipe or equivalent CU/AL pipe b) Stainless Steel ESE terminals c) Lightning Strike Recorder

Fig.2 ESE Air Terminal 3.2 Our observations in comparison with Conventional system are as follows: Feature ConventionalSystem(Faradaycage) ESE(EarlyStreamerEmission)

ComplyingStandard

Not approved by scientists/IEC/IS. Complying to IEC 623053 & IS 2309/IS ComplyNFConly.NFCNationalFrench 3043 CodenotapplicableinIndia. Yes.AsitisapprovedbyIS&CEIG No.NotapprovedbyIS&CEIG Many parallel paths provided. LEMP has Max. 2 parallel paths. High LEMP can minimaleffects. damageElectronicequipments. Just 10 years old. Malaysia many Used for many decades without any buildings with ESE damage has been failure. reported. TypeBasperIEC623051(recommended Recommendedonlyforsmallresidences forindustries) (notevenapartments) As per standard. More than one down One down conductor is recommended, conductor to dissipate the Lightning thisisalsonotasperNFC17102. currenttotheground. Timeconsumingbuteffective Lesstimeconsumingbutineffective

Insurancecover Currentsharing Experience Grounding

DownConductor Installation

LEMP:LightningElectroMagneticPulsecausedbyhighcurrentflowduetodirectlightningstrike. Recommendations: Since ESE doesnt comply to any accepted standard, method is not recommended.

REPORT ON LIGHTNING PROTECTION

www.jptechnosoft.com

Page 4 of 7

JP TECHNOSOFT AHMEDABAD
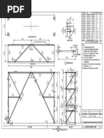
4. DESIGN AND INSTALLATION OPTIONS: 4.1 HORIZONTAL LIGHTNING PROTECTION AIR TERMINATION (OPTION 1) a) Selected size of Conductor Strip for Air Termination and Down Conductor considering corrosion allowance and safety factor as 2: 25x6 mm GI Strip b) Mesh spacing selected as horizontal Air terminations considering kalzip roof profile so as to any point on roof shall not be beyond 9 Mtr reach of horizontal air termination: 9 Mtr x 18 Mtr c) Down conductor spacing: At every 30 Mtr on periphery

Fig. 3 Air Termination Network Guideline as per IS d) Separate earthing to be provided for every down conductor spaced at 30 Mtr. Earthing mesh conductor will attract huge network hence can be avoided as area is large. e) Horizontal air termination network and down conductor network shall be installed in electrical isolation with the base as roof itself is conductive material. 4.2 VERTICAL LIGHTNING PROTECTION AIR TERMINATION (OPTION 2) Vertical air termination network helps protecting buildings having more heights and lesser span. The option can not be worked out in our case because of following reasons. a) With more span in case of exhibition hall area, no. of such vertical air termination required is more as coverage of each terminal is very less. b) Every such terminations need two down conductors for redundancy, results in more no. of down conductors makes system costly. c) Exhibition hall has slopping profile of roof hence vertical terminal required at intermittent slops which will spoil look. 4.3 KALZIP USED AS LIGHTNING PROTECTION AIR TERMINATION (OPTION 3) 4.3.1 In place of GI strip, if Kalzip structure (Aluminium sheet) can be used as an air termination with following conditions: a) Structure sheet shall be conductive b) If Structure sheet shall have thickness minimum 7 mm, no horizontal or vertical air termination network is required, structure sheet it self can be used as air termination network. c) if Structure sheet shall have thickness less than 7 mm and more than 0.7 mm, structure sheet can be used as an air termination network provided flash is anticipated, which will damage the roof sheet due to lightning striking with heavy arc formation. [Refer: Table 5 Minimum Thicknesses of Sheet Metal Used for Roofing (Clause 11.1) Page No. 17 of IS:2309] REPORT ON LIGHTNING PROTECTION www.jptechnosoft.com

Page 5 of 7

JP TECHNOSOFT AHMEDABAD

Fig. 4 Reference Table IS:2309 d) Sheets of structure shall be fully zipped to ensure contact between each other. e) Structure shall be effectively earthed. f) At the interface between roof and walls, each and every profiled sheet must be connected using short aluminium strips. g) Window openings shall not be exceeding 1.5m x 1.5m. Larger openings must be avoided or bypassed using aluminium strips. 4.2.2 With Kalzip structure to be used as air termination following are the benefits: a) Economic and efficient protection against lightning strikes. b) No need for dedicated or additional lightning protection devices such as horizontal or vertical air termination network which spoils aesthetic of structure. 4.3.3 With Kalzip structure to be used as air termination following are the drawbacks: a) Whenever lightning strikes even if once in years, such a strike hitting a Kalzip, will result into hole formation in one of the sheet seems facing striking. Damage of this nature would lie above the line of weathering and may cause damage to sub-structure if strike persists. b) Electronic equipment such as communication and security systems work on extra low voltage, computer data networks, control systems etc need protection against the electromagnetic effects caused due to flashing of lightning.

REPORT ON LIGHTNING PROTECTION

www.jptechnosoft.com

Page 6 of 7

JP TECHNOSOFT AHMEDABAD
5. CONCLUSION: Recommendations: Most effective solution appears to be option no. 1 and hence recommended. In case of exhibition hall, roof sheet (Kalzip) is proposed with AL material with 0.9 mm thickness. This is throughout conductive sheet and will have no openings hence Option no. 3 can be worked out if client can take a call on repairing of punctured sheets after stroke and ensure that gathering of people below the roof will not get affected by it. All the operations below roof after incident of lightning must be guaranteed safer by providing secondary protection measures, which looking to usage of area and safety of people, seems difficult to achieve, hence not recommended.

REPORT ON LIGHTNING PROTECTION

www.jptechnosoft.com

Page 7 of 7

You might also like