KEMBAR78
Bridge Lab Model | PDF | Engineering | Civil Engineering
0% found this document useful (0 votes)
28 views1 page

Bridge Lab Model

This document discusses intellectual property rights for architectural drawings and specifications. It states that such documents created by an architect are their property, whether the project is built or not. It is unlawful to duplicate or copy these documents for other projects without the architect's written consent. The document was created by engineering students for a steel girder bridge design project under an instructor.
Copyright
© © All Rights Reserved
We take content rights seriously. If you suspect this is your content, claim it here.
Available Formats
Download as PDF, TXT or read online on Scribd
0% found this document useful (0 votes)
28 views1 page

Bridge Lab Model

This document discusses intellectual property rights for architectural drawings and specifications. It states that such documents created by an architect are their property, whether the project is built or not. It is unlawful to duplicate or copy these documents for other projects without the architect's written consent. The document was created by engineering students for a steel girder bridge design project under an instructor.
Copyright
© © All Rights Reserved
We take content rights seriously. If you suspect this is your content, claim it here.
Available Formats
Download as PDF, TXT or read online on Scribd
You are on page 1/ 1

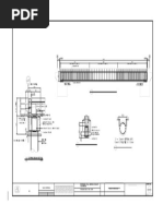
1 VICINITY MAP

RA 9266 (SEC.33) ARCHITECT / CIVIL ENGINEER PLATE TITLE INSTRUCTOR SHEET CONTENT SHEET NO.

CONCRETE VICINITY MAP


1
DRAWINGS AND SPECIFICATIONS AND OTHER CONTRACT
DOCUMENTS DULY SIGNED AND SEALED, AS INSTRUMENT OF ABRIGO, MARIELLE C.

A
..\..\..\..\..\Bridge Lab Logo.PNG
A LL I AN CE SERVICE, ARE THE INTELLECTUAL PROPERTY AND DOCUMENTS
OF THE ARCHITECT, WHETHER THE OBJECT FOR WHICH THEY DUCLAYAN, ZYRILLE SHANE C. STEEL GIRDER BRIDGE
ARE MADE IS EXECUTED OR NOT. IT SHALL BE UNLAWFUL FOR
ELWAS, GIOVANNIE D. ARJAY B. CUH-ING
ENGINEERING ANY PERSON TO DUPLICATE OR TO MAKE COPIES OF SAID ARCHITECTURAL PLANS
GROSPE, JOBERT D.
5
DOCUMENTS FOR USE IN THE REPETITION OF AND FOR
SERVICES OTHER PROJECTS OR BUILDINGS, WHETHER EXECUTED
CREATE, ENHANCE, SUSTAIN PARTLY OR IN WHOLE, WITHOUT THE WRITTEN CONSENT
OF THE ARCHITECT OR AUTHOR OF THE SAID DOCUMENTS.
HOLANDA, ALEX B.
PLATE NUMBER: CE 4241 S4D PL05 SCHEDULE: 1:30 - 4:30pm MONDAYS

You might also like