KEMBAR78
Elevation: Bath CUM Toilet 1.5mx2m | PDF
0% found this document useful (0 votes)
215 views1 page

Elevation: Bath CUM Toilet 1.5mx2m

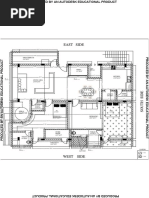
The document contains a ground floor plan layout with dimensions and labels for different rooms. Rooms include a kitchen, study room, game room, bedrooms, bathrooms, dining room, living room, store room, and parking area. Dimensions are provided for width, length, and area of each space.
Copyright
© © All Rights Reserved
We take content rights seriously. If you suspect this is your content, claim it here.
Available Formats
Download as PDF, TXT or read online on Scribd
0% found this document useful (0 votes)
215 views1 page

Elevation: Bath CUM Toilet 1.5mx2m

The document contains a ground floor plan layout with dimensions and labels for different rooms. Rooms include a kitchen, study room, game room, bedrooms, bathrooms, dining room, living room, store room, and parking area. Dimensions are provided for width, length, and area of each space.
Copyright
© © All Rights Reserved
We take content rights seriously. If you suspect this is your content, claim it here.
Available Formats
Download as PDF, TXT or read online on Scribd
You are on page 1/ 1

0.

86

0.86
0.12
0.12

2.15

3
0.85

0.12
7.7

7.7
0.12

0.9
1.2
3

0.9
0.6

0.6
0.5
0.3
0.23

ELEVATION 0.31
0.43
1 0.71 0.8 1.5 1.2 3.25 2.62 2.11 0.9
0.5 0.23 0.23 0.25
14.92

SECTION X-X

NORTH FACING
0.33 0.23 0.2 0.23
4 2.5 2.3 5 0.23

W1 W1 W
0.23 D1

BED ROOM D2
KITCHEN STUDY ROOM GAME ROOM
W 2.5m x 3m
3

2.3m x 3 m 5m x 3m BATH
4m x 3m CUM V
TOILET
D1
1.5mx2m
0.23
AO D1 O

W1 BATH
MASTER BED ROOM CUM TOI V
2 m x 2.2m
DINING 5m x 4m
3

LIVING ROOM
4m x 3m D2
17.15

W1
5m x 4m

0.23 W
D1 D2 X
D
STORE W
POOJA
W1 ROOM D
2

X 1.5m x 2m W
1.5m x 2m
SITOUT
0.23
PARKING
3m x 2m
0.77

0.4
SECTION Y-Y
GARDEN

GROUND FLOOR PLAN

You might also like