KEMBAR78
EHSWP002 - Night Work Permit | PDF | Occupational Safety And Health | Safety
100% found this document useful (1 vote)
741 views2 pages

EHSWP002 - Night Work Permit

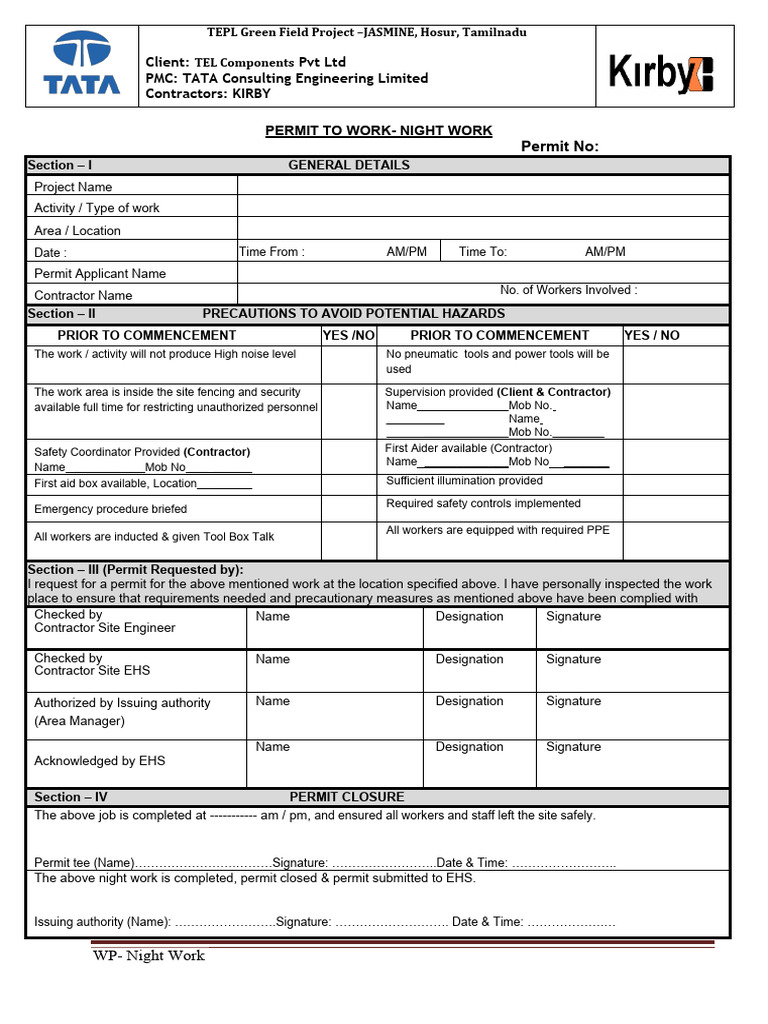
This document is a permit for night work at the TEPL Green Field Project in Hosur, Tamilnadu. It details the project name, activity, location, date and time for the night work. It also lists safety precautions that must be in place, such as adequate lighting, supervision, and all workers having required PPE. The contractor site engineer and EHS must sign off to approve the permit before authorized issuing authority can approve and acknowledge the night work. Upon completion of the work, the permit will be closed and submitted back to EHS.

Uploaded by

loganathan
Copyright
© © All Rights Reserved
We take content rights seriously. If you suspect this is your content, claim it here.
Available Formats
Download as DOCX, PDF, TXT or read online on Scribd
100% found this document useful (1 vote)
741 views2 pages

EHSWP002 - Night Work Permit

This document is a permit for night work at the TEPL Green Field Project in Hosur, Tamilnadu. It details the project name, activity, location, date and time for the night work. It also lists safety precautions that must be in place, such as adequate lighting, supervision, and all workers having required PPE. The contractor site engineer and EHS must sign off to approve the permit before authorized issuing authority can approve and acknowledge the night work. Upon completion of the work, the permit will be closed and submitted back to EHS.

Uploaded by

loganathan
Copyright
© © All Rights Reserved
We take content rights seriously. If you suspect this is your content, claim it here.
Available Formats
Download as DOCX, PDF, TXT or read online on Scribd
You are on page 1/ 2

TEPL Green Field Project –JASMINE, Hosur, Tamilnadu

Client: TEL Components Pvt Ltd


PMC: TATA Consulting Engineering Limited
Contractors: KIRBY

PERMIT TO WORK- NIGHT WORK


Permit No:
Section – I GENERAL DETAILS
Project Name
Activity / Type of work
Area / Location
Date : Time From : AM/PM Time To: AM/PM
Permit Applicant Name
Contractor Name No. of Workers Involved :
Section – II PRECAUTIONS TO AVOID POTENTIAL HAZARDS
PRIOR TO COMMENCEMENT YES /NO PRIOR TO COMMENCEMENT YES / NO
The work / activity will not produce High noise level No pneumatic tools and power tools will be
used

The work area is inside the site fencing and security Supervision provided (Client & Contractor)
available full time for restricting unauthorized personnel Name _____________Mob No.
_________ Name
_____________Mob No.________
Safety Coordinator Provided (Contractor) First Aider available (Contractor)
Name ___________Mob No ___ ______ Name _____________Mob No _______
First aid box available, Location ______ Sufficient illumination provided

Required safety controls implemented


Emergency procedure briefed
All workers are equipped with required PPE
All workers are inducted & given Tool Box Talk

Section – III (Permit Requested by):


I request for a permit for the above mentioned work at the location specified above. I have personally inspected the work
place to ensure that requirements needed and precautionary measures as mentioned above have been complied with
Checked by Name Designation Signature
Contractor Site Engineer

Checked by Name Designation Signature


Contractor Site EHS

Authorized by Issuing authority Name Designation Signature


(Area Manager)

Name Designation Signature


Acknowledged by EHS

Section – IV PERMIT CLOSURE


The above job is completed at ----------- am / pm, and ensured all workers and staff left the site safely.

Permit tee (Name)…………………….………Signature: ……………………..Date & Time: ……………………..


The above night work is completed, permit closed & permit submitted to EHS.

Issuing authority (Name): …………………….Signature: ………………………. Date & Time: ……………….…

WP- Night Work


TEPL Green Field Project –JASMINE, Hosur, Tamilnadu

Client: TEL Components Pvt Ltd


PMC: TATA Consulting Engineering Limited
Contractors: KIRBY

WP- Night Work

You might also like