KEMBAR78
Foundation Plan Beam Framing Plan Beam Framing Plan: C1F1 C1F1 C1F1 GB1 GB1 B-1 B-1 RDB-1 | PDF | Structural Engineering
0% found this document useful (0 votes)
400 views1 page

Foundation Plan Beam Framing Plan Beam Framing Plan: C1F1 C1F1 C1F1 GB1 GB1 B-1 B-1 RDB-1

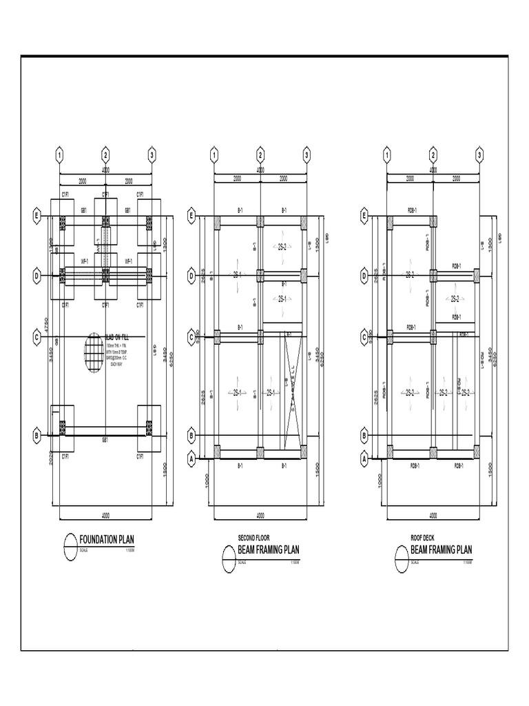
1. The document shows a structural plan with dimensions for beams, columns, and slabs labeled in meters. 2. Beams are labeled as GB1, B-1, RDB-1, columns as C1F1, and slabs have annotations for thickness and reinforcement bars. 3. The structural plan provides specifications for a building foundation and frame.
Copyright
© © All Rights Reserved
We take content rights seriously. If you suspect this is your content, claim it here.
Available Formats
Download as PDF, TXT or read online on Scribd
0% found this document useful (0 votes)
400 views1 page

Foundation Plan Beam Framing Plan Beam Framing Plan: C1F1 C1F1 C1F1 GB1 GB1 B-1 B-1 RDB-1

1. The document shows a structural plan with dimensions for beams, columns, and slabs labeled in meters. 2. Beams are labeled as GB1, B-1, RDB-1, columns as C1F1, and slabs have annotations for thickness and reinforcement bars. 3. The structural plan provides specifications for a building foundation and frame.
Copyright
© © All Rights Reserved
We take content rights seriously. If you suspect this is your content, claim it here.
Available Formats
Download as PDF, TXT or read online on Scribd
You are on page 1/ 1

1 2 3 1 2 3 1 2 3

4000 4000 4000


2000 2000 2000 2000 2000 2000

C1F1 C1F1 C1F1

GB1 GB1 B-1 B-1 RDB-1


E E E

GB1

GB1
RDB-1
1300

1300

1300

1300
WF-1

GB1

B-1

B-1
B-1
2S-2
GB1

WF-1 WF-1

RDB-1
RDB-1

2625

2625
B-1
D D 2S-1 D 2S-2
B-1

RDB-1
2S-1 2S-2

B-1
C1F1 C1F1 C1F1
RDB-1
4750

B-1 RDB-1

5250

5250
C C B-1 C RDB-1
GB1

SLAB ON FILL
100mm THK. + FIN.
GB1
3450

3450

3450

3450
WITH 10mm Ø TEMP.

B-1

RDB-1
6250

6250

6250
BARS@350mm O.C.
EACH WAY

STAIRWELL
B-1

RDB-1
RDB-1

RDB-1
2S-1 2S-1 2S-2 2S-2 2S-2

B-1

B-1
2625

2625
B GB1
B B
2020

C1F1 C1F1 A A
1500

B-1 B-1

1500
RDB-1 RDB-1

1500
1000

1000
4000 4000 4000

FOUNDATION PLAN SECOND FLOOR ROOF DECK


SCALE 1:100 M BEAM FRAMING PLAN BEAM FRAMING PLAN
SCALE 1:100 M SCALE 1:100 M

You might also like