KEMBAR78
Design of Building in Revit Structure | PDF | Stairs | Deep Foundation
0% found this document useful (0 votes)
1K views69 pages

Design of Building in Revit Structure

About design of building in revit software

Uploaded by

Manchodu Du
Copyright
© © All Rights Reserved
We take content rights seriously. If you suspect this is your content, claim it here.
Available Formats
Download as DOCX, PDF, TXT or read online on Scribd
0% found this document useful (0 votes)
1K views69 pages

Design of Building in Revit Structure

About design of building in revit software

Uploaded by

Manchodu Du
Copyright
© © All Rights Reserved
We take content rights seriously. If you suspect this is your content, claim it here.
Available Formats
Download as DOCX, PDF, TXT or read online on Scribd
You are on page 1/ 69

`

PLANNING, DESIGNING AND ESTIMATION OF G+2


RESIDENTIAL BUILDING USING AUTOCAD AND STAAD-PRO

BACHELOR OF TECHNOLOGY
IN
CIVIL ENGINEERING
BY
PROJECT DONE BY: REGISTRATION NO.:

KOLLI DEVI 320136408045

VASUPALLI DUNESH 320136408057

DADI BHANU PRASAD 320136408006

MARGANA CHARAN NAGA SAI 320136408021

VEDA GAYATRI YEDLA 320136408041


UNDER THE ESTEEMED GUIDANCE OF
Dr. G.TIRUPATHI NAIDU, M.Tech, Ph.D
Head of the Department, Department of Civil Engineering
DR.LANKAPALLI BULLAYYA COLLEGE OF ENGINEERING (FOR WOMEN)
Visakhapatnam
2018-2022

(Affiliated to Andhra University, Visakhapatnam)


New Resapuvanipalem, Visakhapatnam-530013

[1]
`

DEPARTMENTOFCIVILENGINEERING

CERTIFICATE

THIS IS TO CERTIFY THAT THE B.TECH(CIVIL) FINAL YEAR STUDENTS OF THE


INSTITUTION K.DEVI, V.DUNESH, D.BHANU, M.CHARAN, Y.VEDA GAYATRI HAVE
DONE PROJECT WORK ON “PLANNING,DESIGNING AND ESTIMATION OF G+2
RESIDENTIAL BUILDING USING AUTOCAD AND STAAD-PRO” AND SUBMITETD
THE SAME TO THE CIVIL ENGINEERING DEPARTMENT AS PARTIAL FULFILLMENT
OF THE REQUIREMENTS FOR THE AWARD OF DEGREE OF BACHELOR OF CIVIL
ENGINEERING DURING THE ACADEMIC YEAR 2020-2024

DR.G.TIRUPATHI NAIDU, M.TECH, Ph.D DR.G.TIRUPATHI NAIDU, M.TECH, Ph.D


(Project Guide) (Head of the Department)

EXTERNAL EXAMINER

[2]
`

DECLARATION

It is to declare that the project work entitled “PLANNING,DESIGNING


AND ESTIMATION OF G+2 RESIDENTIAL BUILDING USING AUTOCAD
AND STAAD-PRO”AT DR.LANKAPALLI BULLAYYA COLLEGE OF
ENGINEERING” is original work done by award of degree Bachelor Of
Engineering in CIVIL ENGINEERING From Andhra University,
Visakhapatnam and no part of it is earlier submitted to this or any
other university for award of any degree or diploma

By

K.DEVI (320136408045)

V.DUNESH (320136408057)

D.BHANU (320136408006)

M.CHARAN (320136408021)

Y.VEDA (320136408041)

[3]
`

ACKNOWLEDGEMENTS

We extend our heartfelt gratitude to all those who have contributed to the
successful completion of our final year project titled "PLANNING, DESIGNING AND
ESTIMATION OF G+2 RESIDENTIAL BUILDING USING AUTOCAD AND STAADPRO".
This endeavor would not have been possible without the invaluable support and
guidance we received from various individuals and institutions.

First and foremost, we express our deepest appreciation to Prof. G. Tirupathi


Naidu for his unwavering guidance, constant encouragement, and invaluable
insights throughout the course of this project. His expertise in the field of [specific
area of expertise] has been instrumental in shaping our research and
methodology. We are truly grateful for his mentorship and dedication.

We would like to extend our sincere thanks to Prof. D. Deepak Chowdry for his
continuous support and encouragement. His leadership as the Principal has
provided us with the necessary resources and environment to pursue our
academic endeavors effectively.

We are also indebted to Prof. G. Tirupathi Naidu for his role as the Head of the
Department of Civil Engineering and Civil Department. His leadership and
administrative support have been indispensable in facilitating our project work
and ensuring its smooth progress.

Furthermore, we would like to express our profound gratitude to our parents for
their unconditional love, unwavering support, and sacrifices. Their
encouragement and belief in us have been our guiding light throughout this
journey.

Lastly, we extend our thanks to all our friends, classmates, and colleagues who
have supported us in various ways, contributing to the successful completion of
this project.

Thank you to everyone who has been a part of this journey and has helped us
reach this milestone.

[4]
`

DESCRIPTION PAGE NUMBERS


TITLE 1
CERTIFICATE 2
DECLARATION 3
ACKNOWLEDGEMENT 4-5
INDEX 6
ABSTRACT 7-8
COMPONENTS OF A BUILDING 9-12
[5]
`

WHAT IS A RESIDENTIAL BUILDING 13-14


PRINCIPLES OF PLANNING A RESIDENTIAL BUILDING 15-19
BUILDING BYLAWS 20-22
FOUNDATION OF A BUILDING 23-26
SLAB OF A BUILDING 27-31
STAIRCASE IN A BUILDING 32-35
LITERATURE REVIEW 36-38
METHODOLOGY 39-42
BUILDING PLANS
GENERAL DETAILS OF THE BUILDING
INTRODUCTION TO STAADPRO
ADVANTAGES AND DISADVANTAGES OF STAADPRO
BASIC STEPS TO FOLLOW IN STAADPRO
IMPORTING THE PLAN
ASSIGNING MATERIAL AND PROOPERTIES
ASSIGNING PROOPERTIES
ASSIGNING O SUPPORTS
ASSIGNING OF LOADS
ANALYSIS
DESIGN
STAADINPUT
3D RENDERING VIEW OF OUR BUILDING
REVIT INTRODUCTION
REVIT MODEL
MANUAL DESIGN OF STAIRCASE
DESIGN OF FOOTING
DESIGN OF SLAB

ABSTRACT

The planning, designing, and estimation of residential buildings constitute a


critical aspect of civil engineering, integrating principles of architectural design,
structural analysis, and cost estimation. This project aims to demonstrate a
comprehensive methodology for the development of a G+2 residential building,
employing advanced software tools such as AutoCAD for design and drafting,
STAAD-Pro for structural analysis, and Excel for estimation.

[6]
`

The project encompasses various phases, starting from conceptualization and


site analysis to final construction documentation. Initial planning involves the
selection of an appropriate site, considering factors such as location, orientation,
and zoning regulations. Subsequently, detailed architectural drawings are
generated using AutoCAD, incorporating design elements to optimize
functionality, aesthetics, and spatial efficiency.

Structural analysis forms a pivotal aspect of the project, ensuring the safety and
stability of the building. STAAD-Pro software is utilized to perform rigorous
structural analysis, assessing factors such as load distribution, stress
concentrations, and deflection under various loading conditions. The structural
design is optimized to meet safety standards while minimizing material usage
and construction costs.

Furthermore, the project entails the estimation of material quantities and costs
using Excel spreadsheets. Detailed quantity take-offs are generated based on the
architectural and structural drawings, accounting for materials such as concrete,
steel, bricks, and finishes. Cost estimation involves analyzing material prices,
labor costs, and other overheads to derive an accurate construction budget.

The implementation of this project not only enhances our understanding of


architectural and structural principles but also demonstrates the practical
application of software tools in the construction industry. The methodology
presented herein serves as a valuable reference for future projects, offering
insights into efficient planning, sustainable design, and cost-effective
construction practices in residential building projects.

[7]
`

COMPONENTS OF A BUILDING

Buildings are complex structures composed of various components that work


together to provide shelter, functionality, and safety for occupants. The
components of a building can be categorized into several key groups:

1. Foundation: The foundation is the structural base upon which the entire building
rests. It distributes the weight of the building to the underlying soil or rock and
prevents settlement or movement. Components of a foundation may include:
 Footings
 Piers or piles
 Slabs (e.g., raft, mat, or spread footings)
2. Superstructure: The superstructure refers to the part of the building above the
ground level, including the walls, floors, and roof. Key components of the
superstructure include:
 Walls (load-bearing or non-load-bearing)
 Floors (including subfloor, floor structure, and finishes)
 Columns and beams (supporting floor loads and transferring them to the
foundation)
 Roof structure (rafters, trusses, or joists)
 Roof covering (shingles, tiles, metal panels, etc.)

[8]
`

3. Envelope: The building envelope is the boundary between the interior and
exterior environments and plays a crucial role in regulating heat transfer,
moisture control, and air infiltration. Components of the building envelope
include:
 Exterior walls
 Windows and doors
 Roof and roof insulation
 Exterior cladding (siding, stucco, brick, etc.)
 Vapor barriers and air barriers
4. Mechanical Systems: Mechanical systems provide essential services such as
heating, ventilation, air conditioning (HVAC), plumbing, and electrical power
distribution throughout the building. Components of mechanical systems include:
 HVAC equipment (furnaces, air conditioners, boilers, etc.)
 Ductwork and air distribution systems
 Plumbing pipes, fixtures, and drainage systems
 Electrical wiring, outlets, switches, and lighting fixtures
 Fire suppression systems (fire sprinklers, fire alarms, etc.)
5. Interior Finishes: Interior finishes contribute to the aesthetics, functionality,
and comfort of the building's interior spaces. These may include:
 Wall finishes (paint, wallpaper, paneling, etc.)
 Floor finishes (carpet, tile, hardwood, laminate, etc.)
 Ceiling finishes (drywall, suspended ceiling tiles, etc.)
 Trim and molding (baseboards, crown molding, etc.)
 Built-in cabinetry and fixtures (kitchen cabinets, bathroom vanities, etc.)
6. Utilities and Services: Buildings require various utilities and services to
function effectively and provide essential amenities to occupants. These may
include:
 Water supply and distribution systems
 Sewage and wastewater drainage systems
 Gas supply and distribution systems
 Electrical power supply and distribution
 Telecommunications and data networks
7. Safety and Security Systems: Safety and security systems are essential to
protect occupants and property from hazards and intrusions. These may include:
 Fire detection and suppression systems
 Intrusion detection and alarm systems
 Access control systems (locks, key cards, etc.)
 Emergency lighting and exit signage
 Surveillance cameras and monitoring systems
[9]
`

8. Site and Landscape Features: Site and landscape features contribute to the
overall functionality, aesthetics, and sustainability of the building site. These may
include:
 Site grading and drainage systems
 Parking areas and driveways
 Walkways, pathways, and sidewalks
 Landscaping elements (trees, shrubs, gardens, etc.)
 Outdoor amenities (patios, decks, swimming pools, etc.)

Each of these components plays a critical role in the design, construction, and
operation of a building, ensuring that it meets the needs and expectations of its
occupants while adhering to safety, regulatory, and sustainability standards.

WHAT IS A RESIDENTIAL BUILDING

A residential building is a structure primarily designed and constructed to provide


housing or accommodation for individuals or families. These buildings are
intended for residential purposes, distinguishing them from commercial or
industrial structures. Residential buildings come in various forms, sizes, and
architectural styles, catering to different lifestyles, preferences, and
socioeconomic backgrounds of occupants.

Key characteristics of residential buildings include:

1. Housing Units: Residential buildings typically contain multiple housing units,


each designed to accommodate one or more households. These units may range
from single-family homes to multi-unit apartment complexes or condominiums.
2. Living Spaces: Residential buildings feature living spaces such as bedrooms,
bathrooms, kitchens, living rooms, dining areas, and utility rooms. The layout and
configuration of these spaces vary depending on the type of dwelling and the
needs of occupants.

[10]
`

3. Amenities and Facilities: Many residential buildings offer amenities and


facilities to enhance the quality of life for residents. Common amenities may
include fitness centers, swimming pools, community rooms, playgrounds,
gardens, and parking facilities.
4. Privacy and Security: Residential buildings prioritize privacy and security to
ensure the safety and well-being of occupants. Measures such as secure entry
systems, surveillance cameras, and controlled access to common areas help
maintain a sense of security within the building.
5. Building Envelope: The building envelope, including exterior walls, windows,
doors, and roof, separates the interior living spaces from the external
environment. It regulates temperature, moisture, and air quality within the
building, contributing to occupant comfort and energy efficiency.
6. Architectural Style: Residential buildings exhibit a wide range of architectural
styles, reflecting cultural, historical, and regional influences. Common
architectural styles include traditional, modern, contemporary, colonial,
Mediterranean, Victorian, and others.
7. Ownership and Tenancy: Residential buildings may be owned or rented by
occupants. Ownership options include single-family homes, townhouses,
condominiums, and cooperative apartments, each with different legal and
financial implications for occupants.

Types of residential buildings include:

 Single-Family Homes: Detached dwellings designed for occupancy by a single


household.
 Multi-Family Dwellings: Buildings containing multiple housing units, such as
duplexes, triplexes, quadplexes, apartment buildings, and condominiums.
 Townhouses: Attached or semi-detached dwellings arranged in rows or clusters,
each typically with its own entrance and outdoor space.
 Mixed-Use Buildings: Buildings that combine residential units with commercial
or retail spaces on the lower floors.
 Student Housing: Residential buildings designed specifically to accommodate
students, often located near colleges or universities.
 Senior Living Facilities: Residential buildings catering to the needs of elderly
residents, offering amenities and services tailored to aging populations.

Residential buildings play a fundamental role in providing shelter, comfort, and a


sense of community for individuals and families, contributing to the social fabric
and livability of neighborhoods and cities.
[11]
`

PRINCIPLES OF PLANNING A RESIDENTIAL BUILDING


The basic principles, which govern the theory of planning common to building of
all classes intended to be used for residential purpose are given below.

1. Functional Design:
 Space Planning: Efficient space planning involves organizing rooms and
amenities in a manner that maximizes usability and flow within the building.
This includes considering the placement of bedrooms, bathrooms, kitchen,
living areas, and storage spaces to optimize convenience and functionality.
 Traffic Flow: Planning for smooth traffic flow throughout the building is
essential. Circulation paths should be well-defined and free from
obstructions, ensuring easy movement between different areas of the
residence.
 Zoning: Zoning refers to the logical grouping of spaces based on their
functions and usage patterns. Proper zoning ensures that private and public
areas are appropriately separated while maintaining connectivity and
accessibility.
2. Aesthetic Appeal:
 Architectural Style: The architectural style of the residential building
influences its visual appeal and character. Whether contemporary,
traditional, modern, or a blend of styles, the architectural design should
resonate with the preferences of the residents and complement the
surrounding environment.
 Materials and Finishes: Carefully selecting materials and finishes for both
the exterior and interior of the building contributes to its aesthetic appeal.
Considerations such as texture, color, and durability play a significant role in
achieving the desired aesthetic effect.
 Landscaping: Integrating landscaping elements such as gardens, lawns,
and greenery enhances the overall aesthetic of the residential property.
Thoughtful landscaping can soften the built environment, create visual
interest, and improve the quality of life for residents.
3. Space Optimization:
 Open Floor Plans: Open floor plans maximize the sense of space and
flexibility within residential units by minimizing the use of interior walls. This
design approach promotes visual continuity, facilitates natural light
penetration, and accommodates diverse furniture arrangements.
 Multifunctional Spaces: Designing multifunctional spaces allows for
versatile use of rooms to accommodate different activities and lifestyle
[12]
`

needs. For example, a home office may double as a guest bedroom, or a


dining area may transform into an entertainment zone.
 Built-in Storage Solutions: Incorporating built-in storage solutions, such
as closets, cabinets, and shelving units, optimizes space utilization and
reduces clutter. Customized storage solutions can be tailored to fit specific
spatial constraints and user requirements.
4. Safety and Security:
 Fire Safety: Implementing fire safety measures, such as smoke detectors,
fire extinguishers, and fire-resistant building materials, is crucial for
protecting occupants in the event of a fire emergency. Adequate egress
routes, including stairways and exits, should be provided for safe
evacuation.
 Security Systems: Installing security systems, including surveillance
cameras, burglar alarms, and access control systems, enhances the security
of the residential building. Well-lit exterior areas and secure entry points
further deter unauthorized access and intrusions.
5. Environmental Sustainability:
 Energy Efficiency: Incorporating energy-efficient design features, such as
insulation, high-performance windows, and energy-efficient appliances,
reduces energy consumption and lowers utility costs. Renewable energy
systems, such as solar panels and wind turbines, can further offset energy
usage.
 Water Conservation: Implementing water-saving fixtures, such as low-flow
toilets and faucets, helps conserve water resources and reduce water bills.
Additionally, rainwater harvesting systems can capture and reuse rainwater
for landscape irrigation and other non-potable uses.
 Material Selection: Choosing eco-friendly building materials with low
environmental impact, such as recycled or locally sourced materials,
promotes sustainability. Materials that emit low levels of volatile organic
compounds (VOCs) contribute to healthier indoor air quality.
6. Accessibility and Universal Design:
 Barrier-Free Design: Designing residential buildings with barrier-free
access ensures that individuals with disabilities can navigate the space
independently and safely. Features such as ramps, wide doorways, and
accessible bathrooms accommodate wheelchair users and people with
mobility impairments.
 Adaptable Living Spaces: Adaptable design principles allow for easy
modifications to accommodate changing mobility needs or aging in place.

[13]
`

This may include features such as reinforced walls for future installation of
grab bars or adjustable-height countertops.
7. Community Integration:
 Contextual Design: Contextual design considers the surrounding built
environment, neighborhood character, and local architectural vernacular
when planning residential buildings. Harmonizing the design with the
existing context fosters a sense of belonging and enhances the overall
urban fabric.
 Public Spaces: Creating inviting public spaces within or around residential
developments encourages social interaction and community engagement.
Amenities such as parks, playgrounds, and community centers serve as
focal points for residents to gather and connect.
8. Adaptability and Future-Proofing:
 Flexible Design: Designing residential buildings with flexible layouts and
adaptable spaces allows for future changes in occupancy or lifestyle
preferences. This flexibility accommodates evolving needs without requiring
major structural alterations.
 Smart Home Technology: Integrating smart home technology, such as
home automation systems and internet-connected devices, enhances the
functionality and convenience of residential buildings. Future-proofing
designs with pre-wired infrastructure enables seamless integration of
emerging technologies.
9. Cost-Effectiveness:
 Value Engineering: Value engineering involves optimizing the cost-to-
benefit ratio by identifying cost-saving opportunities without compromising
quality or performance. This may include alternatives in material selection,
construction methods, or design modifications that offer greater value.
 Life-Cycle Cost Analysis: Considering the life-cycle cost of building
materials and systems helps evaluate long-term economic viability.
Investments in energy-efficient technologies or durable materials may yield
significant cost savings over the building's lifespan.
10. Community Engagement:
 Stakeholder Involvement: Engaging stakeholders, including residents,
community members, and local authorities, in the planning process fosters a
sense of ownership and accountability. Soliciting feedback and incorporating
input from diverse perspectives ensures that the residential building reflects
the needs and aspirations of its intended users.
 Transparency and Communication: Maintaining transparent
communication channels and providing regular updates on the planning
[14]
`

process build trust and confidence among stakeholders. Open dialogue


allows for constructive collaboration and resolves potential conflicts or
concerns early in the planning stage.

By incorporating these principles into the planning process, residential buildings


can be designed to enhance quality of life, promote sustainability, and foster a
sense of community and well-being for their occupants.

[15]
`

BUILDING BY LAWS
Permissible setbacks & height for all types of non-high rise buildings:

[16]
`

Dimensions of each room according to building By-laws

S no Room Description From To

1. Drawing or Living Room 4200mm X4800mm 5400mm X7200mm

2. Bedroom 3000mm X3600mm 4200mm X4800mm

3. Guest Room 3000mm X3600mm ----

4. Verandah(width) 1800mm 3000mm

5. Office Room 3000mm X3600mm ----

6. Dining Room 3600mm X4200mm 4200mm X4800mm

7. Kitchen 2500mm X3900mm 3000mmX3600mm

8. Store room 2500mm X2500mm 3000mm X3000mm

9. Bath &WC (combined) 1800mm X1800mm 1800mm X2500mm

10. Bathroom(separate) 1200mm X1800mm ----

11. WC (separate) 1200mm X1200mm ----

1.3.1 Margins:
It is the space left from the plot boundary to the building.

WIDTH OFTHEROAD ROADSIDE


MARGIN
9.0mor less 3.0 m
9mto 12 m 4.5 m
12 mto18m 6.0 m
18 mto30m 7.5 m
30 mto60m 9.0 m
Morethan60m 12.0m

[17]
`

FIG:- MARGINS

[18]
`

FOUNDATION

The foundation of a building is a critical structural component


that provides support, stability, and load distribution to the
entire structure. It serves as the interface between the building
and the underlying soil or rock, transferring the weight of the
building safely to the ground. Foundations are designed to
resist various loads, including the weight of the building itself
(dead load), live loads (occupant occupancy, furniture, and
equipment), environmental loads (wind, seismic activity), and
soil pressure.

Here are the key aspects of building foundations:

1. Types of Foundations:
 Shallow Foundations: Shallow foundations are typically
used when the soil near the surface is strong enough to
support the building loads. Common types of shallow
foundations include strip footings, spread footings, and
mat foundations.
 Deep Foundations: Deep foundations are employed
when the soil near the surface is weak or unstable,
requiring the transfer of loads to deeper, more competent
soil or rock layers. Deep foundation types include pile
foundations, drilled shafts (caissons), and pier
foundations.
2. Selection of Foundation Type:
 The selection of the appropriate foundation type depends
on various factors, including soil conditions, site
constraints, building loads, local building codes, and
construction budget.
 Soil investigations, including soil testing and geotechnical
analysis, are conducted to determine the soil properties
and suitability for different foundation types.
3. Foundation Design:
 Foundation design involves calculating the size, depth,
and configuration of the foundation elements to safely
support the anticipated loads and prevent settlement or
movement of the building.
 Structural engineers consider factors such as soil bearing
capacity, foundation settlement, lateral stability, and
building geometry in the design process.
[19]
`

4. Components of Foundation:
 Footings: Footings are horizontal structural elements that
distribute the building loads to the soil. They are typically
located beneath the base of walls or columns and may be
continuous (strip footings) or isolated (spread footings).
 Foundation Walls: Foundation walls are vertical
structural elements that provide lateral support to the
building and resist soil pressure. They may be constructed
of reinforced concrete, masonry, or other materials.
 Slabs: Foundation slabs are horizontal structural elements
that support the building floor system and distribute loads
to the underlying soil. They may be part of a shallow
foundation (e.g., raft foundation) or a deep foundation
system (e.g., pile cap).
 Piles or Piers: Piles or piers are deep foundation
elements installed below the ground surface to transfer
loads to deeper, more stable soil or rock layers. They may
be driven, drilled, or cast in place and are typically made
of steel, concrete, or timber.
5. Construction Process:
 The construction of a building foundation typically begins
with site preparation, including excavation and grading of
the foundation area.
 Footings are then constructed, followed by the installation
of foundation walls or slabs.
 In the case of deep foundations, piles or piers are installed
using specialized equipment such as pile drivers, drilling
rigs, or hydraulic jacks.
 Finally, the foundation is backfilled and compacted to
ensure stability and proper drainage.
6. Waterproofing and Drainage:
 Proper waterproofing and drainage measures are essential
to protect the foundation from water infiltration, moisture
damage, and hydrostatic pressure.
 Waterproofing membranes, drainage systems (e.g.,
French drains), and foundation coatings are installed to
prevent water penetration and control groundwater levels
around the foundation.
7. Maintenance and Inspection:
 Regular maintenance and inspection of the foundation are
crucial to identify any signs of settlement, cracking, or
deterioration early on.

[20]
`

 Foundation repairs, such as underpinning, grouting, or


reinforcement, may be necessary to address structural
issues and prevent further damage to the building.

Overall, the foundation of a building is a fundamental element


that requires careful planning, design, and construction to
ensure the structural integrity and longevity of the entire
building.

[21]
`

SLAB OF A BUILDING

The slab of a building refers to a horizontal structural element


that serves as the floor system for the building's various levels
or stories. Slabs are designed to support the dead and live
loads imposed by occupants, furniture, equipment, and

[22]
`

environmental factors while spanning between support


elements such as beams, walls, or columns. Slabs can be
classified into several types based on their construction
method, shape, and structural behavior:

1. Types of Slabs:
 Flat Slab: Flat slabs are the simplest form of slab
construction, characterized by a flat soffit (underside) and
minimal depth. They are supported directly on columns
without the use of beams or drop panels. Flat slabs offer
flexibility in layout and are suitable for buildings with
irregular column grids or heavy point loads.
 One-Way Slab: One-way slabs are designed to span in
one direction between parallel supports, typically beams
or walls. They are reinforced with bars running parallel to
the span direction. One-way slabs are economical for
narrow spans and are commonly used in residential,
commercial, and industrial buildings.
 Two-Way Slab: Two-way slabs are designed to span in
both directions between orthogonal supports, such as
beams or walls. They are reinforced with bars in both
directions to resist bending and shear forces. Two-way
slabs distribute loads more efficiently than one-way slabs
and are suitable for larger spans and heavier loads.
 Ribbed (Waffle) Slab: Ribbed slabs consist of a series of
parallel beams (ribs) and solid or voided panels (slabs)
between them. The ribs provide additional stiffness and
strength while reducing the overall weight of the slab.
Ribbed slabs are commonly used in multi-story buildings
to achieve longer spans and reduce construction costs.
 Post-Tensioned Slab: Post-tensioned slabs are
reinforced concrete slabs that incorporate high-strength
steel tendons or cables tensioned after the concrete has
cured. Post-tensioning increases the slab's strength and
allows for longer spans with reduced thickness. Post-
tensioned slabs are commonly used in high-rise buildings,
parking structures, and bridge decks.
 Precast Concrete Slab: Precast concrete slabs are
manufactured off-site in controlled factory conditions and
transported to the construction site for installation. They
offer rapid construction and high-quality finishes. Precast
slabs may be pre-stressed or reinforced and can be used

[23]
`

for a wide range of applications, including floors, walls,


and roofs.
2. Design Considerations:
 Load Requirements: Slabs must be designed to support
the anticipated dead loads (self-weight, finishes) and live
loads (occupants, furniture, equipment) in accordance
with building codes and structural standards.
 Span and Thickness: The span and thickness of the slab
depend on factors such as the building's layout,
occupancy, loading conditions, and structural
requirements. Longer spans typically require thicker slabs
or additional reinforcement.
 Reinforcement: Slabs are reinforced with steel bars
(rebars) to resist bending, shear, and torsional forces. The
type, size, and spacing of reinforcement bars are
determined based on structural calculations and design
criteria.
 Deflection and Crack Control: Slabs must be designed
to limit deflection and control cracking under service
loads. Techniques such as providing adequate
reinforcement, controlling joint spacing, and incorporating
shrinkage-compensating concrete can mitigate deflection
and cracking.
 Construction Joints: Construction joints are intentional
interruptions in the continuity of the slab to accommodate
phased construction or changes in structural elements.
Proper detailing and placement of construction joints are
essential to maintain structural integrity and prevent
cracking.
 Expansion Joints: Expansion joints are designed to
accommodate thermal expansion and contraction of the
slab due to temperature variations. They allow for
movement without inducing excessive stresses or cracking
in the slab.
3. Construction Process:
 Formwork: Formwork is constructed to contain the
concrete during placement and curing. Formwork may be
made of wood, metal, or prefabricated panels and must be
capable of supporting the weight of fresh concrete and
any construction loads.
 Reinforcement Placement: Reinforcement bars are
placed within the formwork according to the structural

[24]
`

design drawings and specifications. Proper placement and


spacing of reinforcement ensure the structural integrity
and load-carrying capacity of the slab.
 Concrete Placement: Concrete is placed into the
formwork using appropriate methods, such as pouring
from a concrete mixer truck or pumping. Care must be
taken to achieve proper consolidation and compaction of
the concrete to minimize voids and ensure uniform
strength.
 Finishing: After the concrete has been placed, it is
finished using trowels or other tools to achieve the desired
surface texture and smoothness. Surface treatments such
as curing compounds or membrane curing may be applied
to promote proper hydration and prevent premature
drying of the concrete.
 Curing: Curing is the process of maintaining adequate
moisture and temperature conditions to promote
hydration and achieve optimal concrete strength and
durability. Curing may involve wet curing (sprinkling or
ponding), membrane curing (covering with plastic
sheeting), or curing compounds.
 Removal of Formwork: Once the concrete has
sufficiently cured and gained strength, the formwork is
removed carefully to avoid damaging the slab. Any defects
or imperfections in the concrete surface are repaired as
necessary.
4. Maintenance and Inspection:
 Regular maintenance and inspection of the slab are
essential to identify any signs of distress, deterioration, or
damage early on.
 Inspections should include visual assessments of the slab
surface, checking for cracks, spalling, or unevenness, as
well as structural assessments to ensure the slab's
integrity and load-carrying capacity.
 Repairs and maintenance activities, such as sealing
cracks, patching spalled areas, and applying protective
coatings, should be performed promptly to prevent further
deterioration and prolong the service life of the slab.

In summary, the slab of a building is a critical structural


element that provides support, stability, and functionality to the
overall structure. Proper design, construction, and maintenance

[25]
`

of the slab are essential to ensure structural integrity,


durability, and safety for occupants.

STAIRCASE IN A BUILDING
A staircase in a building is a vertical circulation element that
provides access between different levels or floors. Staircases
are an integral part of building design, serving both functional
and aesthetic purposes. Here are the key aspects of staircases
in buildings:

1. Types of Staircases:
 Straight Staircase: Straight staircases are the simplest
and most common type, consisting of a single straight
flight of steps between two levels. They are suitable for
buildings with limited space and straightforward layouts.
 L-Shaped Staircase: L-shaped staircases feature a
landing that changes the direction of the stairs by 90
degrees. They are often used in buildings with limited floor
area or to accommodate changes in floor levels.

[26]
`

U-Shaped Staircase: U-shaped staircases consist of two


parallel flights of stairs connected by a landing that
changes the direction of travel by 180 degrees. They are
commonly used in larger buildings and provide a compact
and visually appealing design.
 Spiral Staircase: Spiral staircases wind around a central
axis, forming a spiral or helical shape. They are space-
saving and offer a unique architectural feature but may
have limited usability and accessibility.
 Curved Staircase: Curved staircases feature steps that
follow a curved or circular path, creating a graceful and
elegant design. They are often used in grand entrances or
architectural focal points.
2. Design Considerations:
 Building Codes and Regulations: Staircases must
comply with local building codes and regulations regarding
dimensions, headroom, riser height, tread depth, handrail
height, and balustrade design to ensure safety and
accessibility.
 Occupancy and Traffic Flow: The design of the
staircase should consider the anticipated occupancy and
traffic flow within the building, including the number of
users, peak usage times, and user demographics (e.g.,
adults, children, elderly).
 Aesthetic and Architectural Integration: Staircases
contribute to the overall aesthetic and architectural
character of the building. The design should harmonize
with the building's style, materials, and spatial layout
while creating a visually appealing focal point.
 Space Requirements: The space available for the
staircase influences the design configuration, including the
number of steps, width of the stairs, and location of
landings. Adequate clearance and circulation space should
be provided to accommodate users comfortably.
 Safety Features: Staircases should incorporate safety
features such as handrails, guardrails, non-slip treads, and
proper lighting to minimize the risk of slips, trips, and falls,
especially in low-light conditions or emergency situations.
3. Construction and Materials:
 Staircases may be constructed using various materials,
including concrete, steel, wood, glass, and stone,

[27]
`

depending on structural requirements, design preferences,


and budget constraints.
 The construction method and materials used for the
staircase should ensure durability, stability, and resistance
to wear and tear over time.
 Staircase components such as steps, risers, handrails,
balusters, and newel posts are assembled and installed
according to the design specifications and construction
drawings.
4. Accessibility and Universal Design:
 Staircases should be designed to accommodate
individuals of all ages and abilities, including those with
mobility impairments or disabilities. Design considerations
may include the provision of ramps, lifts, or elevators in
addition to stairs to ensure universal access.
 Handrails should be continuous and graspable, with proper
clearance and extensions at the top and bottom of the
stairs. Treads and risers should have consistent
dimensions and contrasting colors to aid visual perception.
5. Maintenance and Inspection:
 Regular maintenance and inspection of staircases are
essential to ensure their continued safety, functionality,
and appearance.
 Inspections should include checks for signs of wear,
damage, or deterioration in materials, connections, and
structural integrity.
 Repairs and maintenance activities, such as cleaning,
painting, lubricating, and replacing worn components,
should be performed as needed to address any
deficiencies and prolong the lifespan of the staircase.

Overall, the design and construction of staircases in buildings


require careful consideration of various factors, including
safety, functionality, aesthetics, and accessibility, to provide
users with a safe, comfortable, and visually pleasing means of
vertical circulation.

[28]
`

LITERATURE REVIEW

 Design and Analysis of Multistorey (G+14) Residential


Building Using Staad.Pro and Autocad
Author name:-SowravSaha
In this paper, the Author dealt with the analysis and design of
the multistoried building by using the software package STAAD
Pro. For analyzing a multi-storied building one has to consider
all the possible loadings and see that the structure is safe

[29]
`

against all possible loading conditions. There are several


methods for the analysis of different frames like Kani’s method,
Cantilever method, Portal method, and Matrix method. The
project in this paper deals with the design & analysis of a multi-
storied residential building of G+14 consisting of 2 apartments
on each floor. The dead load & live loads are applied and the
design for beams, columns, and footing is obtained. STAAD Pro
with its new features surpassed its predecessors and
competitors with its data-sharing capabilities with other major
software like AutoCAD. And concluded that STAAD Pro is a very
powerful tool which can save much time and is very accurate in
Designs. (Saha et al., 2021)

 Analysis and Design of a Residential Building by using


STAAD Pro
Author Name:-KunalWailkar,et.al
In this paper, the Author tried to focus on a residential building.
The project aims to analyze and design for constructing a
structure capable of overcoming all applied loads without
failure during its intended life. The process of structural design
involves various stages such as computation of loads, member
design, detailing and many more. The conventional method of
structural design and analysis leads to a lot of complications
and tedious calculations which are time-consuming. Nowadays
to complete a design and analysis efficiently, fast software's
used. Computer-aided design of the residential building by
using STAAD PRO includes- Generating a structural framing
plan, Getting a model, Analysis of the structure, and Designing
of structure.(Wailkar et al., 2021)

 Analysis and Design of Multistorey Building G+4


Author Name:-MohdZohair
The author tried to study, a building that has multiple floors
above the ground. It can be a residential or commercial
building. This project deals with the analysis and design of the
multi - storey building G+4. In general, the analysis of multi -
storey is elaborate and rigorous because those are statically
indeterminate structures. Shears and moments due to different
loading conditions are determined by many methods such as
the portal method, moment distribution method and matrix
method. The dead load & live loads are applied and the design
for beams, columns, and the footing is obtained manually. The

[30]
`

Analysis part of the structure is done using Kani’s Method and


the values are taken for design. (Zohair, 2018)

 Analysis and Design of (G+20) Multi – Storey Residential


Building using Staad.Pro
Author Name:-P.Leela Krishna
In this paper, the Author tried to focus to analyze and design a
Multistoried building by using the software package STAAD Pro.
The main objective of this project is to analyze and design a
(G+20) multi-storied building using STAAD Pro. The code refers
for this project are NBC, IS 456-2000, and SP16.The concrete
mix used in this project is M30. (Krishna, 2020)

 Analysis and Design of Multi-Storied Residential Building


using Staad.Pro and Manual Calculations.
Author Name:-Pranay R. Girde, et.al
This project is based on most of the software and it is
necessary to know the details. The main objective of the project
is to design and analyze multistoried buildings that include
manual load calculation. This is a business choice that gives
and redirects to the user visualization and result verification. It
was analyzed using different load combinations. Each floor had
97 beams and 24 beams. Each floor had a height of 3 meters.
(Girde et al., 2022)

[31]
`

METHODOLOGY

1. Planning and Drawing in AutoCAD:


 Develop a comprehensive plan for the building layout,
including floor plans, elevations, and sections using
AutoCAD software.
 Incorporate design considerations such as room
dimensions, circulation spaces, structural requirements,
and architectural aesthetics.
 Ensure compliance with building codes, zoning
regulations, and client specifications.
 Create detailed drawings for each floor level, highlighting
structural elements, openings, and other relevant
features.
2. Importing Drawing to STAAD Pro:
 Export the building drawings from AutoCAD in a
compatible file format (e.g., DXF or DWG).
 Open STAAD Pro software and import the AutoCAD
drawings into the STAAD Pro environment.
 Verify the accuracy of the imported geometry and ensure
that all relevant structural elements are properly defined.
 Assign material properties, member properties, and
support conditions to the structural elements within
STAAD Pro.
3. Analysis and Designing of Building:
 Perform structural analysis of the building model using
STAAD Pro to determine internal forces, deflections, and
stability under various loading conditions (e.g., dead
loads, live loads, wind loads, seismic loads).
 Select appropriate structural systems, such as beams,
columns, slabs, and foundations, based on the analysis
results and design criteria.
 Design structural members for strength, stiffness, and
serviceability in accordance with applicable design codes
and standards (e.g., ACI, AISC, ASCE).
 Consider factors such as material properties, member
sizes, reinforcement detailing, and load combinations
during the design process.
 Verify the adequacy of the structural design through
iterative analysis and optimization, addressing any

[32]
`

deficiencies or concerns identified during the review


process.
4. Cost Estimation of Building Using Excel:
 Develop a cost estimation spreadsheet in Microsoft Excel
to quantify the material, labor, and equipment costs
associated with constructing the building.
 Break down the cost estimation into categories such as
site preparation, foundation, structural framing, finishes,
MEP systems, and overhead expenses.
 Obtain cost data from suppliers, contractors, and industry
sources to ensure accuracy and reliability of the
estimates.
 Factor in contingencies, escalation rates, and other
project-specific considerations to account for uncertainties
and risks.
 Summarize the cost estimation results in a comprehensive
report, highlighting key cost drivers and potential cost-
saving opportunities.

5. Result and Conclusion:


 Present the results of the analysis and design process,
including structural drawings, analysis reports, and design
calculations.
 Discuss the key findings, insights, and recommendations
derived from the planning, analysis, and cost estimation
phases.
 Evaluate the performance of the building design in terms
of structural integrity, functionality, and cost-
effectiveness.
 Provide conclusions regarding the feasibility, viability, and
sustainability of the proposed building design.
 Highlight any lessons learned, challenges encountered,
and areas for future improvement in the design and
construction process.

[33]
`

PLANNING AND DRAWING IN AUTOCAD

RESULT AND CONCLUSION


IMPORTING TO DRAWING TO STAADPR

COST ESTIMATION OF BUILDING USING EXCEL


ANALYSIS AND DESIGNING OF BUILDING

[34]
`

GENERAL DETAILS OF THE BUILDING


Type of building : R.C. Frame
building
Number of floors : G+3
Location of building : Visakhapatnam
Total height of the building :
12 m
from ground level Total number of
columns :
27
Depth of foundation : 2 m below ground
level
Type of footing : Isolated footing
Plinth level : 0.45m above
ground level
Size of beams : 0.3m x 0.45m
Size of columns : 0.5m x 0.3m
Thickness of slab : 150mm
Type of walls : Ordinary clay
brick walls
Wall thickness : 9.1” (outer wall) and 4.3” (inner
wall)
Type of Staircase : Dog legged
Staircase
Front setbacks : 3.00m
Rear setbacks : 2.000m
Left side setbacks : 2.00m
Right side setbacks : 2.00m
Width of road : 60’-0”
Grade of concrete : M 30
Grade of Steel : Fe415

[35]
`

INTRODUCTION

STAAD.Pro is a structural analysis and design software package


widely used in civil engineering and structural engineering
fields. Developed by Bentley Systems, it allows engineers to
perform various types of structural analysis, including static,
dynamic, and finite element analysis.

STAAD.Pro offers a range of features and capabilities, including:

1. Modeling: Users can create 3D structural models of buildings,


bridges, towers, and other structures using various geometric
primitives like beams, columns, slabs, and walls.
2. Analysis: The software can perform static analysis to
determine stresses, deflections, and internal forces within a
structure under various loading conditions. It also supports
dynamic analysis for assessing the behavior of structures
subjected to dynamic loads such as wind, seismic, and
vibration.
3. Design: STAAD.Pro provides tools for the design of steel,
concrete, timber, aluminum, and cold-formed steel structures
according to various international design codes and standards.
It can automatically generate design reports and drawings.
4. Integration: It integrates with other software packages such
as RAM Structural System, AutoPIPE, and ProSteel, allowing for
a seamless workflow in multi-disciplinary projects.
5. Visualization: Users can visualize analysis results through
graphical representations such as contour plots, diagrams, and
animations, aiding in the understanding of structural behavior.
6. Customization: The software allows for customization through
its OpenSTAAD API, enabling users to automate repetitive
tasks, develop custom tools, and integrate with external
applications.

Overall, STAAD.Pro is a powerful tool for structural engineers,


offering comprehensive analysis and design capabilities to
ensure the safety and efficiency of various types of structures.

[36]
`

ADVANTAGES AND DISADVANTAGES OF STAADPRO

STAAD.Pro, like any software tool, comes with its own set of
advantages and disadvantages. Here's a breakdown:

Advantages:

1. Comprehensive Structural Analysis: STAAD.Pro offers a


wide range of analysis capabilities, including static, dynamic,
and finite element analysis, allowing engineers to assess the
behavior of structures under various loading conditions
accurately.
2. Versatility: It supports the analysis and design of different
types of structures, including buildings, bridges, towers,

[37]
`

industrial structures, and more. This versatility makes it


suitable for a variety of engineering projects.
3. Integration: STAAD.Pro integrates seamlessly with other
software packages, enabling engineers to work collaboratively
on multi-disciplinary projects and exchange data with programs
like AutoCAD, Revit, and other Bentley products.
4. User-Friendly Interface: The software provides a user-
friendly interface with intuitive modeling tools, making it
accessible to both novice and experienced users. It also offers
extensive documentation and online support resources.
5. Code Compliance: STAAD.Pro incorporates design codes and
standards from various regions worldwide, allowing engineers
to design structures according to local regulations and
requirements.
6. Efficiency: The automated design features of STAAD.Pro help
engineers save time and effort by generating design reports,
drawings, and calculations automatically.

Disadvantages:

1. Learning Curve: Despite its user-friendly interface, mastering


STAAD.Pro can require a significant learning curve, especially
for complex analysis and design tasks. Novice users may need
time to familiarize themselves with the software's features and
functionalities.
2. Cost: STAAD.Pro is a commercial software package, and its
licensing costs can be significant, especially for small firms or
individual users. Additionally, ongoing maintenance and
support fees may add to the overall cost of ownership.
3. Hardware Requirements: Running STAAD.Pro efficiently may
require high-performance hardware, including powerful
computers with sufficient RAM and graphics processing
capabilities. This can be an additional expense for users with
older or less powerful hardware.
4. Modeling Limitations: While STAAD.Pro offers advanced
modeling capabilities, it may have limitations when it comes to
modeling complex geometries or non-standard structural
elements. Users may need to employ workarounds or
supplementary software for certain modeling tasks.
5. Accuracy: While STAAD.Pro provides accurate results for most
structural analyses, users should exercise caution and verify
results, especially for complex or critical projects. Errors in

[38]
`

modeling or input data can affect the accuracy of analysis


outcomes.
6. Technical Support: While Bentley Systems offers technical
support for STAAD.Pro, some users may find the level of
support inadequate or may experience delays in resolving
issues or receiving assistance.

Overall, despite its disadvantages, STAAD.Pro remains a widely


used and respected tool in the field of structural engineering,
offering powerful analysis and design capabilities for engineers
worldwide.

[39]
`

BASIC STEPS TO FOLLOW IN STAADPRO


The basic steps followed in STAAD.Pro for structural analysis
and design typically include:

1. **Geometry Creation**: Start by creating the geometry of


the structure using STAAD.Pro's modeling tools. This involves
defining nodes, elements (such as beams, columns, slabs), and
support conditions (fixed, pinned, rollers).

2. **Material Properties**: Specify the material properties for


each structural component, including properties such as
modulus of elasticity, yield strength, density, etc. This
information is essential for accurate analysis and design.

3. **Loading Conditions**: Apply the appropriate loading


conditions to the structure. This may include dead loads, live
loads, wind loads, seismic loads, temperature loads, etc.
STAAD.Pro provides tools for applying various types of loads
and load combinations according to design codes and
standards.

4. **Analysis Setup**: Configure the analysis settings, including


the type of analysis (static, dynamic, etc.), analysis methods
(finite element, stiffness matrix), solution techniques (linear,
nonlinear), and analysis parameters (tolerances, convergence
criteria).

5. **Analysis**: Perform the structural analysis using the


defined geometry, material properties, and loading conditions.
STAAD.Pro will calculate the internal forces, deflections, and
other relevant results for the structure under the applied loads.

[40]
`

6. **Result Verification**: Review and verify the analysis results


to ensure they meet the project requirements and design
criteria. This may involve checking deflections, stresses,
member forces, reactions, and other output data.

7. **Design**: Once the analysis is complete and verified,


proceed with structural design using STAAD.Pro's design
modules. This involves checking members (beams, columns,
etc.) for strength, stability, and serviceability according to the
selected design codes and standards.

8. **Documentation**: Generate design reports, drawings, and


other documentation summarizing the analysis and design
results. STAAD.Pro offers tools for automatically generating
design reports, drawings, and calculations, which can be
customized as per project requirements.

9. **Optimization (Optional)**: Depending on the project


requirements, you may perform optimization studies to
optimize the structural design for factors such as material
usage, cost, weight, etc. STAAD.Pro provides features for
parametric modeling and optimization.

10. **Review and Iteration**: Review the analysis and design


results, make any necessary revisions or adjustments, and
iterate the process as needed until the desired level of
performance and compliance with design requirements is
achieved.

[41]
`

By following these basic steps, engineers can effectively utilize


STAAD.Pro for structural analysis and design, ensuring the
safety, efficiency, and integrity of various types of structures.

IMPORTING THE PLAN

STEP-1: For importing the plan first we need


“CENTRE LINE DIAGRAM”

STEP-2: We have to save our autocad plan in .DXF


format and then we have to close the autocad file

STEP-3: We should open the staad pro software. To design the


building in 3 dimension, the ‘SPACE’ is selected.

STEP-4: We should Select our autocad plan which is


in .DXF format and select Import Option in staad file
and select 3DXF and Click on import

STEP-5: Select Y-UP and click on ok.

STEP-6: Finally plan is imported to staad-pro.

STEP-7: Use “TRANSLATION REPEAT” for creating 2 floors


as our structure is g+2.

STEP-8: Finally our g+2 structure is generated for


analysis and design purpose.

[42]
`

ASSIGNING MATERIAL

After creating beams and columns we will assign


material to them as required. Our design is concrete
design so we have assigned concrete material to

[43]
`

the beams and columns.

ASSIGNING PROPERTIES

The properties of the beams and columns such as


their width, depth of cross-section is given.
Different sections as circular, rectangular, square
depending upon the requirement section is
assigned.

[44]
`

ASSIGNING OF SUPPORTS
There are three types of supports provided to a
structure.

 Fixed support
 Roller support
 Pinned support

The supports are first created (as we created fixed


supports) and then these are assigned to all the
lowermost nodes of structure where we are going
to design the foundation.

[45]
`

ASSIGNING OF LOADS
DIFFERENT TYPES OF LOADS ACTING ON THE STRUCTURE

In structural engineering, various types of loads can act on a


structure, causing it to deform or fail if not properly accounted
for in the design process. Here are some common types of
loads:

1. Dead Load (Permanent Load): Dead loads refer to the


weight of the structure itself, including the weight of the
building materials, fixtures, and permanent equipment. These
loads are constant and do not change over time.
2. Live Load (Variable Load): Live loads are temporary loads
caused by the occupancy of the structure, movable equipment,
furniture, people, vehicles, or any other dynamic forces. These
loads vary in magnitude and location and may change over
time.
3. Wind Load: Wind loads are lateral forces exerted by the wind
on the structure. The magnitude of wind loads depends on
factors such as wind speed, direction, duration, and the shape

[46]
`

and size of the structure. Wind loads can cause lateral and
overturning forces, as well as induce vibrations.
4. Snow Load: Snow loads occur when snow accumulates on the
roof or other horizontal surfaces of the structure. The weight of
the snow exerts downward forces on the structure, which can
vary depending on factors such as snow density, temperature,
and duration of accumulation.
5. Seismic Load: Seismic loads, also known as earthquake loads,
result from ground motion during an earthquake. These loads
induce dynamic forces on the structure, causing it to vibrate
and deform. Seismic loads are influenced by factors such as the
seismicity of the region, soil conditions, and building design.
6. Temperature Load: Temperature loads arise due to thermal
expansion and contraction of the structure's materials in
response to changes in temperature. Temperature variations
can cause expansion or contraction of structural elements,
leading to internal stresses and deformations.
7. Fluid Pressure Load: Fluid pressure loads occur in structures
that are in contact with fluids, such as water tanks, dams, and
retaining walls. The pressure exerted by the fluid can cause
uplift, lateral forces, and structural instability.
8. Dynamic Loads: Dynamic loads are caused by moving loads
or dynamic events, such as machinery vibrations, vehicle
traffic, or impact loads. These loads can induce dynamic
responses in the structure, leading to vibrations, resonance, or
fatigue failure.
9. Construction Loads: Construction loads refer to temporary
loads applied to the structure during construction, such as the
weight of construction materials, equipment, and workers.
These loads need to be considered during the construction
phase to ensure the safety and stability of the structure.

By considering these various types of loads in the design


process, structural engineers can ensure that the structure is
adequately designed to withstand the expected loading
conditions and meet safety and performance requirements.

[47]
`

ANALYSIS
[48]
`

After performing the analysis, the No. of errors, warnings and


notes if any will be displayed(if any).

If present, the ouput file is checked for their rectification.

DESIGN

[49]
`

Design of beam, column and slab can be done in STAAD itself


whereas the design of staircase is done manually.

Using STAAD

1. Select code IS: 556-2000 in the drop box of list of codes


available.

2. Create required parameters.

3. Define them.

BEAM DESIGN

All the beams parallel to X and Z directions are selected and


the ‘design beam’ command is assigned to them.

[50]
`

COLUMN DESIGN

Similarly all the beams parallel to Y direction are slected and


the ‘design column’ is assigned to them.

[51]
`

STAAD INPUT

[52]
`

3D RENDERING VIEW OF OUR BUILDING

[53]
`

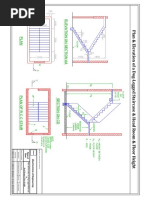
MANUAL DESIGN OF STAIRCASE

[54]
`

STEP 1: PROPERTIES OF STAIRS


Dimensions of stair hall = 2.13m x 4.0m
Height of floor = 3m
Height of one flight = 3/2 = 1.5m
Rise of stair (R) = 150mm
Tread of stair (T) = 300mm
Number of rises = 1500/150 =10
Hence, number of treads = 10-1 = 9
Width of stairs = 2.13/2 = 1.065m
Width of landing = 1.22m

STEP 2: EFFECTIVE SPAN


As the stair slab is spanning longitudinally,
Effective span = 4.0+3.0 = 4.3m

STEP 3: EFFECTIVE DEPTH


Effective depth(d) = 4300/26 = 165.384 = 170mm
Assuming a clear over o 35mm
Overall depth of waist slab D = 195mm = 200mm
d = 170mm D = 200mm

STEP 4: CALCULATION OF LOADS:

√ (T )
Weight of waist slab = 1+ R 2 x 25

=

0.2
1+(
0.15 2
0.30
) x 25

= 5.6kN/M 2
Weight of steps = RX25/2
= 0.15 x25/2

[55]
`

= 1.875kN/m2
Live load = 3Kn/m2
Floor finish = 1kN/m2
Total load = 11.475kN/m2
Total factored load = 1.5 x 11.475
= 17.2125 kN/m

STEP 5: FACTORED BENDING MOMENT


Bending moment Mu = Wl2/8
= 17.2125/8
=39.78kN/m
STEP 6 : CHECK OR DEPTH OF SLAB REQUIRED
Mu = 0.138fck bd2
d2 = 39.78 x 106 / 0.138 x 30 x 1000
d = 98.02< 170mm
Hence, the provided effective depth is greater than the
required depth.

STEP 7: DETERMINATION OF TENSION REINFORCEMENT


Reinforcement is computed by the following relation
Mu = 0.87 fy Ast d [1-(fy x Ast/ fck x b x d)]
Ast = 569.78mm2
Using 12mm  bars
Spacing S = (ast/Ast) x 4000
= ((π/4) x d2)/569.78) x 4000
= 198.67mm
Hence provide 12mm  batrs at a spacing of 190mm c/c.

[56]
`

STEP 8: DETERMINATION OF DISTRIBUTION


Reinforcement is 0.12% of gross cross-sectional area,
Ast = 0.12% of gross area
= (0.12 x 1000 x 200)/ 100
= 240mm2
Using 8mm  bars,
Spacing S = (ast/Ast) x 1000
= (π/4 x 82 / 240) x 1000
= 206.35mm
Hence provide 8mm  bar at a spacing o 200mm c/c.

STEP 9: CHECK FOR STIFFNESS


For simply supported slabs, the basic value of L/D ratio is 20.
The percentage of main steel at the mid-section is given by
Pt% = (ast/asd) x 100
= ((π/4 x 122)/(190 x 170)) x 100
= 0.35%
Fs = 0.58 X 500 X 1 = 290N/mm2
From figure 4 of IS 456-2000
The modification factor = 1.2
(l/d)max = basic value x modification factor (F)
= 20 x 1.2
= 24
(l/d) provided = 3840/ 170 = 22.6
(l/d) provided < (l/d) permitted.
HENCE OK.

[57]
`

[58]
`

DESIGN OF FOOTING
Axial load = 1500Kn
Column dimension = 230 x 230mm
Safe bearing capacity of soil = 600kN/m2
fy = 415N/mm2
fck = 30N/mm2
Pu= 1500kN
Weight of footing = 10% of Pu
= 150Kn
Total load = 1650Kn
Area of footing = total load/sae bearing capacity
= 1650/600
= 2.75
Size of footing = 1.65 x 1.65mm

PRESSURE DISTRIBUTION AT BASE


Soil pressure at base = 1650/(1.65 x 1.65)
= 600kN/m 2< (1.5 x 600)

FACTORED BENDING MOMENT


M = p(L-a2)/8L
= 1650(1.65 – 0.23)2/(8 x 1.65)
= 3327.06/13.2 = 252.05kNm

THICKNESS OF FOOTING SLAB


Mu = 0.138bd2fck
252.05 x 106 = 0.138 x 30 x 1000 x d2
d = 246mm

[59]
`

depth based on shear consideration will he double than that


due to moment consideration.
Effective depth 492mm ̴ 500mm
Overall depth = 550mm (50’ cover)

REINFORCEMENTS:
( Ast−fy¿ )
Mu = 0.87fyAstd[1- bdfck ¿
¿
( Ast−415)
252.05 x 106 = 0.87(415)(Ast)(500) x [1- ]
1000 x 30 x 500
Ast x 415
252.05 x 106 = 180525Ast[1-[ 6]
150 x 10
Ast = 750mm2
Ast = 0.12%bD
0.12
= 100 x 550 x 1000

= 600mm2

Provide 16Ø bars


= 279 ⁓270mm
Footing type = isolated square footing
Dimensions = 1650 x 1650 x 550
Reinforcement = provide 16mm Ø @270mm c/c (both sides)

DESIGN OF SLAB
[60]
`

Ly = 18.0m
Lx = 12.5m
Fck = 30N/mm2
Fy = 550N/mm2
LL = 4kN/mm2
Ø = 10mm
Type of slab
Ly = 18.0m
Ly = 12.5m
Ly/Lx = 1.44>2
Hence two way slab.

DEPTH OF THE SLAB


Depth = 12500/35 = 350mm
D = 350mm
D = 350+50 = 400mm

LOADS
Self weight of slab = 0.35 x 25 x 1
= 8.75kN/m
Live load = 4kN/m
Floor finish = 1kN/m
Total working load = 13.75kN/m
Wn = 1.5 x 13.75 = 20.625kN/m

EFFECTIVE SPAN
One support width = 12500+230
= 127mm

[61]
`

Effective depth = 12500+350


= 12850mm

REINFORCEMENT CO-EFFICIENTS
Ly/Lx = 18/12.5 = 1.44mm
Lx = 0.084
Ly = 0.071

MAX BENDING MOMENT AND SHEAR ORCE


Longer span
M x = α xW u l 2
= 0.084 x 20.625 x 12.732
= 280.75kNm
Shorter span
M y = α yW u l 2
= 0.071 x 20.625 x 12.732
= 237.30kNm

CALCULATION OF REINFORCEMENT
Shorter span:
Astfy
Mu = 0.87fyAstd(1- bdfck )

( Ast x 550)
280.75 x 106 = (0.87 x 415 x 350 x Ast)(1- )
350 x 1000 x 30
Ast = 825.4mm2
Longer span:
( Ast fy)
Mu = 0.87fyAstd(1- )
bdfck
( Ast x 550)
237.30 x 106 = 0.87 x 415 x 350 x Ast(1- )
350 x 1000 x 30

[62]
`

Ast = 771.14mm2

CHECK FOR Ast


Ast min = 0.12%bD
0.12
= 100 x 1000 x 400

= 480mm2

SPACING ALONG SHORTER SPAN:


 900mm
 3d = 3 x 350 = 1050mm
πϕ2
 Sv = ( 4 Ast ) x 1000
2
π x 10
=( ) x 1000
4 x 711.4
= 110.17mm
Provide 10mm ϕ “ 110mm c/s spacing.

SPACING ALONG LONGER SPAN:


 900mm
 3d = 3 x 350 = 1050mm
πϕ 2
 Sv = ( 4 Ast ) x 1000
2
π x 10
=( ) x 1000
4 x 825.4
= 95.15mm
Provide 10mm @ 900mm c/s spacing.

CHECK FOR SHEAR:


Vu = Wul/2

[63]
`

20.625 x 12.85
= 2
= 132.515Kn

Τv = Vu/bd
3
132.515 x 10
= = 0.378N/mm2
1000 x 350
% of steel = 100Ast/bd
100 x 825.4
= 1000 x 350

= 0.235%
K = 1.2
τc = 0.4
Kτc = 0.48N/mm2
τv<τcK
Hence safe.

REVIT SOFTWARE

[64]
`

Revit is a building information modeling (BIM) software


developed by Autodesk. It is widely used by architects,
engineers, designers, and contractors for designing and
modeling buildings and infrastructure. Here are some key
aspects of Revit:

1. BIM Platform: Revit is a BIM platform, meaning it allows users


to design, visualize, simulate, and collaborate on building
projects in a 3D environment.
2. Parametric Modeling: Revit uses parametric modeling
techniques, where elements in the model are defined by
parameters such as dimensions, materials, and relationships
with other elements. This allows for easy editing and updating
of designs.
3. Integrated Design Environment: Revit provides tools for
architectural design, structural engineering, MEP (mechanical,
electrical, and plumbing) engineering, and construction. These
disciplines can work together in the same project environment,
facilitating coordination and collaboration.
4. Collaboration: Revit offers features for team collaboration,
such as cloud-based sharing and coordination tools. Multiple
team members can work on the same project simultaneously,
and changes made by one user are automatically updated for
others to see.
5. Visualization and Analysis: Revit includes tools for creating
high-quality 3D visualizations and renderings, allowing users to
produce realistic images of their designs. It also supports
analysis tools for energy efficiency, structural integrity, and
other aspects of building performance.
6. Documentation: Revit generates construction documentation
directly from the model, including floor plans, elevations,
sections, schedules, and detail drawings. Changes made to the
model are automatically reflected in the documentation,
ensuring consistency and accuracy.
7. Extensions and Add-ons: Autodesk and third-party
developers offer a wide range of extensions and add-ons for
Revit, expanding its functionality and customization options.

Overall, Revit is a powerful tool for building design and


construction, streamlining workflows, improving collaboration,
and enhancing the overall efficiency of the building process.

[65]
`

REVIT MODEL

[66]
`

[67]
`

[68]
`

[69]

You might also like