KEMBAR78
Pipe Line List | PDF
0% found this document useful (0 votes)
13 views1 page

Pipe Line List

768679

Uploaded by

vrajakisoriDasi
Copyright
© © All Rights Reserved
We take content rights seriously. If you suspect this is your content, claim it here.
Available Formats
Download as XLS, PDF, TXT or read online on Scribd
0% found this document useful (0 votes)
13 views1 page

Pipe Line List

768679

Uploaded by

vrajakisoriDasi
Copyright
© © All Rights Reserved
We take content rights seriously. If you suspect this is your content, claim it here.
Available Formats
Download as XLS, PDF, TXT or read online on Scribd
You are on page 1/ 1

A.K.C.

TECHNOLOGY
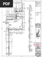
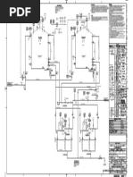
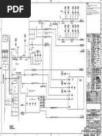
PIPE LINE LIST
TITLE:
Job No.: Sheet of Issue No.: 1 Date 2 Date 3 Date
Job Name: Description
Document No. Made/Revised by
Project No. Checked by
Client Approved- Process
Location Approved
Plant
LINE FROM TO TEMPERATURE ( oF ) PRESSURE (PSIG) VELOCITY PRESSURE/100 FT. FLOW(1) P & ID
NUMBER OPERATING DESIGN OPERATING DESIGN FT/SEC. PD/100 FT. NUMBER

NOTES: 1. FLOW UNITS : G= gpm; C= acfm; P = Ibs/hr.

Figure 1-31B. Pipe line list

You might also like