KEMBAR78
Sap 3. | PDF | Relay | Electromagnetic Induction
0% found this document useful (0 votes)
34 views21 pages

Sap 3.

Switch gear and protection chap 03 IMP Nots ss.
Copyright
© © All Rights Reserved
We take content rights seriously. If you suspect this is your content, claim it here.
Available Formats
Download as PDF, TXT or read online on Scribd
0% found this document useful (0 votes)
34 views21 pages

Sap 3.

Switch gear and protection chap 03 IMP Nots ss.
Copyright
© © All Rights Reserved
We take content rights seriously. If you suspect this is your content, claim it here.
Available Formats
Download as PDF, TXT or read online on Scribd
You are on page 1/ 21

Protective Relays

Units outcomes Topics and subtopic


3a. Explain the given terms related to protective 3.1 Fundamental quality requirements:
relays selectivity, speed sensitivity, reliability,
3b. Explain need of the given type of relay in simplicity, economy.
power system. 3.2 Basic relay terminology- protective relay,
3c. Explain with sketches the working of the relay time, pick up, reset current, current setting,
given protective relay. plug setting, multiplier, time setting multiplier.
3d. Select relevant protective relay for required 3.3 Protective relay- Electromagnetic disc relay
application with justification. operation, Thermal relay, block diagram and
3e. Explain the steps for the specified settings of working of static relay, over voltage relay.
the given relay. 3.4 over voltage relay- time current
characteristics.
3.5 Microprocessor based protection relays: block
diagram and working and protective features.
3.6 Distance relaying – Principle
3.7 Directional relay: need and operation with
block diagram.
3.8 Operation of current and voltage differential
relay.

The detection of a fault and disconnection of a faulty section or apparatus can be achieved by using
fuses or relays in conjunction with circuit breakers. A fuse performs both detection and interruption
functions automatically but its use is limited for the protection of low-voltage circuits only. For high
voltage circuits (say above 3·3 kV), relays and circuit breakers are employed to serve the desired
function of automatic protective gear. The relays detect the fault and supply information to the circuit
breaker which performs the function of circuit interruption.

Protective Relays
A protective relay is a device that detects the fault and initiates the operation of the circuit breaker to
isolate the defective element from the rest of the system.
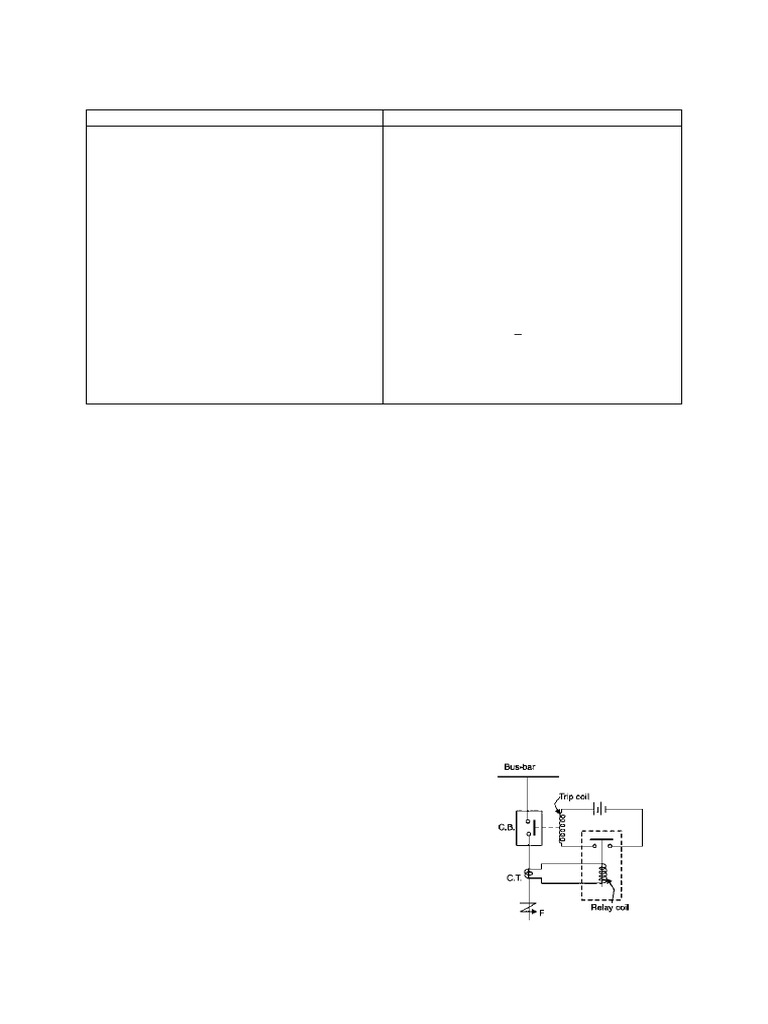
Basic relay circuit:
The relays detect the abnormal conditions in the electrical circuits by constantly measuring the
electrical quantities which are different under normal and fault conditions. The electrical quantities
which may change under fault conditions are voltage, current, frequency and phase angle. Through
the changes in one or more of these quantities, the faults signal their presence, type and location to the
protective relays. Having detected the fault, the relay operates to close the trip circuit of the breaker.
This results in the opening of the breaker and disconnection of the faulty circuit. A typical relay
circuit is shown in Fig. This diagram shows one phase of 3-phase system for simplicity. The relay
circuit connections can be divided into three parts viz.
(i) First part is the primary winding of a current transformer
(C.T.) which is connected in series with the line to be protected.
(ii) Second part consists of secondary winding of C.T. and
the relay operating coil.
(iii) Third part is the tripping circuit which may be either a.c.
or d.c. It consists of a source of supply, the trip coil of the circuit
breaker and the relay stationary contacts.
When a short circuit occurs at point F on the transmission
line, the current flowing in the line increases to an enormous value. This results in a heavy current
flow through the relay coil, causing the relay to operate by closing its contacts. This in turn closes the
trip circuit of the breaker, making the circuit breaker open and isolating the faulty section from the
rest of the system. In this way, the relay ensures the safety of the circuit equipment from damage and
normal working of the healthy portion of the system.

Fundamental Requirements of Protective Relaying


In order that protective relay system may perform this function satisfactorily, it should have the
following qualities :
(i) selectivity (ii) speed (iii) sensitivity (iv) reliability (v) simplicity (vi) economy

(i) Selectivity. It is the ability of the protective system to select correctly that part of the system in
trouble and disconnect the faulty part without disturbing the rest of the system.
A well designed and efficient relay system should be selective i.e. it should be able to detect the point
at which the fault occurs and cause the opening of the circuit breakers closest to the fault with
minimum or no damage to the system
ii) Speed: The relay system should disconnect the faulty section as fast as possible to prevent the
electrical apparatus from damage and for system stability.
iii) Sensitivity: It is the ability of the relay system to operate with low value of actuating quantity.
iv) Reliability: It is the ability of the relay system to operate under predetermined conditions.
v) Simplicity: The relay system should be simple so that it can be easily maintained.
vi) Economy: The most important factor in the choice of particular protection scheme is the economic
aspect. The protective gear should not cost more than 5% of the total cost of equipment to be
protected.

Relay Terminology
i) Pickup current: The threshold value of operating current above which the relay operates. OR
It is the minimum current in the relay coil at which the relay starts to operate.
ii ) Relay Time :- The time interval between occurrence of fault and closure of relay contacts. It is
often desirable to adjust the pick-up current to any required value. This is known as current setting
and is usually achieved by the use of tappings on the relay operating coil. The taps are brought out to
a plug bridge as shown in Fig. The plug bridge permits to alter the number of turns on the relay coil.
This changes the torque on the disc and hence the time of operation of the relay. The values assigned
to each tap are expressed in terms of percentage full-load rating of C.T. with which the relay is
associated and represents the value above which the disc commences to rotate and finally closes the
trip circuit.
Pick-up current = Rated secondary current of C.T. × Current setting
iii) Plug setting multiplier: It is the ratio of fault current in relay coil to pick-up current.
Fault current in relay coil
PSM = Pickup current

fault current on CT primary side (i.e line fault current


=
relay current setting x CT ratio

iv) Reset current: The value of current below which the relay resets and comes back to its original
state is called as reset current or dropout.
(iv) Time-setting multiplier. A relay is generally provided with control to adjust the time of
operation. This adjustment is known as time-setting multiplier. The time-setting dial is calibrated from
0 to 1 in steps of 0.05 sec see Fig

These figures are multipliers to be used to convert the time derived from
time/P.S.M. curve into the actual operating time. For example if the angular travel from trip contacts
is set to maximum then TSM =1, then for a particular PSM if the operating time of relay is 1 second
then for the same PSM if the TSM is set to 0.4 then the time of operation will be (1 second x TSM) =
1 x 0.4 = 0.4 seconds.
Thus TSM is used to define the steps for time setting of relay operation.
Fault clearing time: It is the time between the instant of fault and instant of final arc interruption in
circuit breaker.
Time/P.S.M. Curve

Fig. shows the curve between time of operation and plug setting multiplier of a typical relay. The
horizontal scale is marked in terms of plug-setting multiplier and represents the number of times the
relay current is in excess of the current setting. The vertical scale is marked in terms of the time
required for relay operation. If the P.S.M. is 10, then the time of operation (from the curve) is 3
seconds. The actual time of operation is obtained by multiplying this time by the time-setting
multiplier.
Calculation of Relay Operating Time
In order to calculate the actual relay operating time, the following things must be known :
(a) Time/P.S.M. curve
(b) Current setting
(c) Time setting
(d) Fault current
(e) Current transformer ratio
The procedure for calculating the actual relay operating time is as follows :
(i) Convert the fault current into the relay coil current by using the current transformer ratio.
(ii) Express the relay current as a multiple of current setting i.e. calculate the P.S.M.
(iii) From the Time/P.S.M. curve of the relay, read off the time of operation for the calculated P.S.M.
(iv) Determine the actual time of operation by multiplying the above time of the relay by time setting
multiplier in use.

Basic Relays
Most of the relays used in the power system operate by virtue of the current and/or voltage supplied
by current and voltage transformers connected in various combinations to the system element that is
to be protected. Through the individual or relative changes in these two quantities, faults signal their
presence, type and location to the protective relays. Having detected the fault, the relay operates the
trip circuit which results in the opening of the circuit breaker and hence in the disconnection of the
faulty circuit.
Most of the relays in service on electric power system today are of electro-mechanical type.
They work on the following two main operating principles :
(i) Electromagnetic attraction
(ii) Electromagnetic induction
Electromagnetic Attraction Relays
Electromagnetic attraction relays operate by virtue of an armature being attracted to the poles of an
electromagnet or a plunger being drawn into a solenoid. Such relays may be actuated by d.c. or a.c.
quantities. The important types of electromagnetic attraction relays are :

(i) Attracted armature type relay. Fig. shows the


schematic arrangement of an attracted armature type relay. It
consists of a laminated electromagnet M carrying a coil C and
a pivoted laminated armature. The armature is balanced by a
counterweight and carries a pair of spring contact fingers at its
free end. Under normal operating conditions, the current
through the relay coil C is such that counterweight holds the
armature in the position shown. However, when a
short-circuit occurs, the current through the relay coil
increases sufficiently and the relay armature is attracted
upwards. The contacts on the relay armature bridge a pair of stationary contacts attached to the relay
frame. This completes the trip circuit which results in the opening of the circuit breaker and, therefore,
in the disconnection of the faulty circuit. The minimum current at which the relay armature is
attracted to close the trip circuit is called pickup current. It is a usual practice to provide a number of
tappings on the relay coil so that the number of turns in use and hence the setting value at which the
relay operates can be varied.
Working of attracted armature type relay:
The coil is energized by the actuating quantity current or voltage proportional to the system voltage or
current as the case may be. The electromagnetic force on the armature is proportional to the square of
the magnetic flux (the flux is proportional to the current in the coil) in the air gap between core and
armature. As the armature is attracted its motion is linked to the trip contacts that operate to give the
trip signal. The force of attraction increases as the armature nears the core (or as the air gap reduces).
A restraining force in the form of a spring can be used to avoid unwanted operation of the armature
relay for normal currents in the current coil.

Merits:
1. Simple construction.
2. Reliable operation.
3. Unaffected by temperature changes.
4. Long life.
5. Robust construction.
Demerits-
1. Somewhat less accurate than static/ microprocessor based relay.
2. Require maintenance.
3. Wrongly operated sometimes because of vibrations.
4. Counter weight has to be adjusted for every setting.

(ii) Solenoid type relay. Fig shows the schematic arrangement


of a solenoid type relay. It consists of a solenoid and movable iron
plunger arranged as shown. Under normal operating conditions,
the current through the relay coil C is such that it holds the plunger by
gravity or spring in the position shown. However, on the occurrence of a
fault, the current through the relay coil becomes more than the pickup value,
causing the plunger to be attracted to the solenoid. The upward movement
of the plunger closes the trip circuit, thus opening the circuit breaker and
disconnecting the faulty circuit.
Operation of Solenoid type relay.
During the normal operation the current in solenoid coil is not sufficient enough to pull the plunger up
by magnetic force, whereas on overcurrent condition (Current exceeds pickup value) the magnetic
pull of the solenoid coil overcomes the restraining force on the plunger (Spring or gravity) and pulls
the plunger up to close the trip contacts. This operates the relay circuit causing the opening of the CB.

(iii) Balanced beam type relay. Fig. shows


the schematic arrangement of a balanced beam type
relay. It consists of an iron armature fastened to a
balance beam. Under normal operating conditions,
the current through the relay coil is such that the beam
is held in the horizontal position by the spring. However,
when a fault occurs, the current through the relay
coil becomes greater than the pickup value and
the beam is attracted to close the trip circuit. This
causes the opening of the circuit breaker to isolate
the faulty circuit.
Induction Relays
Electromagnetic induction relays operate on the principle of induction motor and are widely used for
protective relaying purposes involving a.c. quantities. They are not used with d.c. quantities owing to
the principle of operation. An induction relay essentially consists of a pivoted aluminium disc placed
in two alternating magnetic fields of the same frequency but displaced in time and space. The torque
is produced in the disc by the interaction of one of the magnetic fields with the currents induced in the
disc by the other.

To understand the production of torque in an induction relay, refer to the elementary arrangement
shown in Fig. (i). The two a.c. fluxes ɸ2 and ɸ1 differing in phase by an angle α induce e.m.f.s’ in the
disc and cause the circulation of eddy currents i2 and i1 respectively. These currents lag behind their
respective fluxes by 900 Referring to Fig. (ii) where the two a.c. fluxes and induced currents are
shown separately for clarity,
Let ɸ1= ɸ1max sin ωt
dɸ1 dɸ1max sin ωt
ɸ2 = ɸ2 max sin ωt + αi1 α α ∝ ɸ1max cos ω t
dt dt

d ɸ2 max sin ωt + α
dɸ2 =
i2 α α ∝ ɸ2max cos ω t+α
dt dt
Fig. (ii) shows that the two forces are in opposition.
∴ Net force F at the instant considered is
F ∝ F2 − F1
F ∝ φ2 i1 − φ1 i2
F ∝ φ2max sin (ω t + α) φ1max cos ω t − φ1max sin ωt φ2max cos (ω t + α)
F ∝ φ1max φ2max [sin (ω t + α) cos ω t − sin ω t cos (ω t + α)]
F ∝ φ1max φ2max sin α
F ∝ φ1 φ2 sin α

The greater the phase angle α between the fluxes, the greater is the net force applied to the disc.
Obviously, the maximum force will be produced when the two fluxes are 90𝑜 out of phase.

The following three types of structures are commonly used for obtaining the phase difference in the
fluxes and hence the operating torque in induction relays :
(i) shaded-pole structure
(ii) watthour-meter or double winding structure
(iii) induction cup structure

(i) Shaded-pole structure. The general arrangement of shaded-pole structure is shown in Fig. It
consists of a pivoted aluminium disc free to rotate in the air-gap of an electromagnet. One half of
each pole of the magnet is surrounded by a copper band known as shading ring.
The alternating flux φs in the shaded portion of the poles
will, owing to the reaction of the current induced in the
ring, lag behind the flux φu in the unshaded portion by
an angle α. These two a.c. fluxes differing in phase will
produce the necessary torque to rotate the disc.
As proved earlier, the driving torque T is given by;
T ∝ φs φu sin α
Assuming the fluxes φs and φu to be proportional to
the current I in the relay coil,
T ∝ 𝐼 2 sin α
This shows that driving torque is proportional to the square of current in the relay coil.

(ii) Watthour-meter structure. This structure gets its name from the fact that it is used in watthour
meters. The general arrangement of this type of relay is shown in Fig. It consists of a pivoted
aluminium disc arranged to rotate freely between the poles of two electromagnets. The upper
electromagnet carries two windings ; the primary and the secondary. The primary winding carries the
relay current I1 while the secondary winding is connected to the winding of the lower magnet. The
primary current induces e.m.f. in the secondary and so circulates a current I2 in it. The flux φ2 induced
in the lower magnet by the current in the secondary winding of the upper magnet will lag behind φ1 by
an angle α. The two fluxes φ1and φ2 differing in phase by α will produce a driving torque on the disc
proportional to φ1φ2 sin α.
An important feature of this type of relay is that its operation can be controlled by opening or
closing the secondary winding circuit. If this circuit is opened, no flux can be set by the lower magnet
however great the value of current in the primary winding may be and consequently no torque will be
produced. Therefore, the relay can be made inoperative by opening its secondary winding circuit.

Induction Cup Relay


Induction cup relay work in same principle of induction disc relay. The basis construction of this relay
is just like four poles or eight pole induction motor. The number of poles in the protective relay
depends upon the number of winding to be accommodated.
Actually when any one replaces disc of induction relay by a aluminium cup, the inertia of rotating
system of relay is significantly reduced. Due to low mechanical inertia, the operating speed of
induction cup relay is much higher than that of induction disc relay. Moreover, projected pole system
is designed to give maximum torque per VA input.
Construction of Induction Cup Relay

The magnetic system of the relay is constructed by attaching numbers of circular cut steel sheets. The
magnetic pole are projected in the inner periphery of these laminated sheets.
The field coils are wound on these laminated poles. The field coil of two opposite facing poles are
connected in series.
The aluminium cup or drum, fitted on a laminated iron core is carried by a spindle whose ends fit in
jewelled cups or bearings. The laminated magnetic field is provided on inside the cup or drum to
strengthen the magnetic field cutting the cup.

Working Principle of Induction Cup Relay

The working principle of induction cup relay, is same as the induction motor. A rotating magnetic
field is produced by different pairs of field poles. In four poles design both pair of poles are supplied
from same current transformer’s secondary, but phase difference between the currents of two pole
pairs is 90 degree; This is done by inserting an inductor in series with coil of one pole pair, and by
inserting a resistor in series with coil of another pole pair.
The rotating magnetic field induces current in the aluminium drum or cup. As per working principle
of induction motor, the cup starts rotating in the direction of rotating magnetic field, with a speed
slightly less than the speed of rotating magnetic field. The aluminium cup is attached with a hair
spring. In normal condition the restoring torque of the spring is higher than deflecting torque of the
cup. So there is no movement of the cup. But during faulty condition of system, the current through
the coil is quite high, hence, deflecting torque produced in the cup is much higher than restoring
torque of spring, hence the cup start rotating as rotor of induction motor. The contacts attached to the
moving of the cup to specific angle of rotation.

Thermal Relay
The basic working principle of thermal relay is that, when a bimetallic strip is heated up by a heating
coil carrying over current of the system, it bends and makes normally open contacts.

Construction of Thermal Relay

The thermal relay construction is quite simple. This relay is constructed with important parts like
bimetallic strips, heating coils & the CT.

The current transformer (CT) in this relay simply supplies the flow of current to the heater coils. So
the heater coil’s thermal energy will heat the bimetallic strips where these strips are made using
different materials like steel & the alloy of nickel. These materials have maximum steel resistivity &
they are also free from aging of thermal.

In the above relay, an insulated liver arm is simply connected to the trip coil through the bimetallic
strips & the spring. The strain of the spring is changed with the help of the sector-model plate.
Once the system is in normal operating condition, then the spring will remain straight. So when any
fault takes place on the system, then the bimetallic spring will be heated & bends. The strain of the
spring will release to trip the contacts of the relay. So the relay contact will energize the trip circuit
die to which the circuit breaker contacts close. Therefore, the system remains secure.

Working Principle of Thermal Relay

The thermal relay working principle is that whenever a bimetallic strip in the thermal relay is heated
up through a heating coil then it bends & makes normally open (NO) contacts.

Once the motor works normally, then the thermal relay’s thermal element will not produce sufficient
heat to make the protection function operate & its normally closed (NC) contact will keep closed
condition. Once the motor is overloaded, the thermal element in the relay will produce sufficient heat
to make the protection function perform & its normally closed (NC) contact will be broken to make
the electric motor lose power throughout the control circuit to guard the electrical motor. Once
troubleshooting is done, then this relay must be reset before the electric motor is restarted.
Static overcurrent relay

The current derived from the main CT is feed to the input transformer which gives a proportional
output voltage. The input transformer has an air gap in the iron core to give linearity in the current
voltage relationship up to the highest value of current expected, and is provided with taping on its
secondary to obtain different current settings. The output voltage is then rectified and then filtered at a
single stage to avoid undesirable time delay in filtering so as to excurse high speed of operation. A
zener diode is also incorporated in the circuit to limit the rectified voltage to safe values even when
the input current is very high under fault conditions.
A fixed portion of the rectified filtered voltage is compared against a preset pick-up value by a level
detector and if exceeds the pick-up value, a signal through an amplifier is given to the output device
which issues the trip signal.
Advantages:
1) Low power required, hence less burden.
2) No motional parts hence bouncing, friction, erosion, arcing etc eliminated.
3) Not affected by gravity, may be used in any position.
4) Improved selectivity as resetting and over shoot times are reduced.
5) Lower operating times.
6) One static relay can be used for multiple purposes.
7) Higher torque /weight ratio.
8) Compact.
9) Good discriminating characteristics and reliability.
10) Suitable for reliable remote operation with PLCC.
11) Can be programmed as required.
Disadvantages of static over current relay:
1) Affected by voltage transients.
2) Affected by electrostatic discharges.
3) Sensitive to temperature.
4) Auxiliary power supply is needed.
5) Higher skilled manpower required to handle/program/install.
6) Operating characteristics may be affected by operation of output device.
7) Delicate construction.

Comparison between Electromechanical Relay and Static Relay.

Sr. No. Electromechanical Relay Static Relay


1 Its accuracy is very high Its accuracy is comparatively low
2 Power consumption is high Power consumption is low
3 There are moving parts in this relay. There are no moving parts in this relay
4 Its operating time is comparatively high. Its operating time is very small.
5 It needs more space. These are compact hence need less space.
6 Remote backup and monitoring is not Remote backup and monitoring is possible.
possible.
7 Its operation can be affected by vibrations Its operation cannot be affected by vibrations
and shocks. and shocks.
8 It is not affected by temperature changes. It is very much affected by temperature
changes.
9 Construction is robust. Construction is delicate.
10 These are affected by gravity. These are not affected by gravity
11 Lower torque / weight ratio Higher torque / weight ratio
12 Auxiliary power supply is not needed. Auxiliary power supply is needed.
13 Not affected by voltage transients.. Affected by voltage transients.
14 Cannot be programmed. Can be programmed as per requirement.

Over current relay with time-current characteristics:-


1. Definite time over current relay: Operating time is constant,
the relays operates after a predetermined time when the current exceeds
the pickup value irrespective of the current magnitude.
2. Instantaneous over current relay: The relay operates instantly when
Current exceeds pick-up value. No intentional time delay
3. Inverse time over current relay: The operating time depends on
magnitude of operating current as shown in the figure. Higher the
magnitude of current, lower is the operating time.
The characteristic can be very inverse or extremely inverse
as shown in the figure.
4. Inverse definite minimum time overcurrent (I.D.M.T.) relay:
Inverse time characteristics at lower value of fault current and
definite time characteristics at higher values of fault current.

Difference the between definite characteristics and inverse characteristics of relays.


The difference between the definite and inverse characteristics in respect
is relays is that the Definite time relays operate after a predetermined time
when the current exceeds the pickup value irrespective of the current
magnitude whereas the Inverse time relays operate in similar manner but
the operating time depends on the current magnitude. Higher the
magnitude lower will be the operating time.

Microprocessor based over current relay:


The ac voltage proportional to the load current is converted in to dc through a precision rectifier. Thus
the microprocessor accepts d. c. voltage proportional to the load current. The schematic diagram is
shown in the figure. The output of rectifier is fed to the multiplexer. The output of multiplexer is fed
to the A/D converter to obtain the signal in digital form. The A/D converter ADC 0800 has been used
for this purpose.
The microprocessor sends signal to the ADC for starting the conversion. The microprocessor reads the
end of conversion signal to examine whether the conversion is over or not. As soon as conversion is
over, the microprocessor reads the current signal in digital form and then compares it with the pickup
value. The microprocessor first determines the magnitude of the fault current and then selects the
corresponding time of operation from the look up table. Then it goes in delay subroutine and sends a
trip signal to the circuit breaker after the predetermined time delay.

OR

The inputs from the power system through CTs and PTS are received by the analog Input receiver;
they are sampled simultaneously or sequentially at uniform time intervals. They are then converted
into digital form through A/D converter and transferred to micro-processor. Digital signals are in the
form of coded square pulses which represent discrete data. The signals are fed to micro-processor
which is being set with the recommended values, compares the dynamic inputs and decides
accordingly to generate trip/alarm signal to the output device.

Advantages of microprocessor based overcurrent relay:


1) Programmable Features
2) Superior
3) Economical
4) Compact units
5) More Reliable in operation
6) More flexible
7) Improved performance over conventional types
8) They can display values of current, voltage etc digitally
9) Ability to combine more protective and monitoring function in a single relay.
10) High speed

Distance or Impedance Relays


The operation of the relays discussed so far depended upon the magnitude of current or power in the
protected circuit. However, there is another group of relays in which the operation is governed by the
ratio of applied voltage to current in the protected circuit. Such relays are called distance or
impedance relays. In an impedance relay, the torque produced by a current element is opposed by the
torque produced by a voltage element. The relay will operate when the ratio V/I is less than a
predetermined value. Fig. illustrates the basic principle of operation of an impedance relay. The
voltage element
of the relay is excited through a potential transformer (P.T.) from the line to be protected. The current
element of the relay is excited from a current transformer (C.T.) in series with the line. The portion
AB of the line is the protected zone. Under normal operating conditions, the impedance of the
protected zone is ZL. The relay is so designed that it closes its contacts whenever impedance of the
protected section falls below the pre-determined value i.e. ZL in this case Now suppose a fault occurs
at point F1 in the protected zone. The impedance Z (= V/I) between the point where the relay is
installed and the point of fault will be less than ZL and hence the relay operates. Should the fault occur
beyond the protected zone (say point F2), the impedance Z will be greater than ZL and the relay does
not operate.

Types of distance relay


A distance or impedance relay is essentially an ohmmeter and operates whenever the impedance of
the protected zone falls below a pre-determined value. There are two types of distance relays in use
for the protection of power supply, namely ;
(i) Definite-distance relay which operates instantaneously for fault up to a pre-determined distance
from the relay.
(ii) Time-distance relay in which the time of operation is proportional to the distance of fault from the
relay point. A fault nearer to the relay will operate it earlier than a fault farther away from the relay. It
may be added here that the distance relays are produced by modifying either of two types of basic
relays; the balance beam or the induction disc.

(i) Definite-distance relay


Fig shows the schematic arrangement of a definite-distance type impedance relay. It consists of a

pivoted beam F and two electromagnets energised respectively by a current and voltage transformer
in the protected circuit. The armatures of the two electromagnets are mechanically coupled to the
beam on the opposite sides of the fulcrum. The beam is provided with a bridging piece for the trip
contacts. The relay is so designed that the torques produced by the two electromagnets are in the
opposite direction.
Operation. Under normal operating conditions, the pull due to the voltage element is greater than that
of the current element. Therefore, the relay contacts remain open. However, when a fault occurs in the
protected zone, the applied voltage to the relay decreases whereas the current increases. The ratio of
voltage to current (i.e. impedance) falls below the pre-determined value. Therefore, the pull of the
current element will exceed that due to the voltage element and this causes the beam to tilt in a
direction to close the trip contacts.
Advantages:
1. System is economical
2. High speed of interruption
3. Suitable for very long and high voltage transmission lines.
4. No problem of pilot wires.
Time-Distance Impedance Relay
A time-distance impedance relay is one which automatically adjusts its operating time according to
the distance of the relay from the fault point
i.e. Operating time, T ∝ V/I
∝Z
∝ distance
Construction. Fig. shows the schematic arrangement of a typical induction type time distance
impedance relay. It consists of a current driven induction element similar to the double winding type
induction overcurrent relay. The spindle carrying the disc of this element is connected by means of a
spiral spring coupling to a second spindle which carries the bridging piece of the relay trip contacts.
The bridge is normally held in the open position by an armature held against the pole face of an
electromagnet excited by the voltage of the circuit to be protected.

Operation. Under normal load conditions, the pull of the armature is more than that of the
induction element and hence the trip circuit contacts remain open. However, on the occurrence of a
short-circuit, the disc of the induction current element starts to rotate at a speed depending upon the
operating current. As the rotation of the disc proceeds, the spiral spring coupling is wound up till the
tension of the spring is sufficient to pull the armature away from the pole face of the voltage-excited
magnet. Immediately this occurs, the spindle carrying the armature and bridging piece moves rapidly
in response to the tension of the spring and trip contacts are closed. This opens the circuit breaker to
isolate the faulty section. The speed of rotation of the disc is approximately proportional to the
operating current, neglecting the effect of control spring. Also the time of operation of the relay is
directly proportional to the pull of the voltage-excited magnet and hence to the line voltage V at the
point where the relay is connected. Therefore, the time of operation of relay would vary as V/I i.e. as Z
or distance.

Directional overcurrent relay:


Construction:
It consists of two units:
i) Non-directional Over-current unit
ii) Directional power unit
The directional unit consists of upper electromagnet excited from potential transformer
(PT), so it produces flux proportional to voltage. The lower electromagnet is excited from current
transformer (CT), so it produces flux proportional to current. These two electromagnets are placed at
the edge of aluminium disc. Eddy currents are produced in the disc and their interaction with the
fluxes causes torque to rotate the disc. The coils on electromagnets are so placed that the torque is
produced only for a particular direction of power flow. If the power flow is reversed, there will not be
torque and so no rotation of the disc. The disc carries an arm to close the contacts when it rotates
through some set angle.
The non-directional over-current unit also has upper and lower electromagnets. The upper
electromagnet has two windings: primary is excited from CT as shown in the figure, and the
secondary winding is connected to coil on lower electromagnet through contacts of directional unit, as
shown in the figure. Thus when directional unit contacts remain open, the over-current unit remains
unenergized.

.
Operation: Under normal operating conditions, power flows in the normal direction in the circuit.
For this direction of power flow, the directional power relay does not operate and overcurrent element
remains un energized.
However, when a short circuit occurs, and the current or the power flows in the reverse direction, the
disc of the directional unit rotates to bridge the fixed contacts 1 & 2. This completes the circuit for
over current element. The disc of this element rotates and moving contact attached to it closes the trip
circuit. This operates circuit breaker which isolates the faulty section.
Induction type over-current relay:
Fig. shows the important constructional details of a typical non directional induction type overcurrent
relay. It consists of a metallic (aluminium) disc which is free to rotate in between the poles of two
electromagnets. The upper electromagnet has a primary and a secondary winding. The primary is
connected to the secondary of a C.T. in the line to be protected and is tapped at intervals. The tapings
are connected to a plug-setting bridge by which the number of active turns on the relay operating coil
can be varied, thereby giving the desired current setting. The secondary winding is energised by
induction from primary and is connected in series with the winding on the lower magnet. The
controlling torque is provided by a spiral spring.
The spindle of the disc carries a moving contact which bridges two fixed contacts (connected to trip
circuit) when the disc rotates through a pre-set angle. This angle can be adjusted to any value between
0o and 360o. By adjusting this angle, the travel of the moving contact can be adjusted and hence the
relay can be given any desired time setting.

Operation. The driving torque on the aluminium disc is set up due to the induction principle . This
torque is opposed by the restraining torque provided by the spring.

Under normal operating conditions, restraining torque is greater than the driving torque produced by
the relay coil current. Therefore, the aluminium disc remains stationary. However, if the current in the
protected circuit exceeds the pre-set value, the driving torque becomes greater than the restraining
torque. Consequently, the disc rotates and the moving contact bridges the fixed contacts when the disc
has rotated through a pre-set angle. The trip circuit operates the circuit breaker which isolates the
faulty section.

Induction Type Reverse Power Relay

Construction:- Fig shows the essential parts of a typical induction type directional power relay. It
consists of an aluminium disc which is free to rotate in between the poles of two electromagnets. The
upper electromagnet carries a winding (called potential coil) on the central limb which is connected
through a potential transformer (P.T.) to the circuit voltage source. The lower electromagnet has a
separate winding (called current coil) connected to the secondary of C.T. in the line to be protected.
The current coil is provided with a number of tapings connected to the plug setting bridge (not shown
for clarity). This permits to have any desired current setting. The restraining torque is provided by a
spiral spring.
The spindle of the disc carries a moving contact which bridges two fixed contacts when the disc has
rotated through a pre-set angle. By adjusting this angle, the travel of the moving disc can be adjusted
and hence any desired time-setting can be given to the relay.
Operation:- The flux φ1 due to current in the potential coil will be nearly 90º lagging behind the
applied voltage V. The flux φ2 due to current coil will be nearly in phase with the operating current
I.The interaction of fluxes φ1 and φ2 with the eddy currents induced in the disc produces a driving
torque given by : T ∝ φ1 φ2 sin α
Since φ1 ∝ V, φ2 ∝ I and α = 90 − θ
∴ T ∝ V I sin (90 − θ)
T ∝ V I cos θ
T ∝ power in the circuit
It is clear that the direction of driving torque on the disc depends upon the direction of power flow in
the circuit to which the relay is associated. When the power in the circuit flows in the normal
direction, the driving torque and the restraining torque (due to spring) help each other to turn away the
moving contact from the fixed contacts. Consequently, the relay remains inoperative. However, the
reversal of current in the circuit reverses the direction of driving torque on the disc. When the
reversed driving torque is large enough, the disc rotates in the reverse direction and the moving
contact closes the trip circuit. This causes the operation of the circuit breaker which disconnects the
faulty section.

Differential relay:
A differential relay is one that operates when the phasor difference of two or more similar electrical
quantities exceeds a pre-determined value. Thus a current differential relay is one that compares the
current entering a section of the system with the current leaving the section. Under normal operating
conditions, the two currents are equal but as soon as a fault occurs, this condition no longer applies.
The difference between the incoming and outgoing currents is arranged to flow through the operating
coil of the relay. If this differential current is equal to or greater than the pickup value, the relay will
operate and open the circuit breaker to isolate the faulty section. It may be noted that almost any type
of relay when connected in a particular way can be made to operate as a differential relay. In other
words, it is not so much the relay construction as the way the relay is connected in a circuit that makes
it a differential relay. There are two fundamental systems of differential or balanced protection viz.
(i) Current balance protection (ii) Voltage balance protection
Current differential relay:
Figure shows an arrangement of an overcurrent relay connected to operate as a differential relay for
alternator protection under fault condition. A pair of identical current transformers are fitted on either
end of the section to be protected (alternator winding in this case). The secondaries of CT’s are
connected in series in such a way that they carry the induced currents in the same direction. The
operating coil of the overcurrent relay is connected across the CT secondary circuit. This differential
relay compares the current at the two ends of the alternator winding.
Under normal operating conditions, suppose the alternator winding carries a normal current then the
current in the two secondaries of CTs are equal. These currents will only circulate between the two
CTs and no current will flow through relay coil. If a fault occurs on alternator winding, the two

secondary currents will not be equal and resultant current flows through relay coil, causing the relay
to operate.

Disadvantages
(i) The impedance of the pilot cables generally causes a slight difference between the currents at the
two ends of the section to be protected. If the relay is very sensitive, then the small differential current
flowing through the relay may cause it to operate even under no fault conditions.
(ii) Pilot cable capacitance causes incorrect operation of the relay when a large through current flows.
(iii) Accurate matching of current transformers cannot be achieved due to pilot circuit impedance.

Voltage Balance Differential Relay


Fig. shows the arrangement of voltage balance protection. In this scheme of protection, two similar
current transformers are connected at either end of the element to be protected (e.g. an alternator
winding) by means of pilot wires. The secondaries of current transformers are connected in series
with a relay in such a way that under normal conditions, their induced e.m.f.s’ are in opposition.
Under healthy conditions, equal currents (I1 = I2) flow in both primary windings. Therefore, the
secondary voltages of the two transformers are balanced against each other and no current will flow
through the relay operating coil. When a fault occurs in the protected zone, the currents in the two
primaries will differ from one another (i.e. I1 is not eqall to I2) and their secondary voltages will no
longer be in balance. This voltage difference will cause a current to flow through the operating coil of
the relay which closes the trip circuit.
Disadvantages
The voltage balance system suffers from the following drawbacks :
(i) A multi-gap transformer construction is required to achieve the accurate balance between
current transformer pairs.
(ii) The system is suitable for protection of cables of relatively short lengths due to the capacitance of
pilot wires. On long cables, the charging current may be sufficient to operate the relay even if a
perfect balance of current transformers is attained.
Mho Relay

A mho Relay is a high-speed relay and is also known as the admittance relay. In this relay operating
torque is obtained by the volt-amperes element and the controlling element is developed due to the
voltage element. It means a mho relay is a voltage controlled directional relay.

Construction

A mho relay using the induction cup structure is shown in the figure below. The operating torque is
developed by the interaction of fluxes due to pole 2, 3, and 4 and the controlling torque is developed
due to poles 1, 2 and 4.

If the spring controlling effect is indicated by –K3, the torque equation becomes,

Where θ and τ are defined as positive when I lag behind V. At balance point, the net torque is zero,
and hence the equation becomes
If the spring controlled effect is neglected i.e., k3 = 0.

Operating Characteristic of Mho Relay

The operating characteristic of the mho relay is shown in the figure below. The diameter of the circle
is practically independent of V and I, except at a very low magnitude of the voltage and current when
the spring effect is considered, which causes the diameter to decrease. The diameter of the circle is

expressed by the equation as ZR= K1 / K2 = ohmic setting of the relay.

The relay operates when the impedance seen by the relay within the circle. The operating
characteristic showed that circle passes through the origin, which makes the relay naturally
directional. The relay because of its naturally directional characteristic requires only one pair of
contacts which makes it fast tripping for fault clearance and reduces the VA burdens on the current
transformer.

The impedance angle of the protected line is normally 60º and 70º which is shown by line OC in the
figure. The arc resistance R is represented by the length AB, which is horizontal to OC from the
extremity of the chord Z. By making the τ equal to, or little less lagging than θ, the circle is made to
fit around the faulty area so that the relay is insensitive to power swings and therefore particularly
applicable to the protection of long or heavily loaded lines.
For a given relay the τ is constant, and the admittance phasor Y will lie on the straight line. The
characteristic of mho relays on the admittance diagram is, therefore, a straight line and is shown in the
figure below.

Mho relay is suitable for EHV/UHV heavily loaded transmission lines as its threshold characteristic in
Z-plane is a circle passing through the origin, and its diameter is ZR. Because of this, the threshold
characteristic is quite compact enclosing faulty area compactly and hence, there is lesser chance to
operate during power swing and also it is directional.

Applications

 It is used in the protection of UHV/EHV transmission lines

 It is used to protect long transmission lines because of its power swings.

 It is used to protect series compensated and uncompensated transmission lines to determine


the location of the faults.

 It is used to determine impedance with a directional element based on the type of fault.

You might also like