KEMBAR78
Costing Elements | PDF | Offer And Acceptance | Cost
0% found this document useful (0 votes)
287 views3 pages

Costing Elements

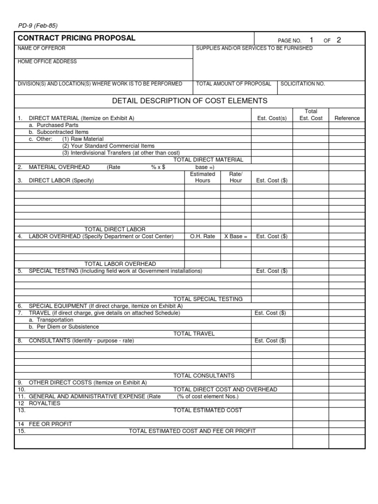
This document is a contract pricing proposal form containing instructions for how to complete the form. It requests identifying information about the offeror and the contract. It outlines 16 cost elements to estimate including direct material, direct labor, indirect costs, other direct costs, general/administrative expenses, and fee or profit. It requests supporting schedules and documentation to substantiate the estimates for each cost element. The purpose is to provide a vehicle for the offeror to submit a proposed price breakdown to the Laboratory for review and analysis.

Uploaded by

IsHq Vishq
Copyright
© Attribution Non-Commercial (BY-NC)
We take content rights seriously. If you suspect this is your content, claim it here.
Available Formats
Download as PDF, TXT or read online on Scribd
0% found this document useful (0 votes)
287 views3 pages

Costing Elements

This document is a contract pricing proposal form containing instructions for how to complete the form. It requests identifying information about the offeror and the contract. It outlines 16 cost elements to estimate including direct material, direct labor, indirect costs, other direct costs, general/administrative expenses, and fee or profit. It requests supporting schedules and documentation to substantiate the estimates for each cost element. The purpose is to provide a vehicle for the offeror to submit a proposed price breakdown to the Laboratory for review and analysis.

Uploaded by

IsHq Vishq
Copyright
© Attribution Non-Commercial (BY-NC)
We take content rights seriously. If you suspect this is your content, claim it here.
Available Formats
Download as PDF, TXT or read online on Scribd
You are on page 1/ 3

PD-9 (Feb-85)

CONTRACT PRICING PROPOSAL


NAME OF OFFEROR HOME OFFICE ADDRESS

PAGE NO. 1 SUPPLIES AND/OR SERVICES TO BE FURNISHED

OF

DIVISION(S) AND LOCATION(S) WHERE WORK IS TO BE PERFORMED

TOTAL AMOUNT OF PROPOSAL

SOLICITATION NO.

DETAIL DESCRIPTION OF COST ELEMENTS


1. DIRECT MATERIAL (Itemize on Exhibit A) a. Purchased Parts b. Subcontracted Items c. Other: (1) Raw Material (2) Your Standard Commercial Items (3) Interdivisional Transfers (at other than cost) TOTAL DIRECT MATERIAL MATERIAL OVERHEAD (Rate %x$ base =) Estimated Rate/ DIRECT LABOR (Specify) Hours Hour Est. Cost(s) Total Est. Cost Reference

2. 3.

Est. Cost ($)

4.

TOTAL DIRECT LABOR LABOR OVERHEAD (Specify Department or Cost Center)

O.H. Rate

X Base =

Est. Cost ($)

5.

TOTAL LABOR OVERHEAD SPECIAL TESTING (Including field work at Government installations)

Est. Cost ($)

6. 7.

8.

TOTAL SPECIAL TESTING SPECIAL EQUIPMENT (If direct charge, itemize on Exhibit A) TRAVEL (if direct charge, give details on attached Schedule) a. Transportation b. Per Diem or Subsistence TOTAL TRAVEL CONSULTANTS (Identify - purpose - rate)

Est. Cost ($)

Est. Cost ($)

TOTAL CONSULTANTS 9. OTHER DIRECT COSTS (Itemize on Exhibit A) 10. 11. GENERAL AND ADMINISTRATIVE EXPENSE (Rate 12 ROYALTIES 13. 14 FEE OR PROFIT 15. TOTAL DIRECT COST AND OVERHEAD (% of cost element Nos.) TOTAL ESTIMATED COST

TOTAL ESTIMATED COST AND FEE OR PROFIT

PD-9 (Feb-85)

This proposal is submitted for use in connection with and in response to RFP NO. __________________________________________ __________________________________________________________________________and reflects our best estimates as of this date. Describe RFP, etc.

TYPE NAME AND TITLE NAME OF FIRM

SIGNATURE DATE OF SUBMISSION

Cost Element No.

EXHIBIT A - SUPPORTING SCHEDULE Item Description

Est. Cost ($)

PD-9 (Feb-85)

INSTRUCTIONS FOR COMPLETION OF A CONTRACT PRICING PROPOSAL


The Contract Pricing Proposal form provides a vehicle for the offeror to submit to the Laboratory a pricing proposal of estimated costs by contract line time with supporting information. When more than one contract line item is proposed, a separate Contract Pricing Proposal Form shall be completed and submitted for each item, plus a form consolidating all contract line item submissions. In addition to the specific information required by this form, the offeror is expected to submit any additional data, supporting schedules, or substantiations which are reasonably required for the conduct of an appropriate review and analysis of the proposal. When attachment of supporting cost or pricing data is impracticable, the data will be described and made available to the Laboratory or its representative upon request. By submission of this proposal, the offeror grants to the Laboratory, or its authorized representative, the right to examine for the purpose of verifying the cost or pricing data submitted or identified, those books, records, documents, and other supporting data which will permit adequate evaluation of such cost or pricing data. This right may be exercised in connection with any negotiations prior to contract award. As part of the specific information required by this form, the offeror must submit any information reasonably required to explain the offeror estimating process, including: (a) the judgmental factors s applied and the methods used in projecting costs from known data, and (b) the contingencies used by the offeror in its proposed price. Depending on the offeror system, breakdowns shall be provided for the applicable cost elements: s Materials - Provide a price summary of individual material quantities being proposed and the basis for pricing (vendor quotes, invoice prices, etc.). For subcontracted items include a description of services being procured, subcontractor name, subcontract value, and basis for determining price to be s reasonable. Direct Labor - Provide a time phased (e.g., monthly, quarterly, etc.) breakdown of labor hours, rates, and cost by appropriate category, and furnish basis for the estimates. Indirect Costs - Indicate the rates being used and provide an appropriate explanation as to how the rates were computed and applied. When agreement has been reached with Government representatives on the use of forward pricing rates, describe the nature of the agreement. Other Costs - List all other costs not otherwise included in the categories described above, and provide the basis used in developing the proposed amounts. Facilities Capital Cost of Money - When the offeror elects to claim Facilities Capital Cost of Money as an allowable cost, the offeror must submit Form CASB-CMF and show the calculation of the proposed amount.

You might also like