KEMBAR78
Elect 1 | PDF
0% found this document useful (0 votes)
19 views1 page

Elect 1

The document outlines an electrical site layout including various components such as a soakaway, septic tank, overhead tank, filtration unit, and generator. It specifies the use of perimeter lighting with 100W escort bulkhead fittings at 6-meter intervals. Additionally, it includes details about the consultants, client, and relevant dates for the project.

Uploaded by

tuafi
Copyright
© © All Rights Reserved
We take content rights seriously. If you suspect this is your content, claim it here.
Available Formats
Download as PDF, TXT or read online on Scribd
0% found this document useful (0 votes)
19 views1 page

Elect 1

The document outlines an electrical site layout including various components such as a soakaway, septic tank, overhead tank, filtration unit, and generator. It specifies the use of perimeter lighting with 100W escort bulkhead fittings at 6-meter intervals. Additionally, it includes details about the consultants, client, and relevant dates for the project.

Uploaded by

tuafi
Copyright
© © All Rights Reserved
We take content rights seriously. If you suspect this is your content, claim it here.
Available Formats
Download as PDF, TXT or read online on Scribd
You are on page 1/ 1

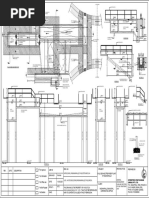
L6 L6 L6 L6 L6 L6

Soakaway/ L4 L4
Sceptic tank
Overhead
tank
Filtration Unit L6

L4
No of
Circuit
L4

L6 1
D IN L4
Pum Clear Water
LOCK Room 2
Tank
L4
L6
3
L4

Drain duct 4
L4

L6

LIGHTING KIOSK L4 L4

L6

Tank

Sedimentation
L6

L6

L6

L4

Generator L4
Disiel Transformer
L6

Plantform Security Soakaway/


Sceptic tank Tank
Room
L6 L6 L6 L6

Gate

ELECTRICAL SITE LAYOUT


PERIMETER LIGHTING WITH
100W ESCORT BULK HEAD FITTING AT 6M INTERVAL

CONSULTANTS: CLIENT: PRO CT S LL TOWN DR WING TITL Desi ned ULUS ST P


Dra n ULUS
PL W SS NG L CTRIC L SIT Traced ULUS
W S
SURW SH PFOR L OUT Checked TUND
Date OCT
Water Civil echanical n ineers
Surveyors and Contractor ST T DR WING NO SC L Ref No

Date
OFFIC OPPOSIT GT NK RITISH RIC inistry of Water WS WTP D
ark ade y Revision RO D OS NORTH PL T U ST T
Resources Plateau

You might also like