KEMBAR78
MR - Kishor Home | PDF
0% found this document useful (0 votes)
36 views1 page

MR - Kishor Home

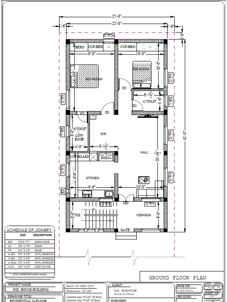
The document is a ground floor plan for a residential building with a build-up area of 22' x 42'. It includes a schedule of joinery detailing the sizes and descriptions of doors and windows. The plan is prepared for a client named Mr. Kishor and includes engineering details and contact information for the builder.

Uploaded by

Pravin Ken
Copyright
© © All Rights Reserved
We take content rights seriously. If you suspect this is your content, claim it here.
Available Formats
Download as PDF, TXT or read online on Scribd
0% found this document useful (0 votes)
36 views1 page

MR - Kishor Home

The document is a ground floor plan for a residential building with a build-up area of 22' x 42'. It includes a schedule of joinery detailing the sizes and descriptions of doors and windows. The plan is prepared for a client named Mr. Kishor and includes engineering details and contact information for the builder.

Uploaded by

Pravin Ken
Copyright
© © All Rights Reserved
We take content rights seriously. If you suspect this is your content, claim it here.
Available Formats
Download as PDF, TXT or read online on Scribd
You are on page 1/ 1

25'-0"

22'-0"
1'-6" 1'-6"

1'-6"
U-W2a

BERO CUP-BRD CUP-BRD

9'-9" 10'-0"

10'-0"
BED ROOM
14'-1012"

U-W4
BED ROOM

D3
6'-712"
U-W4

4'-6"

V-EX
C-TOILET
D2

D2 D3

A-TOILET
V-EX

8'-0"

42'-0"
U-W4
LOW
DIN
ROOF

4'-0" 6'-112"
HALL
18'-112"
3'
CUP-BOARD POOJA
U-W3

9'-9"

U-W4

KITCHEN

9'-9" 10'-0"
EX

U-W3 MD U-W4
6'-0"

6'-0"

TOI. VERANDA

SCHEDULE OF JOINERY: GATE


SIZE DESCRIPTION

MD 3'6"X 7'3" MAIN DOOR


D2 2'6" X 7'0" DOOR
D3 3'6" X 7'0" DOOR
U-W4 4'0" X 4'0" UPVC.WINDOW
U-W3 3'6" X 3'0" UPVC.WINDOW
U-W2a 2'6" X 4'0" UPVC.WINDOW
V-EX 2'6" X 2'0" VENT.EX.FAN

* UPVC.WINDOW (with mesh)


GROUND FLOOR PLAN
PROJECT NAME: BUILD-UP AREA (GF) CLIENT: DWG NO:
SCALE: SHEET:
1:100 A3
IND. HOUSE BUILDING Dimension : 22' x42' Mr. KISHOR TK-ADR-DWG-001

Home @ Athiyur SHEET NO:


DRAWING TITLE: Column size: 9"x12" (6 Nos) REVISION: 1 OF 1

RESIDENTIAL-G-FLOOR Column size: 9"x9" (9 Nos) ENGINEER: -


RADHAMOHAN ENGINEERS (Builders) UNIT:
DRAWN BY: CHECKED BY: DATE:
05/04/2025
E-MAIL : method.mohan@gmail.com FEET - INCHES
M R R K CONTACT : +91- 9789335077

You might also like