KEMBAR78
ID501 | PDF | Architectural Elements | Architectural Design
0% found this document useful (0 votes)
51 views1 page

ID501

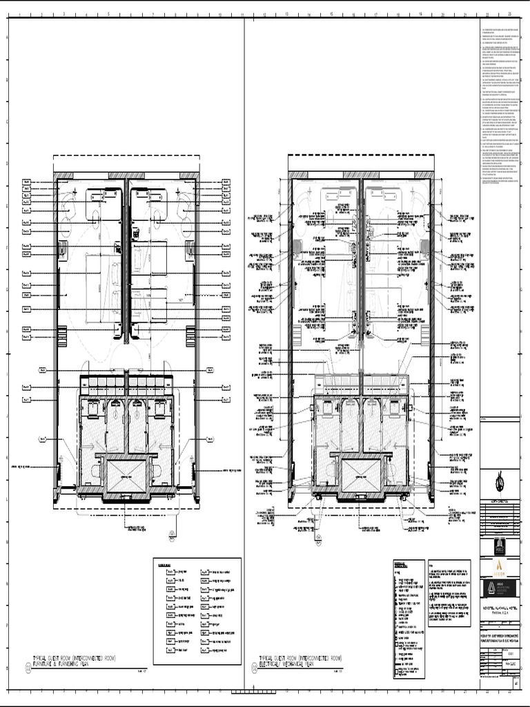
The document outlines specifications and guidelines for construction drawings related to the Novotel Al-Khalil Hotel project in Makkah, K.S.A. It emphasizes the importance of verifying dimensions on-site, obtaining approvals for shop drawings, and coordinating with various architectural and engineering disciplines. Additional notes address the installation of electrical fixtures, lighting, and structural supports, along with references to related design documents and timelines.

Uploaded by

Fred Prz
Copyright
© © All Rights Reserved
We take content rights seriously. If you suspect this is your content, claim it here.
Available Formats
Download as PDF, TXT or read online on Scribd
0% found this document useful (0 votes)
51 views1 page

ID501

The document outlines specifications and guidelines for construction drawings related to the Novotel Al-Khalil Hotel project in Makkah, K.S.A. It emphasizes the importance of verifying dimensions on-site, obtaining approvals for shop drawings, and coordinating with various architectural and engineering disciplines. Additional notes address the installation of electrical fixtures, lighting, and structural supports, along with references to related design documents and timelines.

Uploaded by

Fred Prz
Copyright
© © All Rights Reserved
We take content rights seriously. If you suspect this is your content, claim it here.
Available Formats
Download as PDF, TXT or read online on Scribd
You are on page 1/ 1

1 2 3 4 5 6 7 8 9 10 11 12 13 14 15 16 17 18 19 20 21 22 23

1. ALL DIMENSIONS SHOWN HERE ARE IN MILLIMETERS UNLESS


OTHERWISE NOTED
2. DIMENSIONS ARE TO FACE MASONRY, MASONRY OPENING OR
A FINISH FACE OF WALL UNLESS OTHERWISE NOTED. A
3. ALL DIMENSIONS TO BE VERIFIED ON SITE .
4. ALL OPENING SIZES, DIMENSIONS AND SHAPES RELATED TO
DOORS AND WINDOWS SHALL BE SITE VERIFIED (CONTRACTOR
SHALL SUBMIT ALL RELATED SHOP DRAWINGS FOR ENGINEERS
APPROVAL PRIOR TO ANY MATERIALS FABRICATION AND
DELIVERY TO SITE).
5. ALL DOORS AND WINDOWS OPENINGS SHOWN IN THE PLAN
ARE CLEAR OPENINGS.
6. ALL DRAWINGS SHOULD BE READ IN CONJUNCTION WITH
OTHER RELEVANT ARCHITECTURAL, STRUCTURAL,
MECHANICAL AND ELECTRICAL DRAWINGS AND ALL RELEVANT
SECTIONS OF THE SPECIFICATIONS.

B 7. ALL SHOP DRAWINGS, SAMPLES, CATALOG, CUTS, ETC. TO BE


APPROVED BY THE ARCHITECT BEFORE THE FINAL EXECUTION.
B
8. FOR LOCATION & ORIENTATION OF BUILDINGS REFER TO SITE
PLAN.
9. THE CONTRACTOR SHALL SUBMIT COORDINATED SHOP
DRAWINGS FOR ARCHITECT'S APPROVAL.

10. ALL LIGHTING SHOWN IN FF&E AND REFLECTED CEILING PLANS,


ELEVATIONS AND DETAILS ARE FOR INDICATIVE REFERENCE
OF COORDINATED LOCATIONS. PLEASE REFER TO LIGHTING
PACKAGE FOR FULL DETAILS & SELECTIONS.
11. ALL SOCKETS SHALL BE LOCATED AT 450MM FROM CENTER TO
FFL UNLESS OTHERWISE MARKED ON THE DRAWINGS.
12. SOCKETS IN WET AREAS SHALL BE WATERPROOF TYPE.
CONTRACTOR TO ENSURE THAT WP OUTLETS ARE SAME
C STYLE AND FINISH AS FIXTURES IN MAIN ROOMS, AND ANY C
VARIANCES IN MODEL SHALL BE APPROVED BY CLIENT.
13. ALL CHANDELIERS SHALL BE FIXED TO THE CONCRETE SLAB
ABOVE AND NOT TO THE FALSE CEILING. FIT-OUT
CONTRACTOR TO ENSURE SUFFICIENT SUPPORTS ARE IN
PLACE.
14. LIGHT SWITCHES SHOWN IN DRAWINGS ARE INDICATIVE ONLY.
15 LIGHT SWITCHES IN BATHROOM STALLS SHALL BE AT A HEIGHT
OF 1200 mm FROM FFL TO CENTER.
16. FINAL MEP FIXTURES TO BE CONFIRMED BY AMSAD
ARCHITECTURAL ASSOCIATES MEP . REFLECTED INFORMATION
IS ACCURATE AT THE TIME OF PACKAGE DEVELOPMENT AND
ALL PROVIDED INFORMATION IS REFLECTED. ANY VARIANCES
OR CHANGES TO BE COORDINATED IN SHOP DRAWING STAGE
D AND DURING SITE INSTALLATION.
17 CEILING STRUCTURE REFERENCE IS PROVIDED IN DETAIL
D
DRAWINGS FOR INDICATIVE PURPOSES ONLY. FINAL
STRUCTURAL SUPPORT TO BE DETAILED AND SPECIFIED BY
FIT-OUT CONTRACTOR.
18 PLEASE REFER TO ISSUED AMSAD ARCHITECTURAL
ASSOCIATES PREAMBLES FOR ADDITIONAL GENERAL NOTES
RELATED TO THIS PACKAGE.

E E

USB USB
J J

USB USB

J J
F USB
F
MS2

USB

MS2

J J

G G

MS2 MS2
USB USB

J J

H H

I I

WP WP
J J

EOS J EOS
J J J
WP WP WP WP
J KEY PLAN:
J

K K

MS2 MS2

CP CP
L NORTH DIRECTION L

F DETAILED DESIGN (IFC DRAWING)- R001 MAY. 2025


E DETAILED DESIGN (IFC DRAWING) APR. 2025
D REVISED MOCK-UP DETAIL DESIGN 90% FEB. 2025
C MOCK-UP DETAIL DESIGN 90% JAN. 2025
B CONCEPT DESIGN (REVISION-1) DEC. 2024
a CONCEPT DESIGN NOV. 2024
CLIENT:

M M

OPERATOR:

CONSULTANT:

N N

PROJECT TITLE:

USB
NOVOTEL AL-KHALIL HOTEL
MAKKAH, K.S.A
USB
2

LOCATION MAKKAH, K.S.A PLOT NO. 000

P BLOCK 00 P
DRAWING TITLE:

mock-uptyp.guestbedroom(interconnected)
furniture/furnishingplan&elec/mechplan
CP
NAME DRAWING No.

DESIGNED S.Z.M.
ID501
DEVELOPED A.M.S.
CHECKED M.A.S. PROJECT No.
COORDINATED
VERIFIED
M.A.H.
M.S.D.
MKH-24012
Q EOS DRAWN SCALE
Q
APPROVED DATE APRIL 2025
DETAILEDMOCK-UP
REVISED DESIGN (IFC DRAWING)-
DETAIL R001
DESIGN 90% DRWG.SIZE

A0

1 2 3 4 5 6 7 8 9 10 13 14 15 16 17 18 19 20 21 22 23

You might also like