KEMBAR78
Roof Framing Plan: Structural Specifications | PDF | Beam (Structure) | Concrete
0% found this document useful (0 votes)
20 views1 page

Roof Framing Plan: Structural Specifications

The document outlines structural specifications for a construction project, detailing requirements for splicing, concrete types, excavation depth, and safety measures. It emphasizes adherence to specific codes and standards, including ACI-318-95 and ASTM specifications. Additionally, it mandates coordination among various engineering disciplines and the importance of following construction notes and drawings.

Uploaded by

cathrine.tcsc
Copyright
© © All Rights Reserved
We take content rights seriously. If you suspect this is your content, claim it here.
Available Formats
Download as PDF, TXT or read online on Scribd
0% found this document useful (0 votes)
20 views1 page

Roof Framing Plan: Structural Specifications

The document outlines structural specifications for a construction project, detailing requirements for splicing, concrete types, excavation depth, and safety measures. It emphasizes adherence to specific codes and standards, including ACI-318-95 and ASTM specifications. Additionally, it mandates coordination among various engineering disciplines and the importance of following construction notes and drawings.

Uploaded by

cathrine.tcsc
Copyright
© © All Rights Reserved
We take content rights seriously. If you suspect this is your content, claim it here.
Available Formats
Download as PDF, TXT or read online on Scribd
You are on page 1/ 1

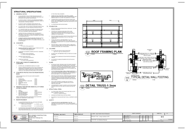
STRUCTURAL SPECIFICATIONS

A. GENERAL NOTES OF THE STRUCTURAL ENGINEER.

3. WHERE SPLICING IS REQUIRED; SLAB, BEAM, & GIRDER


1. IN THE INTERPRETATION OF THESE DRAWINGS INDICATED
REINFORCING BARS SHALL BE SLICED AT QUARTER POINT AND A
DIMENSIONS SHALL GOVERN. DISTANCES OR SIZES SHALL NOT
MINIMUM LENGTH OF 40 TIMES THE DIAMETER OF THE BAR.
BE SCALED FOR CONSTRUCTION PURPOSES.
4. COLUMN VERTICAL BARS SHALL BE SPLICED AT MID-FLOOR
2. IN CASE OF CONFLICT IN DETAILS OR DIMENSIONS BETWEEN
HEIGHT, AND A MINIMUM LENGTH OF 40D ALSO. NOT MORE THAN 2800 3200
THE ARCHITECTURAL AND ENGINEERING DRAWINGS, REFER TO
50% OF THE TOTAL NUMBER OF BARS SHALL BE SPLICED AT ANY
THE ARCHITECT FOR FINAL DECISION.
GIVEN SECTION.
3. IN CASE OF CONFLICT BETWEEN THESE DRAWING AND
5. ALL REINFORCING BARS ARE WELDABLE.
SPECIFICATIONS, THE WORKING DRAWING SHALL GOVERN.

4. ALL STRUCTURAL DETAILS UNLESS OTHERWISE SHOWN IN THE G. FOUNDATION


DRAWINGS SHALL FOLLOW CONSTRUCTION NOTE DETAILS.
1. DEPTH OF EXCAVATION FROM NATURAL GRADELINE = 1500 MM.
5. ALL CONCRETE WORK SHALL BE DONE IN ACCORDANCE WITH UNLESS IS SPECIFIED.

TUBULAR 2''x3'' TRUSS-1


TUBULAR 2''x3'' TRUSS-1
THE ACI-318-95 CODE IN SO FAR AS THEY DO NOT CONFLICT

TUBULAR 2''x3'' TRUSS-1


WITH LOCAL BUILDINGS CODE REQUIREMENTS. 2. THE DEPTH OF THE EXCAVATION INDICATED CAN BE
SHALLOWER OR DEEPER DEPENDING ON ACTUAL SITE
6. CONTRACTOR SHALL COORDINATE WITH THE ARCHITECT, CONDITION AT NO EXTRA COST TO THE OWNER UPON THE
MECHANICAL, ELECTRICAL, STRUCTURAL ENGINEER PLANS AS APPROVAL OF THE ARCHITECT.
TO THE EXACT SIZE AND LOCATION OF OPENINGS THRU FLOOR
SLAB, BEAMS AND WALLS. 3. PROVIDE 200MM Ø BOULDERS OVER THE EXCAVATED AREA AND
50 MM Ø OR SMALLER GRAVELS TO FILL UP THE VOIDS,
7. STANDARD CONSTRUCTION PROCEDURES ARE PER "NATIONAL COMPACTED.
BUILDING CODE AND NATIONAL STRUCTURAL CODE FOR
BUILDINGS" SHOULD BE STRICTLY FOLLOWED IN THE EXECUTION 4. IT SHALL BE THE DUTY AND RESPONSIBILITY OF THE
OF THE PROJECT. CONSTRUCTOR TO PROVIDE SHEET PILES, PRECAUTIONARY
MEASURES TO ENSURE SAFETY OF ADJACENT PROPERTIES AND
B. CONCRETE OCCUPANTS.

1. COLUMNS 5. PROVIDE 50 MM X 150 MM X 4200 MM LATERALLY BRACED OR


TANGUILE WOODEN SHEET PILES AROUND THE PERIMETER OF
fc = 21 MPa (3,000 psi) @ 28th DAY
THE EXCAVATED AREA, OR IT'S EQUIVALENT.
2. FOOTING, REINFORCED CONCRETE WALLS, STAIRS, NON -POST-
TENSIONED BEAMS AND GIRDERS, SLABS H. COLUMNS
fc = 21 MPa (3,000 psi) @ 28th DAY PROPERTY
1. ALL COLUMN TIES PER SET SHOULD BE SPACED LINE
3. SUSPENDED SLAB, BEAMS & GIRDERS (FOR POST- TENSIONED
MEMBERS)
fc = 28 MPa (4,000 psi) @ 28th DAY 2.
6 @ 0.05 M., 6 @ 0.10 M., REST @ 0.25 O.C.

NO PIPES SHALL BE EMBEDDED PARALLEL INSIDE ANY COLUMN


S-03 ROOF FRAMING PLAN 12 MM Ø @ 0.60 M. O.C. (FIRE WALL)
fc = 21 MPa (3,000 psi) @ STRESSING OR BEAMS 01 SCALE: 1:100mm 10 MM Ø @ 0.60 M. O.C. (FENCE)
VERTICAL BARS
4. GROUND FLOOR SLAB ON FILL 3. ALL PLANTED COLUMNS MUST BE SUPPORTED BY BEAMS OR
fc = 17 MPa (2,500 psi) @ 28th DAY GIRDERS 12 MM Ø @ 3 CHB LAYERS (FIRE WALL)
10 MM Ø @ 3 CHB LAYERS (FENCE)
5. OTHERS NOT SPECIFIED 4. ALL PLANTED COLUMNS ARE MARKED WITH DOTS IN EACH HORIZONTAL BARS
fc = 21 MPa (3,000 psi) @ 28th DAY FLOOR PLAN.
DOWEL BARS TO MATCH
CHB VERTICAL BARS
C. PIPES AND CONDUITS EMBEDDED IN I. SLABS
CONCRETE
1. IN TWO-WAY SLABS, THE BARS ALONG THE SHORT SPAN BE AT
THE LOWER LAYER FOR BOTTOM BARS, AND AT THE UPPER
1. NO PIPES SHALL BE EMBEDDED INSIDE ANY COLUMN
LAYER FOR TOP BARS SO THAT THE BARS ALONG THE SHORTER
SPAN SHALL HAVE THE BIGGER EFFECTIVE DEPTH, UNLESS 10 MM Ø @ 0.30 M. O.C. 4"
2. UNLESS OTHERWISE SHOWN ON STRUCTURAL DRAWINGS OR
PERMISSION OF ENGINEER, PIPES AND OTHER ELECTRICAL OTHERWISE DETAILED OR NOTED DUE TO THE CONTINUITY OF LONGITUDINAL BARS COMPACT
BARS FROM ADJOINING SPANS.
CONDUITS WITH THEIR FITTINGS SHALL NOT DISPLACE MORE GRAVEL
THAN 4% OF THE CROSS-SECTIONAL AREA OF THE COLUMN.
2. IF THE TOP REINFORCEMENT OVER A COMMON SUPPORT OF 4"
TWO ADJACENT SPANS ARE DIFFERENT, THE LARGER NEGATIVE 12 MM Ø @ 0.30 M. O.C.
D. CONCRETE PROTECTION FOR REINFORCING STEEL AREA PER METER OF WIDTH SHALL BE FOLLOWED ON
COMPACT
GRAVEL TRANSVERSE BARS
BARS BOTH SLAB PANELS AT THAT COMMON SUPPORT.

THE FOLLOWING SHALL BE THE CLEAR COVER CONCRETE 3. BARS SHALL BE SPLICED ONLY WHERE INDICATED ON DETAILS POWER ROOM
PROTECTIONS:

1. FOUNDATION 0.08 M.
OR AS APPROVED BY THE STRUCTURAL ENGINEER. STRAIGHT
CONTINUOUS BARS IN SLABS MAY BE SPLICED (LAPPED OR
WELDED) AT SUPPORTS FOR BOTTOM BARS, AND AT MIDSPAN
S-03 TYPICAL DETAIL WALL FOOTING
2. SLAB ON GRADE 0.04 M. FOR TOP BARS.
02 SCALE 1:100
3. SURFACE EXPOSED TO WEATHER 0.05 M.
4. COLUMNS 0.04 M. 4. SLAB, CLEAR CONCRETE COVERING FOR TOP BARS AT
5. BEAMS AND GIRDERS 0.04 M. SUPPORTS & BOTTOM BARS AT MIDSPAN SHALL NOT BE
6. WALLS 0.02 M. GREATER THAN 20 MM.

DETAIL TRUSS-1-3nos
7. POST-TENSIONED SLAB 0.03 M.
5. USE INDEPENDENT CHAIRS TO SHORE SLAB TOP BARS, BEAM
E. MINIMUM TIME BEFORE REMOVAL OF FORMS TOP BARS SHOULD NOT BE USED AS CHAIRS FOR SLAB TOP S-03
BARS.
AFTER POURING 03 SCALE: 1:100mm
J. STRUCTURAL STEEL
1. WALLS 3 DAYS
2. COLUMNS 3 DAYS 1. ALL STRUCTURAL STEEL, BOTH ANGLES AND STEEL PLATES
3. PRE-STRESSED BEAMS AFTER STRESSING SHALL CONFORM TO ASTM A36
NON PRE-STRESSED 21 DAYS 21 DAYS fy = 248 MPa (36,000 psi)
4. PRE-STRESSED BEAMS AFTER STRESSING
NON PRE-STRESSED 21 DAYS 2. WELDING ELECTRODES SHALL BE E70XX SERIES

UNDUE SUPERIMPOSED DEAD LOADS SHOULD NOT BE APPLIED 3. MACHINE BOLTS AND ANCHOR BOLTS SHALL CONFORM TO ASTM
DURING ANY SUBSEQUENT CURING PERIOD. A-325

F. REINFORCEMENT K. SAFETY
1. ALL MILD REINFORCING BARS SHALL BE ROUND DEFORMED 1. IT SHALL BE THE DUTY AND RESPONSIBILITY OF THE
CONFORMING TO ASTM A-615 WALLS CONSTRUCTOR TO PROVIDE SHEET PILES, PRECAUTIONARY
12 MM Ø SMALLER REBARS fy = 276 MPa MEASURES TO ENSURE SAFETY OF ADJACENT PROPERTIES AND
psi) OCCUPANTS.
16 MM Ø SMALLER REBARS fy = 414 MPa (60,000 psi)

2. ALL REINFORCING BAR DIAMETER IN MILLIMETER INDICATED ON


THE PLANS SHOULD BE STRICTLY FOLLOWED, ANY DEVIATION
FROM THOSE SPECIFIED SHALL HAVE THE WRITTEN APPROVAL

CLIENT: Aqua Frontier Hotel & Restaurant SHEET CONTENTS SHEET No. 3-3
WIZ WINNER CONSTRUCTION 1 ROOF FRAMING PLAN REV. 00 DATE JAN/04/24
Services, INC PRC REG. NO: REG DATE: PROJECT TITLE: Design and Build of STP 2 DETAIL TRUSS-1
S-3
Banaba South ,Batangas City 3 GENERAL NOTES
PRC REG. NO: ISSUED ON:
Mobile 4 TYPICAL WALL DETAIL SCALE: AS -SHOWN
LOCATION: Lobo Malabrigo Batangas
No.09171037500.ramil_macalalad@yahoo.com TIN: ISSUED AT: DRAWN BY: TODS ALMERON CHECKED BY: N.Peranda FOR CONSTRUCTION PURPOSES

You might also like