KEMBAR78
Fdas Single Line Diagram | PDF | Firefighting | Manufactured Goods
0% found this document useful (0 votes)
118 views1 page

Fdas Single Line Diagram

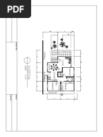
The document outlines the electronic plan for a proposed commercial building located in Brgy. Pahanocoy, Bacolod City. It includes details such as the fire alarm control panel, smoke detectors, and a CCTV diagram with multiple dome cameras. The plan is prepared by HPG & Associates and certified by an electronic engineer, with an approval date of October 23, 2024.
Copyright
© © All Rights Reserved
We take content rights seriously. If you suspect this is your content, claim it here.
Available Formats
Download as PDF, TXT or read online on Scribd
0% found this document useful (0 votes)
118 views1 page

Fdas Single Line Diagram

The document outlines the electronic plan for a proposed commercial building located in Brgy. Pahanocoy, Bacolod City. It includes details such as the fire alarm control panel, smoke detectors, and a CCTV diagram with multiple dome cameras. The plan is prepared by HPG & Associates and certified by an electronic engineer, with an approval date of October 23, 2024.
Copyright
© © All Rights Reserved
We take content rights seriously. If you suspect this is your content, claim it here.
Available Formats
Download as PDF, TXT or read online on Scribd
You are on page 1/ 1

OBO

LEGEND

ET
RE
THE SITE

ST
A
CERC

ET
UMFE

AN
RENT
IAL R

AR
OAD
SD SMOKE DETECTOR

FACP FIRE ALARM CONTROL PANEL


ELECTRONIC
PB PANEL BOAED

M MONITOR

DVR DIGITAL VIDEO DECORDER PAHA


N
BRGY OCOY
.HAL
L

DOME CAMERA (720P)


DOME DOME 1 DOME 2 DOME 3 DOME 4 DOME 5

VICINITY MAP
DOME 6 DOME 7 DOME 8 DOME 9 DOME 10

DOME 11 DOME 12 DOME 13 DOME 14 DOME 15

DOME 16 DOME 17 DOME 18 DOME 19 DOME 20

DOME 21 DOME 22 DOME 23 DOME 24 DOME 25

DOME 26 DOME 27

M DVR
CCTV DIAGRAM

L2 SD S SD

FACP PB1

FDAS SINGLE LINE DIAGRAM

PREPARED FOR: CERTIFIED BY: PROJECT TITLE: APPROVED BY: SHEET CONTENTS: SHEET NO:

HPG & ASSOCIATES ECE ELECTRONIC ENGINEER


PROPOSED COMMERCIAL ELECTRONIC PLAN
22
BUILDING NEW HOPE COMMECIAL INC.
22
LOCATION: Brgy. Pahanocoy, Circumferential Road, Bacolod City OWNER / REPRESENTATATIVE DATE OCT.23,2024

You might also like