KEMBAR78
DSTI Checklist | PDF | Working Conditions | Safety
100% found this document useful (1 vote)
70 views2 pages

DSTI Checklist

The document outlines a Daily Safe Task Instruction (JSA) checklist for ensuring safety before and after work commences. It includes verification of worker fitness, proper equipment, and safety measures, along with a close-out checklist to confirm that all safety protocols are followed at the end of the shift. Responsible persons must certify that all items were checked and areas left safe, with signatures required for accountability.
Copyright
© © All Rights Reserved
We take content rights seriously. If you suspect this is your content, claim it here.
Available Formats
Download as DOCX, PDF, TXT or read online on Scribd
100% found this document useful (1 vote)
70 views2 pages

DSTI Checklist

The document outlines a Daily Safe Task Instruction (JSA) checklist for ensuring safety before and after work commences. It includes verification of worker fitness, proper equipment, and safety measures, along with a close-out checklist to confirm that all safety protocols are followed at the end of the shift. Responsible persons must certify that all items were checked and areas left safe, with signatures required for accountability.
Copyright
© © All Rights Reserved
We take content rights seriously. If you suspect this is your content, claim it here.
Available Formats
Download as DOCX, PDF, TXT or read online on Scribd
You are on page 1/ 2

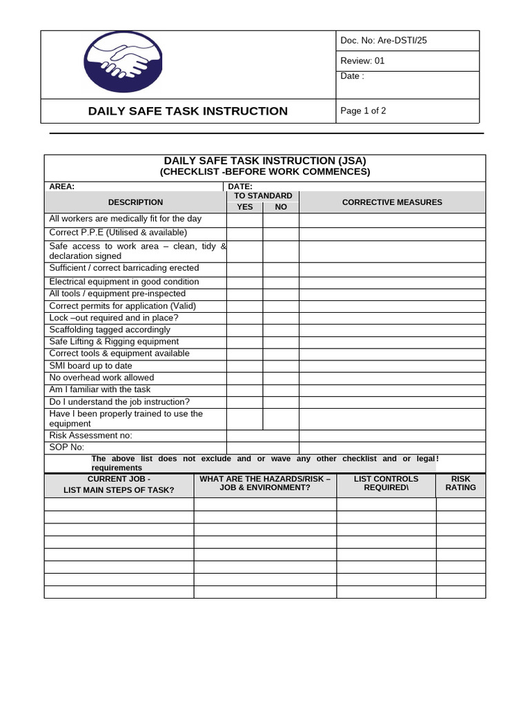
Doc.

No: Are-DSTI/25

Review: 01
Date :

DAILY SAFE TASK INSTRUCTION Page 1 of 2

DAILY SAFE TASK INSTRUCTION (JSA)


(CHECKLIST -BEFORE WORK COMMENCES)
AREA: DATE:
TO STANDARD
DESCRIPTION CORRECTIVE MEASURES
YES NO
All workers are medically fit for the day
Correct P.P.E (Utilised & available)
Safe access to work area – clean, tidy &
declaration signed
Sufficient / correct barricading erected
Electrical equipment in good condition
All tools / equipment pre-inspected
Correct permits for application (Valid)
Lock –out required and in place?
Scaffolding tagged accordingly
Safe Lifting & Rigging equipment
Correct tools & equipment available
SMI board up to date
No overhead work allowed
Am I familiar with the task
Do I understand the job instruction?
Have I been properly trained to use the
equipment
Risk Assessment no:
SOP No:
The above list does not exclude and or wave any other checklist and or legal !
requirements
CURRENT JOB - WHAT ARE THE HAZARDS/RISK – LIST CONTROLS RISK
LIST MAIN STEPS OF TASK? JOB & ENVIRONMENT? REQUIRED\ RATING
Note:
 If tasks change, this list and the Risk Assessment must be revised before proceeding with new/changed task. 
A signed attendance register and a risk matrix must be attached to this list.
I hereby certify that the above items were checked and all workers under my supervision received a safe task instruction:
Responsible Person: _________________________ _______________________
(Foreman/Supervisor) Print Name Signature:

Safety Officer _________________________ _______________________


Print Name Signature:

I:SHEQ/IMSDocs/DSTICheckli IMS 138 Rev01 Effective: 09/06/2025

DSTI CLOSE-OUT (CHECKLIST – AT END OF SHIFT)


NO DESCRIPTION YES NO ACTION REQUIRED

1 Are safe access to work area reinstated


2 Sufficient and correct barricading erected
where required
3 No tools or equipment left at work place
4 All tools and equipment inspected end –
shift inspection / hot work inspection
5 Scaffolding tagged accordingly
6 No gas cutting equipment left at work
place
7 End shift PPE inspection
8 All material removed from elevated
working platforms
9 Lifting equipment correctly stored
10 Applicable permits signed off
11 Lock-outs applied with all plant and
equipment left at work place
12 Material neatly and safe stacked At
work place / store
13 Housekeeping in good state
REMARKS:

I hereby certify that the above items were checked IN MY AREA/S of RESPONSIBILITY and the area/s were left safe and
free of any possible hazards. No injuries were reported to me at the end of the shift.
Responsible Person: _________________________ _______________________
(Foreman/Supervisor) Print Name Signature:

Safety Officer _________________________ _______________________


Print Name Signature:

We the undersigned acknowledge that we have attended the lecture on the


abovementioned DSTI/JSA and to work safely as per the instruction.

Name Signature Name Signature Name Signature

You might also like