KEMBAR78
As Built Pumping Station - Psw1 A/C In-Door and Outdoor Details | PDF | Manufactured Goods | Building Technology
0% found this document useful (0 votes)
16 views1 page

As Built Pumping Station - Psw1 A/C In-Door and Outdoor Details

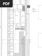
The document contains detailed layout and specifications for the installation of air conditioning units, including both indoor and outdoor components. It includes information on mounting brackets, cable trenches, refrigerant lines, and various electrical panels and breakers. Additionally, it provides dimensions and notes on materials used, ensuring compliance with structural and safety standards.

Uploaded by

Abdul Haleem
Copyright
© © All Rights Reserved
We take content rights seriously. If you suspect this is your content, claim it here.
Available Formats
Download as PDF, TXT or read online on Scribd
0% found this document useful (0 votes)
16 views1 page

As Built Pumping Station - Psw1 A/C In-Door and Outdoor Details

The document contains detailed layout and specifications for the installation of air conditioning units, including both indoor and outdoor components. It includes information on mounting brackets, cable trenches, refrigerant lines, and various electrical panels and breakers. Additionally, it provides dimensions and notes on materials used, ensuring compliance with structural and safety standards.

Uploaded by

Abdul Haleem
Copyright
© © All Rights Reserved
We take content rights seriously. If you suspect this is your content, claim it here.
Available Formats
Download as PDF, TXT or read online on Scribd
You are on page 1/ 1

1 2 3 4 5 6 7 8 9 10 11 12

MCC
PANEL

A/C MCC
ROOM

OUTDOOR UNIT
AC SUPPORT WALL
300X300X325
VFD3

A MOUNTING BRACKET

SEC-A
DEPTH SUMPIT CABLE TRENCH

VFD2
A
ISOLATOR BELOW 1.5M REFRIGERANT LINE CABLE TRENCH

SEC-B
VFD1

MOTOR ROOM

FROM SLAB 20MM UPVC


CABLE TRENCH

PANEL
PLC
PANEL/GLAND
CAPACITOR
BANK

PLATE
FM 200 PANEL
360X300
PANEL/GLAND
KEY PLAN

PLATE
MAIN
INCOMER
COLUMN-01 FLOOR
STANDING A.C.
(5TON) NOTES:
585x1750x400mm 1.ALL DIMENSIONS ARE IN MILLIMETERS UNLESS OTHERWISE SPECIFIED.
B B
2.ALL THE STRUCTURAL ELEMENTS I.E. MS-ANGLE,C-CHANNEL,CHECKERED

PANEL/GLAND
GENERATOR PLATE ETC ARE HOT DEEP GALVANIZED.

PLATE
INCOMER
COLUMN-02

3.ALL INTERNAL SURFACE WALL/BASE ARE PROTECTIVE EPOXY COATED.

SOFT STARTER 1 - SS1

PANEL/GLAND
PLATE
PUMP-01
COLUMN-3.1

LEGEND:
ACB 1

PANEL/GLAND
PLATE
PUMP-01
COLUMN-3.2

SYMBOL DESCRIPTION
VFD1

SOFT STARTER 2 - SS2


FLOOR STANDING A.C.
(5TON) 585x1750x400mm

PANEL/GLAND
C C

PLATE
PUMP-02 OUTGOING
COLUMN-4.1
INCOMER
VFD

INCOMER
ACB 2 SLEEVES

PANEL/GLAND
100X50X50X5 MM THICK

PLATE
PUMP-02 C-CHANNEL
COLUMN-4.2 VFD2

CONCRETE WALL & SLAB

PANEL/GLAND
SOFT STARTER 3- SS3

PLATE
PUMP-03
COLUMN-5.1

FLOOR
STANDING A.C.
ACB 3 (5TON)
585x1750x400mm

PANEL/GLAND
PLATE
PUMP-03
COLUMN-5.2

RC WALL
D D

PANEL/GLAND
PLATE
BREAKER
COLUMN-6
VFD3

INCOMER
RC
WALL

PANEL/GLAND
MOTOR ROOM

PLATE
BREAKER
COLUMN-7 BLOCK WORK

Rev Date Revision Details Drawn Chkd Appd

RTU PANEL
CLIENT:

PANEL/GLAND
PLATE
BREAKER
COLUMN-8
Public Works Authority
P.O.Box 22188
E E

PANEL/GLAND
Tel. : (0974) 44950000

PLATE
BREAKER
COLUMN-9 Fax. : (0974) 44950999
Qatar Deserves The Best

AA www.ashghal.gov.qa
DRIANAGE AFFAIRS
PANEL/GLAND
PLATE
SCREEN &
GENERAL
PURPOSE DB
MAIN CONTRACTOR

A/C
PANEL/GLAND

OUTDOOR UNIT
PLATE

COMMON
CONTROL
PANEL

ISOLATOR BELOW 1.5M

PLC PANEL
FROM SLAB
VEOLIA - QATAR

A/C SUB CONTRACTOR


PANEL/GLAND
CAPACITOR

OUTDOOR UNIT F
BANK

PLATE

F
FLOOR
STANDING
A.C.(5 TON) REFRIGERANT LINE
ISOLATOR BELOW 1.5M DOHA - QATAR
585X1750X400MM P. O. Box: 24987
FROM SLAB CONDENSED DRAIN LINE Tel.: +974 4911277
Fax: +974 4911276 GROUP
Mob.: +974 6511641
E-mail: info@waagnerbiroqatar.qa
Website: www.waagnerbiroqatar.com.qa

REFRIGERANT Project Name:


LINE
PSW1
REFRIGERANT
ENHANCEMENT WORKS
20MM UPVC
LINE FRAME
100x50 mm (SITE INSTRUCTION 38)

G Project Code: G
PS-W1
Project Number:
SI-038
Status:
AS BUILT
Drawing Title:

PUMPING STATION -
PSW1 A/C IN-DOOR AND
OUTDOOR DETAILS
H Drawn: Checked: H
AH AE
01 A/C IN DOOR AND OUTDOOR LAYOUT Designed:
N/A
Approved:
KK
Date: Scale:
1 : 50 09/JUL/2025 NTS
Drawing Number: Revision:

VW-1500-ASB-MEC-DX-001-100SI38PSW1 Z0
1 2 3 4 5 6 7 8 9 10 11 12

You might also like