KEMBAR78
Sheet Number.. 08.: Planning Terrace Plan | PDF
0% found this document useful (0 votes)
3 views1 page

Sheet Number.. 08.: Planning Terrace Plan

Uploaded by

Faisal Raza
Copyright
© © All Rights Reserved
We take content rights seriously. If you suspect this is your content, claim it here.
Available Formats
Download as PDF, TXT or read online on Scribd
0% found this document useful (0 votes)
3 views1 page

Sheet Number.. 08.: Planning Terrace Plan

Uploaded by

Faisal Raza
Copyright
© © All Rights Reserved
We take content rights seriously. If you suspect this is your content, claim it here.
Available Formats
Download as PDF, TXT or read online on Scribd
You are on page 1/ 1

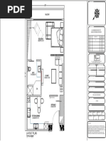
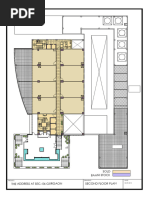
SHEET NUMBER..

08.

WATER TANK
AREA

PATHWAY

SUB -TIITTLE
FOOTBALL PITCH
40'/62'
· PLANNING
· TERRACE PLAN
PATHWAY
SEATING AREA

PATHWAY

GRAVELS MUMTY

PATHWAY UP

GRAVELS

SEATING AREA
Arquine
Arquine

GARDEN AREA

REMARK

NAME- MD.FAISAL

REG. NO.- 12005655

You might also like