KEMBAR78
Construction Payment Dispute Guide | PDF | Adjudication | Private Law
100% found this document useful (1 vote)
2K views1 page

Construction Payment Dispute Guide

A flowchart by the Building and Construction Authority ("BCA") on the Building and Construction Industry Security of Payment Act of Singapore.

Uploaded by

EH Chng
Copyright
© Attribution Non-Commercial (BY-NC)
We take content rights seriously. If you suspect this is your content, claim it here.
Available Formats
Download as PDF, TXT or read online on Scribd
100% found this document useful (1 vote)
2K views1 page

Construction Payment Dispute Guide

A flowchart by the Building and Construction Authority ("BCA") on the Building and Construction Industry Security of Payment Act of Singapore.

Uploaded by

EH Chng
Copyright
© Attribution Non-Commercial (BY-NC)
We take content rights seriously. If you suspect this is your content, claim it here.
Available Formats
Download as PDF, TXT or read online on Scribd
You are on page 1/ 1

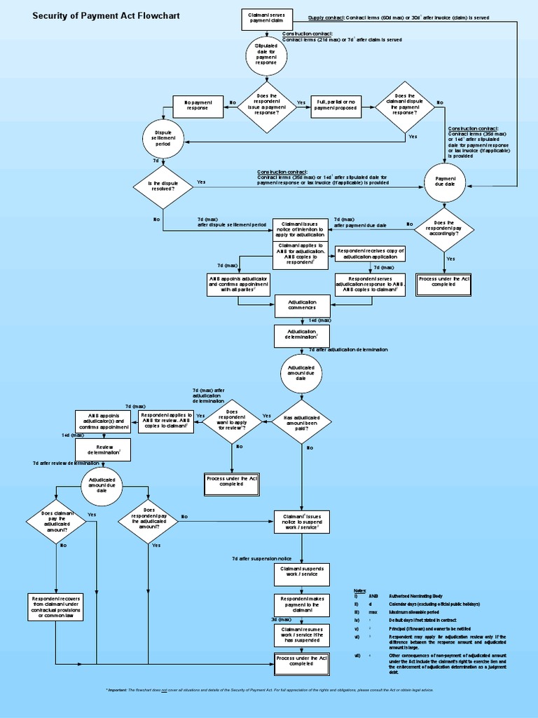
Security of Payment Act Flowchart

Claimant serves payment claim

Supply contract: Contract terms (60d max) or 30d after invoice (claim) is served

Construction contract: 1 Contract terms (21d max) or 7d after claim is served Stipulated date for payment response

No payment response

No

Does the respondent issue a payment response?

Yes

Full, partial or no payment proposed

Does the claimant dispute the payment response?

No

Dispute settlement period 7d Construction contract: 1 Contract terms (35d max) or 14d after stipulated date for payment response or tax invoice (if applicable) is provided

Yes

Construction contract: Contract terms (35d max) 1 or 14d after stipulated date for payment response or tax invoice (if applicable) is provided

Is the dispute resolved?

Yes

Payment due date

No

7d (max) after dispute settlement period

Claimant issues notice of intention to apply for adjudication Claimant applies to ANB for adjudication. ANB copies to 2 respondent

7d (max) after payment due date

No

Does the respondent pay accordingly?

Respondent receives copy of adjudication application 7d (max) Respondent serves adjudication response to ANB. 2 ANB copies to claimant

Yes

7d (max) ANB appoints adjudicator and confirms appointment 2 with all parties

Process under the Act completed

Adjudication commences 14d (max) Adjudication 2 determination 7d after adjudication determination

Adjudicated amount due date 7d (max) after adjudication determination Does respondent want to apply 3 for review ? Yes Has adjudicated amount been paid?

7d (max) ANB appoints adjudicator(s) and confirms appointment 14d (max) Review 2 determination 7d after review determination Adjudicated amount due date

Respondent applies to Yes ANB for review. ANB 2 copies to claimant

No

No

Process under the Act completed

Does claimant pay the adjudicated amount? No

Yes

Does respondent pay the adjudicated amount?

No

Claimant issues notice to suspend 2 work / service

Yes 7d after suspension notice Claimant suspends work / service Notes: i) ANB ii) iii) iv) v) vi) d max
1 2 3

Respondent recovers from claimant under contractual provisions or common law

Respondent makes payment to the claimant 3d (max) Claimant resumes work / service if he has suspended

Authorised Nominating Body Calendar days (excluding official public holidays) Maximum allowable period Default days if not stated in contract Principal (if known) and owner to be notified Respondent may apply for adjudication review only if the difference between the response amount and adjudicated amount is large. Other consequences of non-payment of adjudicated amount under the Act include the claimants right to exercise lien and the enforcement of adjudication determination as a judgment debt.

Process under the Act completed

vii)

* Important: The flowchart does not cover all situations and details of the Security of Payment Act. For full appreciation of the rights and obligations, please consult the Act or obtain legal advice.

You might also like