KEMBAR78
Design Calculation IMRF | PDF | Strength Of Materials | Solid Mechanics
0% found this document useful (0 votes)
393 views19 pages

Design Calculation IMRF

This document provides information on the design procedure for an Intermediate Moment Resisting Frame System (IMRF) building according to the Bangladesh National Building Code (BNBC) 2015. It describes the building as an 8-story residential building located in Manikgong with a total height of 27.12m. It then lists the material properties, service loads, and seismic design data used for the structural design according to BNBC 2015, including a concrete compressive strength of 25MPa, steel yield strength of 400MPa, roof live load of 0.96kN/m2, and zone coefficient of 0.2. The document proceeds to calculate the base shear, distribute seismic forces to each floor, and calculate wind
Copyright
© © All Rights Reserved
We take content rights seriously. If you suspect this is your content, claim it here.
Available Formats
Download as PDF, TXT or read online on Scribd
0% found this document useful (0 votes)
393 views19 pages

Design Calculation IMRF

This document provides information on the design procedure for an Intermediate Moment Resisting Frame System (IMRF) building according to the Bangladesh National Building Code (BNBC) 2015. It describes the building as an 8-story residential building located in Manikgong with a total height of 27.12m. It then lists the material properties, service loads, and seismic design data used for the structural design according to BNBC 2015, including a concrete compressive strength of 25MPa, steel yield strength of 400MPa, roof live load of 0.96kN/m2, and zone coefficient of 0.2. The document proceeds to calculate the base shear, distribute seismic forces to each floor, and calculate wind
Copyright
© © All Rights Reserved
We take content rights seriously. If you suspect this is your content, claim it here.
Available Formats
Download as PDF, TXT or read online on Scribd
You are on page 1/ 19

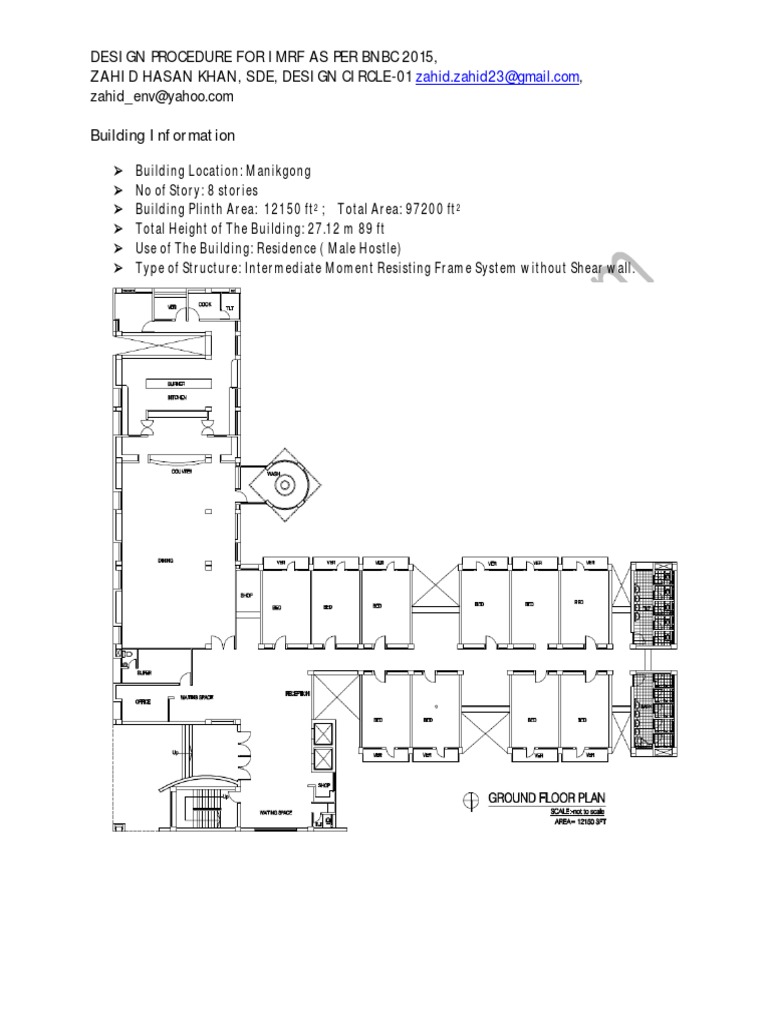
DESIGN PROCEDURE FOR IMRF AS PER BNBC 2015,

ZAHID HASAN KHAN, SDE, DESIGN CIRCLE-01 zahid.zahid23@gmail.com,


zahid_env@yahoo.com

Building Information

Building Location: Manikgong


No of Story: 8 stories
Building Plinth Area: 12150 ft2 ; Total Area: 97200 ft2
Total Height of The Building: 27.12 m 89 ft
Use of The Building: Residence ( Male Hostle)
Type of Structure: Intermediate Moment Resisting Frame System without Shear wall.

DESIGN PROCEDURE FOR IMRF AS PER BNBC 2015,


ZAHID HASAN KHAN, SDE, DESIGN CIRCLE-01 zahid.zahid23@gmail.com,
zahid_env@yahoo.com

DESIGN PROCEDURE FOR IMRF AS PER BNBC 2015,


ZAHID HASAN KHAN, SDE, DESIGN CIRCLE-01 zahid.zahid23@gmail.com,
zahid_env@yahoo.com

DESIGN PROCEDURE FOR IMRF AS PER BNBC 2015,


ZAHID HASAN KHAN, SDE, DESIGN CIRCLE-01 zahid.zahid23@gmail.com,
zahid_env@yahoo.com

Design Data
Material Properties
Compressive strength of concrete: fc = 25 N/mm2 (3,625 psi)

DESIGN PROCEDURE FOR IMRF AS PER BNBC 2015,


ZAHID HASAN KHAN, SDE, DESIGN CIRCLE-01 zahid.zahid23@gmail.com,
zahid_env@yahoo.com
Yield strength of steel: fy= 400 N/mm2 (58,000 psi)

Service Loads
Live Loads: Roof = 0.96 kN/m2 (20 psf)
Floor = 2.87 kN/m2 (60 psf)
Corridors above first floor 3.83 KN/m2 (80 psf) ;

Seismic Design data:

Zone Coefficient, Z = 0.2 (BNBC, Fig. 2.5.1)

DESIGN PROCEDURE FOR IMRF AS PER BNBC 2015,


ZAHID HASAN KHAN, SDE, DESIGN CIRCLE-01 zahid.zahid23@gmail.com,
zahid_env@yahoo.com

Occupancy Category: III (BNBC, Tab. 1.2.1)

DESIGN PROCEDURE FOR IMRF AS PER BNBC 2015,


ZAHID HASAN KHAN, SDE, DESIGN CIRCLE-01 zahid.zahid23@gmail.com,
zahid_env@yahoo.com

Importance factor, I = 1.25 (BNBC, Tab 6.2.17)

Site Class based on Soil Investigation data SD (BNBC, Tab. 6.2.13)

Select Elastic Response Spectrum (BNBC, Tab. 6.2.18)

DESIGN PROCEDURE FOR IMRF AS PER BNBC 2015,


ZAHID HASAN KHAN, SDE, DESIGN CIRCLE-01 zahid.zahid23@gmail.com,
zahid_env@yahoo.com

Select Elastic Response Spectrum (BNBC, Tab. 6.2.16)

Selection of structural System(BNBC, Tab. 6.2.19)

DESIGN PROCEDURE FOR IMRF AS PER BNBC 2015,


ZAHID HASAN KHAN, SDE, DESIGN CIRCLE-01 zahid.zahid23@gmail.com,
zahid_env@yahoo.com

Calculation of Base Shear


1. Lateral Load resisting system is ISMF R = 5.0
Total dead load of the building including partition walls = 23000 kip
25% of Live Load = 700 kip

In SI Units

In FPS Units

W = (106584+9932) kN

W = (23000+900 ) kip

DESIGN PROCEDURE FOR IMRF AS PER BNBC 2015,


ZAHID HASAN KHAN, SDE, DESIGN CIRCLE-01 zahid.zahid23@gmail.com,
zahid_env@yahoo.com
= 116516 kN

= 23900 kip

The building period is approximated by BNBC 2015 Eq.6.2.38

In SI unit

In FPS unit

Building height hn = 27.12 m

Building height hn = 89 ft.

Ct = 0.0466 (BNBC 2015 Tab. 6.2.20)

Ct = 0.016(BNBC 2015 Tab. 6.2.20)

m = 0.9 (BNBC 2015 Tab. 6.2.20)

m = 0.9 (BNBC 2015 Tab. 6.2.20)

T C t ( hn ) m

T C t ( hn ) m

= 0.0466 (27.12)0.9

= 0.016 (89)0.9

= 0.9 sec.

= 0.9 sec.

For soil type SD, S = 1.35, TB = 0.2 sec., TC = 0.5 sec., TD = 2 sec. (BNBC 2015 Tab. 6.2.16)
The normalized acceleration response spectrum Cs is determined by BNBC Eq.6.2.35c:

T
Cs 2.5S C
T

for T T T
C
D

where, S = 1.35 (BNBC 2015 Tab. 6.2.16), = 1 for 5% viscous damping


Tc = 0.8 sec. (BNBC Tab. 6.2.16),
T = 0.9 sec.
Cs = 3.0
The design spectral acceleration Sa is calculated by BNBC 2015 Eq.6.2.34:

Sa

2 ZICs
3 R

Seismic zone coefficient Z = 0.2


Structural importance factor, I= 1.25

DESIGN PROCEDURE FOR IMRF AS PER BNBC 2015,


ZAHID HASAN KHAN, SDE, DESIGN CIRCLE-01 zahid.zahid23@gmail.com,
zahid_env@yahoo.com
Response reduction factor, R = 5

2 (0.2 1.25 3.0)


=
3
5
= 0.1 >

2

3

= 0.67 0.2 1.25 0.15 = 0.025

= 0.15 [ BNBC 2015 , Art 2.5.4.3 ]


So, from BNBC 2015Eq. 3.1
In SI Units

In FPS Units

V = S aW

V = S aW

= 0.043 23900

= 0.043 23900

= ..kN

= 1027kip

Vertical distribution of lateral forces


The base shear V, shall be considered as the sum of lateral forces Fx induced at different floor levels. Part
of base shear force induced at level x is calculated by BNBC 2015 Eq.6.2.4

Fx V

wx hxk
n
k
i i

wh
i 1

In SI Units

In FPS Units

For T = 0.9 sec., k=1.8 (BNBC 2015 ,Art 2.5.7.4)

For T = 0.9 sec., k=1.8 (BNBC 2015 , Art 2.5.7.4)

Base shear, V= .. kN

Base shear, V= 1027kip

w i hik

k
i

i 1

wh

= 9061 3.661.17 + 9061 7.321.17 + 10449


10.971.17 + 9804 15.551.17 + 10983
20.121.17 + 6027 24.691.17

= 1647 121.8 + 3280 221.8 + 3024 321.8 +


2601 421.8 + 2868 521.8 + 2801 621.8+
2800 721.8+ 2807 821.8 + 2062 921.8

= 1174562

= 34010089 K

i 1

Now Eq. 3.2

Now Eq. 3.2

Fx = (2384/1174562) wxhx1.17

Fx = (1027/34010089) wxhx1.17

=0.002 wxhx1.17

(3.3)

=0.00004wxhx1.8

(3.3)

DESIGN PROCEDURE FOR IMRF AS PER BNBC 2015,


ZAHID HASAN KHAN, SDE, DESIGN CIRCLE-01 zahid.zahid23@gmail.com,
zahid_env@yahoo.com

Fx

( V F t )w x h x
n

w ih i

i 1

Floor Level
1

Wx (Kip)

k
2

Hx(Ft)

WxHx

2X3

V (Kip)
4

Roof

2026.552

1.8

92

6943458

1027

210.38

2807.844

1.8

82

7820561

1027

236.96

2800.436

1.8

72

6171975

1027

187.01

2801.564

1.8

62

4717431

1027

142.94

2868.915

1.8

52

3519846

1027

106.65

2601.481

1.8

42

2173048

1027

65.84

3024.607

1.8

32

1548599

1027

46.92

3279.923

1.8

22

855508.8

1027

25.92

GF

1647.188

1.8

12

144301

1027

4.37

23858.51

33894729

1027.00

DESIGN PROCEDURE FOR IMRF AS PER BNBC 2015,


ZAHID HASAN KHAN, SDE, DESIGN CIRCLE-01 zahid.zahid23@gmail.com,
zahid_env@yahoo.com

Height Vs Shear Force


100
210.38

90

236.96

80
187.01

70
142.94

60
106.65

50
65.84

40
46.92

30
25.92

20
4.37

10
0

0
0.00

50.00

100.00

150.00

200.00

250.00

Fig. Base Shear Force at Different Floor Levels According to BNBC 2015

DESIGN PROCEDURE FOR IMRF AS PER BNBC 2015,


ZAHID HASAN KHAN, SDE, DESIGN CIRCLE-01 zahid.zahid23@gmail.com,
zahid_env@yahoo.com

WIND LOAD CALCULATION AS PER BNBC 2015


Velocity pressure qz=0.00256KzKztKdV2Iw(Equation 6.2.7 BNBC 2015 Vol 2 Part 6)
Exposure = C (Art 2.4.6.3 BNBC 2015 Vol 2 Part 6 )
Roof height,H = 89 ft
Exposure coefficient,Kz = (Table 6.2.11 BNBC 2015 Vol 2 Part 6)
Topographic factor Kzt=1.0. (Art 2.4.7.2& Table 6.2.11 BNBC 2015 Vol 2 Part 6)
Directional factor
Kd = 0.85(Table 6.2.12 BNBC 2015 Vol 2 Part 6)
Importance factor Iw = 1.15 (Table 6.2.9BNBC 2015 Vol 2 Part 6)
qz= 0.00256KzKztKdV2Iw
= 0.00256 X 1.0 X 0.85 X 1902 X 1.15 X Kz
= 90.33 Kz
Kh= 2.01(z/zg) 2/ = 2.01 (89/900)2/9.5= 1.23
Design Pressure for MWFRS,
P = qzGCp - qi(GCpi)
Internal pressure coefficient (GCpi) = +0.18
(Table 2.4.5BNBC 2015 Part 6 Chapter 2)
qi= 0.00256KhKztKdV2Iw= 0.00256X1.23X1.0X0.85X1902X 1.15= 111.10
P = qzGCp - qi(+GCpi)

= 90.33 Kz X 0.84 X 0.8 111.11 X 0.18

= Kz 60.7+ 20
For 0-15 ft height qz = 0.85 X 90.33 = 76.78
For 20-0 height qz = 0.9 X 90.33 =81.29
LW = GCiqh= 0.49 X 0.84 X 111.1 = 45.72 Psf
WW = GCiqz= 0.83 X 0.84 X 76.78 = 55.53 Psf

DESIGN PROCEDURE FOR IMRF AS PER BNBC 2015,


ZAHID HASAN KHAN, SDE, DESIGN CIRCLE-01 zahid.zahid23@gmail.com,
zahid_env@yahoo.com
Height, z

Kz

qz(BNBC 2015)

0ft

0.85

76.7 psf

14 ft

0.85

76.7 psf

20 ft

0.90

81.5 psf

24 ft

0.94

84.7 psf

29 ft

0.98

88.1 psf

40 ft

1.04

94.3 psf

49 ft

1.09

98.4 psf

59 ft

1.13

102.3 psf

69 ft

1.17

105.7 psf

80 ft

1.21

109.1 psf

89 ft

1.23

111.6 psf

100 ft

1.27

114.3 psf

120 ft

1.32

118.8 psf

140 ft

1.36

122.7 psf

160 ft

1.40

126.2 psf

180 ft

1.43

129.4 psf

200 ft

1.46

132.3 psf

250 ft

1.53

138.7 psf

300 ft

1.59

144.1 psf

400 ft

1.69

153.1 psf

450 ft

1.74

156.9 psf

500 ft

1.78

160.4 psf

Story Drift
The displacements xe obtained from the three dimensional static, elastic analysis using the design
seismic forces in the N-S direction are summarized in Table The table also contains design earthquake
displacement xcomputed by BNBC 2015 Eq. 6.2.45 :
x= Cdxe/I
Deflection amplification factor, Cd = 5.5
Importance Factor, I = 1.25

(BNBC 2015 Tab. 6.2.19)

DESIGN PROCEDURE FOR IMRF AS PER BNBC 2015,


ZAHID HASAN KHAN, SDE, DESIGN CIRCLE-01 zahid.zahid23@gmail.com,
zahid_env@yahoo.com

Tab. Lateral Displacement and Interstory Drifts due to Seismic Forces in N-S Direction
Story
8

hsx
120

xe
48 mm or 1.93 in.

x= Cdxe/I
212.3 mm or 8.4 in.

= x - x-1
8.8 mm or 0.35 in.

a = 0.02hsx
2.4

120

46 mm or 1.85 in.

203.5 mm or 8.0 in.

14.3 mm or 0.57 in.

2.4

6
5
4
3
2
1

120
120
120
120
120
144

43 mm or 1.72 in.
38 mm or 1.54 in.
32 mm or 1.30 in.
26 mm or 1.04 in.
19 mm or 0.75 in.
11 mm or 0.45 in

189.2 mm or 7.5 in.


169.4 mm or 6.7 in.
143 mm or 5.7 in.
114.4 mm or 4.5 in.
82.5 mm or 3.3 in.
50 mm or 1.98 in

19.8 mm or 0.8 in.


26.4 mm or 1.0 in.
28.6 mm or 1.14 in.
31.9 mm or 1.27 in.
33 mm or 1.32 in.

2.4
2.4
2.4
2.4
2.4
2.88

The design storey drift at storey x shall be computed as the difference of the deflections at the centers
of mass at the top and bottom of the story under consideration:
= x - x-1 (BNBC 2015 Eq. 2.5.16)
The design storey drift must not exceed the allowable story drift a from BNBC Tab. 2.5.9. For
Occupancy Category III, a = 0.02hsx
where, hsx is the the story height below Level x.
In SI Units

In FPS Units

DESIGN PROCEDURE FOR IMRF AS PER BNBC 2015,


ZAHID HASAN KHAN, SDE, DESIGN CIRCLE-01 zahid.zahid23@gmail.com,
zahid_env@yahoo.com
Here, hsx = 3.65 m

Here, hsx = 12 ft

a = 0.023.651000
= 73 mm

a = 0.0121212
= 2.8 in.

P- Effect
The Pdelta effects need not be considered if the stability coefficient () determined by the following
equation is not more than 0.10:

Px
Vx hsx Cd

where,
Px= the total vertical design load at and above level x
= the design story drift occurring simultaneously with Vx
Vx= the storey shear force acting between levels x and x 1
hsx=the story height below level x
Cd= the deflection amplification factor

The stability coefficient () shall not exceed max determined as follows:

max

0.5
0.25
Cd

where,
= ratio of shear demand to shear capacity for the story between levels x and x 1. Conservatively =
1.0.
In FPS Units
Level
8
7
6
5
4
3
2
1

hsx
(ft.)
12
10
10
10
10
10
10
10

Px
(kips)
2026
2804
2800
2801
2868
2601
3024
3279

Vx
(kips)
210
236
187
142
106
65
46
25

(in.)
0.35
0.57
0.8
1
1.14
1.27
1.32

Cd

5.5
5.5
5.5
5.5
5.5
5.5
5.5
5.5

1
1
1
1
1
1
1
1

0.00
0.01
0.02
0.03
0.05
0.08
0.13

max
0.11
0.11
0.11
0.11
0.11
0.11
0.11
0.11

Ok
OK
OK
OK
OK
OK
OK
NOT OK
OK

DESIGN PROCEDURE FOR IMRF AS PER BNBC 2015,


ZAHID HASAN KHAN, SDE, DESIGN CIRCLE-01 zahid.zahid23@gmail.com,
zahid_env@yahoo.com

It is clear that Pdelta effects need not be considered at any of the floor levels.
However, If 0.10 < max, the incremental factor related to Pdelta effects on displacement and
member forces shall be increased by rational analysis or multiplied by a factor 1.0/ (1 ).(BNBC 2015
Art 2.5.7.9)
Soft StoreyIrregulerity :
Story

xe

= x - x-1

= 1.3(x - x-1)/h

144

1.93

0.08

0.0007

120

1.85

0.13

0.0014

120

1.72

0.18

0.0020

120

1.54

0.24

0.0026

120

1.3

0.26

0.0028

120

1.04

0.29

0.0031

120

0.75

0.3

0.0033

144

0.45

0.45

0.0041

According to BNBC 2015 2.5.5.3.2, a soft story is one in which the lateral stiffness is less than 70% of that
in the story aboveor less than 80% of the average lateral stiffness of the three stories above irregularity.
An extreme soft story is defined where its lateral stiffness is less than 60% of that in the story above or
less than 70% of the average lateral stiffness of the three storiesabove. This irregularity type is needed
to be checked for building assigned to SDC D.
However, this requirement will be omitted when no story drift ratio under design lateral seismic force is
greater than 130 percent of the story drift ratio of the next story above.

Load combinations
Basic strength design load combinations are given in BNBC 2015 2.7.3.1
U = 1.4D

(3.4)

U = 1.2D + 1.6L

(3.5)

DESIGN PROCEDURE FOR IMRF AS PER BNBC 2015,


ZAHID HASAN KHAN, SDE, DESIGN CIRCLE-01 zahid.zahid23@gmail.com,
zahid_env@yahoo.com
U = 1.2D + 1.0E + 1.0L

(3.6)

U = 0.9D + 1.0E

(3.7)

U = (1.2 D + Ev) + 1.0E + 1.0L

(3.8)

U = (0.9D - Ev) + 1.0E

(3.9)

U = (1.2 D + Ev)+ 1.0L + 1.0E(X) + 0.3E (Z)

(3.10)

U = (1.2 D + Ev)+ 1.0L + 1.0E(Z) + 0.3E (X)

(3.11)

U = (0.9 D + Ev)+ 1.0L + 1.0E(X) + 0.3E (Z)

(3.12)

U = (0.9 D -Ev)+ 1.0L + 1.0E(X) + 0.3E (Z)

(3.13)

where, D, L, E are the effects due to dead, live & seismic loads, respectively&the vertical seismic load
effect Ev is calculated by BNBC 2015 Eq. 6.2.56:
Ev = 0.5(ah)D
ah = expected horizontal peak ground acceleration for design = (2/3)ZS
= (2/3)0.21.35
= 0.18
Ev = 0.5(ah)D
Ev = 0.5 0.18 D
Ev = 0.09D
Substituting Ev = 0.09D into the Eqs. 3.8, 3.9, 3.10, 3.11, 3.12 & 3.13
U = 1.3D + 1.0E + 1.0L

(3.14)

U = 0.81 D + 1.0E

(3.15)

U = 1.3 D + 1.0L + 1.0E(X) +0.3E(Z)

(3.16)

U = 1.3 D + 1.0L + 1.0E(Z) + 0.3E(X)

(3.17)

U = 0.81 D + 1.0E(X) + 0.3E(Z)

(3.18)

U = 0.81D + 1.0E(Z) + 0.3E(X)

(3.19)

You might also like