KEMBAR78
API Standard Storage Tank Data Sheet Rev 0 | PDF | Structural Steel | Pipe (Fluid Conveyance)
0% found this document useful (0 votes)
764 views3 pages

API Standard Storage Tank Data Sheet Rev 0

This document is an API standard 650 data sheet for a storage tank. It provides information such as the purchaser details, tank specifications including capacity and materials, construction details, and appurtenances. Specifications include the maximum operating temperature, product stored, corrosion allowance, shell and roof design standards, and wind and earthquake design parameters. Construction details specify the manufacturer, fabricator, material specifications, plate sizes and thicknesses, roof and bottom types, and nondestructive testing. Listed appurtenances include access items like stairs, walkways, piping, and manholes.
Copyright
© © All Rights Reserved
We take content rights seriously. If you suspect this is your content, claim it here.
Available Formats
Download as XLS, PDF, TXT or read online on Scribd
0% found this document useful (0 votes)
764 views3 pages

API Standard Storage Tank Data Sheet Rev 0

This document is an API standard 650 data sheet for a storage tank. It provides information such as the purchaser details, tank specifications including capacity and materials, construction details, and appurtenances. Specifications include the maximum operating temperature, product stored, corrosion allowance, shell and roof design standards, and wind and earthquake design parameters. Construction details specify the manufacturer, fabricator, material specifications, plate sizes and thicknesses, roof and bottom types, and nondestructive testing. Listed appurtenances include access items like stairs, walkways, piping, and manholes.
Copyright
© © All Rights Reserved
We take content rights seriously. If you suspect this is your content, claim it here.
Available Formats
Download as XLS, PDF, TXT or read online on Scribd
You are on page 1/ 3

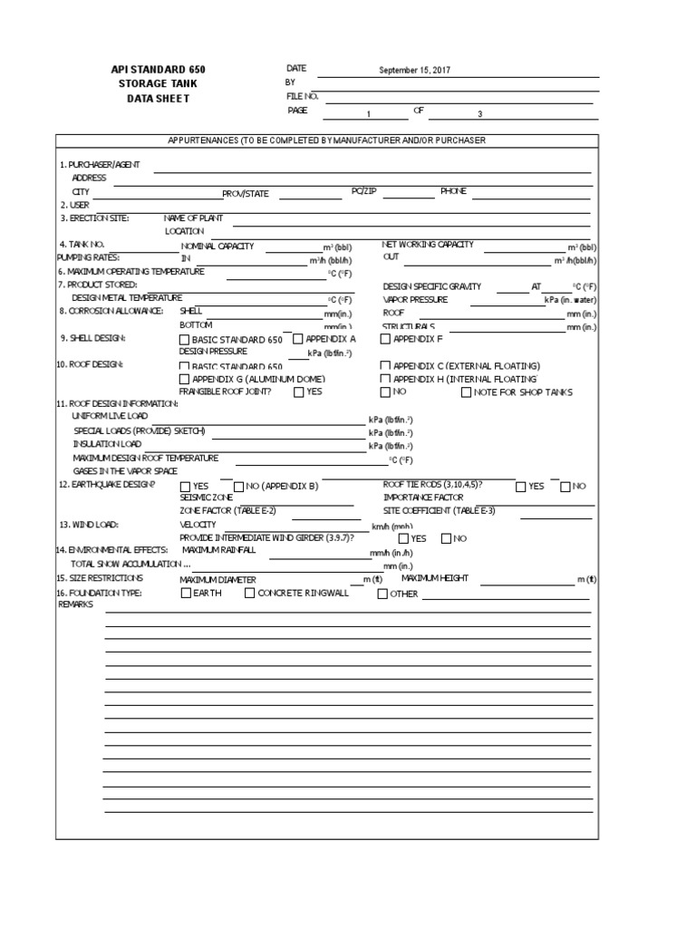
API STANDARD 650 DATE September 15, 2017

STORAGE TANK BY

DATA SHEET FILE NO.


PAGE 1 OF 3

APPURTENANCES (TO BE COMPLETED BY MANUFACTURER AND/OR PURCHASER

1. PURCHASER/AGENT
ADDRESS
CITY PROV/STATE PC/ZIP PHONE
2. USER
3. ERECTION SITE: NAME OF PLANT
LOCATION
4. TANK NO. NOMINAL CAPACITY m3 (bbl) NET WORKING CAPACITY m3 (bbl)
PUMPING RATES: IN m /h (bbl/h)
3 OUT m /h(bbl/h)
3

6. MAXIMUM OPERATING TEMPERATURE 0


C (0F)
7. PRODUCT STORED: DESIGN SPECIFIC GRAVITY AT 0
C (0F)
DESIGN METAL TEMPERATURE 0
C (0F) VAPOR PRESSURE kPa (in. water)
8. CORROSION ALLOWANCE: SHELL mm(in.) ROOF mm (in.)
BOTTOM mm(in.) STRUCTURALS mm (in.)
9. SHELL DESIGN: BASIC STANDARD 650 APPENDIX A APPENDIX F
DESIGN PRESSURE kPa (lbf/in.2)
10. ROOF DESIGN: BASIC STANDARD 650 APPENDIX C (EXTERNAL FLOATING)
APPENDIX G (ALUMINUM DOME) APPENDIX H (INTERNAL FLOATING)
FRANGIBLE ROOF JOINT? YES NO NOTE FOR SHOP TANKS
11. ROOF DESIGN INFORMATION:
UNIFORM LIVE LOAD kPa (lbf/in.2)
SPECIAL LOADS (PROVIDE) SKETCH) kPa (lbf/in.2)
INSULATION LOAD kPa (lbf/in.2)
MAXIMUM DESIGN ROOF TEMPERATURE 0
C (0F)
GASES IN THE VAPOR SPACE
12. EARTHQUAKE DESIGN? YES NO (APPENDIX B) ROOF TIE RODS (3,10,4,5)? YES NO
SEISMIC ZONE IMPORTANCE FACTOR
ZONE FACTOR (TABLE E-2) SITE COEFFICIENT (TABLE E-3)
13. WIND LOAD: VELOCITY km/h (mph)
PROVIDE INTERMEDIATE WIND GIRDER (3.9.7)? YES NO
14. ENVIRONMENTAL EFFECTS: MAXIMUM RAINFALL mm/h (in./h)
TOTAL SNOW ACCUMULATION ... mm (in.)
15. SIZE RESTRICTIONS MAXIMUM DIAMETER m (ft) MAXIMUM HEIGHT m (ft)
16. FOUNDATION TYPE: EARTH CONCRETE RINGWALL OTHER
REMARKS
API STANDARD 650 DATE September 15, 2017
STORAGE TANK BY

DATA SHEET FILE NO.


PAGE OF
PAGE 2 OF 3

CONSTRUCTION DETAILS (TO BE COMPLETED BY MANUFACTURER AND/OR PURCHASER


1. MANUFACTURER
ADDRESS
CITY PROV/STATE PC/ZIP PHONE
SERIAL NO.
2. FABRICATOR
ADDRESS
CITY PROV/STATE PC/ZIP PHONE
SERIAL NO.
3. MATERIAL SPECIFICATIONS SHELL
ROOF
BOTTOM
STRUCTURALS
4. NO. OF SHELL COURSES
5. PLATE WIDTHS AND THICKNESSES (INCLUDING CORROSION ALLOWANCE), IN mm (in.)
1. 4. 7.
2. 5. 8.
3. 6. 9.
6. TANK BOTTOM: PLATE THICKNESS mm(in.) LAP BUTT SEAMS
SLOPE mm/m (in/ft) TO FROM CENTER
7. MINIMUM WIDTH AND THICKNESS OF BOTTOM ANNULAR PLATES (3.5) IN mm (in.):
8. ROOF-TO-SHELL DETAIL (FIGURE F-1)
9. INTERMEDIATE WIND GIRDER? YES NO TOP WIND GIRDER FOR USE AS WALKWAY? YES NO
10. ROOF TYPE: SUPPORTED SELF-SUPPORTED FLOATING
SLOPE OR RADIUS mm (in.)
11. ROOF PLATE: THICKNESS mm (in.) LAP BUTT JOINT
12. PAINT:
SHELL-- EXTERIOR? YES NO INTERIOR? YES NO
SURFACE PREPARATION
BOTTOM-- UNDERSIDE? YES NO INTERIOR? YES NO
SURFACE PREPARATION
STRUCTURAL STEEL-- EXTERIOR? YES NO INTERIOR? YES NO
SPECIFICATION
13. TANK BOTTOM COATING: INTERIOR? YES NO MATERIAL
APPLICATION SPECIFICATION
14. INSPECTION BY: SHOP FIELD
15. WELD EXAMINATION: RADIOGRAPH
SUPPLIEMENTARY LIQUID PENETRANT OR ULTRASONIC
16. FILMS PROPERTY OF
17. LEAK TESTING: BOTTOM ROOF
SHELL
18. MILL TEST REPORTS: REQUIRED? YES NO
PLATE STRUCTURAL SHAPES
19. PURCHASER'S REFERENCE DRAWING
20. TANK SIZE: DIAMETER m (ft) HEIGHT m (ft)
21. DATE OF STANDARD 650 ...
REMARKS
API STANDARD 650 DATE September 15, 2017
STORAGE TANK BY

DATA SHEET FILE NO.


PAGE OF
PAGE 3 OF 3

APPURTENANCES (TO BE COMPLETED BY MANUFACTURER AND/OR PURCHASER

1. STAIRWAY STYLE: CIRCULAR STRAIGHT ANGLE TO HORIZONTAL DEGREES


LADDER
2. WALKWAY: WIDTH mm (in.) LENGTH m (ft)
3. DRAWOFF SUMP: STANDARD SPECIAL
4. BOLTED DOOR SHEET? YES NO (APPENDIS a TANKS ONLY) RAISED FLUSH
5. SCAFFOLD HITCH
6. INTERNAL PIPING: SWING LINE SUCTION LINE
HEATING COIL SURFACE AREA m2 (ft2)
7. ROOF DRAIN: HOSE JOINTED
SIPHON
8. NO. AND SIZE OF SHELL MANHOLES
9. NO. AND SIZE OF ROOF MANHOLES
10. SHELL NOZZLES (SEE FIGURES 3-4B, 3-5, AND 3-7 AND TABLES 3-8, 3-9, AND 3-10):

FLANGED THREADED ORIENTATION HEIGHT FROM


MARK SIZE SGL DBL SPL A B C D E N=0 BOTTOM SERVICE

11. ROOF NOZZLES, INCLUDING VENTING CONNECTION (SEE FIGURES 3-14 AND 3-15 AND TABLES 3-16 AND 3-17

ORIENTATION DISTANCE FROM


MARK SIZE FLANGED THREADED REINFORCEMENT N=0 CENTER SERVICE

NOTE: SKETCHES AND/OR SEPARATE SHEETS MAY BE ATTACHED TO COVER SPECIAL REQUIREMENTS.

You might also like