KEMBAR78
SLM | PDF
0% found this document useful (0 votes)
67 views1 page

SLM

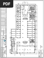
The document provides an update on various areas of a building project. It notes that wall cut outs need to be provided for the Dosing Room and Pump Room. The fireman staircase requires FRD openings to be repaired. Bulkhead top sheet fixing is pending for the platform double height area. Main duct connectivity is pending for ECS North due to dripping rain water from a plumbing shaft. Cleaning is required for the TVS Shaft South/North. Provision for makeup water supply is needed for CHW/CDW pipes. A permanent water drainage system is needed for the Ancillary Building.

Uploaded by

Cheerag
Copyright
© © All Rights Reserved
We take content rights seriously. If you suspect this is your content, claim it here.
Available Formats
Download as XLSX, PDF, TXT or read online on Scribd
0% found this document useful (0 votes)
67 views1 page

SLM

The document provides an update on various areas of a building project. It notes that wall cut outs need to be provided for the Dosing Room and Pump Room. The fireman staircase requires FRD openings to be repaired. Bulkhead top sheet fixing is pending for the platform double height area. Main duct connectivity is pending for ECS North due to dripping rain water from a plumbing shaft. Cleaning is required for the TVS Shaft South/North. Provision for makeup water supply is needed for CHW/CDW pipes. A permanent water drainage system is needed for the Ancillary Building.

Uploaded by

Cheerag
Copyright
© © All Rights Reserved
We take content rights seriously. If you suspect this is your content, claim it here.
Available Formats
Download as XLSX, PDF, TXT or read online on Scribd
You are on page 1/ 1

<Shalimar Bagh>

Dosing Room Wall Cut out for WEF to be provided

Pump Room Wall Cut out for WEF to be provided

Fireman staircase FRD openings to be repaired

Platform double height area Bulkhead top sheet fixing is pending

ECS North Main duct connectivity is pending due to dripping rain water from plumbing shaf

TVS Shaf South/North Cleaning required

General Provision for makeup water supply for CHW/CDW pipe

Ancillary Building Permanent water drainage system

You might also like