KEMBAR78
Centre Support - CSS - Side | PDF | Nature
0% found this document useful (0 votes)
44 views1 page

Centre Support - CSS - Side

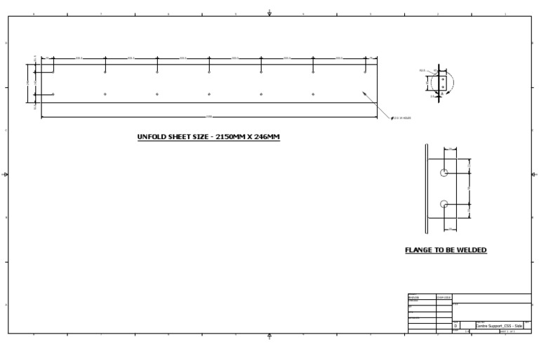
This document contains a technical drawing of a center support structure. It includes dimensions for holes, flanges, and the overall unfolded sheet size. Key specifications are provided, along with labels for different views of the design.

Uploaded by

Viswa Bhuvan
Copyright
© © All Rights Reserved
We take content rights seriously. If you suspect this is your content, claim it here.
Available Formats
Download as PDF, TXT or read online on Scribd
0% found this document useful (0 votes)
44 views1 page

Centre Support - CSS - Side

This document contains a technical drawing of a center support structure. It includes dimensions for holes, flanges, and the overall unfolded sheet size. Key specifications are provided, along with labels for different views of the design.

Uploaded by

Viswa Bhuvan
Copyright
© © All Rights Reserved
We take content rights seriously. If you suspect this is your content, claim it here.
Available Formats
Download as PDF, TXT or read online on Scribd
You are on page 1/ 1

8 7 6 5 4 3 2 1

D D
51.5

75 333.3 333.3 333.3 333.3 333.3 333.3 75

R2.5 47
246

142

95
2.5
A
51.5

2150
13 X 14 HOLES

C C

UNFOLD SHEET SIZE - 2150MM X 246MM


20

22
50
22
B B

20

FLANGE TO BE WELDED

DRAWN
BHUVAN 23-04-2018
CHECKED

A TITLE A
QA

MFG

APPROVED
SIZE DWG NO REV

D Centre Support_CSS - Side


SCALE
1:4 SHEET 1 OF 1
8 7 6 5 4 3 2 1

You might also like