KEMBAR78
Fire Alarm Panel Wiring Guide | PDF | Components | Electrical Engineering
0% found this document useful (0 votes)
209 views1 page

Fire Alarm Panel Wiring Guide

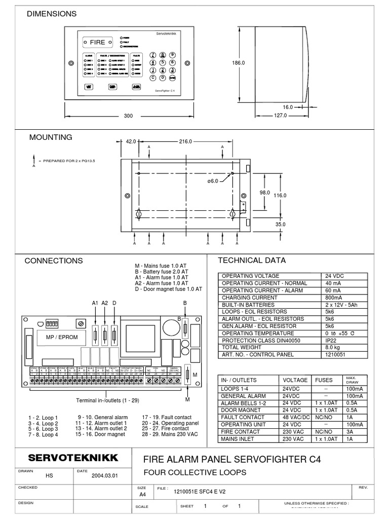
This document provides technical specifications for a fire alarm panel called the ServoFighter C4. It has 4 collective loops to monitor fire zones. It operates on 24VDC with normal and alarm currents of 40mA and 60mA respectively. It has built-in batteries of 2 x 12V, 5Ah capacity. The panel dimensions are 186mm x 216mm x 127mm and it has a weight of 8kg. It has terminals for connecting the 4 loops, 2 alarm outlets, door magnet, fault contact, operating panel, fire contact and mains 230VAC supply.

Uploaded by

Fab Sgn
Copyright
© © All Rights Reserved
We take content rights seriously. If you suspect this is your content, claim it here.
Available Formats
Download as PDF, TXT or read online on Scribd
0% found this document useful (0 votes)
209 views1 page

Fire Alarm Panel Wiring Guide

This document provides technical specifications for a fire alarm panel called the ServoFighter C4. It has 4 collective loops to monitor fire zones. It operates on 24VDC with normal and alarm currents of 40mA and 60mA respectively. It has built-in batteries of 2 x 12V, 5Ah capacity. The panel dimensions are 186mm x 216mm x 127mm and it has a weight of 8kg. It has terminals for connecting the 4 loops, 2 alarm outlets, door magnet, fault contact, operating panel, fire contact and mains 230VAC supply.

Uploaded by

Fab Sgn
Copyright
© © All Rights Reserved
We take content rights seriously. If you suspect this is your content, claim it here.
Available Formats
Download as PDF, TXT or read online on Scribd
You are on page 1/ 1

DIMENSIONS

Servoteknikk

FIRE

186.0

ServoFighter C 4

16.0
300 127.0

MOUNTING 42.0 216.0


A A

= PREPARED FOR 2 x PG13.5


A

ø6.0

98.0
116.0

35.0

A A A A A A

CONNECTIONS TECHNICAL DATA


M - Mains fuse 1.0 AT
B - Battery fuse 2.0 AT
A1 - Alarm fuse 1.0 AT OPERATING VOLTAGE 24 VDC
A2 - Alarm fuse 1.0 AT OPERATING CURRENT - NORMAL 40 mA
D - Door magnet fuse 1.0 AT OPERATING CURRENT - ALARM 60 mA
CHARGING CURRENT 800mA
A1 A2 D B BUILT-IN BATTERIES 2 x 12V - 5Ah
LOOPS - EOL RESISTORS 5k6
B ALARM OUTL. - EOL RESISTORS 5k6
GEN.ALARM - EOL RESISTOR 5k6
OPERATING TEMPERATURE 0 to0 +55 C0
MP / EPROM
PROTECTION CLASS DIN40050 IP22
TOTAL WEIGHT 8.0 kg
ART. NO. - CONTROL PANEL 1210051

ZONE 1 ZONE 2 ZONE 3 ZONE 4 GEN. ALA 1 ALA 2 DOOR FAULT OPERATOR PANEL FIRE MAINS
A B A B A B A B A B A B A B A B NC C NO 0V 27V D- D+ Gnd NC C NO 230 VAC
1 2 3 4 5 6 7 8 9 10 11 12 13 14 15 16 17 18 19 20 21 22 23 24 25 26 27 28 29
M
MAX.
IN- / OUTLETS VOLTAGE FUSES DRAW
_
LOOPS 1-4 24VDC 100mA
_
GENERAL ALARM 24VDC 100mA
Terminal in-/outlets (1 - 29) M
ALARM BELLS 1-2 24 VDC 1 x 1.0AT 0.5A
DOOR MAGNET 24 VDC 1 x 1.0AT 0.5A
1 - 2. Loop 1 9 - 10. General alarm 17 - 19. Fault contact FAULT CONTACT 48 VAC/DC NC/NO 1A
3 - 4. Loop 2 11 - 12. Alarm outlet 1 20 - 24. Operating panel _
OPERATING UNIT 24 VDC 100mA
5 - 6. Loop 3 13 - 14. Alarm outlet 2 25 - 27. Fire contact
FIRE CONTACT 230 VAC NC/NO 3A
7 - 8. Loop 4 15 - 16. Door magnet 28 - 29. Mains 230 VAC
MAINS INLET 230 VAC 1 x 1.0AT 1A

SERVOTEKNIKK FIRE ALARM PANEL SERVOFIGHTER C4


DRAWN DATE
HS 2004.03.01 FOUR COLLECTIVE LOOPS
CHECKED SIZE FILE : REV.
1210051E SFC4 E V2
A4
DESIGN UNLESS OTHERWISE SPECIFIED :
SCALE SHEET 1 OF 1 DIMENSIONS ARE IN MM

You might also like