KEMBAR78
Project 1 - Revit Architecture Practice | PDF | Buildings And Structures | Queensland Heritage Register
100% found this document useful (1 vote)
4K views4 pages

Project 1 - Revit Architecture Practice

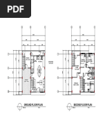
The document contains architectural plans and drawings for a residential building project called Nath Villa-2. The drawings include an exterior view, ground floor plan, and elevations from the east/west and north/south sides. Dimensions and notes are provided on the drawings to specify features like room sizes, door and window placements, and level heights.

Uploaded by

Kushal
Copyright
© © All Rights Reserved
We take content rights seriously. If you suspect this is your content, claim it here.
Available Formats
Download as PDF, TXT or read online on Scribd
100% found this document useful (1 vote)
4K views4 pages

Project 1 - Revit Architecture Practice

The document contains architectural plans and drawings for a residential building project called Nath Villa-2. The drawings include an exterior view, ground floor plan, and elevations from the east/west and north/south sides. Dimensions and notes are provided on the drawings to specify features like room sizes, door and window placements, and level heights.

Uploaded by

Kushal
Copyright
© © All Rights Reserved
We take content rights seriously. If you suspect this is your content, claim it here.
Available Formats
Download as PDF, TXT or read online on Scribd
You are on page 1/ 4

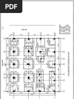
Notes:

NATH VILLA-2
Drawing Title

EXTERIOR VIEW
Scale Date Drg. No.

09/18/19 A101
Notes:

A104

6' - 3" 6' - 0 1/2" 0' - 5" 6' - 0 1/2" 6' - 3"

W2 W2

0' - 9"
3' - 3"

3' - 11"

6' - 7 1/2"
W2 W2
BED ROOM 1 BED ROOM 2

7' - 0"
1' - 0"

7' - 5"

3' - 0"
UP
3' - 0" D3 D3 TOILET

5' - 7"
V

3' - 0"
D2
14' - 11"

3' - 0"
KITCHEN + DINING D2
W2

5' - 7"
2 V 1 A103
A103
BATH

3' - 0"
W1 11' - 9"

7' - 0"
LIVING ROOM

W2

D1
UP

7' - 0"

W1

NATH VILLA-2
Drawing Title

1 GROUND FLOOR PLAN


A104
Scale Date Drg. No.
1/4" = 1'-0" 09/18/19 A102
Notes:

FIRST FLOOR
11' - 6"

GROUND FLOOR
1' - 6"

GROUND LEVEL
0' - 0"

East
1
1/4" = 1'-0"

FIRST FLOOR
11' - 6"

GROUND FLOOR
1' - 6"
GROUND LEVEL
0' - 0"

West NATH VILLA-2


2
1/4" = 1'-0"

Drawing Title

ELEVATION - E/W
Scale Date Drg. No.
1/4" = 1'-0" 09/18/19 A103
Notes:

FIRST FLOOR
11' - 6"

GROUND FLOOR
1' - 6"
GROUND LEVEL
0' - 0"

2 North
1/4" = 1'-0"

FIRST FLOOR
11' - 6"

GROUND FLOOR
1' - 6"
GROUND LEVEL
0' - 0"

South
1
1/4" = 1'-0" NATH VILLA-2
Drawing Title

ELEVATION - N/S
Scale Date Drg. No.
1/4" = 1'-0" 09/18/19 A104

You might also like