KEMBAR78
STP | PDF | Sewage Treatment | Water Treatment
67% found this document useful (3 votes)
4K views3 pages

STP

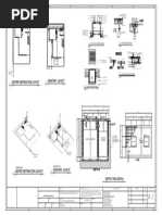
The document contains plans and diagrams for a sewage treatment plant (STP). It includes a plan view of the STP at the blower room level showing various components labeled with abbreviations. It also includes section views A and B of the STP. Finally, it contains a process flow diagram of the STP showing the flow of wastewater through components like screens, tanks, and filters.

Uploaded by

Edmar Bangayan
Copyright
© © All Rights Reserved
We take content rights seriously. If you suspect this is your content, claim it here.
Available Formats
Download as PDF, TXT or read online on Scribd
67% found this document useful (3 votes)
4K views3 pages

STP

The document contains plans and diagrams for a sewage treatment plant (STP). It includes a plan view of the STP at the blower room level showing various components labeled with abbreviations. It also includes section views A and B of the STP. Finally, it contains a process flow diagram of the STP showing the flow of wastewater through components like screens, tanks, and filters.

Uploaded by

Edmar Bangayan
Copyright
© © All Rights Reserved
We take content rights seriously. If you suspect this is your content, claim it here.
Available Formats
Download as PDF, TXT or read online on Scribd
You are on page 1/ 3

CCT

(BELOW)
MH MH
CONCRETE
PAD B
MH
EQT
STP BLOWER (BELOW)
ROOM SBR
(BELOW)
MH MH MH A
INFLUENT
CHAMBER
(BELOW)

1 S.T.P. PLAN @ BLOWER ROOM LEVEL


STP 001 SCALE: N.T.S

5000

00-00-0000

REV. DATE DESCRIPTION DRAWN CHECKED

CCT EQT CONTRACTOR:


2600

COARSE BASKET
SCREEN
SBR TANK
PROJECT NAME:

INFLUENT PROPOSED SEWAGE


CHAMBER TREATMENT PLANT
FOR 8 - STOREY BUILDING
FINE BASKET
SCREEN SHEET CONTENT:

STP PLAN

2 S.T.P. PLAN @ BASIN BASE LEVEL FOR QUOTATION Drawn: OXI Date 08.10.19
STP 001 SCALE: N.T.S PURPOSES Checked: MUS Drawing No. 00-CW-A1

Approved: TREI Sheet No. STP - 001

Scale: AS SHOWN Revision 0


STP BLOWER
ROOM
CONCRETE
PAD
TOP SLAB LEVEL

3000
INFLUENT
CHAMBER
EQT SBR

STP BOTTOM
SLAB LEVEL

1 S.T.P. SECTION "A"


STP 002 SCALE: N.T.S

STP BLOWER
00-00-0000
ROOM REV. DATE DESCRIPTION DRAWN CHECKED

CONCRETE CONTRACTOR:

PAD
TOP SLAB LEVEL
3000

PROJECT NAME:

CCT EQT PROPOSED SEWAGE


SBR
TREATMENT PLANT
FOR 8 - STOREY BUILDING

STP BOTTOM SHEET CONTENT:

SLAB LEVEL
STP SECTION

2 S.T.P. SECTION "B" FOR QUOTATION Drawn: OXI Date 08.10.19

STP 002 SCALE: N.T.S PURPOSES Checked: MUS Drawing No. 00-CW-A1

Approved: TREI Sheet No. STP-002

Scale: AS SHOWN Revision 0


LEGEND:

AIRLINE
WASTEWATER LINE
SLUDGE LINE

CHLORINE DOSING LINE

BLOWER-SBR 1

CHLORINE
DOSING UNIT

F
TO DRAIN
FPV
(BY OTHERS)
COARSE BASKET FLOW METER
SCREENING
WAS
W/ SAMPLING
B
PORT
INLET PIPE FINE BASKET FILTER
SCREENING
(BY OTHERS) PRESSURE
VESSEL
L

00-00-0000

REV. DATE DESCRIPTION DRAWN CHECKED

CONTRACTOR:

SUBMERSIBLE DP
MIXER AIRLIFT

TP FFP PROJECT NAME:

PROPOSED SEWAGE
INFLUENT EQUALIZATION SBR TANK CCT TREATMENT PLANT
FOR 8 - STOREY BUILDING
CHAMBER TANK
SHEET CONTENT:

PROCESS FLOW DIAGRAM


1 PROCESS FLOW DIAGRAM
STP 003 SCALE: N.T.S FOR QUOTATION Drawn: OXI Date 08.10.19

PURPOSES Checked: MUS Drawing No. 00-CW-A1

Approved: TREI Sheet No. STP-003

Scale: AS SHOWN Revision 0

You might also like